Bugford Lane, Hillfield, Dartmouth

Guide Price
£1,150,000

5 Bedroom Not Specified for sale in Dartmouth

4 5 5
  • Substantial Charming Rural Home
  • Set In Approximately 2 Acres
  • 5 bedrooms, 2 With An En Suite
  • 4 Reception Rooms
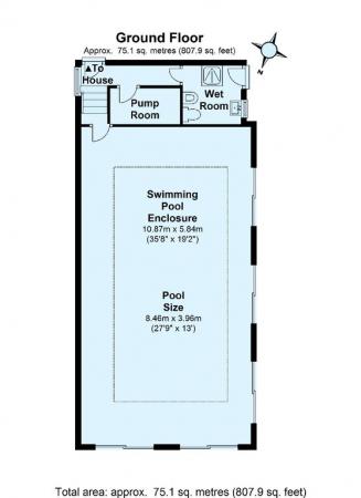
  • Indoor Heated Swimming Pool
  • Garage And Extensive Parking
  • Annex Potential
  • Pretty Rural Position Just Outside Of Dartmouth
  • Mains Electricity & Water. Private Drainage
  • Oil Fired Central Heating

Nestled in a charming rural hamlet on the outskirts of Dartmouth, Western Waters is a substantial period home thoughtfully extended and well appointed throughout.

Set within approximately 2 acres of beautiful landscaped gardens and grounds, the property enjoys a peaceful sense of privacy, tranquillity, and sweeping countryside views. The grounds include a stream-fed lake, a paddock, and a pretty formal and informal garden areas ideal for dining, entertaining, or peaceful retreat.

This impressive family home offers generously proportioned accommodation over two floors, combining a wonderful sense of calm and space, with modern comforts. With five bedrooms and four reception rooms, the layout has been designed to accommodate both family living and entertaining on a grand scale.

The well presented accommodation on two floors comprises as follows. On the ground is an entrance hall, a drawing room with bay windows overlooking the garden, a shower room, a boot room, a large kitchen/breakfast room through to a sitting room, a dining room and useful utility room.

On the first floor is the main en suite bedroom with access to a full width balcony with gorgeous far reaching views, a further 4 bedrooms, 1 with an en suite bathroom, a separate family bathroom and a first floor reception room.

A particular highlight of the property is the indoor heated swimming pool with five full-height sliding glazed doors opening directly onto the garden.

Additional features include a garage, extensive off-road parking, and a location that provides both seclusion and convenient access to Dartmouth and the surrounding countryside.

Western Waters presents a rare opportunity to acquire a truly exceptional country home in one of South Devon’s most desirable settings.

Dartmouth is a beautiful waterside town, particularly well known as a sailing centre with excellent facilities for yachtsmen and its famous annual Royal Regatta. The town provides a good range of shops, restaurants and galleries and is surrounded by stunning countryside and a short drive from some of the most beautiful beaches in the area. There are several excellent golf courses within easy reach and railway links to London Paddington can be made locally at Totnes, about 13 miles to the north. Access to the A38 Devon Expressway at Buckfastleigh is about 19 miles away

Tenure
Freehold

Services
Mains electricity and water. Private drainage. Oil fired central heating

Viewing
Strictly by appointment with the Sole Agents, Marchand Petit, Dartmouth. Telephone: 01803 839190

Fixtures & Fittings
All items in the written text of these sales particulars are included in the sale. Other items are expressly excluded, regardless of inclusion in any photograph. Purchasers must satisfy themselves that any equipment included in the sale of the property is in satisfactory working order

Important Information

  • This is a Freehold property.

Property Ref: 1357_TSJ724614

Share:

Similar Properties

Channel View Drive, Hope Cove

4 Bedroom Bungalow | Guide Price £1,150,000

A beautifully presented detached bungalow set in an elevated position, offering panoramic sea and countryside views, 4 s...

Seymour Road, Mannamead

6 Bedroom Semi-Detached House | Guide Price £1,150,000

An elegant 6 Bedroom Grade II Listed semi-detached Victorian villa with an abundance of original, fine period features a...

Treveor Gardens, Modbury

5 Bedroom Detached House | Guide Price £1,150,000

A light, airy, stylish and substantial (243 sq m) detached home within an exclusive development, with generous gardens,...

Beacon Road, Kingswear, Dartmouth, Devon

3 Bedroom Maisonette | Guide Price £1,175,000

An elegant maisonette in a beautiful period property bursting with lovely features and the most outstanding widespread v...

Spriddlestone,

4 Bedroom Detached House | Guide Price £1,175,000

Two stunning and well-appointed detached stonebuilt barns sitting in glorious gardens with wonderful views, and less tha...

Woodleigh, Kingsbridge, Devon, TQ7

4 Bedroom House | £1,200,000

A wonderful early 20th century property that has been completely renovated set in a private location on the outskirts of...

Marchand Petit (Kingsbridge)

94 Fore Street, Kingsbridge, Devon, TQ7 1PP

01548 857 588

How much is your home worth?

Use our short form to request a valuation of your property.

Request a Valuation

Mortgage Calculator

Amount Borrowed: £
Total Amount Repayable: £
Total Monthly Payment: £
©2025 The Guild of Property Professionals. All rights reserved. Terms and Conditions | Privacy Policy | Cookie Policy | Complaints Policy | Members Login
The Guild of Property Professionals Trading Address: 121 Park Lane, London W1K 7AG. GPEA Limited. Registered in England & Wales.  Company No: 02819824.  Registered Office Address: 2 St. Stephen's Court, St. Stephen's Road, Bournemouth, Dorset, England, BH2 6LA.  VAT Registration No: 576 8795 61
Book a Property Valuation Update Cookies Preferences