Victoria Road, Dartmouth

Guide Price
£425,000

3 Bedroom Terraced House for sale in Dartmouth

1 3 2
  • Pretty red-brick period home within easy walking distance of Dartmouth town centre
  • Three double bedrooms, including a loft conversion main bedroom with en-suite
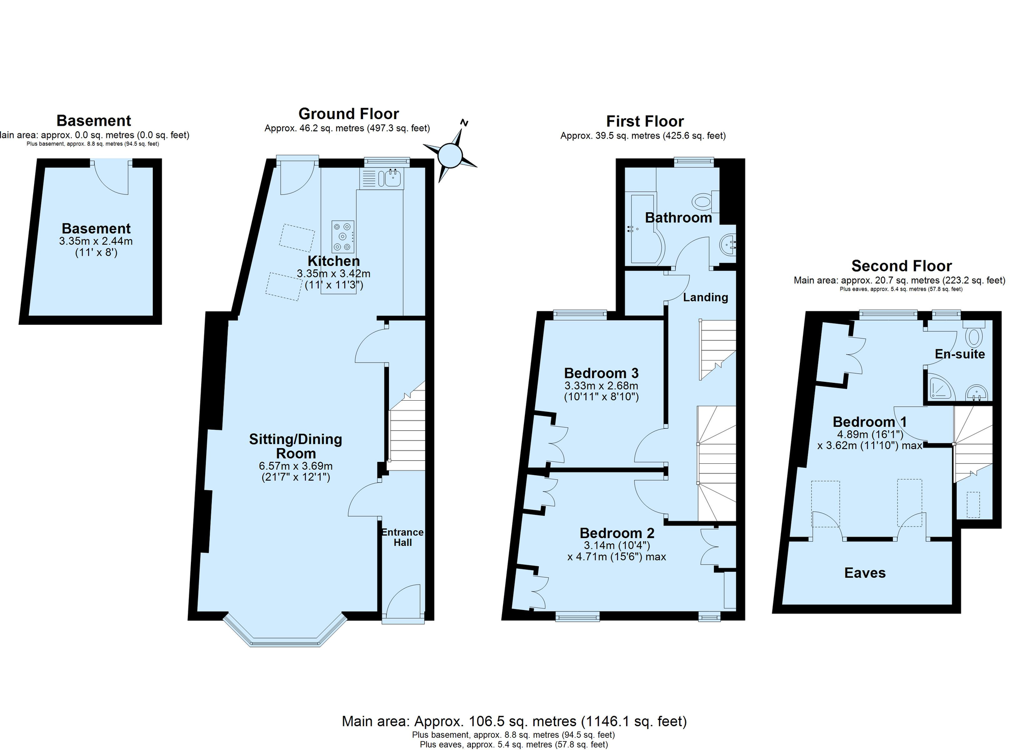
  • Arranged over three floors with the added benefit of a basement
  • Light and spacious sitting / dining room with bay window and window seat
  • Stylish fitted kitchen with integrated appliances
  • Front paved terrace and enclosed rear decked seating area
  • Valuable off-street parking space to the rear

Set within the highly sought-after South Devon district of South Hams, this charming and well presented period property offers the opportunity to acquire a pretty home within comfortable walking distance of Dartmouth’s vibrant town centre and picturesque riverside.

Enjoyed as a much-loved second home, the house has been the subject of a sympathetic programme of improvement. The result is a warm, welcoming and practical home including a lovely loft extension to create a main bedroom suite, a contemporary fitted kitchen, an upgraded family bathroom and a new decked courtyard.

Arranged over three floors with the additional benefit of a basement, the accommodation is versatile, well balanced and ideally suited to both full-time living and use as a coastal retreat.

The property is approached via a pretty paved terrace to the front, creating an attractive and welcoming entrance. Stepping inside, the entrance hall immediately sets the tone, with the staircase rising directly ahead and doors opening into both the main living space and the kitchen.

The sitting and dining room is a particularly well-proportioned room, benefitting with natural light from a large front-facing bay window. A built-in window seat also provides useful storage. The layout comfortably accommodates both a seating area and a dining table, making it ideal for everyday living as well as entertaining family and friends. From here, the room flows through to the kitchen, creating a sociable and practical ground-floor arrangement. The kitchen is well equipped, featuring a good range of built-in wall and base units, integrated appliances and ample worktop space. On the lower ground floor is a useful basement space.

The first floor provides two double bedrooms - these rooms are served by a spacious and well-appointed family bathroom, which has been upgraded to offer modern fittings and a comfortable, relaxing environment. This level is perfectly arranged for family use or visiting guests, with excellent separation between the principal bedroom suite and the remaining accommodation.

The second floor loft extension has created a delightful main bedroom, forming a private retreat at the top of the house. The room is well proportioned and benefits from excellent natural light, together with useful under-eaves storage that maximises practicality without compromising the sense of space. A stylish en-suite shower room completes this level.

To the front of the property, the paved terrace provides an attractive spot for a morning coffee whilst to the rear, there is a fully enclosed decked seating area, creating a sheltered and low-maintenance outdoor space which is ideal for dining, relaxing or entertaining in the warmer months. A valuable feature for a central Dartmouth home is the hardstanding parking space to the rear of the property, offering convenient off-street parking.

Dartmouth is a beautiful waterside town, particularly well known as a sailing centre with excellent facilities for yachtsmen and its famous annual Royal Regatta. The town provides a good range of shops, restaurants and galleries and is surrounded by stunning countryside and a short drive from some of the most beautiful beaches in the area. There are several excellent golf courses within easy reach and railway links to London Paddington can be made locally at Totnes, about 13 miles to the north. Access to the A38 Devon Expressway at Buckfastleigh is about 19 miles away.

Tenure
Freehold

Services
Mains electricity gas water and drainage. Underfloor heating

Viewing
Strictly by appointment with the Sole Agents, Marchand Petit, Dartmouth. Telephone: 01803 839190

Fixtures & Fittings
All items in the written text of these sales particulars are included in the sale. Other items are expressly excluded, regardless of inclusion in any photograph. Purchasers must satisfy themselves that any equipment included in the sale of the property is in satisfactory working order.

Important Information

  • This is a Freehold property.
  • This Council Tax band for this property is: C

Property Ref: TSJ889345

Share:

Similar Properties

Mount Boone, Dartmouth

2 Bedroom Flat | Guide Price £425,000

A spacious ground floor apartment with well proportioned rooms, in a popular elevated residential area overlooking the t...

South Ford Road, Dartmouth

4 Bedroom Town House | Guide Price £425,000

A really beautifully presented period town house with pretty views across the town, situated in a wonderful peaceful pos...

Brixham Road, Kingswear

5 Bedroom Semi-Detached House | Guide Price £420,000

A charming period semi detached house with 5 bedrooms, 2 bathrooms and 2 reception rooms, within walking distance of the...

New Road, Brixham

4 Bedroom End of Terrace House | Guide Price £430,000

An attractive four-bedroom period home in a level and highly convenient location, just a short walk from the town centre...

Venn Way, Stoke Fleming

3 Bedroom Bungalow | Guide Price £430,000

A 3 bedroom detached bungalow set on a corner plot in a highly sought-after coastal village with garage, parking and gar...

Start Bay Park, Strete

3 Bedroom Detached Bungalow | Guide Price £450,000

A lovely detached bungalow on a good sized corner plot at the end of a cul de sac in the pretty South Hams coastal villa...

Marchand Petit (Dartmouth)

Hauley Road, Dartmouth, Devon, TQ6 9AA

01803 839 190

How much is your home worth?

Use our short form to request a valuation of your property.

Request a Valuation

Mortgage Calculator

Amount Borrowed: £
Total Amount Repayable: £
Total Monthly Payment: £
©2026 The Guild of Property Professionals. All rights reserved. Terms and Conditions | Privacy Policy | Cookie Policy | Complaints Policy | Members Login
The Guild of Property Professionals Trading Address: 121 Park Lane, London W1K 7AG. GPEA Limited. Registered in England & Wales.  Company No: 02819824.  Registered Office Address: 2 St. Stephen's Court, St. Stephen's Road, Bournemouth, Dorset, England, BH2 6LA.  VAT Registration No: 576 8795 61
Book a Property Valuation Update Cookies Preferences