Clarence Hill, Dartmouth

Guide Price
£595,000

3 Bedroom Detached Bungalow for sale in Dartmouth

2 3 2
  • Stunning Views Across The Town & River Dart
  • Garage Nearby
  • Unusual Detached Bungalow
  • No Onward Chain
  • Potential To Extend
  • Sun Deck & Garden
  • Superb Elevated Position Close To The Town Centre
  • Useful Store Room

A detached bungalow with stunning views of the River Dart and surrounding countryside with a sun deck, garden and a garage nearby.

A most unique detached home, situated in a quiet elevated sunny position. This property boasts a most useful garage nearby, and is situated in a popular residential area, a short pleasant walk from all the wonderful amenities available in the town centre.

The bungalow sits in a nice south facing plot, in an elevated position commanding superb widespread views across the town and river, and offers the potential to create something very special.

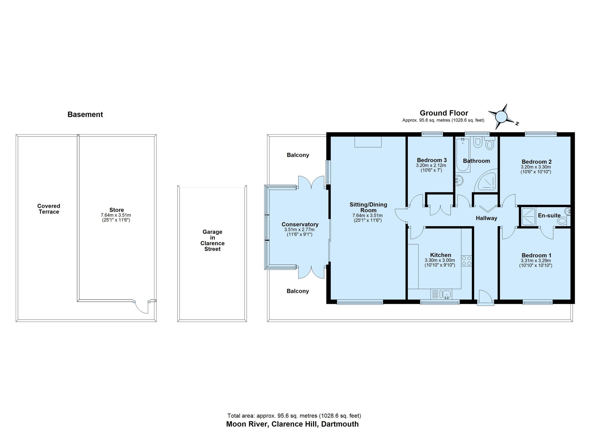
The garage is situated a few minutes’ walk away located in Clarence Street.

Currently, the property comprises of 3 bedrooms, 1 with an en suite shower room, a family bathroom, a well fitted and equipped kitchen, an open plan sitting/dining room, and a conservatory/sun room with a lovely decked seating area off.

Outside, there is more potential to create lovely al fresco dining spaces with a paved terrace area and further terraced garden which requires landscaping. Beneath the property is a useful storage area.

Dartmouth is a beautiful waterside town, particularly well known as a sailing centre with excellent facilities for yachtsmen and its famous annual Royal Regatta. The town provides a good range of shops, restaurants and galleries and is surrounded by stunning countryside and a short drive from some of the most beautiful beaches in the area. There are several excellent golf courses within easy reach and railway links to London Paddington can be made locally at Totnes, about 13 miles to the north. Access to the A38 Devon Expressway at Buckfastleigh is about 19 miles away.

Tenure
Freehold

Services
Mains electricity, water, drainage and gas

Viewings
Strictly by appointment with the Sole Agents, Marchand Petit, Dartmouth. Telephone: 01803 839190

Fixtures & Fittings
All items in the written text of these sales particulars are included in the sale. Other items are expressly excluded, regardless of inclusion in any photograph. Purchasers must satisfy themselves that any equipment included in the sale of the property is in satisfactory working order.

Important Information

  • This is a Freehold property.

Property Ref: 2728_TSJ725206

Share:

Similar Properties

Mount Boone, Dartmouth, Devon

3 Bedroom Apartment | Guide Price £595,000

A really beautifully presented ground floor apartment in a wonderful quiet elevated position, just a short walk to the h...

Riverside Road, Dittisham

3 Bedroom Barn Conversion | Guide Price £595,000

A lovely Grade ll Listed three storey end terraced barn conversion with garden and parking, in the heart of this picture...

Seymour Drive, Dartmouth, Devon

5 Bedroom Detached House | Guide Price £575,000

A versatile and beautifully presented substantial detached house with 4 bedrooms, a separate study/home office and annex...

Priory Street, Kingswear

Not Specified | Guide Price £600,000

FOR SALE BY AUCTION, UNLESS PREVIOUSLY SOLD. A significant stone house with tudor style gable end overlooking the River...

Manor Street, Dittisham

3 Bedroom Semi-Detached House | Guide Price £650,000

A charming semi-detached home situated in the heart of this wonderful riverside village with stunning far reaching views...

Upper Wood Lane, Kingswear

4 Bedroom Semi-Detached House | Guide Price £650,000

A semi-detached cottage situated in an elevated position in this charming riverside village with stunning views, 4 bedro...

Marchand Petit (Dartmouth)

Hauley Road, Dartmouth, Devon, TQ6 9AA

01803 839 190

How much is your home worth?

Use our short form to request a valuation of your property.

Request a Valuation

Mortgage Calculator

Amount Borrowed: £
Total Amount Repayable: £
Total Monthly Payment: £
©2025 The Guild of Property Professionals. All rights reserved. Terms and Conditions | Privacy Policy | Cookie Policy | Complaints Policy | Members Login
The Guild of Property Professionals Trading Address: 121 Park Lane, London W1K 7AG. GPEA Limited. Registered in England & Wales.  Company No: 02819824.  Registered Office Address: 2 St. Stephen's Court, St. Stephen's Road, Bournemouth, Dorset, England, BH2 6LA.  VAT Registration No: 576 8795 61
Book a Property Valuation Update Cookies Preferences