South Ford Road, Dartmouth

Guide Price
£425,000

4 Bedroom Town House for sale in Dartmouth

2 4 2
  • Beautifully Presented Period Town house
  • Pretty Views Across The Town
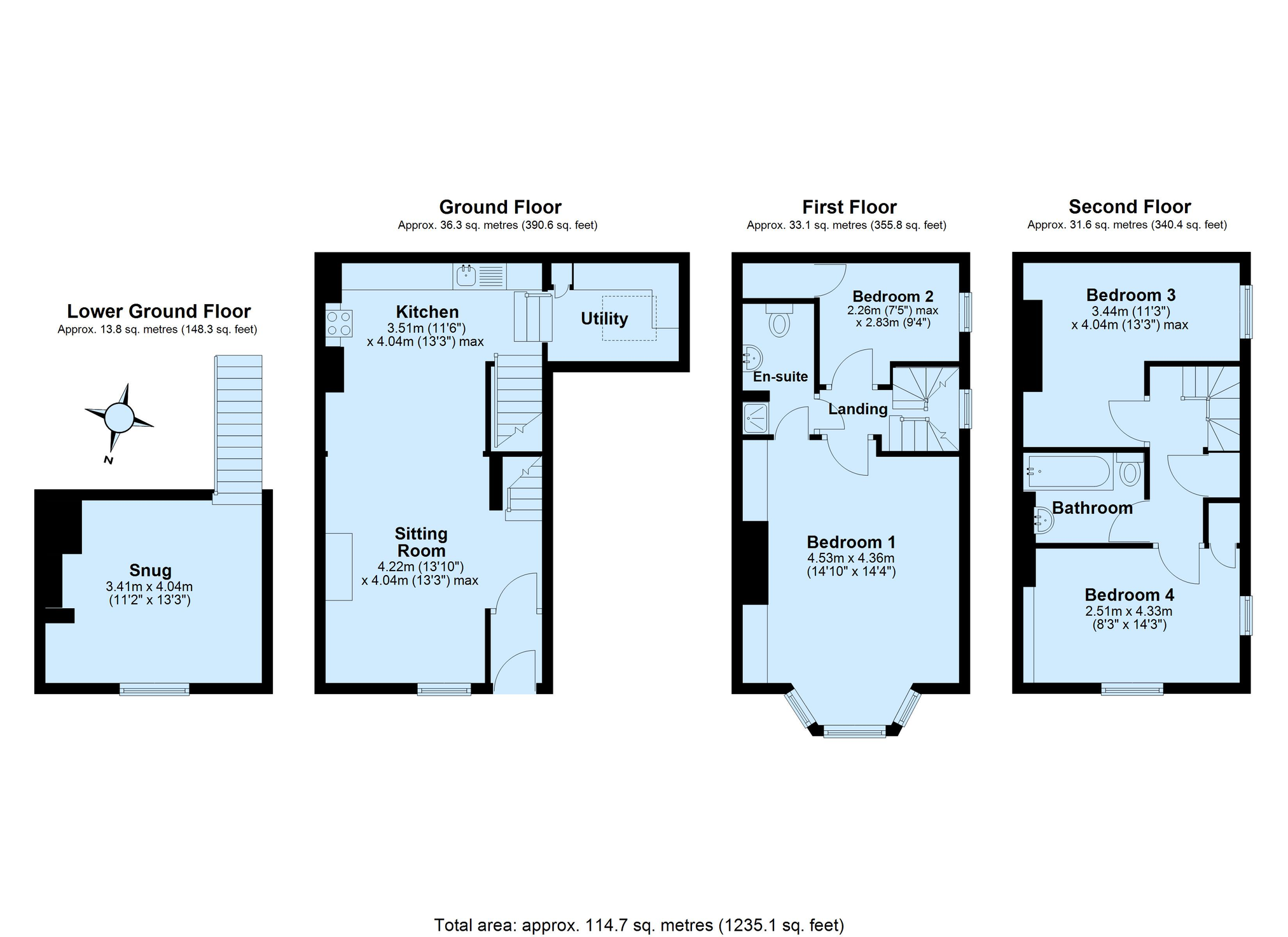
  • 4 Bedrooms
  • Wonderful Quiet Position In The Heart Of The Town
  • A Few Minutes Walk From The Shops, Boutiques & Restaurants
  • Courtyard Garden
  • Mains Gas Electricity Water And Drainage

A Beautifully Presented Period Town House in the heart of Dartmouth

69 South Ford Road is a delightful character town house, offering beautifully maintained and versatile accommodation in a peaceful yet central location.

Nestled in the heart of Dartmouth, this charming home is just a short stroll from the town’s boutiques, galleries, restaurants, and picturesque riverfront.

This has been a much-loved second home which blends period charm with modern convenience. A pretty front courtyard garden sets the tone, a perfect spot for alfresco dining or morning coffee. The small entrance porch opens into a spacious, open-plan living area. This inviting space features an exposed stonework wall, and a cosy wood-burning stove. The dining area leads in to the well-appointed kitchen which is fitted with a range of built-in base units and integrated appliances, offering functionality alongside style. Off the kitchen is a most useful utility area. On the Lower Gound Floor is a snug which could also be used as a television or games room. There are two comfortable bedrooms on the first floor, the main bedroom to the front has an en suite shower room and a large bay window with pretty views out across the town. On the Second Floor there are two further double bedrooms and a family bathroom.

Dartmouth is a beautiful waterside town, particularly well known as a sailing centre with excellent facilities for yachtsmen and its famous annual Royal Regatta. The town provides a good range of shops, restaurants and galleries and is surrounded by stunning countryside and a short drive from some of the most beautiful beaches in the area. There are several excellent golf courses within easy reach and railway links to London, Paddington, can be made locally at Totnes, about 13 miles to the north. Access to the A38 Devon Expressway at Buckfast leigh is about 19 miles away

Tenure
Freehold

Services
Mains electricity gas water and drainage. Gas fired central heating

Viewing
Strictly by appointment with the Sole Agents, Marchand Petit, Dartmouth. Telephone: 01803 839190

Fixtures & Fittings
All items in the written text of these sales particulars are included in the sale. Other items are expressly excluded, regardless of inclusion in any photograph. Purchasers must satisfy themselves that any equipment included in the sale of the property is in satisfactory working order.

Important Information

  • This is a Freehold property.
  • This Council Tax band for this property is: C

Property Ref: TSJ829547

Share:

Similar Properties

Mount Boone, Dartmouth

2 Bedroom Flat | Guide Price £425,000

A spacious ground floor apartment with well proportioned rooms, in a popular elevated residential area overlooking the t...

Victoria Road, Dartmouth

3 Bedroom Terraced House | Guide Price £425,000

A pretty renovated red-brick period home within walking distance of Dartmouth town centre, offering three double bedroom...

Brixham Road, Kingswear

5 Bedroom Semi-Detached House | Guide Price £420,000

A charming period semi detached house with 5 bedrooms, 2 bathrooms and 2 reception rooms, within walking distance of the...

New Road, Brixham

4 Bedroom End of Terrace House | Guide Price £430,000

An attractive four-bedroom period home in a level and highly convenient location, just a short walk from the town centre...

Venn Way, Stoke Fleming

3 Bedroom Bungalow | Guide Price £430,000

A 3 bedroom detached bungalow set on a corner plot in a highly sought-after coastal village with garage, parking and gar...

Start Bay Park, Strete

3 Bedroom Detached Bungalow | Guide Price £450,000

A lovely detached bungalow on a good sized corner plot at the end of a cul de sac in the pretty South Hams coastal villa...

Marchand Petit (Dartmouth)

Hauley Road, Dartmouth, Devon, TQ6 9AA

01803 839 190

How much is your home worth?

Use our short form to request a valuation of your property.

Request a Valuation

Mortgage Calculator

Amount Borrowed: £
Total Amount Repayable: £
Total Monthly Payment: £
©2026 The Guild of Property Professionals. All rights reserved. Terms and Conditions | Privacy Policy | Cookie Policy | Complaints Policy | Members Login
The Guild of Property Professionals Trading Address: 121 Park Lane, London W1K 7AG. GPEA Limited. Registered in England & Wales.  Company No: 02819824.  Registered Office Address: 2 St. Stephen's Court, St. Stephen's Road, Bournemouth, Dorset, England, BH2 6LA.  VAT Registration No: 576 8795 61
Book a Property Valuation Update Cookies Preferences