Goodwin Lodge Ark Lane

Guide Price
£230,000

1 Bedroom Flat for sale in Deal

1 1 1
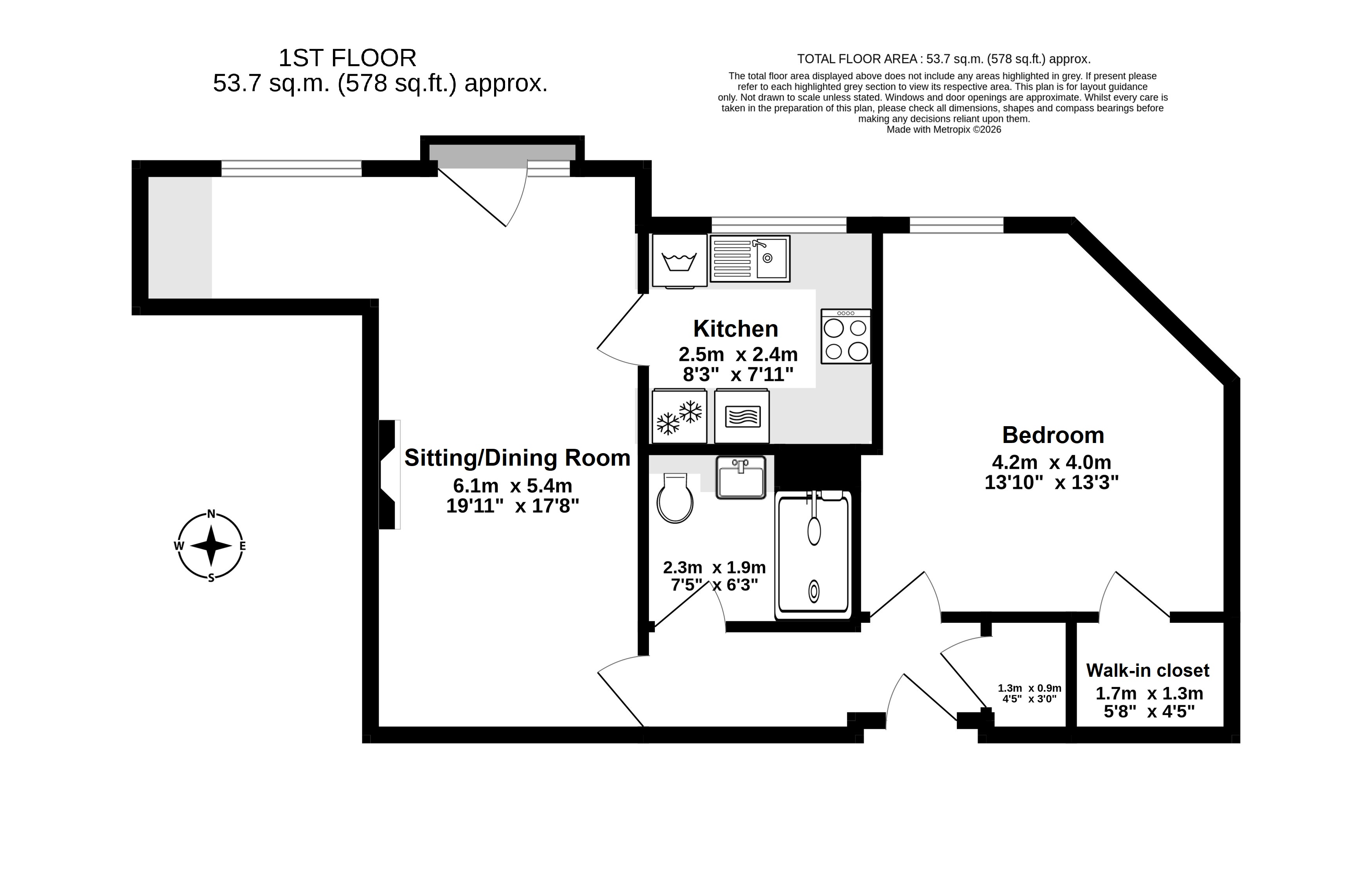
  • Retirement flat
  • First Floor
  • 1 Double Bedroom
  • Shower Room
  • Communal Lounge and Gardens
  • Parking Available

A larger than usual one bedroom first floor apartment, positioned to the rear of the building and enjoying pleasant views over the well maintained communal gardens, within the modern retirement development of Goodwin Lodge, Deal.

The apartment offers well-planned and spacious accommodation, with an L-shaped sitting room featuring a fireplace, Juliet balcony and clearly defined dining area. The fitted kitchen is thoughtfully arranged and finished in a contemporary style with integrated appliances.

The double bedroom is a generous size and benefits from a large built-in wardrobe/cupboard. A well-appointed shower room completes the accommodation and has been updated with a large walk in shower. There is also a large storage cupboard located off the entrance hall.

Goodwin Lodge offers comfortable retirement living in a highly convenient central location, within walking distance of Deal High Street, the mainline train station and the seafront. Residents also enjoy access to communal gardens, a residents’ lounge and parking available on a first-come, first-served basis.

///what3words
eager.text.regime

For full details, please download our property web brochure document.

Viewings: Strictly by appointment with the agents.

Identification checks: should a purchaser(s) have an offer accepted on a property marketed by Bright & Bright, they will need to undertake an identification check. This is done to meet our obligation under Anti Money Laundering Regulations (AML) and is a legal requirement. We use a specialist third party service to verify your identity. The cost of these checks is £30 inc. VAT per purchaser, which is paid in advance, when an offer is agreed and prior to a sales memorandum being issued. This charge is non-refundable under any circumstances.

A well presented, modern first floor retirement apartment in a purpose built development.

Important Information

  • This is a Leasehold property.
  • The annual cost for the ground rent on this property is £575
  • The annual service charges for this property is £3551
  • This Council Tax band for this property is: B
  • EPC Rating is B

Property Ref: BRB_BRB250271

Share:

Similar Properties

Mongeham Road Great Mongeham

3 Bedroom Terraced House | Guide Price £225,000

A mid terrace Victorian property situated in the heart of the village of Great Mongeham.

Mongeham Road Great Mongeham

2 Bedroom House | Guide Price £180,000

A well presented, two bedroom period property in the centre of Great Mongeham.

Triggers Row Deal Road

2 Bedroom Semi-Detached House | Guide Price £170,000

3 Triggers Row is situated within a conservation area in the heart of the sought after village of Northbourne, near Deal...

Victoria Road Deal

2 Bedroom Flat | Guide Price £245,000

Within one minute's walk of the seafront and beach, and occupying the top floor of a striking corner period building, th...

Dorset Court Lord Warden Avenue

2 Bedroom Flat | Guide Price £249,950

A light and stylishly presented second floor apartment with sea views.

Lord Warden Avenue Walmer

2 Bedroom Flat | Guide Price £250,000

A conveniently located and well presented first floor apartment with sea views.

Bright & Bright (Deal)

29 Victoria Road, Deal, Kent, CT14 7AS

01304 374071

How much is your home worth?

Use our short form to request a valuation of your property.

Request a Valuation

Mortgage Calculator

Amount Borrowed: £
Total Amount Repayable: £
Total Monthly Payment: £
©2026 The Guild of Property Professionals. All rights reserved. Terms and Conditions | Privacy Policy | Cookie Policy | Complaints Policy | Members Login
The Guild of Property Professionals Trading Address: 121 Park Lane, London W1K 7AG. GPEA Limited. Registered in England & Wales.  Company No: 02819824.  Registered Office Address: 2 St. Stephen's Court, St. Stephen's Road, Bournemouth, Dorset, England, BH2 6LA.  VAT Registration No: 576 8795 61
Book a Property Valuation Update Cookies Preferences