Archery Square, Walmer

Guide Price
£1,300,000

4 Bedroom Semi-Detached House for sale in Deal

4 4 3
  • Spacious Victorian villa Sought after location Close to the beach and amenities Beautifully presented Period features High quality finishes Versatile accommodation Large south facing garden Parkin...

An elegant stone built Victorian villa, beautifully positioned on the coveted south side of Archery Square, directly overlooking the Walmer Lawn Tennis and Croquet Club. This substantial semi-detached home offers a rare combination of grand proportions, exquisite period detailing and high-quality contemporary enhancements.

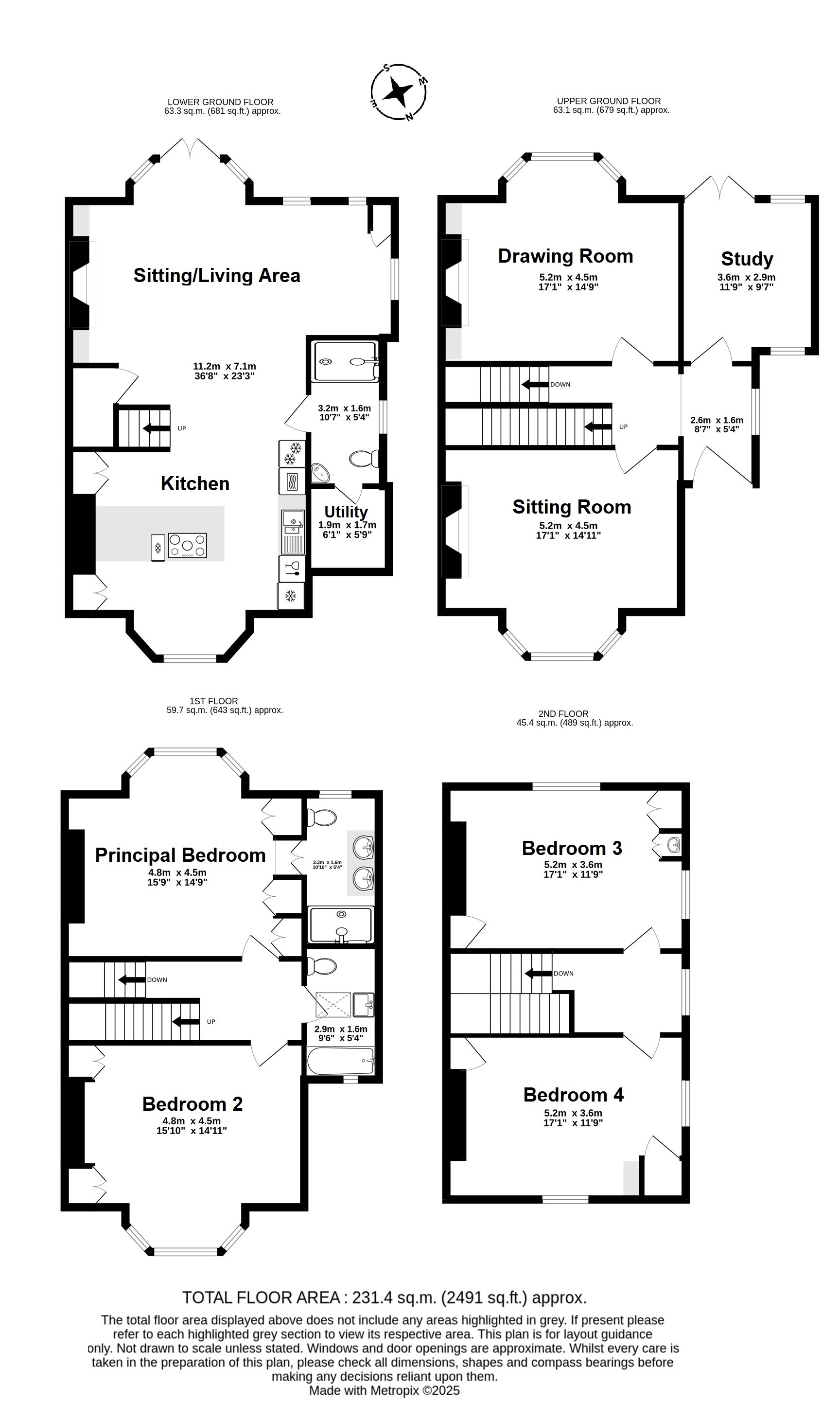
The raised ground floor features two impressive reception rooms, each with generous bay windows, fireplaces and high ceilings that create a sense of light and volume. To the front, a charming formal sitting room enjoys views over the croquet lawns and includes a bay window, original fireplace with wood-burning stove, ceiling rose, and detailed cornicing. To the rear, a second reception room overlooks the south facing garden, offering a peaceful and elegant space. A separate study, complete with ornate wrought iron staircase, provides direct access to the garden below. On the lower ground floor, the current owners have created an expansive open-plan kitchen and living area that blends classic style with modern functionality, perfect for family life and entertaining. The bespoke kitchen includes a range of German appliances, a five-plate induction hob and a ceiling mounted Elica extractor. An informal living area centres around a wood-burning stove, with hand-built alcove shelving and storage adding warmth and practicality. There is also a shower room and utility.

Upstairs, the principal bedroom is a standout space, calm, spacious and bathed in light, featuring a tall bay window that frames views over the rear garden and beyond. Its en-suite shower room is beautifully appointed with Carrera marble, bespoke cabinetry, heated towel rails, Perrin & Rowe shower, Lefroy Brooks and Barber Wilson fittings. A second double bedroom at the front enjoys views across the croquet lawns and is equally impressive. The family bathroom mirrors the home’s exacting standards, with Carrera marble tiling, a Fired Earth pedestal basin and a bath with overhead shower beneath a Velux skylight, which floods the room with natural light.

The second floor is ideal for children or guests, offering two further generous double bedrooms, both with wonderful views to the front and rear. Throughout the house, original features have been carefully preserved and restored, including leaded stained glass, sash windows, panelled doors, decorative picture rails, intricate plaster cornices, and ceiling roses. There are three working fireplaces in total, two with wood-burning stoves and one open, providing comfort and charm in the colder months. George Barnsdale timber framed windows and doors have been fitted in the study, and underfloor heating has been installed in the kitchen/living area and in all three bathrooms. Original cast iron radiators have also been restored and remain in place. The majority of the property benefits from double glazing.

OUTSIDE

Number 7 is set well back from the road behind a low stone wall and formal front garden. Original stone steps lead to an imposing entrance with a beautifully preserved front door featuring stained glass panels. To the rear, the large south facing garden is mainly laid to lawn with a generous paved terrace adjoining the house, accessible from both the raised and lower ground floors. A climbing jasmine softens the rear elevation and frames the bay windows to charming effect. Mature planting lines the garden path leading to off-street parking for 2 vehicles, accessed via a private rear track. A brick wall borders the right hand boundary, adding to the sense of privacy.

This is a truly special home, rich in character, beautifully appointed and offering an enviable lifestyle in one of Walmer’s most desirable settings.

///what3words

narrow.loved.parks

For full details, please download our property web brochure document.

Viewings: Strictly by appointment with the agents.

Identification checks: should a purchaser(s) have an offer accepted on a property marketed by Bright & Bright, they will need to undertake an identification check. This is done to meet our obligation under Anti Money Laundering Regulations (AML) and is a legal requirement. We use a specialist third party service to verify your identity. The cost of these checks is £30 inc. VAT per purchaser, which is paid in advance, when an offer is agreed and prior to a sales memorandum being issued. This charge is non-refundable under any circumstances.

Important Information

  • This is a Freehold property.
  • This Council Tax band for this property is: F
  • EPC Rating is D

Property Ref: BRB250224

Share:

Similar Properties

The Beach, Walmer

5 Bedroom Semi-Detached House | Guide Price £1,300,000

An elegant and beautifully presented period property, in a sought after location, with direct sea views.

Mill Road, Deal

4 Bedroom Detached House | Offers in excess of £1,150,000

A beautifully presented detached Edwardian home, situated opposite Victoria Park, convenient for the town centre, statio...

Mongeham Road, Mongeham

4 Bedroom Detached House | Guide Price £1,000,000

The Vale is a detached freehold period property on substantial plot circa 1.11 acres with potential to extend/develop.

Middle Deal Road, Deal

7 Bedroom House | Guide Price £1,650,000

A beautifully renovated Grade II listed Georgian home and coach house, set in landscaped gardens

Bright & Bright (Deal)

29 Victoria Road, Deal, Kent, CT14 7AS

01304 374071

How much is your home worth?

Use our short form to request a valuation of your property.

Request a Valuation

Mortgage Calculator

Amount Borrowed: £
Total Amount Repayable: £
Total Monthly Payment: £
©2026 The Guild of Property Professionals. All rights reserved. Terms and Conditions | Privacy Policy | Cookie Policy | Complaints Policy | Members Login
The Guild of Property Professionals Trading Address: 121 Park Lane, London W1K 7AG. GPEA Limited. Registered in England & Wales.  Company No: 02819824.  Registered Office Address: 2 St. Stephen's Court, St. Stephen's Road, Bournemouth, Dorset, England, BH2 6LA.  VAT Registration No: 576 8795 61
Book a Property Valuation Update Cookies Preferences