High Street, Delabole, PL33 9AE

£300,000

3 Bedroom Detached House for sale in Delabole

1 3 2
  • Air Source Heat Pump
  • 3 Double Bedrooms, One En Suite
  • Downstairs Cloakroom
  • Dual Aspect L-Shaped Living/Kitchen/Dining Room
  • Spacious and Sunny Rear Garden
  • Ready to Move Into
  • Modern Fitted Bathrooms
  • Modern Fitted Kitchen with Built-in Appliances
  • No Onward Chain

An immaculately presented ready to move into detached home within this popular North Cornwall village with generous rear garden.  Freehold.  Council Tax Band TBC.  EPC rating C.

 

Cole Rayment & White are delighted to present 46 High Street to the market which is a completely renovated detached family home with 3 good size bedrooms in the centre of this popular North Cornwall village.  This property has undergone complete renovation and modernisation from our current vendors and now consists of spacious entrance hall with downstairs cloakroom, L-shaped dual aspect kitchen/living/dining room with patio doors on to the good size rear garden, 3 good size bedrooms on the first floor, one of which is en suite and a family bathroom.  The property benefits from UPVC double glazing throughout with the exception of 1 double glazed Velux window and an air source heat pump with underfloor heating throughout.  

 

Offered for sale with no onward chain, an early viewing appointment is thoroughly recommended to avoid disappointment.

 

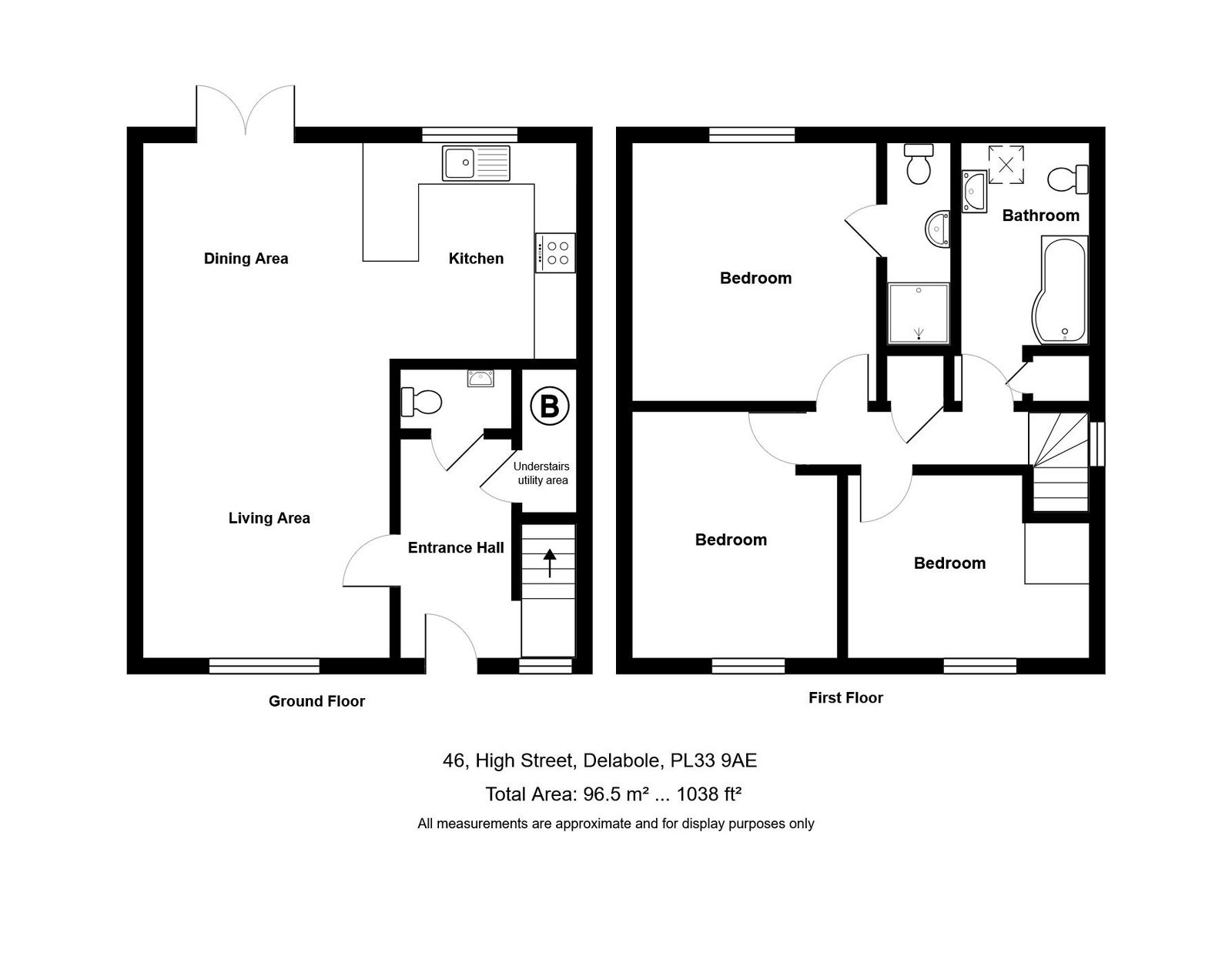
The Accommodation comprises with all measurements being approximate:

 

UPVC Double Glazed Entrance Door with UPVC double glazed windows to side leading to

 

Entrance Hall

Spacious entrance hall with engineering oak flooring, underfloor heating, understairs storage cupboard with space and plumbing for washing machine, cupboard also housing  hot water cylinder.

 

Cloakroom

Low level W.C., wash hand basin with storage cupboard below and tiled splashback.

 

L-Shaped Open Plan Living/Kitchen/Dining Room - 3.5m min, 6.2m max x 7.4m max, 3.5m min

Stunning dual aspect room with UPVC double glazed window to front and UPVC double glazed patio doors and further window to rear overlooking the generous rear garden.  Fitted kitchen comprising superb range of wall and base cupboards with drawers and worktops over, integral electric Bosch oven with 4 ring Bosch hob and extractor fan over, one and a half bowl stainless steel sink with mixer tap and drainer, integral dishwasher, integral fridge/freezer, feature breakfast bar with wood panelling below, underfloor heating, engineered oak flooring.  

 

First Floor

 

Landing

UPVC double glazed window to side.  Loft hatch with partly boarded loft.  Storage cupboard.

 

Family Bathroom

A superb modern fitted suite comprising spacious bath with rainfall showerhead over, inset shelf, low level W.C., wash hand basin with tiled splashback, fitted storage cupboards with shelving below, light up mirror, large heated towel rail, double glazed Velux window with fitted blind.  Airing cupboard with shelves.

 

Bedroom 3 - 3.5m x 2.8m

UPVC double glazed window to front, underfloor heating.

 

Bedroom 2 - 3.7m x 2.9m

UPVC double glazed window to front, underfloor heating.

 

Master Bedroom - 3.9m x 3.5m

UPVC double glazed window overlooking rear garden, underfloor heating, sliding door to

 

En Suite

Superb modern fitted suite with fully tiled shower cubicle with rainfall shower head, inset shelf, low level W.C., wash hand basin with tiled splashback and vanity storage cupboard with fitted light up mirror above, heated towel rail.  

 

Outside

At the front a chipping path leads to front door with patio area and attractive planter, outside lighting.  There is a lovely size rear garden with patio area immediately from the kitchen/dining room, perfect for entertaining.  Attractive gravelled steps with sleepers leading to a large area laid to lawn with stone wall and hedge at the rear, timber fencing to side, built-in planters and shrubs to side.  Air source heat pump, outside tap, gate to side.  No. 46 and No. 48 both benefit from a right of way providing access to the rear of the property.

 

Services

Mains electric, water and drainage are connected.  Heating is via an air source heat pump.

 

What3words:   ///spare.picture.bookshelf

 

Please contact our Camelford Office for further details.

Important Information

  • This is a Freehold property.

Property Ref: 1194886

Share:

Similar Properties

The Sidings, Pengelly, Delabole, PL33 9AX

4 Bedroom Detached House | Offers Over £300,000

A very pleasant 4 good size bedroom detached house with large garage and low maintenance rear garden.  Freehold.  Counci...

Summer Field Walk, Wadebridge PL27

3 Bedroom End of Terrace House | Guide Price £300,000

A modern 3 bedroom, one en suite end terraced house with very pleasant enclosed rear garden and parking within a short s...

Trevanion Road, Wadebridge, PL27 7NZ

3 Bedroom Terraced House | £299,950

Situated just a short walk from the centre of Wadebridge is this 3 bedroom gas centrally heated townhouse with pleasant...

Eddystone Court, Wadebridge, PL27

2 Bedroom Apartment | £305,000

A light and spacious 2 bedroom contemporary apartment with balconies located in the centre of town.  Leasehold.  Council...

Valley View, St Teath PL30

3 Bedroom Bungalow | £305,000

A very pleasant 3 double bedroom detached bungalow with private low maintenance sunny rear garden.  Freehold.  Council T...

Oak View Road, Wadebridge, PL27

3 Bedroom End of Terrace House | £310,000

A beautifully presented 3 bedroom end terraced family home situated in this popular part of Wadebridge with parking and...

Cole Rayment & White (Wadebridge)

Wadebridge, Cornwall, PL27 7DG

01208 813595

How much is your home worth?

Use our short form to request a valuation of your property.

Request a Valuation

Mortgage Calculator

Amount Borrowed: £
Total Amount Repayable: £
Total Monthly Payment: £
©2026 The Guild of Property Professionals. All rights reserved. Terms and Conditions | Privacy Policy | Cookie Policy | Complaints Policy | Members Login
The Guild of Property Professionals Trading Address: 121 Park Lane, London W1K 7AG. GPEA Limited. Registered in England & Wales.  Company No: 02819824.  Registered Office Address: 2 St. Stephen's Court, St. Stephen's Road, Bournemouth, Dorset, England, BH2 6LA.  VAT Registration No: 576 8795 61
Book a Property Valuation Update Cookies Preferences