Nutwood Court, Darley Abbey, Derby

Offers in region of
£249,950
SSTC
This property listing is now SSTC

2 Bedroom Apartment for sale in Derby

1 2 2
  • Beautiful Ground Floor Apartment with Patio Garden
  • Convenient Cul-de-Sac Location - Luxury Fittings & Specifications
  • Under Floor Heating & Double Glazing
  • Open Plan Living Lounge/Dining Room/Kitchen
  • Useful Utility Storage Cupboard
  • Main Bedroom One with En-suite
  • Double Bedroom Two & Bathroom with Shower
  • Patio Garden with Indian Stone
  • Allocated Car Parking & ( Visitor spaces )
  • Communal Landscaped Courtyard Garden with Seating Areas, Planting & Cycle Bike Stand

GROUND FLOOR APARTMENT WITH PATIO GARDEN - Luxury 2023 built two double bedroom, two bathroom apartment with French doors to patio garden. An exclusive development of just seven homes.

The apartment is set in a convenient cul-de-sac location, providing easy access to the picturesque Darley Park and Allestree Park, making it a perfect retreat for nature lovers and those who enjoy outdoor activities. Additionally, the vibrant city centre is just a short distance away, ensuring that all essential amenities and services are within reach. Regular bus services close by and easy access to Derby Railway Station.

A lovely position close to Nutwood Nature Reserve and Darley Abbey Mills.

The Location - Darley Abbey Village is situated approximately 1 mile north from Derby City centre and offers a historic church, two public houses, two cafes and a regular bus service operates along Duffield Road (A6). The beautiful Darley Park which borders Darley Abbey village offers a cafe, cricket ground, children's play area, canoe club and very pleasant walks along the banks of the River Derwent. Derwent Valley Mills including a fine dining restaurant and popular wine bars. It also has a nature reserve known as Nutwood. This property is within the catchment area for Ecclesbourne Secondary School situated in Duffield. Excellent transport links are nearby with fast access on to the A6, A38, A50 and A52 leading to the M1 motorway.

Accommodation -

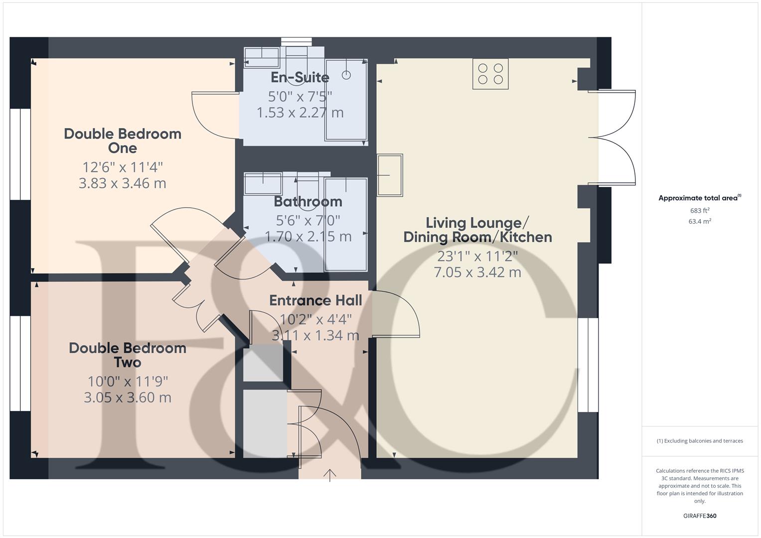
Secure Communal Entrance Hall - With secure door, tiled flooring, spotlights to ceiling, large inset doormat, door giving access to communal gardens, wall lights and door giving access to apartment.

Entrance Hall To Apartment - 3.11 x 1.34 (10'2" x 4'4") - With tiled effect flooring, spotlights to ceiling, smoke alarm, underfloor heating, TV intercom monitor and built-in storage cupboard.

Open Plan Living Lounge/Dining Room/Kitchen - 7.05 x 3.42 (23'1" x 11'2") -

Lounge Area - With tiled effect flooring with underfloor heating, attractive panelling to walls, spotlights to ceiling, double glazed window to front with fitted blind and open space leading into dining area.

Dining Area - With matching tiled flooring with underfloor heating, spotlights to ceiling.

Kitchen Area - An excellent fitted kitchen with one and a half stainless sink unit with mixer tap, wall and base fitted units with attractive matching worktops, built-in four ring induction hob with concealed extractor hood, built-in electric fan assisted oven, integrated fridge/freezer, integrate dishwasher, matching tiled effect floor with underfloor heating, concealed worktop lights, display lighting, spotlights to ceiling and double glazed French doors opening onto patio garden.

Useful Utility Storage Cupboard - Providing space for tumble dryer, plumbing for automatic washing machine, matching tiled effect flooring, light and double opening doors.

Double Bedroom One - 3.83 x 3.46 (12'6" x 11'4") - With underfloor heating, spotlights to ceiling, views over the communal gardens, double gazed window with fitted blind and internal door with chrome fittings.

En-Suite - 2.27 x 1.53 (7'5" x 5'0") - With walk-in double shower with chrome fittings including large, rainfall shower head, fitted washbasin with fitted base cupboard underneath, low level WC, tiled splashbacks, tile flooring with underfloor heating, additional heated chrome towel rail/radiator, spotlights to ceiling, extractor fan, wall mounted illuminated mirror, shaver point, double glazed obscure window to side with tiled sill and internal door with chrome fittings.

Double Bedroom Two - 3.60 x 3.05 (11'9" x 10'0") - With underfloor heating, wardrobes negotiable on sale, views over communal gardens, double glazed window to rear with fitted blinds and internal door with chrome fittings.

Bathroom - 2.15 x 1.70 (7'0" x 5'6") - With bath with chrome fittings including chrome shower over with shower screen door, fitted wash basin with chrome fittings, low level WC, tiled splash backs, tiled flooring with underfloor heating, additional heated chrome towel rail/radiator, spotlights to ceiling, extractor fan, shaver point, illuminated wall mounted mirror and internal door with chrome fittings.

Patio Garden - This particular apartment benefits from its own patio garden with Indian stone paving and accessed from the French doors in the open plan living lounge/dining room/kitchen.

Communal Gardens - To the rear of the apartment is a landscaped communal garden enjoying attractive Indian stone patios and pathways, a varied selection of shrubs and bedding plants, cycle bike stands and enclosed by fencing.

Allocated Car Parking - The apartment benefits from one allocated car parking space. (Visitor spaces).

Tenure - Leasehold - 999 years & Service Charge �110 per month.

Council Tax Band - C - Derby City

Property Ref: 10877_34166282

Share:

Similar Properties

Nightingale Close, Lea Bridge, Matlock, Derbyshire

2 Bedroom Semi-Detached House | Offers in region of £249,950

OPEN VIEWS - Nestled in the charming cul-de-sac of Nightingale Close in Lea Bridge, Matlock, this well-presented semi-de...

Tamworth Street, Duffield, Belper, Derbyshire

2 Bedroom End of Terrace House | Offers in region of £249,950

Nestled in the charming village of Duffield, this highly appealing end-terraced cottage on Tamworth Street offers a deli...

Appletree Court, Duffield, Belper, Derbyshire

2 Bedroom Apartment | Offers in region of £249,950

A superb first floor, two double bedroom apartment, occupying a prime location within the sought after village of Duffie...

Broadlands, South Normanton, Alfreton

3 Bedroom Detached House | £250,000

Located in the popular cul-de-sac of Broadlands, South Normanton, this charming three-bedroom house offers a delightful...

Heanor Road, Smalley, Derbyshire

2 Bedroom Detached Bungalow | Offers in region of £250,000

Located in the sought after village of village of Smalley, this delightful detached bungalow on Heanor Road presents an...

Church Road, Quarndon, Derby

2 Bedroom House | Offers Over £250,000

ECCLESBOURNE SCHOOL CATCHMENT AREA - A traditional, end terrace cottage located in the highly desirable village of Quarn...

Fletcher & Company (Duffield)

Duffield, Derbyshire, DE56 4GD

01332 843390

How much is your home worth?

Use our short form to request a valuation of your property.

Request a Valuation

Mortgage Calculator

Amount Borrowed: £
Total Amount Repayable: £
Total Monthly Payment: £
©2025 The Guild of Property Professionals. All rights reserved. Terms and Conditions | Privacy Policy | Cookie Policy | Complaints Policy | Members Login
The Guild of Property Professionals Trading Address: 121 Park Lane, London W1K 7AG. GPEA Limited. Registered in England & Wales.  Company No: 02819824.  Registered Office Address: 2 St. Stephen's Court, St. Stephen's Road, Bournemouth, Dorset, England, BH2 6LA.  VAT Registration No: 576 8795 61
Book a Property Valuation Update Cookies Preferences