Westley Crescent, Little Eaton, Derby

Offers Over
£399,950
SSTC
This property listing is now SSTC

5 Bedroom Detached House for sale in Derby

2 5 2
  • Highly Appealing Family Detached Home
  • Ecclesbourne School Catchment Area
  • Pleasant Cul-de-Sac Location - Close to Little Eaton Amenities & School Bus Stop
  • Spacious Lounge
  • Fitted Kitchen & Dining/Family Room
  • Home Office/Studio
  • Four/Five Bedrooms & Two Bathrooms
  • Pleasant Gardens
  • Block Paved Driveway & Garage
  • Utility Room & Cloakroom

ECCLESBOURNE SCHOOL CATCHMENT AREA - Spacious four/five bedroom family detached property, occupying this sought after cul-de-sac, located on the edge of the very popular village of Little Eaton.

The Location - Little Eaton is a convenient and sought after village location situated approximately 5 miles north of Derby City centre and offers a good range of local amenities to include Co-Op Store, newsagent, butcher, chemist, public houses, historic church and regular bus services. Little Eaton is well known for its Village Primary School and is within the noted Ecclesbourne Secondary School catchment area.

Local recreational facilities are on St Peter's Park to include football, cricket, tennis courts, green bowls, children's playground and leisure pavilion. For those who enjoy the outdoor pursuits the nearby Drum Hill and Bluebell Woods provide some delightful scenery and walks.

Transport links close by include easy access on to the A6, A38, A50 leading to the M1 motorway.

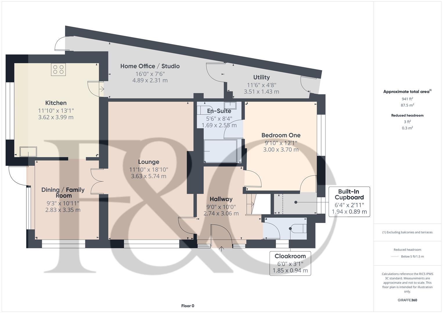
Accommodation -

Ground Floor -

Entrance Hall - 3.06 x 2.74 (10'0" x 8'11") - With double glazed door, radiator and staircase leading to first floor.

Cloakroom - 1.85 x 0.94 (6'0" x 3'1") - With low level WC, wash basin, concealed central heating boiler, radiator and double glazed window.

Lounge - 5.74 x 3.63 (18'9" x 11'10") - With wall mounted electric fire, radiator and double glazed window.

Dining/Family Room - 3.35 x 2.83 (10'11" x 9'3") - With radiator, two double glazed windows, open square archway leading into kitchen and double glazed door with access to garden.

Kitchen - 3.99 x 3.62 (13'1" x 11'10") - With inset single sink unit with Quooker tap, wall and base units with matching worktops, built-in induction hob with concealed extractor hood, built-in electric fan assisted oven, integrated fridge/freezer, plumbing for dishwasher, tiled effect flooring, radiator, spotlights to ceiling, matching fitted island again with matching worktops and with fitted base cupboards underneath and double glazed window overlooking rear garden.

Utility - 3.51 x 1.43 (11'6" x 4'8") - With tiled effect flooring, plumbing for automatic washing machine and double glazed front access door.

Home Office/Studio - 4.89 x 2.31 (16'0" x 7'6") - With radiator, tiled effect floor and double glazed door giving access to garden.

Bedroom One - 3.70 x 3.00 (12'1" x 9'10") - With radiator, double glazed window to front and built-in storage cupboard.

En-Suite Bathroom - 2.55 x 1.69 (8'4" x 5'6") - With corner spa bath with shower over with shower screen door, fitted wash basin, low level WC, tiled splashbacks, heated chrome towel rail/radiator, extractor fan and internal panelled door.

First Floor Landing/Study Area - 5.09 x 2.92 (16'8" x 9'6") - With two double glazed windows and built-in storage cupboard.

Bedroom Two - 3.61 x 3.13 (11'10" x 10'3") - With built-in wardrobes with cupboards above, built-in chest of drawers, radiator, double glazed window to rear and internal panelled door.

Bedroom Three - 2.81 x 2.49 (9'2" x 8'2") - With built-in wardrobes with cupboards above, radiator, double glazed window to rear, double glazed window to front, far-reaching views and internal panelled door.

Family Bathroom/Shower Room - 2.74 x 1.96 (8'11" x 6'5") - With double shower cubicle with shower, fitted wash basin, low level WC, tile splashbacks, tiled effect flooring, heated towel rail/radiator, extractor fan, double glazed window to rear and internal panelled door.

First Floor Landing - 3.64 x 1.73 x 1.13 x 0.77 (11'11" x 5'8" x 3'8" x - With three built-in storage cupboards providing good storage.

Bedroom Four - 3.67 x 4.02 (12'0" x 13'2") - With radiator, double glazed window to rear and internal panelled door.

Bedroom Five - 3.35 x 2.86 (10'11" x 9'4") - With radiator, double glazed window to rear and internal panelled door.

Front Garden - The property is laid to lawn with shrubs, slate chippings and patio area.

Side Garden - The garden is laid to lawn with pathway leading to the entrance door and side pathway.

Rear Garden - The garden is laid to lawn with paved pathway and patio.

Driveway - A block paved driveway provides car standing spaces.

Brick Detached Garage -

Council Tax - E - Erewash

Property Ref: 34265322

Share:

Similar Properties

The Plain, Brailsford, Ashbourne

3 Bedroom Detached Bungalow | Offers in region of £399,950

Nestled in the charming village of Brailsford, Ashbourne, this highly appealing three bedroom detached bungalow offers a...

The Farmhouse, Brailsford, Ashbourne

3 Bedroom Semi-Detached House | £399,950

The Farmhouse is a charming THREE double bedroom and TWO bathroom Grade II listed semi-detached cottage that exudes char...

Church Lane, Horsley Woodhouse, Derbyshire

3 Bedroom Semi-Detached House | Offers in region of £399,950

This is a stunning, extended, three bedroom, semi detached residence occupying a fabulous location in the popular villag...

Devonshire Drive, Duffield, Belper, Derbyshire

3 Bedroom Semi-Detached House | Offers Over £400,000

ECCLESBOURNE SCHOOL CATCHMENT AREA - This immaculate three bedroom semi-detached home benefits from a south-facing garde...

Yew Tree Cottage, Hognaston, Ashbourne

2 Bedroom Detached House | Offers Over £400,000

Located in the charming village of Hognaston, is this lovely two-bedroom, two-bathroom detached cottage with the benefit...

Church Close, Smalley, Ilkeston

5 Bedroom Detached House | £410,000

Nestled in the charming village of Smalley, this well-proportioned detached family home offers a perfect blend of comfor...

Fletcher & Company (Duffield)

Duffield, Derbyshire, DE56 4GD

01332 843390

How much is your home worth?

Use our short form to request a valuation of your property.

Request a Valuation

Mortgage Calculator

Amount Borrowed: £
Total Amount Repayable: £
Total Monthly Payment: £
©2026 The Guild of Property Professionals. All rights reserved. Terms and Conditions | Privacy Policy | Cookie Policy | Complaints Policy | Members Login
The Guild of Property Professionals Trading Address: 121 Park Lane, London W1K 7AG. GPEA Limited. Registered in England & Wales.  Company No: 02819824.  Registered Office Address: 2 St. Stephen's Court, St. Stephen's Road, Bournemouth, Dorset, England, BH2 6LA.  VAT Registration No: 576 8795 61
Book a Property Valuation Update Cookies Preferences