The Old Brewery, Duffield Road, Little Eaton

Guide Price
£350,000

House for sale in Derby

  • Detached Stone Building - Characterful Residential Conversion Opportunity
  • Planning Permission and Listed Building Consent For Two Maisonettes
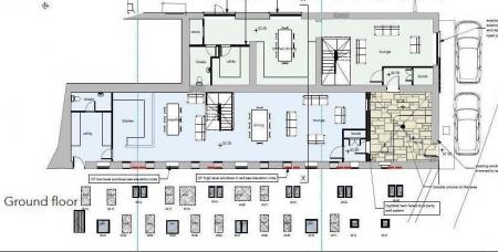
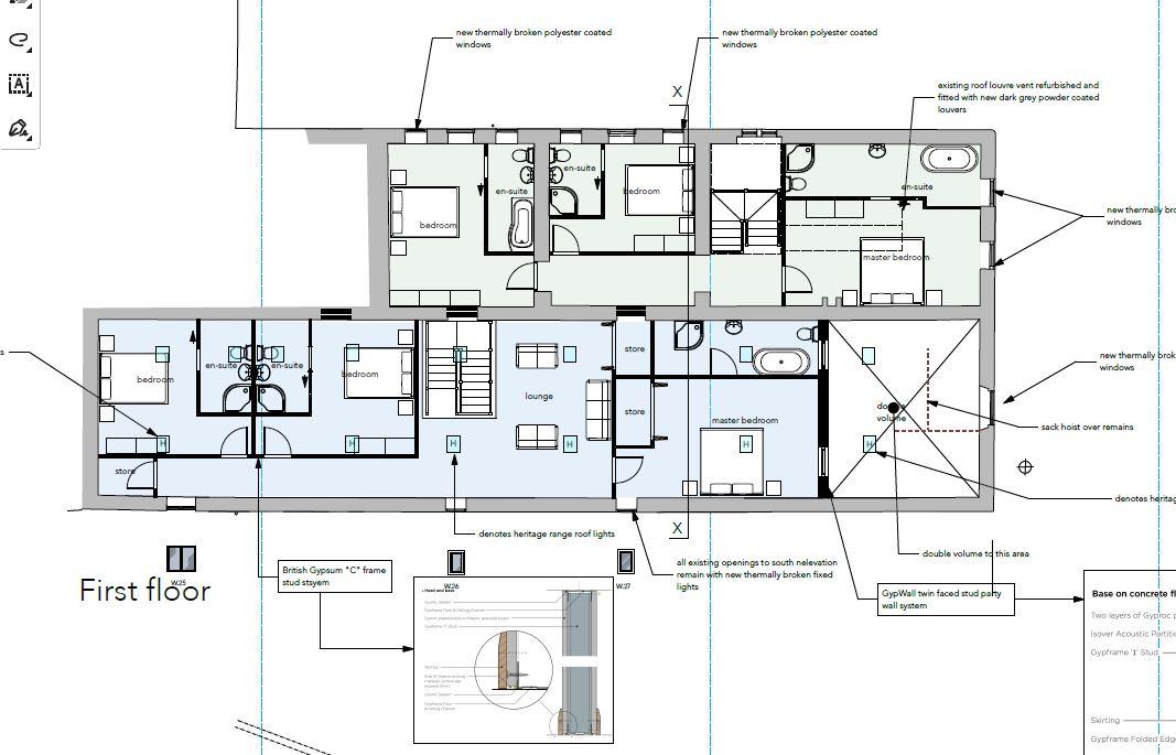
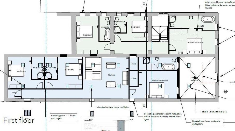
  • North Unit is 2,038 sq. ft & 189.33 sq. m
  • South Unit is 2,625 sq. ft & 243.86 sq. m
  • Prime Position in Little Eaton - Fronting Duffield Road
  • Character Features
  • Ecclesbourne School Catchment Area
  • Erewash Borough Council Planning - ERE 0625/0005
  • Listed Building Consent - ERE 0625/0006
  • Former Brewery Premises - No Chain Involved - Total 4,922 sq. ft ( 457.25 sq. m )

ECCLESBOURNE SCHOOL CATCHMENT AREA - A rare opportunity to purchase a Grade II listed stone detached building with planning permission and listed building consent for two maisonettes - Total 4,922 sq. ft ( 457.25 sq. m )

Erewash Borough Council Planning - ERE 0625/0005 and for Listed Building Consent ERE 0625/0006

North Unit is 2,038 sq. ft & 189.33 sq. m - South Unit is 2,625 sq. ft & 243.86 sq. m

The Location - The location is convenient for both Duffield and Little Eaton. Little Eaton village is also easily accessible from this property providing local shops, reputable Village Primary School, historic church, public houses, regular bus services and noted village park. The village of Duffield provides an excellent range of amenities including a varied selection of shops and schools including the Meadows and William Gilbert Primary Schools and the noted Ecclesbourne Secondary School. There is a regular train service into Derby City centre which lies some five miles to the south of the village. Local recreational facilities within the village include squash, tennis, cricket, football, rugby and the noted Chevin golf course. A further point to note, is that the Derwent Valley in which the village of Duffield nestles is one of the few world heritage sites.

Tenure - Freehold

Services - All mains services are connected.

Epc - C-65 valid until 11th January 2032

Business Rates - The rateable value is ?9,600 from 1st April 2026. The property is listed so no empty rates are payable.

Drawings -

Floorplan -

Property Ref: 34542894

Share:

Similar Properties

Stoney Steps, Belper, Derbyshire

3 Bedroom Detached House | Offers in region of £350,000

Nestled in the charming area of Stoney Steps, this delightful detached stone cottage with garden room/home office offers...

Canon's Walk, Darley Abbey, Derby

3 Bedroom Detached House | Guide Price £350,000

ECCLESBOURNE SCHOOL CATCHMENT AREA - Superbly positioned and extended three bedroom detached residence occupying a pleas...

Cross Keys Mews, Ashbourne Road, Turnditch

3 Bedroom House | From £350,000

A stunning, high specification THREE DOUBLE bedroom mews house, offering spacious and beautifully appointed accommodatio...

Bank Buildings, Milford, Belper, Derbyshire

2 Bedroom Cottage | £355,000

Nestled in the charming area of Bank Buildings in Milford, this delightful stone double-fronted cottage with garden room...

Church Street, Holloway, Matlock, Derbyshire

4 Bedroom Detached House | £360,000

Nestled in the charming village of Holloway, Matlock, this four bedroom detached house with double garage offers a perfe...

Wharfedale Close, Allestree, Derby

3 Bedroom Detached House | Offers in region of £365,000

ECCLESBOURNE SCHOOL CATCHMENT AREA - A beautifully presented detached home with LARGE GARDEN. The property boasts two sp...

Fletcher & Company (Duffield)

Duffield, Derbyshire, DE56 4GD

01332 843390

How much is your home worth?

Use our short form to request a valuation of your property.

Request a Valuation

Mortgage Calculator

Amount Borrowed: £
Total Amount Repayable: £
Total Monthly Payment: £
©2026 The Guild of Property Professionals. All rights reserved. Terms and Conditions | Privacy Policy | Cookie Policy | Complaints Policy | Members Login
The Guild of Property Professionals Trading Address: 121 Park Lane, London W1K 7AG. GPEA Limited. Registered in England & Wales.  Company No: 02819824.  Registered Office Address: 2 St. Stephen's Court, St. Stephen's Road, Bournemouth, Dorset, England, BH2 6LA.  VAT Registration No: 576 8795 61
Book a Property Valuation Update Cookies Preferences