Old Mill Mews, Repton

£635,000

3 Bedroom Detached House for sale in Derby

2 3 2
  • Exclusive Development by Alexander Bruce Estates - Available End Of 2026
  • Sought After Village Location In Repton
  • Entrance Hall and Fitted Guest Cloakroom
  • Lounge with Feature Fireplace
  • Open Plan Living Kitchen with Utility Room off
  • Master Bedroom with Ensuite Shower Room
  • Two Further Bedrooms and Bathroom
  • Walled Rear Garden
  • Drive and Garage
  • Rarity on the Market

Fletcher & Company are delighted to welcome Alexander Bruce Estates to the village of Repton with another prime courtyard development of 6 homes which are under construction and available for early reservation / purchase. Alexander Bruce have an envious reputation for developing within conservation areas and restoring listed buildings. They are a multi-award winning well-renowned developer of prestigious courtyards and the availability of this latest courtyard is much awaited.

Located on the fringe of Repton Village abutting the open countryside the courtyard has been designed sensitively to provide managed car parking arrangements. and having walled gardens which benefit from well thought out landscaping taking advantage of the suns aspect.

Plot 4 occupies a quiet plot tucked away towards the rear of this exclusive courtyard. Beautifully appointed accommodation with oak doors with quality ironmongery throughout and crafted window furniture also benefits from brand new double glazing and French doors and comprises entrance hall, fitted guest cloakroom, dual aspect lounge with feature fireplace, open plan living kitchen with lounge/dining area, high spec fitted kitchen and separate utility room. The property benefits from a driveway and garage.

The property also has a 10 year warranty.

THIS PLOT IS AVAILABLE ON A PRESALE/TURNKEY BASIS. EARLY RESERVATION WELCOMED. PERSONALISE FIXTURES AND FITTINGS WHERE POSSIBLE.

The Location - The village of Repton is famous for its historic public school as well as the feeder school of Repton Preparatory in neighbouring Milton. The village itself has some charming, period architecture and an excellent range of amenities including extremely popular pubs/restaurants, village shop, butchers, gym/swimming pool, Springfield primary and St Wystan's school. The neighbouring village of Willington combines to offer a further range of amenities including canal side walks along the Trent and Mersey canal, further popular pubs as well as a train station and a further range of amenities. Repton is highly convenient for easy access to Derby, Nottingham and Burton upon Trent. Major employers in the area include Rolls Royce, Toyota and JCB. There are excellent major transport links nearby including the A50 and A38 as well as easy access to East Midlands airport.

Accommodation -

Ground Floor - With air source heat pump providing underfloor heating throughout the ground floor.

Entrance Hall - With a choice of oak flooring, tiling or LVT flooring and an oak staircase.

Fitted Guest Cloakroom - With Villeroy and Boch sanitaryware and ceramic tiling.

Living Room - 5.94m x 3.58m (19'6 x 11'9") - With two oak beams and woodburner.

Living Kitchen/Dining Room - 7.24m x 5.18m (23'9" x 17'0") - With Owen Williams kitchen, quartz worktops and ceramic tiling.

Utility Room - 2.36mx x1.60m (7'9x x5'3") -

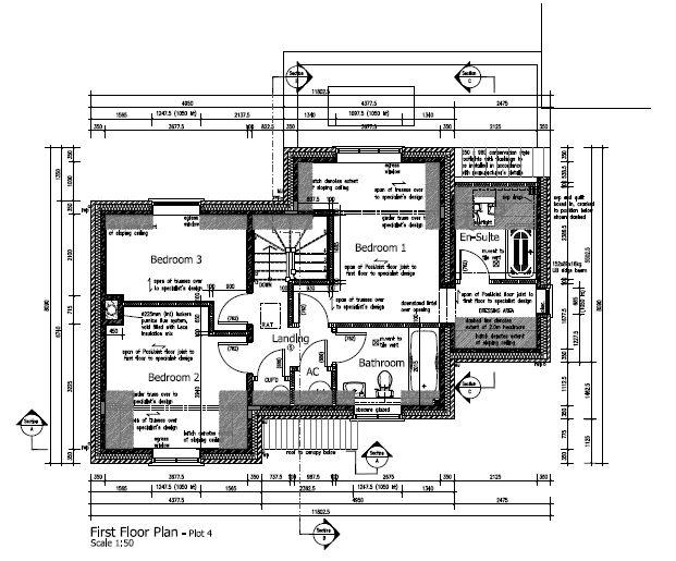
First Floor Landing - With hot water radiators throughout the first floor accommodation.

Bedroom One - 3.96m x 3.58m (13'0" x 11'9") -

En-Suite - 2.21m x 2.06m (7'3" x 6'9") - With Villeroy and Boch sanitaryware and ceramic tiling.

Bedroom Two - 3.66m x 3.58m (12'0" x 11'9") -

Bedroom Three - 3.66m x 2.13m (12'0" x 7'0") -

Bathroom - 2.67m x 1.98m (8'9" x 6'6") - With Villeroy and Boch sanitaryware and ceramic tiling.

Outside - With walled garden to rear with paved patio, driveway, car port and garage. The property also benefits from clay roof tiles and metal rainwater goods.

Garage - 5.94m x 3.05m (19'6" x 10'0") -

Council Tax Band -

Estate Charge - The property is subject an estate charge for the upkeep/maintenance of the communal courtyard. Amount to be confirmed.

Property Ref: 34365885

Share:

Similar Properties

Old Mill Mews, Repton

3 Bedroom Detached House | £635,000

Fletcher & Company are delighted to welcome Alexander Bruce Estates to the village of Repton with another prime courtyar...

Knights Place, Burton-On-Trent

5 Bedroom Detached House | Offers in region of £625,000

A fabulous, five double bedroom, modern, detached residence occupying an exclusive cul-de-sac location off Brizlincote L...

Mercia Marina, Willington, DE65 6DW

3 Bedroom Apartment | £600,000

This breathtaking three-bedroom penthouse apartment is ideally located with the benefit of having dual aspect views prov...

Woodshop Lane, Swarkestone, Derby

4 Bedroom Detached House | £645,000

A fabulous, four bedroom, detached residence occupying a sizeable plot measuring approximately 1/5 of an acre in the hig...

Mill Hill, Repton

4 Bedroom Detached House | £649,950

Fletcher & Company are delighted to welcome Alexander Bruce Estates to the village of Repton with another prime courtyar...

Ash House, Brizlincote Lane, Burton-On-Trent

4 Bedroom Detached House | Offers in region of £665,000

Most impressive, 1930's four bedroom detached residence occupying a superb quiet cul-de-sac location on sought-after Bri...

Fletcher & Company (Willington)

Mercia Marina, Findern Lane, Willington, Derby, DE65 6DW

01283 241500

How much is your home worth?

Use our short form to request a valuation of your property.

Request a Valuation

Mortgage Calculator

Amount Borrowed: £
Total Amount Repayable: £
Total Monthly Payment: £
©2026 The Guild of Property Professionals. All rights reserved. Terms and Conditions | Privacy Policy | Cookie Policy | Complaints Policy | Members Login
The Guild of Property Professionals Trading Address: 121 Park Lane, London W1K 7AG. GPEA Limited. Registered in England & Wales.  Company No: 02819824.  Registered Office Address: 2 St. Stephen's Court, St. Stephen's Road, Bournemouth, Dorset, England, BH2 6LA.  VAT Registration No: 576 8795 61
Book a Property Valuation Update Cookies Preferences