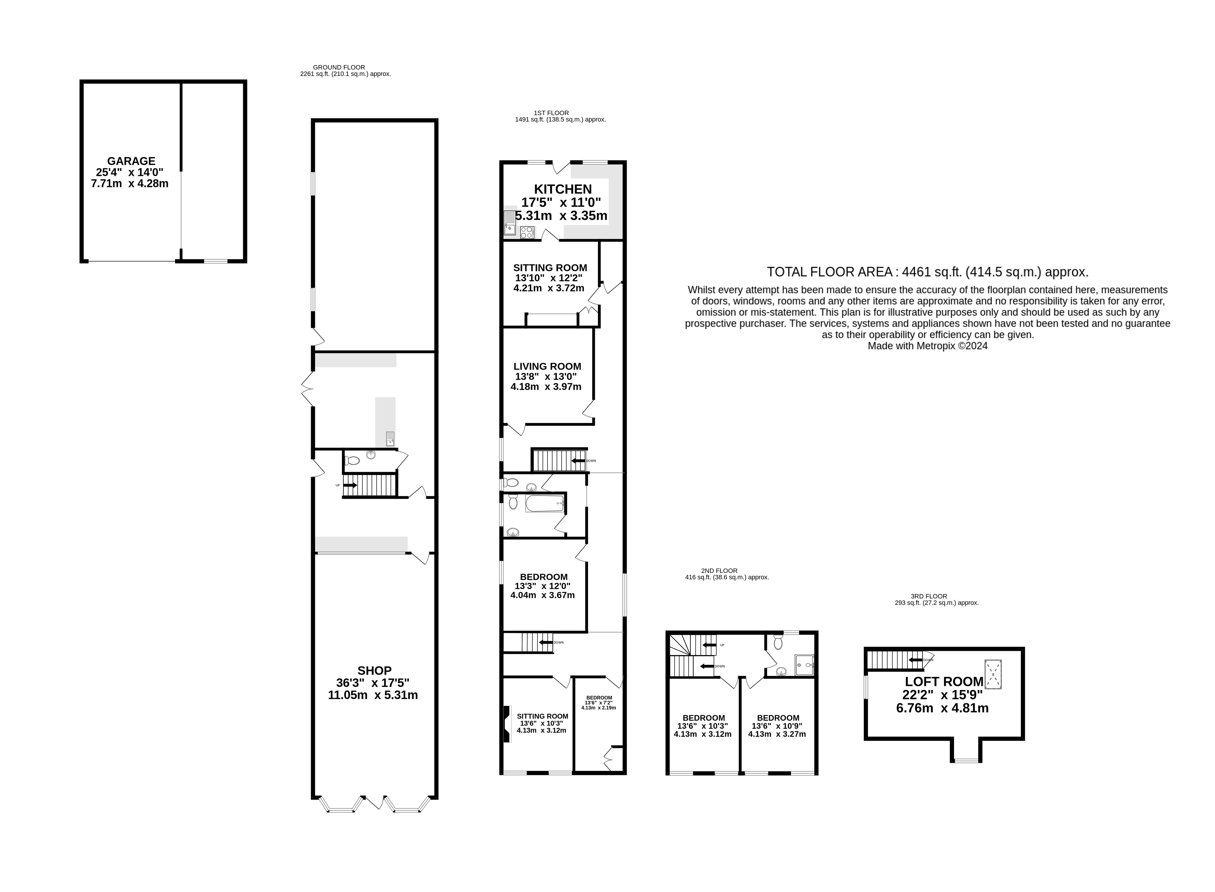
- WITHIN THE TOWN’S CONSERVATION AREA. ICONIC BUILDING SHOP WITH CLOAKROOM AND KITCHEN/REST ROOM. 5 BEDROOMS BATHROOM SHOWER ROOM 3 RECEPTION ROOMS WITH FIREPLACES FIRST FLOOR KITCHEN LOGGIA TALL CE...
The property with its red former post office windows and shop door, cream coloured brick front with red brick quoins and colour washed rendered elevations under a slate roof with many sliding sash windows, makes quite an imposing statement when you first set eyes on it.
Set back off the pavement tall carriage doors open to the long driveway that culminates in the garage and former stable.
A side door leads into a small lobby which has a door to the former post office counter/office whist ahead a fine set of stairs lead to the first floor split level landing/hall, with its former servants/butler calling box in situ, and you now begin to sense the character and history of the building. Off to the left is found a wonderful sitting room with southerly facing windows having a feature gas coal effect fire inset in a fine black marble fireplace surround with tiled insets and pine cupboards to either side. Continue down the hall you enter the breakfast room which could well have been the former kitchen judging by the large arched recess for a range (now housing a non-working floor standing boiler) and floor to ceiling cupboards to one side. A door from here opens into the 17’ split level kitchen having a range of units and work surfaces on four sides with a connecting door leading out into the west facing loggia which, once renovated, would make a lovely spot to al fresco entertain of an evening or just sit and enjoy the setting sun. Steps lead down to the rear.
Coming back into the hall and going up the few steps a bathroom with claw foot roll top bath, wc, wash hand basin, a separate WC and double bedroom are found on the right. Further along is a single bedroom with ornate fireplace built in cupboard and next door is the second sitting room. This is a well proportioned room enjoying an easterly outlook over the square and featuring an open fire grate with cast iron surround, tiled slips all inset in an imposing white marble fireplace and mantel. Stairs with turned spindles and acorn finials lead up to the next floor where there are two more double bedrooms and shower room with WC. From this level another set of stairs lead to an enormous triple aspect bedroom currently set up as a bed/sitting/dressing room and as such works ever so well.
Commercial (can be self contained if required)
The former post office shop is a substantial room being approx. 37’ long by 16’ wide and having almost floor to ceiling windows, suspended ceiling with recess panel light and beyond is the former counter section being approx. 16’ x 8 and having the screens etc still in situ. Beyond is a cloakroom and large kitchen/rest area. As previously mentioned, a door connects to the side entrance.
Basement
This is accessed via its own separate entrance down the side of the drive and a double glazed UPVC door opens into a large room that offers countless possibilities (stp) be it extra accommodation, gym, cinema room or such.
Outside
There is a small outhouse near the back of the property and a substantial garage with former stable adjacent sits at the head of the drive.
Gardens
These could provide a very tranquil space enjoying both a southerly and westerly outlook and are currently neglected. Within is a small pond, terrace, lawns and planting includes camelia, rose, lavender etc.
Services
Mains gas water electricity a and drainage
RATEABLE VALUE
£7,300 UBR. As of April 2026, the Uniform Business Rate (UBR) multipliers are 43.2p in the pound for properties with a Rateable Value below £51,000 and 48.0p for properties at £51,000 or above.
The Rateable Value has been obtained from the Valuation Office Agency at the time these details were prepared. Prospective occupiers should verify the current Rateable Value and multiplier with the Valuation Office Agency or via the GOV.UK website.
Small Business Rate Relief (up to 100%) may apply for properties with a Rateable Value below £12,000, subject to eligibility and local authority assessment.
Important Information
Property Ref: TOR230220
3 Bedroom Detached Bungalow | Guide Price £450,000
A well presented three bedroom detached bungalow tucked away in the village of Dolton, offering spacious accommodation,...
3 Bedroom Detached House | Guide Price £450,000
Sat in an ELEVATED position with FAR REACHING VIEWS across the FIELDS towards Monkleigh in the distance, a delightful Gr...
3 Bedroom Detached House | Offers Over £450,000
Set amidst 23 acres of land, this part finished home presents a great development opportunity for the new owner to conti...
3 Bedroom Detached House | Guide Price £475,000
Set in a tucked away position within the heart of this popular North Devon village, this Grade II listed period cottage...
4 Bedroom Detached House | Guide Price £475,000
A charming Grade II listed thatched cottage full of character, set in a third of an acre with beautiful gardens, spaciou...
4 Bedroom Detached Bungalow | Guide Price £500,000
Occupying an elevated plot of approximately half an acre with far reaching countryside views, this four bedroom detached...
Use our short form to request a valuation of your property.
Request a Valuation