Hillsborough Park Road, Ilfracombe

Asking Price
£450,000

4 Bedroom Detached House for sale in Devon

2 4 2
  • Large living room Sunlit dining room Well-appointed kitchen/diner with access to decked terrace Tiled entrance hall Downstairs WC Extensive sloping rear garden with gardening potential Decked sun...

DEVELOPMENT OPPORTUNITY WITH SUPERB VIEWS!

Spacious Family Home with Stunning Views & Full Planning Permission for a Second Dwelling

Tucked away in a peaceful and elevated position on the periphery of Ilfracombe, 10 Hillsborough Park Road presents a rare opportunity to acquire a spacious four-bedroom end-terrace home with exceptional potential.

Set in a quiet residential area, this well-maintained property boasts superb rear-facing views and offers generously proportioned, well-balanced accommodation ideally suited to family living.

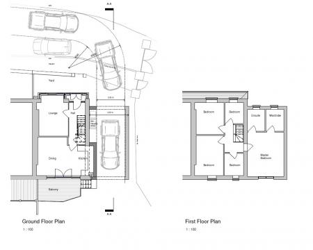
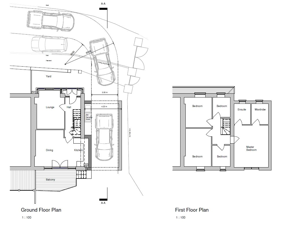
The ground floor features a bright and welcoming tiled entrance hall, a large living room, and a beautifully lit dining room flooded with natural light. The well-appointed kitchen/diner provides access to the rear decked terrace — a perfect spot for outdoor dining. Additional ground floor features include a WC and a versatile garage space currently being used as a utility room.

Upstairs, the spacious landing leads to three double bedrooms and one single bedroom. The principal bedroom benefits from a modern en-suite shower room and a walk-in wardrobe. A stylish family bathroom serves the remaining bedrooms. The home is equipped with gas central heating and uPVC double glazing throughout.

To the rear, the extensive sloping garden descends toward Hillside Road and offers outstanding gardening potential. A decked sun terrace and a lower patio area provide multiple outdoor seating options. Beneath the property, a large store room offers excellent space for bikes, tools, and garden equipment.

Development Opportunity

A standout feature of this property is the full planning permission granted for the construction of a highly individual, modern detached dwelling within the rear garden. Designed to blend seamlessly into the hillside, the proposed new home will enjoy the same stunning views and include vehicle access via a reconfiguration of the existing property’s ground floor — specifically the removal of the current kitchen, WC, and garage/utility space.

This is an exceptional opportunity for developers or buyers seeking multi-generational living options, a secondary income through holiday letting, or the chance to create a bespoke modern home alongside a traditional one.

Full planning permission: https://planning.northdevon.gov.uk/Planning/Display/79725

In summary, 10 Hillsborough Park Road offers a rare blend of comfort, space, privacy, and development potential in one of Ilfracombe’s most desirable and peaceful locations.

Important Information

  • This is a Freehold property.

Property Ref: ILF250292

Share:

Similar Properties

St. Brannocks Road, Ilfracombe

4 Bedroom House | Guide Price £450,000

A HANDSOME AND CHARACTER RICH GEORGIAN HOMEThis beautifully presented double-fronted home is enviably positioned just a...

Hartland View Road, Woolacombe

3 Bedroom Detached Bungalow | Asking Price £450,000

A beautifully presented and sympathetically extended three-bedroom detached bungalow in the sought-after Hartland View R...

Rockfield Road, Woolacombe

2 Bedroom Ground Floor Flat | Asking Price £450,000

* EXCELLENT HOLIDAY LET POTENTIAL * Situated in a quieter part of the village at the end of a private no through road bu...

Seymour Villas, Woolacombe

3 Bedroom Flat | Guide Price £475,000

Enjoying outstanding far reaching views over the countryside, Woolacombe Bay, the Atlantic Ocean and the rugged coastlin...

St. Brannocks Road, Ilfracombe

6 Bedroom Semi-Detached House | Guide Price £475,000

*** NO ONWARD CHAIN ***Offering over 4,000 sq ft of well-presented accommodation is this 6/7 bedroom semi-detached home,...

Beach Road, Woolacombe

3 Bedroom Flat | Asking Price £475,000

Immaculately presented throughout and enjoying outstanding far-reaching views over the countryside, the golden sand beac...

Webbers Ilfracombe (Ilfracombe)

Ilfracombe, Devon, EX34 9QB

01271 863091

How much is your home worth?

Use our short form to request a valuation of your property.

Request a Valuation

Mortgage Calculator

Amount Borrowed: £
Total Amount Repayable: £
Total Monthly Payment: £
©2026 The Guild of Property Professionals. All rights reserved. Terms and Conditions | Privacy Policy | Cookie Policy | Complaints Policy | Members Login
The Guild of Property Professionals Trading Address: 121 Park Lane, London W1K 7AG. GPEA Limited. Registered in England & Wales.  Company No: 02819824.  Registered Office Address: 2 St. Stephen's Court, St. Stephen's Road, Bournemouth, Dorset, England, BH2 6LA.  VAT Registration No: 576 8795 61
Book a Property Valuation Update Cookies Preferences