34 Fore Street, Seaton

Guide Price
£399,000

Light Industrial for sale in Devon

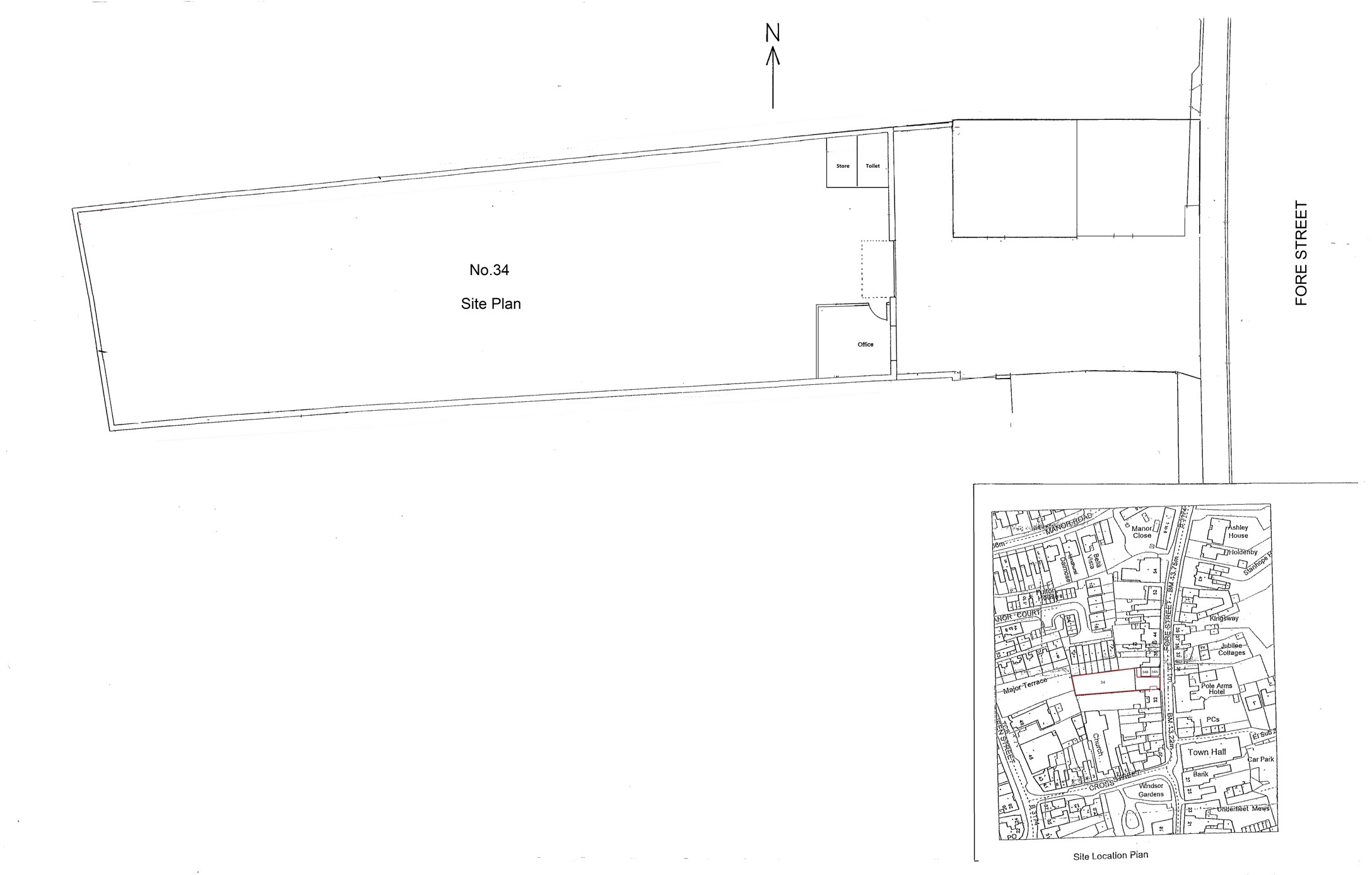
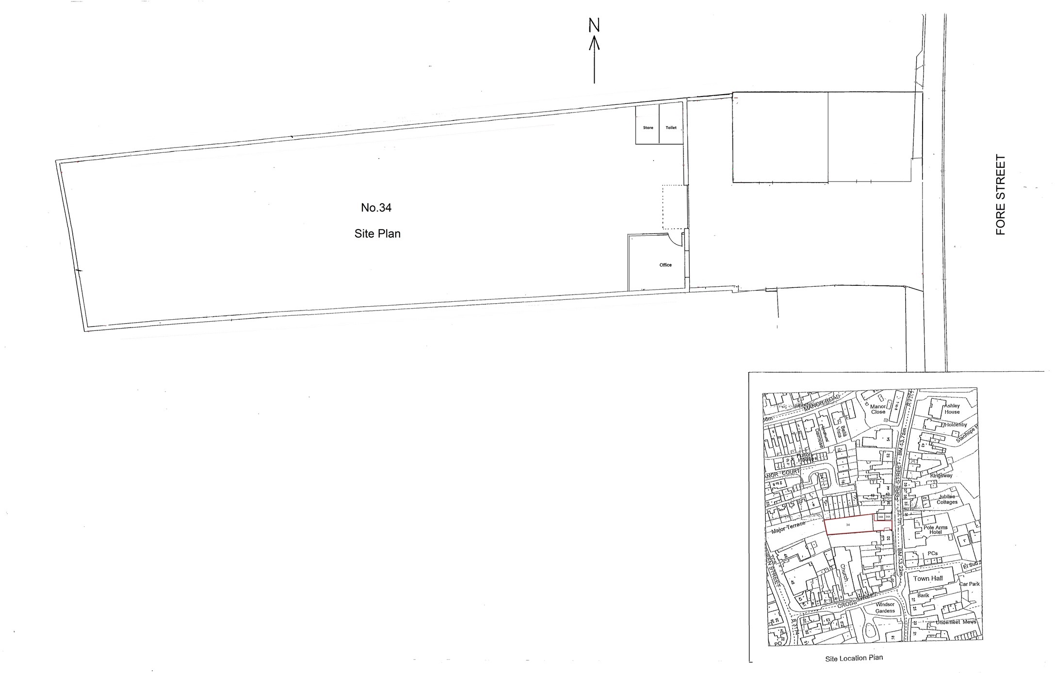
Currently classified under Use Class B8 (storage/distribution) with ancillary retail, the building provides approximately 5,500 sq ft of versatile floor space, suitable for a variety of commercial uses (subject to any necessary consents).

Situated in a prime central location, the property benefits from strong footfall and convenient access to local amenities and transport links. While currently producing no income, the premises offer a rental potential in the region of £30,000 per annum, making it an attractive proposition for both investors and owner-occupiers.

Key Features:

Freehold with vacant possession

Approx. 5,500 sq ft floor area

Current Use Class B8 with ancillary retail

Prominent town centre location

Strong rental potential (~£30,000 p.a.)

Important Information

  • This is a Freehold property.

Property Ref: FSR250060

Share:

Similar Properties

27 Broad Street

Shop | Guide Price £230,000

An exceptional opportunity to acquire a commercial freehold premises in the very heart of Lyme Regis.

Marine Place, Seaton

Terraced House | Asking Price £150,000

We are pleased to present this freehold ground floor retail premise, 10 Marine Place in Seaton, Devon. This charming Vic...

Marine Place, Seaton

Terraced House | Asking Price £35,000

An exceptional opportunity to acquire a well-established and highly regarded coastal-themed gift shop in a prime town ce...

Broad Street, Lyme Regis

3 Bedroom Not Specified | Offers in region of £700,000

65 Broad Street, Lyme Regis, offers a unique investment and lifestyle opportunity in the heart of this popular coastal t...

Fortnam Smith & Banwell Commercial (Seaton)

Seaton, Devon, EX12 2LS

01297 23939

How much is your home worth?

Use our short form to request a valuation of your property.

Request a Valuation

Mortgage Calculator

Amount Borrowed: £
Total Amount Repayable: £
Total Monthly Payment: £
©2026 The Guild of Property Professionals. All rights reserved. Terms and Conditions | Privacy Policy | Cookie Policy | Complaints Policy | Members Login
The Guild of Property Professionals Trading Address: 121 Park Lane, London W1K 7AG. GPEA Limited. Registered in England & Wales.  Company No: 02819824.  Registered Office Address: 2 St. Stephen's Court, St. Stephen's Road, Bournemouth, Dorset, England, BH2 6LA.  VAT Registration No: 576 8795 61
Book a Property Valuation Update Cookies Preferences