Exeter Road, Winkleigh

Asking Price
£375,000

Plot for sale in Devon

  • Genuine retirement sale Car repair workshop and stores Covered car sales forecourt Large site with ample parking For sale as existing business Alternatively the site has planning to demolish exist...

LOCATION

In the sought after village of Winkleigh this rural hamlet has a population of about 1,300 inhabitants and is fast expanding with new housing estates being constructed on the boundary.

The village is perhaps most famous as the home of Inch's Cider and nearby the former Winkleigh Airfield which was a training base during the second World War. Winkleigh has a store, a butchers, Post Office, cafe and public houses.

Winkleigh is a picturesque rural village surrounded by rolling countryside, offering a peaceful escape from urban life. The nearest market town is Torrington about 11 miles to the north. It lies about 20 miles north west of Exeter.

THE PROPERTY

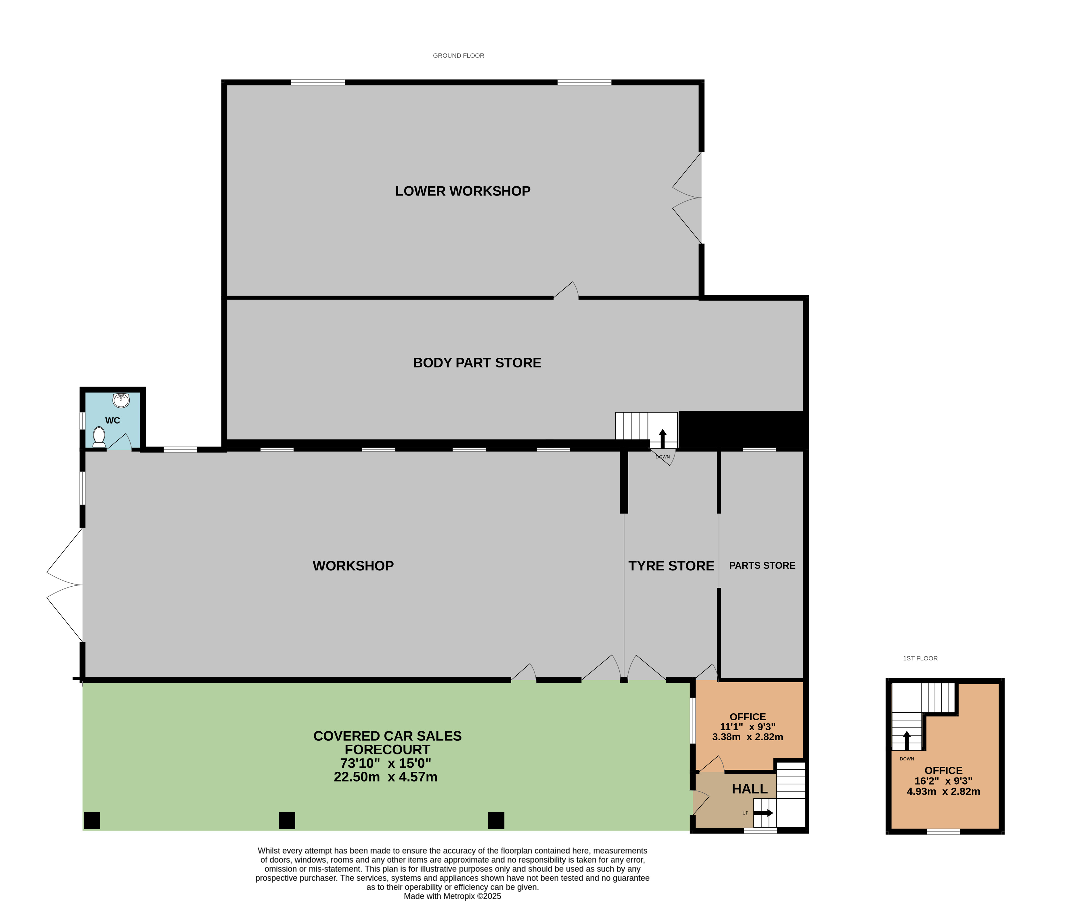
This long established vehicle sales and repair workshop sits on a plot bordering one of the main roads through the village. It is accessible to the nearby village Square and all amenities. The premises are now available due to retirement and comprise of a main workshop circa 1,728 sq ft, lower workshop circa 987 sq ft plus parts store, staff cloakroom, 2 offices and covered forecourt car sales area circa 1,000 sq ft, 4 lock up garages and car parking area to one side. For sale as existing business or for re-development.

PLANNING PERMISSION

Planning has been granted to demolish the existing building and construct 6 dwellings on the site. Planning number: 1/0322/2024/OUT lodged with Torridge District Council.

SERVICES

Mains electricity, water and drainage. We encourage you to check before viewing a property the potential broadband speeds and mobile signal coverage. You can do so by visiting https://checker.ofcom.org.uk

VAT

We understand that our client has not opted to charge VAT. All interested parties should make their own enquiries of HMRC.

VIEWING

Strictly by appointment through the selling agents.

RATEABLE VALUE

£14,000 UBR. As of April 2026, the Uniform Business Rate (UBR) multipliers are 43.2p in the pound for properties with a Rateable Value below £51,000 and 48.0p for properties at £51,000 or above.

The Rateable Value has been obtained from the Valuation Office Agency at the time these details were prepared. Prospective occupiers should verify the current Rateable Value and multiplier with the Valuation Office Agency or via the GOV.UK website.

Small Business Rate Relief (up to 100%) may apply for properties with a Rateable Value below £12,000, subject to eligibility and local authority assessment.

LEGAL ADVICE

We strongly recommend that a buyer takes independent legal advice and instructs solicitors to act on their behalf. Each party bears their own legal costs unless otherwise stated.

PLANNING

It is the responsibility of the proposed buyer to satisfy for themselves independently that their intended use complies with existing planning permission by contacting the local council planning department. The cost of any change of planning use is the buyer's responsibility.

Important Information

  • This is a Freehold property.

Property Ref: COM250085

Share:

Similar Properties

Frithelstock, Torrington

3 Bedroom Semi-Detached House | Guide Price £375,000

Set amidst wonderful rolling Devon countryside a character cottage with small paddock, formal gardens, substantial log c...

St. Giles, Torrington

3 Bedroom Terraced House | Offers in excess of £375,000

*Secluded and private community with stunning countryside views* Situated on the enviable development at Peagham Barton...

Ashreigney, Chulmleigh

4 Bedroom Detached House | Guide Price £375,000

With the most amazing views across the rolling Devon countryside to Dartmoor, an ideal opportunity to convert a former a...

Burrington, Umberleigh

4 Bedroom Detached Bungalow | Guide Price £380,000

Detached bungalow with 4 bedrooms and large wraparound plot. With plenty of living space, ample parking and the lovely g...

Mill Street, Torrington

4 Bedroom Terraced House | Offers in excess of £385,000

Located on Mill Street in Great Torrington, this double-fronted period home, formerly the Canal Inn, is believed to date...

Tarka View, Merton

4 Bedroom Detached House | Guide Price £415,000

An impressive 4 bedroom modern energy efficient contemporary designed home built by an award winning West Country Develo...

Webbers Torrington (Torrington)

Torrington, Devon, EX38 8HN

01805 624334

How much is your home worth?

Use our short form to request a valuation of your property.

Request a Valuation

Mortgage Calculator

Amount Borrowed: £
Total Amount Repayable: £
Total Monthly Payment: £
©2026 The Guild of Property Professionals. All rights reserved. Terms and Conditions | Privacy Policy | Cookie Policy | Complaints Policy | Members Login
The Guild of Property Professionals Trading Address: 121 Park Lane, London W1K 7AG. GPEA Limited. Registered in England & Wales.  Company No: 02819824.  Registered Office Address: 2 St. Stephen's Court, St. Stephen's Road, Bournemouth, Dorset, England, BH2 6LA.  VAT Registration No: 576 8795 61
Book a Property Valuation Update Cookies Preferences