- NO ONGOING CHAIN
- DEVELOPMENT OPPORTUNITY
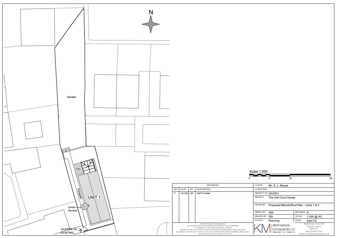
- PLANNING PERMISSION GRANTED TO CONVERT AND EXTEND INTO A ONE BEDROOM BUNGALOW
- REF: 77167
- DELIGHTFUL GARDEN
- DESIRABLE TUCKED AWAY LOCATION CLOSE TO AMENITIES
- MAINS WATER
- DRAINAGE AND ELECTRICITY CONNECTED
NO ONGOING CHAIN
DEVELOPMENT OPPORTUNITY
PLANNING PERMISSION GRANTED TO CONVERT AND EXTEND INTO A ONE BEDROOM BUNGALOW, REF: 77167
DELIGHTFUL GARDEN
DESIRABLE TUCKED AWAY LOCATION CLOSE TO AMENITIES
MAINS WATER, DRAINAGE AND ELECTRICITY CONNECTED
A rare opportunity to acquire a detached workshop/private gym located on a plot of land adjacent to Royal Charter Park, just a short walk from the centre of Chulmleigh. The property benefits from full planning permission granted by North Devon District Council under Application Number 77167, allowing conversion and extension into a detached one-bedroom bungalow. The approved plans include a generous private garden and patio, creating a desirable and private residential home.
Accessed via a pedestrian gate from Royal Charter Park, this unique property opens into a welcoming courtyard. Inside, the current layout includes two rooms, both with windows and doors to the outside, previously used as a gym/workshop. There's also a shower room with a white three-piece suite.
Outside, a paved patio leads to a generous garden extending over 100 feet, filled with mature shrubs and bushesideal for keen gardeners. A great opportunity to create a bespoke home in a convenient location in the heart of Chulmleigh.
SERVICES    Mains electricity, water and drainage connected.
VIEWINGS    Strictly by appointment through the sole selling agent.
TENURE    Freehold
AGENTS NOTE    Please be advised that there is a fire escape from the neighbouring Winston Pincombe garage that leads onto the front patio area. We have been advised that it is intended for emergency use only.
From our office leave The Square via South Street and follow the B3226 through the Mole Valley until it joins the A377 at Fortesque Cross. At this junction turn left towards Exeter and after 2 miles you will reach Colleton Mills. Take the left turn signed Chulmleigh and follow the road into the town. On entering the town you will pass the comprehensive school on your left. Continue straight on into South Molton Street and take the first left turn into Kings Park. Take the next right (after the car park) into Royal Charter Park and then turn right into the cul-de-sac. The pedestrian entrance will be found at the bottom of this cul-de-sac tucked down in the left hand corner.
What3words: ///petulant.bypasses.sway
Important Information
Property Ref: 55885_SOU250124
Mill on the Mole Residential Park, South Molton, Devon
2 Bedroom Detached Bungalow | Guide Price £120,000
NO ONWARD CHAIN A well-presented two bedroom Tingdene 36' x 20' park home situated on the sought-after Mill on the Mole...
HOLLYWELL MEADOW, North Molton, South Molton
2 Bedroom House | £66,250
VIEWINGS ANTICIPATED TO COMMENCE IN NOVEMBER 2025 - REGISTER YOUR INTEREST WITH US TODAY! A rare opportunity to purchase...
HOLLYWELL MEADOW, North Molton, South Molton
2 Bedroom Terraced House | £65,000
VIEWINGS ANTICIPATED TO COMMENCE IN NOVEMBER 2025 - REGISTER YOUR INTEREST WITH US TODAY! A rare opportunity to purchase...
1 Bedroom Apartment | Guide Price £130,000
IDEAL FIRST TIME PURCHASE OR BUY-TO-LET INVESTMENT.Webbers are delighted to welcome onto the market this well presented...
Mill on the Mole Residential Park, South Molton, Devon
2 Bedroom Detached Bungalow | Guide Price £139,000
NO ONWARD CHAIN. Charming park home with two double bedrooms, modern bathroom, and impressive lounge/diner with feature...
Mill On The Mole Residential Park, South Molton, Devon
2 Bedroom Detached Bungalow | £139,950
Being offered to buyers aged 50 and over, this extremely well presented park home is a 36' x 20' Tingdene Lodge. 107 Mil...
 
                            Webbers South Molton (South Molton)
South Molton, Devon, EX36 3AQ
Use our short form to request a valuation of your property.
Request a Valuation