Exeter Road, Winkleigh, Devon

£375,000

Light Industrial for sale in Devon

  • Genuine retirement sale
  • Car repair workshop and stores
  • Covered car sales forecourt
  • Large site with ample parking
  • For sale as existing business
  • Alternatively the site has planning to demolish existing building and erect 6 dwellings - See planning number 1/0322/2024/OUT lodged with Torridge District Council

Genuine retirement sale
Car repair workshop and stores
Covered car sales forecourt
Large site with ample parking
For sale as existing business
Alternatively the site has planning to demolish existing building and erect 6 dwellings - See planning number 1/0322/2024/OUT lodged with Torridge District Council

LOCATION
In the sought after village of Winkleigh this rural hamlet has a population of about 1,300 inhabitants and is fast expanding with new housing estates being constructed on the boundary.
The village is perhaps most famous as the home of Inch's Cider and nearby the former Winkleigh Airfield which was a training base during the second World War. Winkleigh has a store, a butchers, Post Office, cafe and public houses.
Winkleigh is a picturesque rural village surrounded by rolling countryside, offering a peaceful escape from urban life. The nearest market town is Torrington about 11 miles to the north. It lies about 20 miles north west of Exeter.

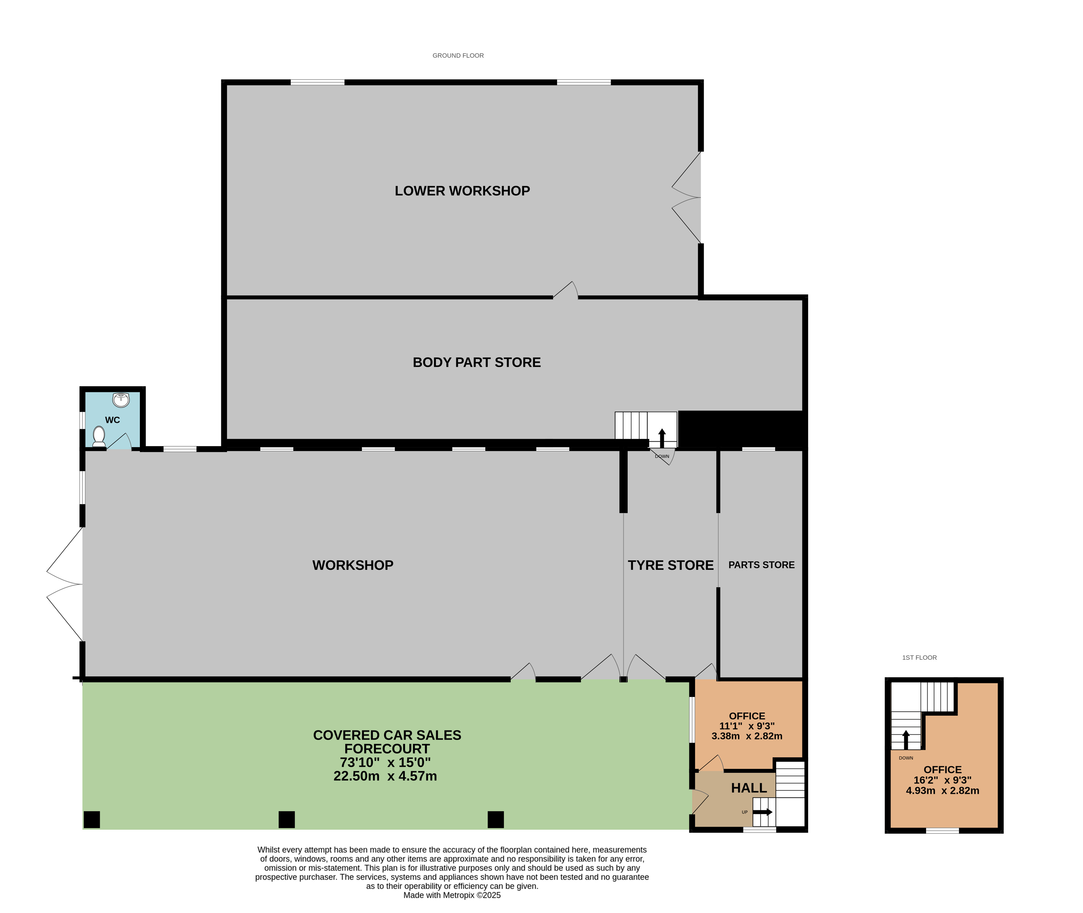
THE PROPERTY
This long established vehicle sales and repair workshop sits on a plot bordering one of the main roads through the village. It is accessible to the nearby village Square and all amenities. The premises are now available due to retirement and comprise of a main workshop circa 1,728 sq ft, lower workshop circa 987 sq ft plus parts store, staff cloakroom, 2 offices and covered forecourt car sales area circa 1,000 sq ft, 4 lock up garages and car parking area to one side. For sale as existing business or for re-development.

PLANNING PERMISSION
Planning has been granted to demolish the existing building and construct 6 dwellings on the site. Planning number: 1/0322/2024/OUT lodged with Torridge District Council.

SERVICES
Mains electricity, water and drainage. We encourage you to check before viewing a property the potential broadband speeds and mobile signal coverage. You can do so by visiting https://checker.ofcom.org.uk

VAT
We understand that our client has not opted to charge VAT. All interested parties should make their own enquiries of HMRC.

VIEWING
Strictly by appointment through the selling agents.

RATEABLE VALUE   
£14,000 UBR. As of April 2026, the Uniform Business Rate (UBR) multipliers are 43.2p in the pound for properties with a Rateable Value below £51,000 and 48.0p for properties at £51,000 or above.
The Rateable Value has been obtained from the Valuation Office Agency at the time these details were prepared. Prospective occupiers should verify the current Rateable Value and multiplier with the Valuation Office Agency or via the GOV.UK website.
Small Business Rate Relief (up to 100%) may apply for properties with a Rateable Value below £12,000, subject to eligibility and local authority assessment.
         
LEGAL ADVICE
We strongly recommend that a buyer takes independent legal advice and instructs solicitors to act on their behalf. Each party bears their own legal costs unless otherwise stated.

PLANNING
It is the responsibility of the proposed buyer to satisfy for themselves independently that their intended use complies with existing planning permission by contacting the local council planning department. The cost of any change of planning use is the buyer's responsibility.

From Torrington take the main A3124 road, proceed past the football pitch on your left then take a right turn into Exeter Street.
Proceed along this road for a few hundred yards and the premises are on the left hand side.

Important Information

  • This is a Freehold property.

Property Ref: COM250082

Share:

Similar Properties

Yarnscombe, Barnstaple, Devon

4 Bedroom House | Guide Price £375,000

Located within the highly sought after village of Yarnscombe, is this spacious 4/5 bedroom, 2/3 reception room end of te...

East Street, Bishops Tawton, Barnstaple

4 Bedroom Detached House | Guide Price £375,000

*** VIDEO TOUR AVAILABLE ***A beautifully positioned four-bedroom detached home located on East Street in the heart of B...

Willow Tree Road, Barnstaple, Devon

3 Bedroom Detached Bungalow | Guide Price £375,000

A well-presented 3 bedroom detached bungalow in the highly sought-after Rumsam area of Barnstaple. Conveniently located...

Bickington Road, Sticklepath, Barnstaple

4 Bedroom Detached Bungalow | Guide Price £380,000

Located within Sticklepath and being within walking distance to plenty of nearby amenities, is this attractive and moder...

Lagoon View, West Yelland, Barnstaple

4 Bedroom Detached House | Guide Price £380,000

Located on Lagoon View in Yelland, this impressive four-bedroom detached home offers spacious and versatile living in a...

Sea King Close, Bickington, Barnstaple

4 Bedroom Detached House | Guide Price £380,000

A well-presented four-bedroom detached home offering generous accommodation throughout. The property benefits from drive...

Webbers Barnstaple (Barnstaple)

Barnstaple, Devon, EX31 1SA

01271 373404

How much is your home worth?

Use our short form to request a valuation of your property.

Request a Valuation

Mortgage Calculator

Amount Borrowed: £
Total Amount Repayable: £
Total Monthly Payment: £
©2026 The Guild of Property Professionals. All rights reserved. Terms and Conditions | Privacy Policy | Cookie Policy | Complaints Policy | Members Login
The Guild of Property Professionals Trading Address: 121 Park Lane, London W1K 7AG. GPEA Limited. Registered in England & Wales.  Company No: 02819824.  Registered Office Address: 2 St. Stephen's Court, St. Stephen's Road, Bournemouth, Dorset, England, BH2 6LA.  VAT Registration No: 576 8795 61
Book a Property Valuation Update Cookies Preferences