Kingsley Terrace, Combe Martin, Devon

£265,000

4 Bedroom Terraced House for sale in Devon

2 4 2
  • Spacious 4 bedroom mid terraced property
  • 2 reception rooms
  • Large kitchen and bathroom
  • Partly uPVC double glazed and gas central heating
  • Easy maintenance garden
  • Popular village location

Spacious 4 bedroom mid terraced property
2 reception rooms
Large kitchen and bathroom
Partly uPVC double glazed and gas central heating
Easy maintenance garden
Popular village location

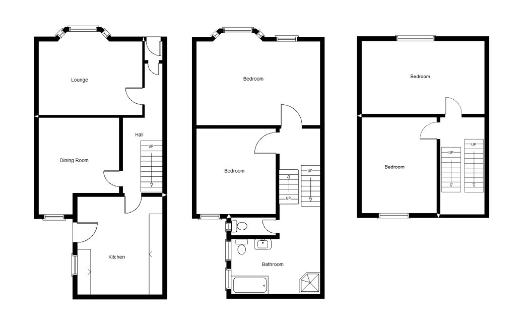
1 Kingsley terrace is a 4 bedroom terraced house situated in the sought after coastal village of Combe Martin, being close to locals shops, restaurants, public houses and the health centre. The property benefits from being partly uPVC double glazed windows and having gas central heating to radiators, the property still retained many of its original character features.

The accommodation is arranged over 3 floors and is accessed through the front door into an entrance hall. There is a feature stained glass door leading through to the main hallway, stairs then lead up to the first floor landing, and doors off to all principal rooms on the ground floor.

To the front of the property is a lounge with a large bay window. There is a feature cast iron fireplace with inset tiles and tiled hearth. To the rear of the property is the dining room with laminate flooring and a range of built-in cupboards.

A particular feature of this property is a large kitchen comprising of base and eye level units with adjacent work surface, inset stainless steel sink, space for a range cooker. There is a range of integrated appliances including fridge/freezer, washing machine, dishwasher and fridge there is also additional work surface with space below for tumble dryer. From the kitchen is a uPVC double glazed door leading out to the rear garden.

From the ground floor the stairs lead up to a half landing with a separate low level w.c. and door leading into the spacious bathroom comprising of a Victorian style roll top bath, corner shower with wall mounted electric shower unit, pedestal wash hand basin and low level w.c. Continuing on to the first floor landing are 2 bedrooms, with the front room being the master bedroom and the rear aspect room being bedroom 2, the stairs then lead up to the second floor landing with 2 further bedrooms being bedrooms 3 & 4 with both in to the eaves space within the roof.

Outside, to the front of the property there is a gate with steps leading up to the front door and small garden laid to shingle. To the rear of the property is an attractive patio area which is adjacent to the kitchen with steps leading up to a lawn garden with patio area and all being fully enclosed with various flowers and shrubs.

The vendor currently has a parking permit costing £15 per month to park in the coach car park directly opposite the property via Combe Martin Council.

Entrance Porch 5'3" x 3'3" (1.6m x 1m).

Lounge 14'5" x 11'5" (4.4m x 3.48m).

Dining Room 14'7" x 8'6" (4.45m x 2.6m).

Kitchen 13'4" x 9'6" (4.06m x 2.9m).

Bedroom 1 14'5" x 11'4" (4.4m x 3.45m).

Bedroom 2 11'10" x 9'6" (3.6m x 2.9m).

Bathroom 11'3" x 9'10" (3.43m x 3m).

WC 6'2" 3'2" (1.88m 0.97m).

Bedroom 3 14'4" x 11'10" (4.37m x 3.6m).

Bedroom 4 12'2" 9'6" (3.7m 2.9m).

Applicants are advised to proceed from our offices in an easterly direction and heading out of town on the main A399 sign posted Combe Martin, follow the road for approximately 5 miles into the village of Combe Martin. Upon entering the village proceed up the main High Street for approximately 1 mile passing the Pack O' Cards public house. The property can be found a short distance further along on the left hand side.

Important Information

  • This is a Freehold property.

Property Ref: ILF210267

Share:

Similar Properties

Horne Road, Ilfracombe, Devon

4 Bedroom Terraced House | £265,000

22 Horne Road is a characterful, centrally located mid-terrace Victorian home arranged over three floors and rich in ori...

The Esplanade, Woolacombe, Devon

1 Bedroom Apartment | £265,000

A beautifully presented one-bedroom apartment just moments from Woolacombe Beach, offering stunning sea and countryside...

Furze Hill Road, Ilfracombe, Devon

2 Bedroom Detached Bungalow | £259,950

Enjoying an elevated position with far-reaching views towards the Cairn Nature Reserve, this characterful two-bedroom de...

St. Brannocks Park Road, Ilfracombe, Devon

3 Bedroom House | £270,000

*NO ONWARD CHAIN* Set within a quiet no-through road in one of Ilfracombe's most sought-after residential areas, 32 St....

Hillington, Ilfracombe, Devon

2 Bedroom Semi-Detached Bungalow | £270,000

Situated in a popular and peaceful residential area of Ilfracombe, 15 Hillington is a well-presented two double bedroom...

Water Terrace, Combe Martin, Devon

3 Bedroom Terraced House | £275,000

*NO ONWARD CHAIN* Set within a serene yet central location in the popular village of Combe Martin, this 3 bedroom charac...

Webbers Ilfracombe (Ilfracombe)

Ilfracombe, Devon, EX34 9QB

01271 863091

How much is your home worth?

Use our short form to request a valuation of your property.

Request a Valuation

Mortgage Calculator

Amount Borrowed: £
Total Amount Repayable: £
Total Monthly Payment: £
©2026 The Guild of Property Professionals. All rights reserved. Terms and Conditions | Privacy Policy | Cookie Policy | Complaints Policy | Members Login
The Guild of Property Professionals Trading Address: 121 Park Lane, London W1K 7AG. GPEA Limited. Registered in England & Wales.  Company No: 02819824.  Registered Office Address: 2 St. Stephen's Court, St. Stephen's Road, Bournemouth, Dorset, England, BH2 6LA.  VAT Registration No: 576 8795 61
Book a Property Valuation Update Cookies Preferences