Rectory Road, Combe Martin, Devon

Guide Price
£1,500,000

6 Bedroom Detached House for sale in Devon

4 6 6
  • A truly unique stunning location in the heart of the North Devon countryside
  • Outstanding far reaching views across the countryside
  • Exmoor and out to the sea and rugged coastline
  • Set in 24.165 acres (9.799 hectares) including 5 acres of woodland and no near neighbours. (Secluded yet not isolated)
  • 4 bedroom
  • 5 bathroom main house with versatile accommodation
  • Additional newly constructed 2 bedroom ancillary lodge building
  • perfect for dual family/multi-generational living
  • Great family home with many income opportunities
  • Huge 75ft x 45ft barn divided into 6 units

• A truly unique stunning location in the heart of the North Devon countryside
• Outstanding far reaching views across the countryside, Exmoor and out to the sea and rugged coastline
• Set in 24.165 acres (9.799 hectares) including 5 acres of woodland and no near neighbours. (Secluded yet not isolated)
• 4 bedroom, 5 bathroom main house with versatile accommodation
• Additional newly constructed 2 bedroom ancillary lodge building, perfect for dual family/multi-generational living
• Great family home with many income opportunities
• Huge 75ft x 45ft barn divided into 6 units, perfect for a variety of pursuits and potential for light commercial use
• Six plot camp site with electric hook ups, showers and toilets
• Land suitable for animals and vegetable production
• Fabulous rural retreat and an escape for busy urban life – perfect for that change of lifestyle you've always dreamed of!
• Underfloor heating in the ancillary lodge
• New triple glazing in both properties and composite stable doors
• Solar panels and batteries with feed-in tariff
• Near to all the surf beaches Woolacombe, Saunton, Croyde and Combe Martin beach which is great for kayaking and paddle boarding

Guyscliffe Farm has so much to offer and is perfect for those looking for a slice of the good life in the heart of the North Devon countryside. This fabulous 'lifestyle' home presents a range of different opportunities for the new owner and it sits in an idyllic rural location on the very outskirts of the popular coastal village of Combe Martin. Occupying a prominent and elevated location, the property lies in the centre of its own grounds, approached via a sweeping driveway, which amount to 24.165 acres (9.779 hectares) and includes pasture land and paddocks and an area of woodland (5 acres). The outstanding position offers superb, uninterrupted and far reaching views in every direction over the neighbouring countryside and Exmoor and out towards the Hangman Hills, the Bristol Channel and the rugged coastline.

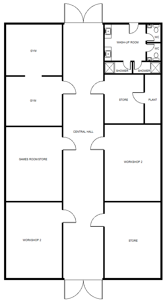
Within the grounds is a huge 75ft x 45ft detached modern barn which has been divided up into different units and again providing a wide variety of different uses with some potential light commercial uses as well subject to any necessary consent. Within the barn there are six different areas including a store and plant room, 2 large and well-equipped workshops, a 30ft long gym, a games room/store and a storage unit that has, in the past, been let out to provide a useful additional income.

Guyscliffe Farm also has its own campsite for tented visitors and also wild camping. This is run under the 60 day permitted development rule which allows the site to operate without a camping licence or formal planning permission. The area allocated for the campsite sits on the northern side of the holding and provides six pitches, all with electric hook up points for both camping and caravans In addition to that, part of the large barn has been converted to form newly created showers and toilets and a wash-up area for the campers to use whilst on site. Furthermore, the campsite enjoys arguably the finest views of all from the property with the main vista directly down the valley and out towards the Bristol Channel and the rugged coastline. From here, there would be some spectacular sunsets to be enjoyed throughout the year!

The land surrounds the farm buildings on all sides and provides a high degree of privacy and seclusion. A sweeping driveway leads up through the grounds which has been recently widened to accommodate larger vehicles. There are various paddocks throughout the holding which are ideal for small animals such as horses, sheep, goats, chickens and ducks. There is also ample space for vegetable production and cultivation if desired. The wooded area provides a delightful area for a stroll out and is a haven for a variety of wildlife.

The living accommodation at Guyscliffe Farm is particularly versatile and perfect for the larger family, dual family occupation or for home and income purposes thus further adding to the overall commercial potential of the property. There is a well-presented, much improved and recently modernised 4 bedroom main house which is a modern detached family home built in the mid-1980's with the accommodation designed to take maximum advantage of the outstanding and far reaching views with its reverse level design. Part of the house on the lower ground floor can be closed off to form a small apartment/annexe with its own independent access which comprises a living room, kitchenette an en suite double bedroom as well as a further shower room and separate toilet. This area of the property is perfect for an elderly or dependent relative or for teenage children perhaps. Furthermore, this unit could also be let out as a summer holiday let or as a permanent let on an assured shorthold tenancy.

The present owners have undertaken many positive changes to the property adding so much to the buildings and the land to enhance the potential the property offers. A real transformative addition to the property is the recent construction of a superb bespoke 60ft x 20ft detached 2 bedroom lodge style home which provides very generously sized ancillary accommodation to the main home. The wooden structured building sits under an attractive natural slate roof with solar PV panels and has impressive rooms with high vaulted ceilings throughout as well as a 30ft long kitchen/living/dining room, a TV room and a snug/lounge. Both of the bedrooms have their own modern and well-appointed en suite facilities too. Again, the fabulous far reaching views of the coastline and countryside can be enjoyed from more or less every window as well as the two sun terraces and the allocated and enclosed area of rear garden. This newly constructed additional home is perfect for those looking for dual family occupation as it provides all of the modern comforts of any masonry constructed house. Indeed, the present owners have chosen to occupy this part of the property as their main home which then allows for the house to be let out as a holiday home or as a permanent let, for income, if desired.

For those who are looking for green credentials, Guyscliffe Farm has solar PV panels sitting on top of the large barn which supplements the electricity supply to main house and the barn and provides a feed in tariff to the National Grid and returns around £600 per annum. There is battery storage as well for this system. There is a further array of solar PV panels on the lodge roof to help provide power to the lodge and also be channelled to battery storage as well. Water is supplied from 2 natural springs. The water from the springs fill holding tanks that total 33,000 litres located in different areas of the property. The water is then pumped into the main house and the lodge providing excellent water pressure. There is also scope to add wind turbines too if required and subject to any necessary consent.

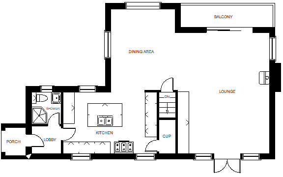
THE MAIN HOUSE

The main family home is a modern mid-1980's built reverse level detached house designed to take full advantage of the excellent far reaching views. The accommodation is arranged over two floors with the main living space on the upper ground floor and the bedrooms on the lower ground level. The property has been much improved, modernised and upgraded by the present owners to provide a versatile home ideal for the modern day family or for a family with an elderly or dependent relative as there is an area of the property on the lower ground floor that can be closed off to form an annexe/apartment. This area would also be ideal for teenage children too who want their own independent space. Furthermore, this area could be holiday or permanently let to provide a useful supplementary income. The heating in the main house is supplied via an LP gas boiler. There is also an oil fired Aga which is used as a back-up to the heating and hot water supply. The electricity supply is supplemented by the solar PV panels that sit on top of the large barn.

The house has bright and airy accommodation and comprises an entrance lobby where there is access to a shower room which is particularly handy as and when you are working in the garden. The main living space has a cosy yet modern open plan feel with an abundance of light and windows and doors that enjoy the outstanding views across the countryside and out to the coastline. The 16ft long kitchen area has a range of hand-built wooden units complimented by slate work surfaces. There is a central island unit too with a copper double bowl Belfast sink and a breakfast bar. There is the oil-fired Aga as well as an integrated oven and electric hob and further areas of hand-built floor to ceiling cupboards and incorporating space for an American style fridge/freezer. The kitchen opens into the impressive 'L-Shaped' lounge/diner which has maximum measurements of 28ft x 21ft. Throughout the room there is attractive herringbone parquet style wooden floor which has been painstakingly restored and laid by a proffessional in the trade. The room is set in two distinct areas providing a space for a large dining table and chairs as well a spacious lounge which has a marble fireplace and wood burner which adds character and atmosphere to the property and provides a focal point to the room. There is a built-in dresser unit with cupboards and shelving and glazed double doors to the rear lead out on to the garden whilst at the front, doors open on to a delightful balcony which enjoys the uninterrupted vista.

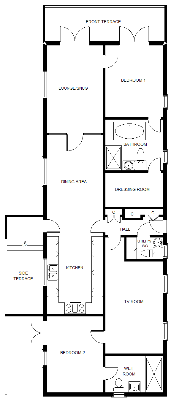
Stairs lead down to the lower ground floor where there are four bedrooms in total, each with their own well-appointed en suite facilities. Two of the bedrooms together with a modern and well-equipped kitchenette, can be shut off from the rest of the house to form the annexe/apartment if required. This would then give accommodation for the annexe of a living room, double bedroom with an en suite shower room, a kitchen and a further shower room and separate toilet. This area can be independently accessed as well to retain privacy from the main house and there are also independent electric heaters that can be run separately from main central heating system.

Immediately surrounding the house are landscaped areas of garden including a large front paved patio which is a great space for outdoor entertaining, al-fresco dining and barbecues, sun bathing etc. The patio can be directly accessed via all four bedrooms as well as the kitchenette. The gardens stretch out to the side of the building, laid to terraced lawns and interspersed with shrubs, bushes and trees. At the rear of the house there is an enclosed area immediately behind the building, accessible from the lounge and being ideal for dogs and small children. Beyond there, the gardens continue up and away from the house to an enclosure for ducks/chickens, an ornamental pond with water feature and a greenhouse.

THE ANCILLARY LODGE

As mentioned earlier, this a newly constructed home that is for use ancillary to the main house and is perfect for those looking for versatility in the overall accommodation and especially for multi-generational living. The accommodation is arranged over a single level and amounts to approximately 1,200ft2 (111m2). The high vaulted ceilings reach just under 10ft and add to the feeling of space within the building. There is an LP gas fired boiler that provides the heating and the hot water and the solar PV panels also help to supplement the electricity supply and the hot water too.

The impressive and unique accommodation comprises an entrance hall with good storage above the plant room. There is a handy utility room and toilet too. The heart of the home is the 30ft long kitchen/living/dining room. There is an extensive range of hand-built base units with slate work surfaces over, similar to that of the main house. There is a stainless-steel double bowl Belfast sink unit, provision for a range style cooker with an extractor canopy over and further floor to ceiling cupboards providing an abundance of storage and incorporating a niche for an American style fridge/freezer. There is plenty of space for a family sized dining table and chairs and an attractive stained glass door and screen provides a feature to the room and leads through into the lounge/snug. The lounge/snug is a cosy twin-aspect room with glazed double doors that perfectly frame the far reaching fabulous views over the countryside and open on to a 20ft long sun terrace which stretches across the width of the lodge. In addition, a 16ft long Cinema room provides a further space to relax and enjoy. There is a feature ornamental fireplace and blackout wooden shutters. The two bedrooms are both generous double sized room and both have their own en suite facilities. Bedroom 1 has glazed double doors that open onto the sun terrace as mentioned earlier. A door leads through into a well-appointed en suite bathroom which comprises a white suite with a roll-top bath as well as a separate walk-in shower cubicle. Leading from the en suite is a walk-in wardrobe/dressing room with shelving and hanging rails. Bedroom 2 also has double doors out on to a separate sun terrace and enjoys the excellent views. There is a range of fitted cupboards, shelving and hanging rails. The en suite wet room has easy access and plenty of space suiting elderly or disabled users as well as a remote-controlled Mira shower.

Outside, as well as the two sun terraces, the lodge has its own area of enclosed and allocated low maintenance garden to the side and rear of the building. The garden area is laid mainly to attractive plumb slate gravel bounded by a wooden fence and stone-filled gabion baskets. There is direct vehicular access up to the lodge as well with plenty of parking space immediately outside too.

This really is an impressive and unique unit of accommodation and a fabulous and very comfortable additional living space.

THE LAND AND OUTBUILDINGS

As mentioned above, Guyscliffe Farm sits in 24.165 acres (9.779 hectares). The sweeping driveway leads up through the grounds to the house and outbuildings where there is a good-sized car park for visitors and the guests to the campsite. There is plenty of parking for numerous cars and larger vehicles and farm equipment too. Immediately adjacent to the car park is a level and enclosed area of garden which has a carefully positioned summer house which soaks up the views in all directions and is the perfect vantage point for those spectacular sunsets we mentioned earlier. There is also a portable cabin as well which is a very useful additional facility and is available by separate negotiation.

The main 75ft x 45ft barn has been described above. There are services to that barn which include water, electricity and drainage. There are further parking areas around the barn too. Adjacent to the barn is a wood store as well as a large modern open fronted barn which houses three 10,000 litre water holding tanks. There are different pockets of land and enclosed paddocks throughout the grounds to enjoy.

There area of woodland sits on the western side of the property and adjacent to and beyond there are various fields suitable for animals such as sheep, goats, alpacas, horses etc.

SERVICES AND COUNCIL TAX

There is mains electricity supplemented by solar PV panels which also provide a feed in tariff of around £600 per annum. The water is supplied from two different springs and feed various holding tanks which, in total, store up to 33,000 litres. The water is filtered and pumped to various areas around the farm including the main house, lodge and large barn. There are two private sewerage systems. The property also has an underground LP gas tank and over ground oil tank.

The property currently has one council tax band which is Band E.

MAIN HOUSE

Upper Ground Floor

Entrance Lobby 5'2" x 5' (1.57m x 1.52m).

Shower Room 5'7" x 5'2" (1.7m x 1.57m).

Kitchen 16'2" x 11' (4.93m x 3.35m).

Dining Room 14' x 11'4" (4.27m x 3.45m).

Lounge 21'4" x 16'3" (6.5m x 4.95m).

Lower Ground Floor

Hallway

Bedroom 1 12' x 10'5" (3.66m x 3.18m).

En Suite Bathroom 6'5" x 5' (1.96m x 1.52m).

Bedroom 2 16'4" x 10' (4.98m x 3.05m). Maximum measurements

En Suite Shower Room 6'7" x 5'3" (2m x 1.6m).

Bedroom 3 12'10" x 10'3" (3.9m x 3.12m). Maximum measurements

En Suite Toilet 5' x 4' (1.52m x 1.22m).

Bedroom 4/Living Room 14'4" x 12'2" (4.37m x 3.7m). Maximum measurements

En Suite Shower 5'6" x 3' (1.68m x 0.91m).

En Suite Toilet 5'5" x 5'3" (1.65m x 1.6m).

Kitchenette 10'6" x 4'8" (3.2m x 1.42m).

THE LODGE

Entrance Hall 9'9" x 3'5" (2.97m x 1.04m).

Utility Room/Toilet 6'4" x 3'5" (1.93m x 1.04m).

Kitchen/Diner 30'9" x 9'9" (9.37m x 2.97m).

Lounge/Snug 15' x 9'9" (4.57m x 2.97m).

TV Room/Cinema Room 19'9" x 9'9" (6.02m x 2.97m). Maximum measurements

Bedroom 1 12'4" x 9'10" (3.76m x 3m).

En Suite Bathroom 9'9" x 7'5" (2.97m x 2.26m).

Walk-in Wardrobe 9'9" x 5'10" (2.97m x 1.78m).

Bedroom 2 12'10" x 9'9" (3.9m x 2.97m).

En Suite Wet Room 9'8" x 6'5" (2.95m x 1.96m).

Front Sun Terrace 19'9" x 6' (6.02m x 1.83m).

Side SunTerrace 21'3" x 6'6" (6.48m x 1.98m).

THE LARGE BARN

Central Hallway 74' x 12' (22.56m x 3.66m).

Gym 29'8" x 16'5" (9.04m x 5m).

Store 14'5" x 10'7" (4.4m x 3.23m).

Plant Room 14'5" x 4'9" (4.4m x 1.45m).

Workshop 2 22'6" x 16'6" (6.86m x 5.03m).

Store/Games Room 21'7" x 16'5" (6.58m x 5m).

Workshop 1 22'4" x 16'5" (6.8m x 5m).

Store 22'1" x 16'5" (6.73m x 5m).

CAMP SITE FACILITIES

Wash-up Room 10'6" x 10'4" (3.2m x 3.15m).

Toilet 1 5' x 4'4" (1.52m x 1.32m).

Toilet 2 5' x 4'4" (1.52m x 1.32m).

Shower Room 1

Shower Room 2

OPEN FRONTED BARN 45'6" x 11'10" (13.87m x 3.6m).

Applicants are advised to proceed from Barnstaple on the B3230. Continue along the road following it into Muddiford, about 2.4 miles in total. Turn right on to Whitefield Hill, shortly after the Muddiford Inn and continue up the hill for a further 3.4 miles to Berry Down Cross. At Berry Down Cross, at the junction, proceed straight on onto the A3123. A further 0.3 miles on, ignore the right-hand turn signed Blackmoor Gate and Lynton and proceed straight on following the signs to Combe Martin. Follow this road for a further 1.9 miles where the entrance to the drive of Guyscliffe Farm will be found on the left-hand side, immediately opposite a road side property and clearly marked with a Fine & Country For Sale board. Follow the drive up to the car parking area.

Important Information

  • This is a Freehold property.

Property Ref: 55837_ILF230133

Share:

Similar Properties

Mortehoe, Woolacombe, Devon

6 Bedroom Detached House | Offers in excess of £1,250,000

Situated in a fabulous coastal location enjoying outstanding sea and country views, this property offers so much and is...

Lee, Devon

4 Bedroom Detached House | Guide Price £1,000,000

Park Cottage is a beautifully presented and highly individual four bedroom detached family home, located in the exceedin...

Crofts Lea Park, Ilfracombe, Devon

6 Bedroom Semi-Detached House | Guide Price £975,000

THIS HOME DEFINITELY HAS THE WOW FACTOR! A stunning, immaculately presented, very spacious and versatile semi-detached V...

West Down, Ilfracombe, North Devon

17 Bedroom Park Home | Guide Price £1,575,000

CHECK OUT OUR AMAZING AERIAL PROPERTY TOUR AND LOCAL AREA GUIDEFANTASTIC INCOME EARNING POTENTIAL - CIRCA £143,000!!Situ...

West Down, Ilfracombe, Devon

17 Bedroom Detached House | Guide Price £1,575,000

CHECK OUT OUR AMAZING AERIAL PROPERTY TOUR AND LOCAL AREA GUIDEFANTASTIC INCOME EARNING POTENTIAL - CIRCA £143,000!!Situ...

Mortehoe, Woolacombe, Devon

6 Bedroom Detached House | Guide Price £2,000,000

An exceptional opportunity to own a bespoke North Devon estate in a stunning coastal setting with breathtaking sea and c...

Webbers Ilfracombe (Ilfracombe)

Ilfracombe, Devon, EX34 9QB

01271 863091

How much is your home worth?

Use our short form to request a valuation of your property.

Request a Valuation

Mortgage Calculator

Amount Borrowed: £
Total Amount Repayable: £
Total Monthly Payment: £
©2025 The Guild of Property Professionals. All rights reserved. Terms and Conditions | Privacy Policy | Cookie Policy | Complaints Policy | Members Login
The Guild of Property Professionals Trading Address: 121 Park Lane, London W1K 7AG. GPEA Limited. Registered in England & Wales.  Company No: 02819824.  Registered Office Address: 2 St. Stephen's Court, St. Stephen's Road, Bournemouth, Dorset, England, BH2 6LA.  VAT Registration No: 576 8795 61
Book a Property Valuation Update Cookies Preferences