North Morte Road, Mortehoe, Devon

Guide Price
£350,000

3 Bedroom Apartment for sale in Devon

1 3 2
  • Sought after coastal village location
  • Well-presented and spacious purpose built apartment
  • Located on the first floor with views over surrounding countryside
  • Ideal as a permanent home or second home/holiday let
  • Centrally located close to all of the village amenities
  • Short distance from the golden sand award winning surfing beaches of Woolacombe
  • Gas central heating
  • Communal car parking
  • No onward chain

Sought after coastal village location
Well-presented and spacious purpose built apartment
Located on the first floor with views over surrounding countryside
Ideal as a permanent home or second home/holiday let
Centrally located close to all of the village amenities
Short distance from the golden sand award winning surfing beaches of Woolacombe
Gas central heating
Communal car parking
No onward chain

3 Headland Court is a very spacious and well-presented purpose built first floor apartment situated in the very centre of the sought after village of Mortehoe. The property is one of six units within the building which has a very well-run management company and is beautifully maintained both internally and externally. External painting of the building has been completed in 2020. Headland Court comes with its own parking which is much sought after within the village with apartment 3 having a parking space as well as further visitor parking. The property is considered ideal as a permanent residence or alternatively would make a comfortable second home or holiday let.

Headland Court is situated in North Morte Road and is close to the local village amenities which includes a general store/post office, a variety of public houses serving food and a church. There is plenty of nearby walking over some delightful footpaths enjoying magnificent coastal scenery. Just a short distance away is the very popular Woolacombe Bay which is famous throughout the UK and having recently been voted the best beach in the UK on TripAdvisor. It has 2 and a half miles of award winning blue flag golden sand beach. Wooalcombe has further facilities which includes small independent shops, a primary school, health centre, chemist and other leisure facilities.

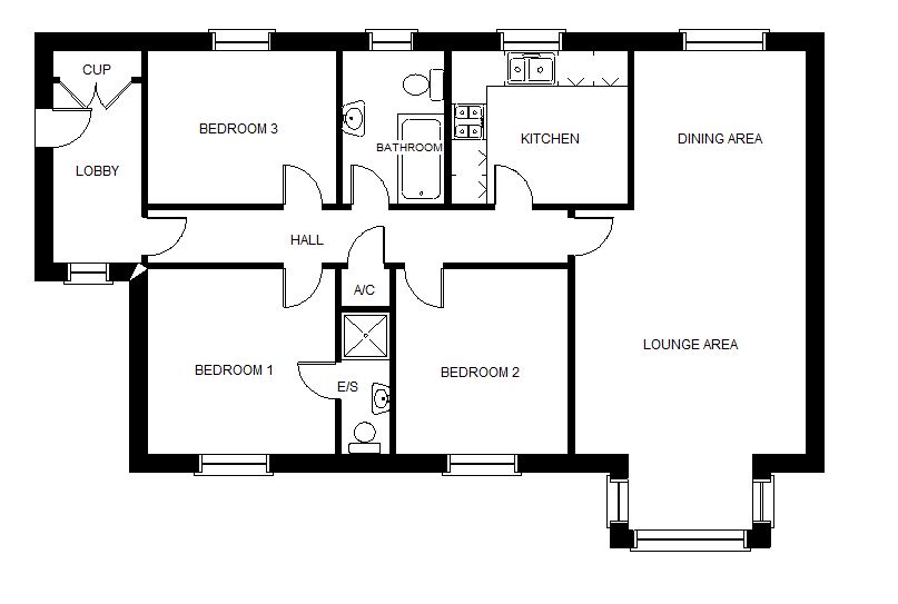
The accommodation briefly comprises of a communal entrance door and entry phone system and stairs then leading up to the first floor landing. Upon entering the apartment you immediately have a feeling of space with a large lobby area which has a built-in storage cupboard with double doors. The lobby then in turn leads through to a central hallway running approximately 25' giving access off to all principal rooms. Within the hallway there is a heating thermostat, entry phone system and access into the airing cupboard. To the far end of the hallway a door leads into the heart of this property which is the bright and spacious double aspect lounge/dining room with wonderful views over the surrounding countryside and National Trust land. The property has a re-fitted kitchen which comprises of base and eye level units with adjacent roll edge work surface and inset stainless steel sink with mixer tap. There is a built-in double oven with hob above and integrated dishwasher. There is a wall mounted boiler and space for both a washing machine and upright fridge freezer. From the kitchen there are similar views to the lounge/dining room over surrounding countryside. Moving through the property there are 3 good sized bedrooms with the master bedroom benefitting from an en suite shower room which has been re-fitted and comprises of enclosed shower cubicle, vanity unit with inset wash hand basin and low level w.c. The accommodation is completed with a re-fitted bathroom comprising of a white suite with panel enclosed bath and inset shower, pedestal wash hand basin, low level w.c, fully tiled walls and floor, extractor fan, heated towel rail and under-floor heating.

Outside of the property there is a private car park with a space for each apartment and additional communal visitors parking area. There are also communal grounds.

Agents Note: The property is shared freehold with 1/6th share of the freehold and there is 972 years unexpired on the lease. The current maintenance payments are £95pcm which includes the building insurance payments (maintenance of the common parts, garden & parking and allows for the building to be painted on a 4 yearly cycle, and there is no ground rent. There are no restrictions on long term or short term letting. Pets are only permitted with the consent of all the freeholders.Headland Court also run their own managment company.

Entrance Lobby 10'1" x 5'3" (3.07m x 1.6m).

Inner Hallway 25' x 2'10" (7.62m x 0.86m).

Lounge/Diner 27' (8.23m) x 13'1" (3.99m) narrowing to 9'9" (2.97m) (max).

Kitchen 10'2" x 8'6" (3.1m x 2.6m).

Bedroom 1 10'9" x 10'8" (3.28m x 3.25m).

En-Suite 8'4" x 2'10" (2.54m x 0.86m).

Bedroom 2 10'9" x 10' (3.28m x 3.05m).

Bedroom 3 10'9" x 8'5" (3.28m x 2.57m).

Bathroom 8'5" x 5'10" (2.57m x 1.78m).

Applicants are advised to proceed from our offices in a westerly direction heading out of town on the main A361 sign posted Barnstaple. At Mullacott Cross roundabout take the right hand exit sign posted Woolacombe & Mortehoe and continue along this road for approximately 2 miles. Shortly after Turnpike Cross turn right sign posted Mortehoe just before the Fortescue Public House and continue along this road for approximately two and a half miles into the village of Mortehoe. Upon entering the village proceed down the hill and turn first right immediately after the post office into North Morte Road. Headland Court will be found immediately on the left hand side of the road.

Important Information

  • This is a Share of Freehold property.

Property Ref: 55837_ILF220123

Share:

Similar Properties

High Street, Ilfracombe, Devon

Restaurant | £350,000

In a central High Street location, a 46 cover licenced restaurant and fully equipped kitchen with very large 5 bedroom V...

Mill Lane, Berrynarbor, Devon

3 Bedroom Detached House | Guide Price £350,000

Berry Mill Cottage is a beautifully presented three bedroom detached cottage located in a tucked away position on the pe...

King Street, Combe Martin, Devon

3 Bedroom Semi-Detached House | Guide Price £350,000

Characterful and quaint, Upper Glen is a glorious 3 double bedroom, 2 bathroom semi-detached property located in a tucke...

Highfield Terrace, Ilfracombe, Devon

5 Bedroom Semi-Detached House | £355,000

12 Highfield Terrace is a beautiful and newly renovated and contemporary five-bedroom semi-detached home. The property o...

Hostle Park Road, Ilfracombe, Devon

Land | Guide Price £360,000

A rare opportunity to purchase a substantial block of garages and workshops together with an area of garden, occupying a...

Hostle Park Road, Ilfracombe, Devon

Light Industrial | Guide Price £360,000

A rare opportunity to purchase a substantial block of garages and workshops together with an area of garden, occupying a...

Webbers Ilfracombe (Ilfracombe)

Ilfracombe, Devon, EX34 9QB

01271 863091

How much is your home worth?

Use our short form to request a valuation of your property.

Request a Valuation

Mortgage Calculator

Amount Borrowed: £
Total Amount Repayable: £
Total Monthly Payment: £
©2025 The Guild of Property Professionals. All rights reserved. Terms and Conditions | Privacy Policy | Cookie Policy | Complaints Policy | Members Login
The Guild of Property Professionals Trading Address: 121 Park Lane, London W1K 7AG. GPEA Limited. Registered in England & Wales.  Company No: 02819824.  Registered Office Address: 2 St. Stephen's Court, St. Stephen's Road, Bournemouth, Dorset, England, BH2 6LA.  VAT Registration No: 576 8795 61
Book a Property Valuation Update Cookies Preferences