Mortehoe, Woolacombe, Devon

Guide Price
£2,000,000

6 Bedroom Detached House for sale in Devon

4 6 3
  • Superb beautifully presented characterful home
  • 5 bedrooms with annexe potential
  • Delightful large reception rooms
  • Additional 1 bedroom holiday cottage/annexe
  • Producing an excellent supplementary income
  • Three additional barns with full residential planning permission passed - great scope and potential
  • Garage building and separate home office/studio
  • Various outbuildings for storage etc
  • Set with 5.59 acres with paddock suitable for small animals
  • Wonderful location with exceptional countryside and sea views

Superb beautifully presented characterful home
5 bedrooms with annexe potential
Delightful large reception rooms
Additional 1 bedroom holiday cottage/annexe
Producing an excellent supplementary income
Three additional barns with full residential planning permission passed - great scope and potential
Garage building and separate home office/studio
Various outbuildings for storage etc
Set with 5.59 acres with paddock suitable for small animals
Wonderful location with exceptional countryside and sea views
Just a short drive from the world class sandy beaches at Woolacombe
Immediate access to the South West Coastal footpath
A fantastic opportunity with many different uses

Offers in Excess of £1,250,000 for Main House, Cottage, Shippon Barn with Planning & Gardens, as well as the Home Office building

Or Available as a Whole – £2,000,000 for Entire Holding Including Additional Consent, Outbuildings & 5.59 Acres

Nestled in a private, tucked-away position on North Devon's breath-taking coastline, this fabulous and beautifully presented residence offers an exceptional lifestyle opportunity. Rich in character and charm, the original property is mentioned in the Domesday Book and is believed to date back over 400 years to 1622, blending heritage with versatility, space, and income potential. However, the building is not listed.

THE MAIN HOUSE

A spacious yet cosy five-bedroom home that fuses modern comfort with period charm, perfect for family living, multigenerational use, or income generation.

• Enter through an impressive stone arched porch into a home full of warmth and history.
• At its heart, a large kitchen/family room with fitted units and space for informal dining.
• A rear lobby with flagstone flooring leads to a utility room and ground floor wet room.
• A formal dining room boasts a stone fireplace, oak flooring, and a turret-style staircase.
• The lounge, perfect for cosy nights in, features a wood burner on a slate hearth.
• Upstairs, four generous bedrooms (master with sea views and built-in wardrobes) and a family bathroom.
• Furthermore, an area of the house, adaptable as an interconnecting annexe if required, includes a utility room/kitchenette, bathroom, snug and cosy lounge with vaulted ceiling and Juliet balcony, and its own staircase – ideal for a relative, teen retreat, or extra rental income.

THE COTTAGE – SELF-CONTAINED HOLIDAY LET

A charming one-bedroom cottage, beautifully converted from a former farm building, currently generating excellent holiday letting income.
• Private, enclosed garden – perfect for guests or family.
• Vaulted ceilings, A-frame beams, and a cosy lounge with wood burner.
• Modern kitchen/diner, spacious double bedroom, and a stylish bathroom with bath and walk-in shower.
• Ideal for extended family, dual occupancy, or continued letting.

THE SHIPPON BARN – WITH PLANNING PERMISSION

A characterful stone barn (still with animal pens in place), plus adjoining garage, with full planning permission to convert into a 2-bedroom, single-storey cottage.
• Would suit family use, rental income, or guest accommodation.
• Excellent scope with plenty of parking.


THE HOME OFFICE BUILDING

Separate building with broadband and electrics, ideal for remote work or a home business.

GROUNDS & SETTING

• Approached via a long sweeping shared driveway for added privacy.
• Beautifully landscaped gardens, including a walled rear courtyard, colourful seaward garden with large lawn, summer house, and patio capturing the stunning countryside and sea views.
• Ample off-road parking and a large garage.
• Immediate access to local footpaths and the South West Coast Path for magnificent walks and scenery.
________________________________________

THE EXTENDED OFFER – AVAILABLE AT £2,000,000

For buyers with a broader vision, a truly rare opportunity to expand the estate and capitalise on its full potential:

Large Derelict Stone Barn
• Planning consent to convert into a substantial 4-bedroom residence, with perpetual planning status already activated.
• Superb views across countryside to the coast.

Enclosed Paddock (Approx. 2.9 Acres)
• Ideal for horses, livestock, or smallholding.
• Accessed via 5-bar gates from main drive, stunning views throughout.

Dutch Barn with Full Planning Permission
• Convert into a two-storey, 3-bedroom residence with sea views.
• Adjoining storage barns – ideal for mowers, workshop, or further development (STP).

Lower Paddock Area (Approx. 1 Acre)
• Enclosed, gently sloping paddock with direct access to footpaths and a haven for wildlife.
• Perfect for further use, grazing or leisure.

Hardcore Track Access
• Vehicle access wraps around the northern side of the property for excellent movement and future use potential.


LOCATION – THE BEST OF NORTH DEVON

• Minutes from Mortehoe, a quintessential coastal village, and the world-renowned Woolacombe Beach, with its golden sands and surfing culture.
• Nearby towns include Ilfracombe and Braunton, with the larger centre of Barnstaple offering major amenities including supermarkets, leisure facilities, hospital, theatre, cinema, schools, and rail links to Exeter.
• Fast access to the A361 North Devon Link Road and M5 at Junction 27.
• Exmoor National Park is within easy reach for dramatic moorland walks and scenic drives.
• Excellent leisure opportunities including Saunton Golf Club, surfing, cycling, horse riding, and more.

DON'T MISS THIS ONCE-IN-A-LIFETIME OPPORTUNITY

Whether you're seeking a generational family home, income-producing lifestyle business, or the chance to develop and create a bespoke North Devon estate, this property offers it all – and more.

Call us now to book your viewing.

Main House

Entrance Porch 10'4" x 7'9" (3.15m x 2.36m).

Kitchen/Family Room 18'9" x 17'7" (5.72m x 5.36m).

Dining Room 14'11" x 14'10" (4.55m x 4.52m).

Living Room 19'2" x 14'10" (5.84m x 4.52m).

Inner Hall 8'8" x 5' (2.64m x 1.52m).

Laundry Room 10'7" x 5'11" (3.23m x 1.8m).

Wet (Shower) Room 12'11" x 5'6" (3.94m x 1.68m).

Rear Porch

Utility Room 17'8" x 9'7" (5.38m x 2.92m).

First Floor

Landing 17'5" x 2'11" (5.3m x 0.9m).

Bedroom 1 17'7" x 15'8" (5.36m x 4.78m).

Bedroom 2 12'2" x 7'5" (3.7m x 2.26m).

Bedroom 3 12'2" x 7'1" (3.7m x 2.16m).

Bedroom 4 10' x 8'2" (3.05m x 2.5m).

Family Bathroom 10'8" x 7'3" (3.25m x 2.2m).

Inner Landing 13'1" x 5'5" (4m x 1.65m).

Bedroom 5 14'6" x 13'1" (4.42m x 4m).

Bathroom No 2 11'2" x 5'8" (3.4m x 1.73m).

Sung/Sitting Room 16'6" x 10'10" (5.03m x 3.3m).

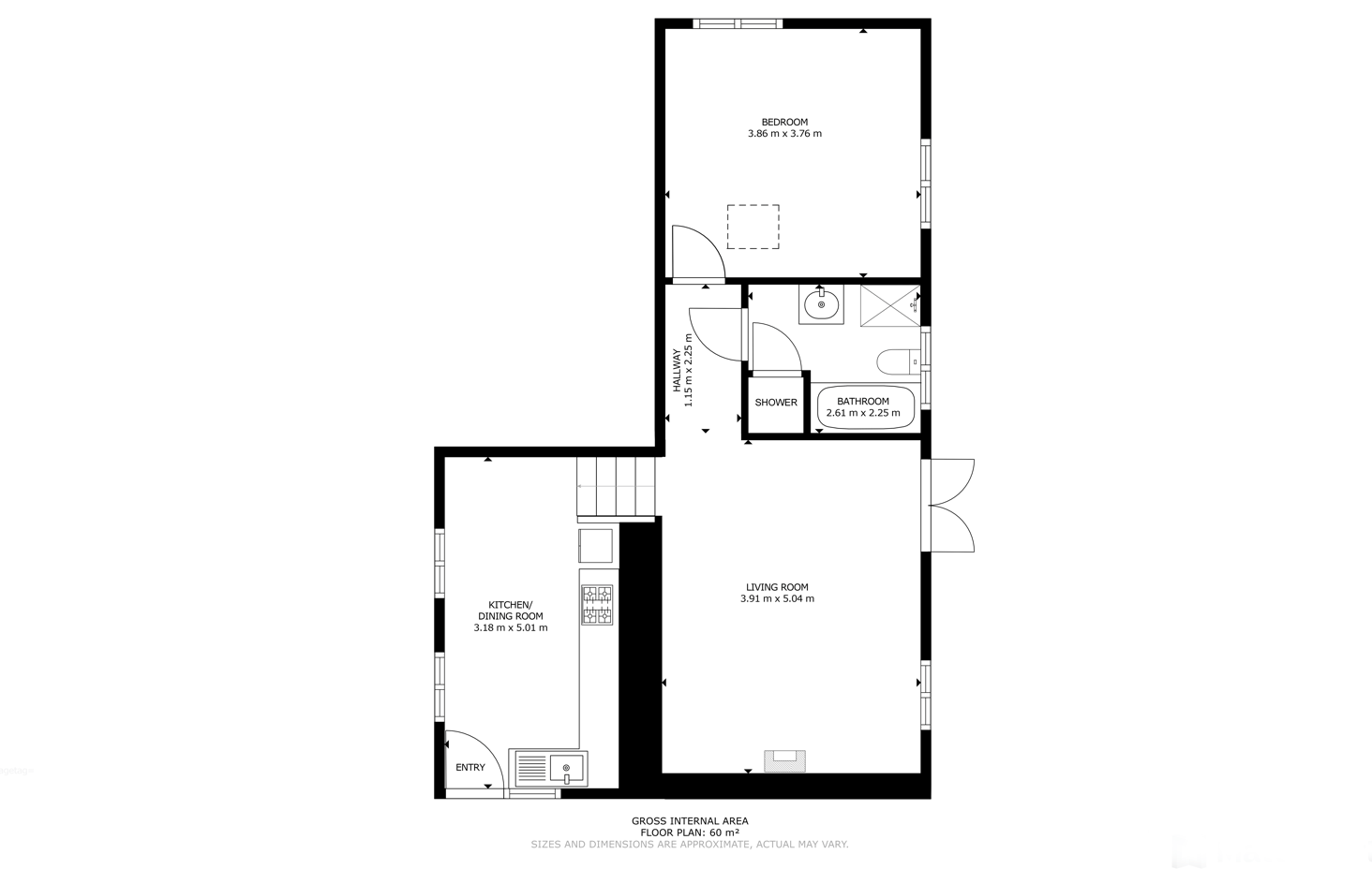
Additional Cottage

Entrance: Living Room 16'6" x 12'10" (5.03m x 3.9m).

Kitchen/Dining Room 16'5" x 10'5" (5m x 3.18m).

Inner Hall 7'5" x 3'9" (2.26m x 1.14m).

Bathroom 8'7" x 7'5" (2.62m x 2.26m).

Bedroom 12'8" x 12'4" (3.86m x 3.76m).

Outside

Large Stone Built Derelict Barn

Shippon Barn

Dutch Barn

Garage Building

Home Office Building

Various Storage Outbuildings

Applicants are advised to proceed from Barnstaple on the main A361 sign posted Braunton and Ilfracombe. Follow the road through Braunton for approximately 10 miles to Mullacott Cross roundabout. At the roundabout take the first left-hand exit sign posted Woolacombe & Mortehoe and continue along this road for approximately 1 1/2 miles to Turnpike Cross. Shortly after Turnpike Cross, turn right, sign posted Mortehoe, onto Mortehoe Station Road. Follow this road for 1 1/4 miles where the entrance to Yarde Farm will be found on the right-hand side shortly after Damage Barton. Yarde Farm is accessed via a long sweeping driveway that leads down to the property.

Important Information

  • This is a Freehold property.

Property Ref: 55837_ILF250298

Share:

Similar Properties

West Down, Ilfracombe, North Devon

17 Bedroom Park Home | Guide Price £1,575,000

CHECK OUT OUR AMAZING AERIAL PROPERTY TOUR AND LOCAL AREA GUIDEFANTASTIC INCOME EARNING POTENTIAL - CIRCA £143,000!!Situ...

West Down, Ilfracombe, Devon

17 Bedroom Detached House | Guide Price £1,575,000

CHECK OUT OUR AMAZING AERIAL PROPERTY TOUR AND LOCAL AREA GUIDEFANTASTIC INCOME EARNING POTENTIAL - CIRCA £143,000!!Situ...

Rectory Road, Combe Martin, Devon

6 Bedroom Detached House | Guide Price £1,500,000

CHECK OUT OUR SUPERB WALKTHROUGH TOUR OF THE HOUSE AND LODGESituated in the heart of the North Devon countryside and clo...

Webbers Ilfracombe (Ilfracombe)

Ilfracombe, Devon, EX34 9QB

01271 863091

How much is your home worth?

Use our short form to request a valuation of your property.

Request a Valuation

Mortgage Calculator

Amount Borrowed: £
Total Amount Repayable: £
Total Monthly Payment: £
©2025 The Guild of Property Professionals. All rights reserved. Terms and Conditions | Privacy Policy | Cookie Policy | Complaints Policy | Members Login
The Guild of Property Professionals Trading Address: 121 Park Lane, London W1K 7AG. GPEA Limited. Registered in England & Wales.  Company No: 02819824.  Registered Office Address: 2 St. Stephen's Court, St. Stephen's Road, Bournemouth, Dorset, England, BH2 6LA.  VAT Registration No: 576 8795 61
Book a Property Valuation Update Cookies Preferences