Torrs Park, Ilfracombe, Devon

£199,950

2 Bedroom Apartment for sale in Devon

1 2 1
  • An immaculately presented ground floor apartment
  • 2 good sized double bedrooms with ample storage
  • Open plan kitchen/dining room through to a bright and airy living room
  • Fitted kitchen with a range of wall and base units
  • Gas radiator central heating
  • 4 piece bathroom
  • South facing communal gardens
  • Private parking and visitors parking
  • Ideal investment purchase or permanent home
  • Services: All mains connected

An immaculately presented ground floor apartment
2 good sized double bedrooms with ample storage
Open plan kitchen/dining room through to a bright and airy living room
Fitted kitchen with a range of wall and base units
Gas radiator central heating
4 piece bathroom
South facing communal gardens
Private parking and visitors parking
Ideal investment purchase or permanent home
Services: All mains connected
EPC: D
Council Tax Band: B

Being located in the poplar area of Ilfracombe town is this beautifully presented 2 double bedroom good sized ground floor apartment having the benefit of a bright and airy open plan living room and kitchen and a newly installed 4 piece shower room.

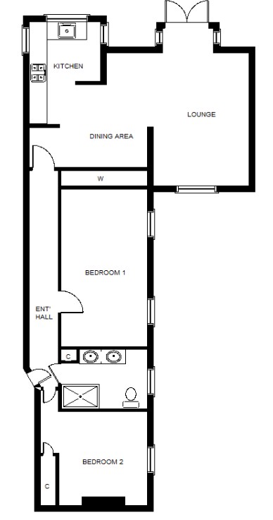
Kingswood house is a large converted Victorian building situated in the leafy area of Torrs Park yet within close proximityof the High Street, sea front and harbour. The accommodation is arranged over the ground floor and comprises a spacious entrance hall with doors leading off to all the rooms with a spacious kitchen/diner which opens out into a bright and airy living room creating a wonderful sociable feel with the total floor space measuring 26' x 20' and having an outlook over the communal gardens. There is a modern fitted triple aspect kitchen with a range of wall and base units with an inset 4 ring gas hob with oven below and extractor hood over, inset stainless steel sink with mixer tap and drainer and space for a washing machine and tumble dryer. There is a wall mounted combi-boiler which provides the domestic hot water and central heating. The dining area offers ample space for a dining room table and chairs as well as a corner seating area and a useful recess, currently being used as a study. There is a step up into the lounge being particularly spacious and having double doors leading to a glazed juliet balcony overlooking the communal gardens to the rear. There are 2 good sized double bedrooms with the main bedroom having built-in wardrobes to one side of the room and the second bedroom having the benefit of a large storage cupboard. Completing the accommodation is a 4 piece shower room comprising a large shower cubicle with mains shower and sliding door, double wash hand basin set into vanity unit, low level w.c and heated towel rail. There is a useful linen cupboard with slatted shelving.

Outside of the property to the rear there is a large low maintenance gravel chipped communal garden having a south facing aspect. The apartment benefits from a private parking space as well as visitors parking. The sole selling agents feel that this property would ideally suit as an investment purchase or alternatively as a low maintenance permanent home. Early viewings are advised.

The property is leasehold with the balance of an original 999 year lease which commenced on the 1st January 2002. The freehold is vested within the
management company, Kingswood House
Management and each flat owner has a 1/10 share in the company. The service charge
which includes maintenance of the common and external areas and building insurance is currently £90 per month. Usual domestic pets are
allowed within the building and we understand that
assured short hold letting is permitted but holiday letting is prohibited.

Applicants are advised to proceed from our offices in an easterly direction taking the first left hand turn into Northfield Road. Proceed down Northfield Road and continue straight across at the traffic lights. Turn left into Torrs Park road and continue up this road for approximately 250 yards and Kingswood House will be found on the left hand side.

Important Information

  • This is a Leasehold property.

Property Ref: 55837_ILF250003

Share:

Similar Properties

Lantern Court, Hillsborough Road, Ilfracombe

2 Bedroom Apartment | Guide Price £199,500

This beautifully presented two-bedroom retirement apartment is located in an enviable position, offering breathtaking vi...

Seaside, Combe Martin, Ilfracombe

2 Bedroom Semi-Detached House | Guide Price £195,000

Dolphin Cottage is a charming double-fronted two-bedroom cottage set in a prime position directly opposite Combe Martin...

Willingcott Valley, Woolacombe, Devon

2 Bedroom House | £190,000

Offering a modern contemporary feel is this simply stunning 2 bedroom holiday cottage which has superb views. The proper...

Castle Street, Combe Martin, Ilfracombe

2 Bedroom Terraced House | Guide Price £200,000

A charming and well-presented two-bedroom character cottage, nestled in a quiet, secluded spot within this highly sought...

Greenclose Mews, Greenclose Road, Ilfracombe

3 Bedroom House | Guide Price £210,000

Situated in the centre of the town in a convenient yet tucked away location just a minutes' walk from the High Street an...

Highfield Gardens, Combe Martin, Ilfracombe

3 Bedroom Terraced House | Guide Price £210,000

***MAKE AN OFFER!!!***   Welcome to this deceptively spacious three-bedroom terraced home, perfectly positioned in a pea...

Webbers Ilfracombe (Ilfracombe)

Ilfracombe, Devon, EX34 9QB

01271 863091

How much is your home worth?

Use our short form to request a valuation of your property.

Request a Valuation

Mortgage Calculator

Amount Borrowed: £
Total Amount Repayable: £
Total Monthly Payment: £
©2025 The Guild of Property Professionals. All rights reserved. Terms and Conditions | Privacy Policy | Cookie Policy | Complaints Policy | Members Login
The Guild of Property Professionals Trading Address: 121 Park Lane, London W1K 7AG. GPEA Limited. Registered in England & Wales.  Company No: 02819824.  Registered Office Address: 2 St. Stephen's Court, St. Stephen's Road, Bournemouth, Dorset, England, BH2 6LA.  VAT Registration No: 576 8795 61
Book a Property Valuation Update Cookies Preferences