- END OF TERRACE PERIOD HOUSE
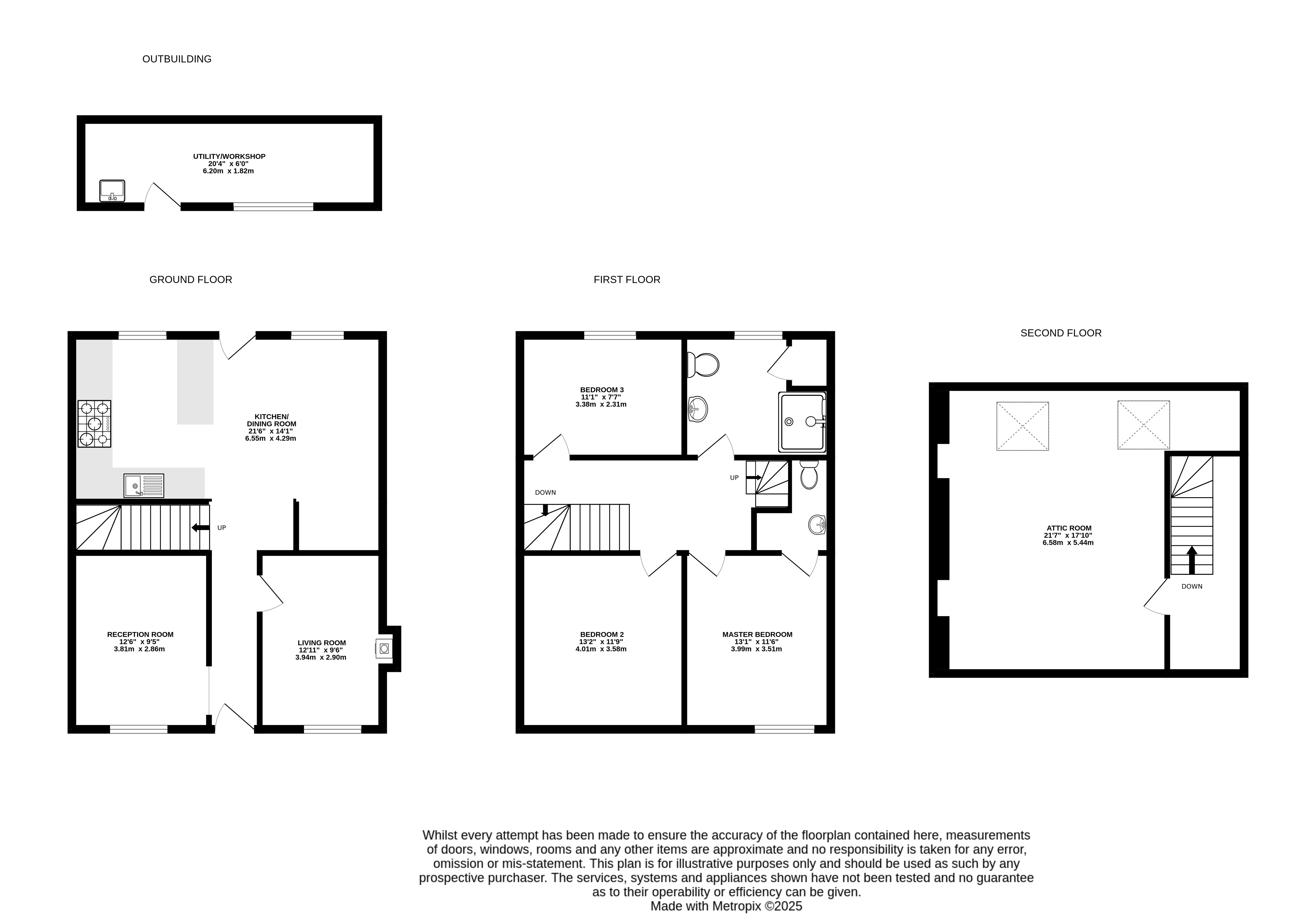
- THREE BEDROOMS PLUS LARGE ATTIC ROOM
- LARGE KITCHN/DINING ROOM
- TWO RECEPTION ROOMS
- OFF STREET PARKING
- OUTBUILDING IDEAL FOR UTILITY/STORAGE
- SUNNY SOUTH FACING COURTYARD
- NO ONWARD CHAIN
END OF TERRACE PERIOD HOUSE 
THREE BEDROOMS PLUS LARGE ATTIC ROOM
LARGE KITCHN/DINING ROOM
TWO RECEPTION ROOMS
OFF STREET PARKING
OUTBUILDING IDEAL FOR UTILITY/STORAGE
SUNNY SOUTH FACING COURTYARD
NO ONWARD CHAIN
This beautifully presented three-bedroom period townhouse is full of character and charm, ideally located within walking distance of local amenities. Offering off-road parking and an enclosed south-facing courtyard garden, the property combines traditional style with practical modern features.
Inside, the home is thoughtfully arranged over three levels. The house to the front features Georgian-style double-glazed windows and to the rear uPVC double glazing. The property also benefits from a multi-fuel wood-burning stove set on a slate hearth. The spacious open-plan kitchen/dining area is beautifully presented, with ample space for a large dining table. There is also an additional reception area ideal for use as a snug or study area. Upstairs to the first floor are three bedrooms, including a main bedroom with an en-suite cloakroom. The modern shower room includes a three-piece suite comprising a shower, sink, and WC. A converted attic room provides plenty of storage space with skylights and exposed A-Frame, insulated ceilings and polished floor boards.
Outside, the property is set slightly back from the road, with off-road parking provided by a private area to the front. To the rear, a low-maintenance, enclosed south-facing courtyard offers a peaceful retreat, along with a useful outbuilding with power and water connected, ideal for storage or use as a utility space.
SERVICES    All mains services connected. Gas fired central heating.
TENURE    Freehold
VIEWINGS    Strictly by appointment through the sole selling agent
COUNCIL TAX BAND    C - NDDC
From our office head down East Street and the property will be found shortly after the turning to Station Road on the right hand side. 
What3words: ///quick.bath.reduction
Important Information
Property Ref: 55885_SOU250070
Hugh Squier Avenue, South Molton, Devon
4 Bedroom Terraced House | £265,000
A much-loved four-bedroom family home on Hugh Squier Avenue, offered for sale for the first time in 40 years with no onw...
Kingdon Avenue, South Molton, Devon
3 Bedroom Semi-Detached House | Offers in excess of £260,000
This attractive three-bedroom semi-detached home is ideally situated on the outskirts of South Molton, enjoying a covete...
Oaktree Road, South Molton, Devon
3 Bedroom Terraced House | Guide Price £260,000
This attractive and well-presented three-bedroom terraced house offers thoughtfully arranged accommodation over three fl...
Fore Street, North Molton, South Molton
3 Bedroom Detached House | Guide Price £285,000
THREE BEDROOM DETACHED HOUSE SET WITHIN THE PICTURESQUE NORTH DEVON VILLAGE OF NORTH MOLTON.Located within the idyllic N...
Wiriga Way, Witheridge, Tiverton
3 Bedroom Semi-Detached Bungalow | Guide Price £285,000
Situated in the popular village of Witheridge, 6 Wiriga Way is a deceptively spacious three bedroom semi-detached bungal...
Oaktree Road, South Molton, Devon
4 Bedroom House | £289,000
A beautifully presented four-bedroom end-of-terrace home on the edge of South Molton, offering spacious accommodation ov...
 
                            Webbers South Molton (South Molton)
South Molton, Devon, EX36 3AQ
Use our short form to request a valuation of your property.
Request a Valuation