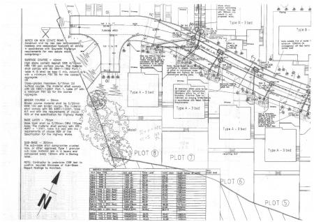
Plot 7 & 8, Maesbrith, Dolgellau, LL40 1LF

Offers in region of
£50,000
SSTC
This property listing is now SSTC

4 Bedroom Plot for sale in Dolgellau

2 4 2
  • Building Plot with full planning permission
  • Located in an Elevated Position
  • Situated in a popular private estate
  • 4 Bedrooms (1 en suite)
  • Family Bathroom
  • Kitchen/Dining Room
  • Large garden to rear
  • Sitting Room
  • Spacious accommodation over three floors
  • Stunning Open Countryside Views

** 2 PLOTS AVAILABLE at O.I.R.O £50,000 PER PLOT**

This is a fantastic opportunity to purchase a fully serviced building plot, situated in an elevated position, in a private and popular residential area. The plot is within close proximity of the town centre and local amenities, in the historic market town of Dolgellau, within the Eryri (Snowdonia) National Park.

Full planning permission was granted in 2006, with work being commenced within the specified timescale, which means that the site is ready to be built on. The current vendor has recently commenced more works at the site.

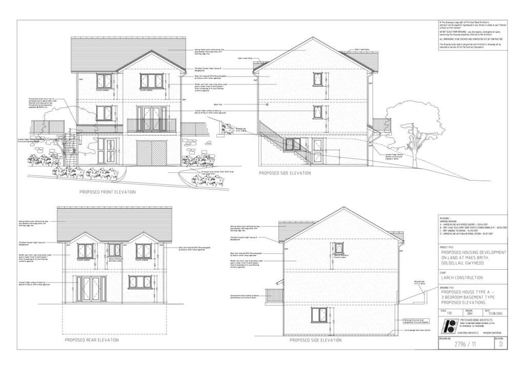
The approved planning permission provides spacious and comfortable accommodation across three floors, enjoying distant open countryside views.

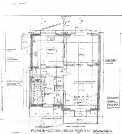
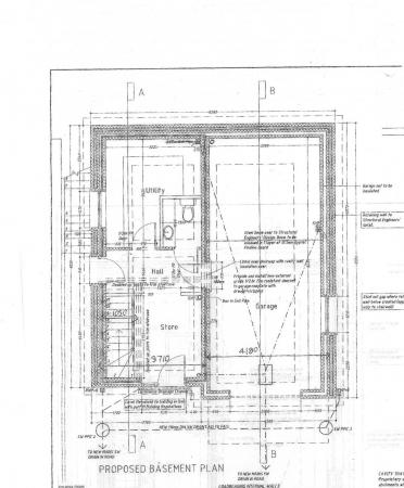
The accommodation is as follows:- Ground floor: Entrance hall, utility room, WC, garage. First floor: Landing, sitting room, dining room, kitchen. Second floor: landing, bedroom 1 (en-suite shower room) bedroom 2, bedroom 3, family bathroom and bedroom 4/study.

There will be off road parking to the front and a large inclining garden to be landscaped to the rear.

This is an exciting and rare opportunity and early viewing is highly recommended.




Tenure: Freehold

Important Information

  • This is a Freehold property.

Property Ref: 748451_RS2788

Share:

Similar Properties

Flat 4, St. Davids Court, St. Johns Hill, Barmouth, LL42 1AF

2 Bedroom Flat | Guide Price £60,000

Flat 4, St. David's Court, is a one/two bedroomed, 3rd floor apartment of stone built construction. The property is situ...

Cabin 234 Trawsfynydd Holiday Village, Trawsfynydd, Blaenau Ffestiniog LL41 4YB

2 Bedroom Detached Bungalow | Offers in region of £65,000

Situated within the popular Trawsfynydd Holiday Village, Cabin 234 is a charming detached two-bedroom Norwegian Pine cab...

Aber Avon Shop, High Street, Barmouth

1 Bedroom Studio Apartment | Offers in region of £75,000

Aber Avon Shop is a ground floor commercial property located in a prominent position on the High Street in Barmouth. The...

Walter Lloyd Jones & Co (Dolgellau)

Bridge Street, Dolgellau, Gwynedd, LL40 1AS

01341 422278

How much is your home worth?

Use our short form to request a valuation of your property.

Request a Valuation

Mortgage Calculator

Amount Borrowed: £
Total Amount Repayable: £
Total Monthly Payment: £
©2025 The Guild of Property Professionals. All rights reserved. Terms and Conditions | Privacy Policy | Cookie Policy | Complaints Policy | Members Login
The Guild of Property Professionals Trading Address: 121 Park Lane, London W1K 7AG. GPEA Limited. Registered in England & Wales.  Company No: 02819824.  Registered Office Address: 2 St. Stephen's Court, St. Stephen's Road, Bournemouth, Dorset, England, BH2 6LA.  VAT Registration No: 576 8795 61
Book a Property Valuation Update Cookies Preferences