46 Ashfield Drive

Offers in region of
£125,000
SSTC
This property listing is now SSTC

3 Bedroom End of Terrace House for sale in DONAGHADEE

2 3 1

John Minnis Estate Agents is pleased to present 46 Ashfield Drive, a charming end terrace home situated in the desirable town of Donaghadee. This well-proportioned property offers comfortable living with a spacious sitting room featuring a cosy electric fire, creating a warm and inviting atmosphere. The downstairs kitchen provides a practical space for day-to-day living.

Upstairs, three double bedrooms- two with built-in storage- offer generous accommodation suited to families or those working from home. The property benefits from oil-fired central heating and uPVC double glazing throughout, ensuring warmth and efficiency year-round.

Outside, the large, fully enclosed front garden is a rare feature in this area, offering privacy and space for outdoor enjoyment. The rear garden is equally impressive, with a paved patio area perfect for relaxing or entertaining, alongside a generous lawn space.

Conveniently located close to Donaghadee's vibrant town centre, residents can enjoy a variety of shops, caf?s, and scenic coastal walks nearby. Excellent local amenities and transport links make this an ideal home for all stages of life.

46 Ashfield Drive combines comfort, space, and location in a highly sought-after setting. Early viewing is recommended to fully appreciate this delightful family home.

As part of our obligations under the Money Laundering, Terrorist Financing and Transfer of Funds (Information on the Payer) Regulations 2017, all Estate Agents are required to verify the identity of purchasers involved in a property transaction.
To comply with these obligations, all purchasers will be required to complete Customer Due Diligence (AML) identity checks. These checks are carried out on our behalf by our trusted third-party provider, Thirdfort.
A charge will apply of ?20 + VAT per purchaser.

.Attractive Mid Town House Property
.Located in a Popular Residential Development
.Well Presented Throughout Leaving
.Little Left to Do but Move in and Enjoy
.Bespoke Open Plan Kitchen with Casual Dining Area
.Three Well Proportioned Bedrooms
.Bespoke Bathroom With Walk-In Shower, Toilet and Sink
.Large Extended Landscaped Back Garden
.Tarmacked Driveway For Two Cars
.Gas Heating

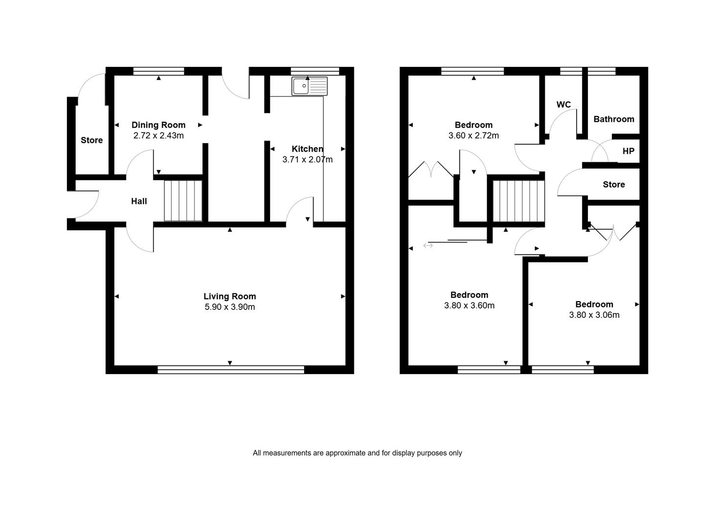
Entrance - uPVC double glazed front door to reception hall.

Reception Hall - Laminate flooring with uPVC to rear garden.

Living Room - 5.9 x 3.9 (19'4" x 12'9") - Bright spacious room with carpet flooring and electric fire.

Kitchen - 3.6 x 2.72 (11'9" x 8'11") - Bespoke range of high and low level laminate units, laminate work surfaces, single drainer stainless steel sink unit, space for cooker range, tiled splash back, extractor fan above, space for fridge freezer.

Dining Room - 2.72 x 2.43 (8'11" x 7'11") - Laminate wooden flooring.

First Floor -

Landing - Access to roof space.

Principle Bedroom - 3.8 x 3.6 (12'5" x 11'9") - Double room with built-in wardrobes.

Bedroom 2 - 3.8 x 3.06 (12'5" x 10'0") - Double room with built-in wardrobes.

Bedroom 3 - 3.6 x 2.72 (11'9" x 8'11") - Double room

Bathroom - White suite comprising: panelled bath, mixer tap and hand shower, wash hand basin with chrome mixer tap, fully tiled floor, fully tiled walls.

Wc - Low flush WC.

Outside - Fully enclosed rear garden with an array of plants and shrubs. Additional garden shred.

Donaghadee is a picturesque coastal town on the North Down coastline, celebrated for its breath-taking sea views and nearby Copeland Islands.

With charming streets filled with local shops, cafes, and outdoor activities like sailing, it offers a vibrant community spirit. Just a short drive from Belfast, Donaghadee has been voted as one of the best places to live, combining natural beauty with a welcoming atmosphere.

Property Ref: 34378066

Share:

Similar Properties

17 Mount Royal

2 Bedroom Apartment | Offers in region of £119,950

Situated in this popular development with ease of access to Donaghadee's thriving town centre and its many amenities we...

12 Abbey Court

2 Bedroom Apartment | Offers in region of £119,950

Located in this extremely popular area here is an ideal opportunity to purchase a fantastic ground floor apartment with...

Talbot Street, Newtownards

2 Bedroom Terraced House | Offers in region of £115,000

John Minnis is delighted to present 33 Talbot Street, a stylish and beautifully renovated mid-terrace home ideally locat...

Apt 3 Church Court

2 Bedroom Apartment | Offers in region of £129,950

Located right in the heart of Donaghadee, Apartment 3 Church Court is a fantastic ground floor apartment offering low-ma...

53 High Street

House | Offers in region of £129,950

Probably one of the last available opportunities to purchase a property right in the heart of Donaghadee's town centre w...

1 Bennetts Avenue

1 Bedroom End of Terrace House | Offers in region of £129,950

Located right in the heart of the popular and picturesque coastal town of Donaghadee, here is an ideal opportunity to pu...

John Minnis Estate Agents (Donaghadee)

Donaghadee, County Down, BT21 0AG

028 9188 8881

How much is your home worth?

Use our short form to request a valuation of your property.

Request a Valuation

Mortgage Calculator

Amount Borrowed: £
Total Amount Repayable: £
Total Monthly Payment: £
©2026 The Guild of Property Professionals. All rights reserved. Terms and Conditions | Privacy Policy | Cookie Policy | Complaints Policy | Members Login
The Guild of Property Professionals Trading Address: 121 Park Lane, London W1K 7AG. GPEA Limited. Registered in England & Wales.  Company No: 02819824.  Registered Office Address: 2 St. Stephen's Court, St. Stephen's Road, Bournemouth, Dorset, England, BH2 6LA.  VAT Registration No: 576 8795 61
Book a Property Valuation Update Cookies Preferences