Garret Rocks, DONAGHADEE

Offers in region of
£299,950
SSTC
This property listing is now SSTC

4 Bedroom Detached House for sale in DONAGHADEE

3 4 2

Tucked away at the end of a cul-de-sac within this popular residential area here is an ideal opportunity to purchase a detached family home which occupies a spacious site. The accommodation comprises good sized living room with attractive fireplace, open fire, cornicing and ceiling roses. Double glazed French doors from the living room lead to a conservatory which has a lovely aspect overlooking the rear garden. You also have a kitchen with casual dining and family area with potential for a fire or stove in the casual dining and family area. Upstairs you have four well proportioned bedrooms including main bedroom with extensive range of built-in wardrobes and en suite shower room. There is also a family bathroom with bath and separate shower. Outside does not disappoint either. There is a well presented front garden in lawns, driveway in loose stones with parking and fully enclosed wrap-around gardens to the rear and side with artificial lawns, array of colourful flowers, plants, mature trees and shrubs as well as timber decked terrace and south westerly aspect making it ideal for children at play, outdoor entertaining or enjoying the sun. Other benefits include oil fired central heating, uPVC double glazed windows, downstairs WC and detached garage. This property is conveniently positioned with easy access into Donaghadee's thriving town centre and its amenities which include shops, cafes, restaurants and, of course, the iconic lighthouse and harbour. Donaghadee also offers a variety of activities for the sport enthusiast which include sea swimming, sailing, golf, rugby, cricket, hockey, tennis, football and bowls. Demand is anticipated to be high and from a wide range of prospective purchasers. A viewing is thoroughly recommended at your earliest opportunity so as to appreciate it in its entirety

Attractive Detached Family Home

Cul-de-Sac Position Within Popular Residential Area

Living Room with Attractive Fireplace and Open Fire as Well as Cornicing and Ceiling Roses

uPVC Double Glazed French Doors from Living Room to Conservatory with Aspect Overlooking the Rear Garden

Fitted Kitchen with Range of Solid Wood Hand Painted Units, Open Plan to Casual Dining and Family Area with Potential for Fire or Stove Subject to Necessary Approvals

Four Well Proportioned Bedrooms Including Main Bedroom with Extensive Range of Built-in Furniture and En Suite Bathroom

Bathroom with Four Piece Suite to Include Bath and Separate Shower

Additional Downstairs WC

Oil Fired Central Heating

uPVC Double Glazed Windows

Well Presented Front Garden in Lawns

Driveway in Loose Stones with Parking

Detached Garage

Fantastic Fully Enclosed Wrap-Around Rear and Side Gardens with Artificial Lawns, Array of Colourful Flowers, Plants, Mature Trees (including a range of fruit trees) and Shrubs, Timber Decked Terrace and South Westerly Aspect

Rear Garden is an Ideal Space for Children at Play, Outdoor Entertaining or Enjoying the Sun

Easy Access to Donaghadee's Thriving Town Centre and its Amenities Such as Shops, Cafes, Restaurants and Iconic Lighthouse and Harbour

Donaghadee Offers a Variety of Activities for the Sport Enthusiast Which Include Sea Swimming, Golf, Sailing, Rugby, Cricket, Hockey, Tennis, Football and Bowls

Demand Anticipated to be High and From a Wide Range of Prospective Purchasers

Early Viewing Essential

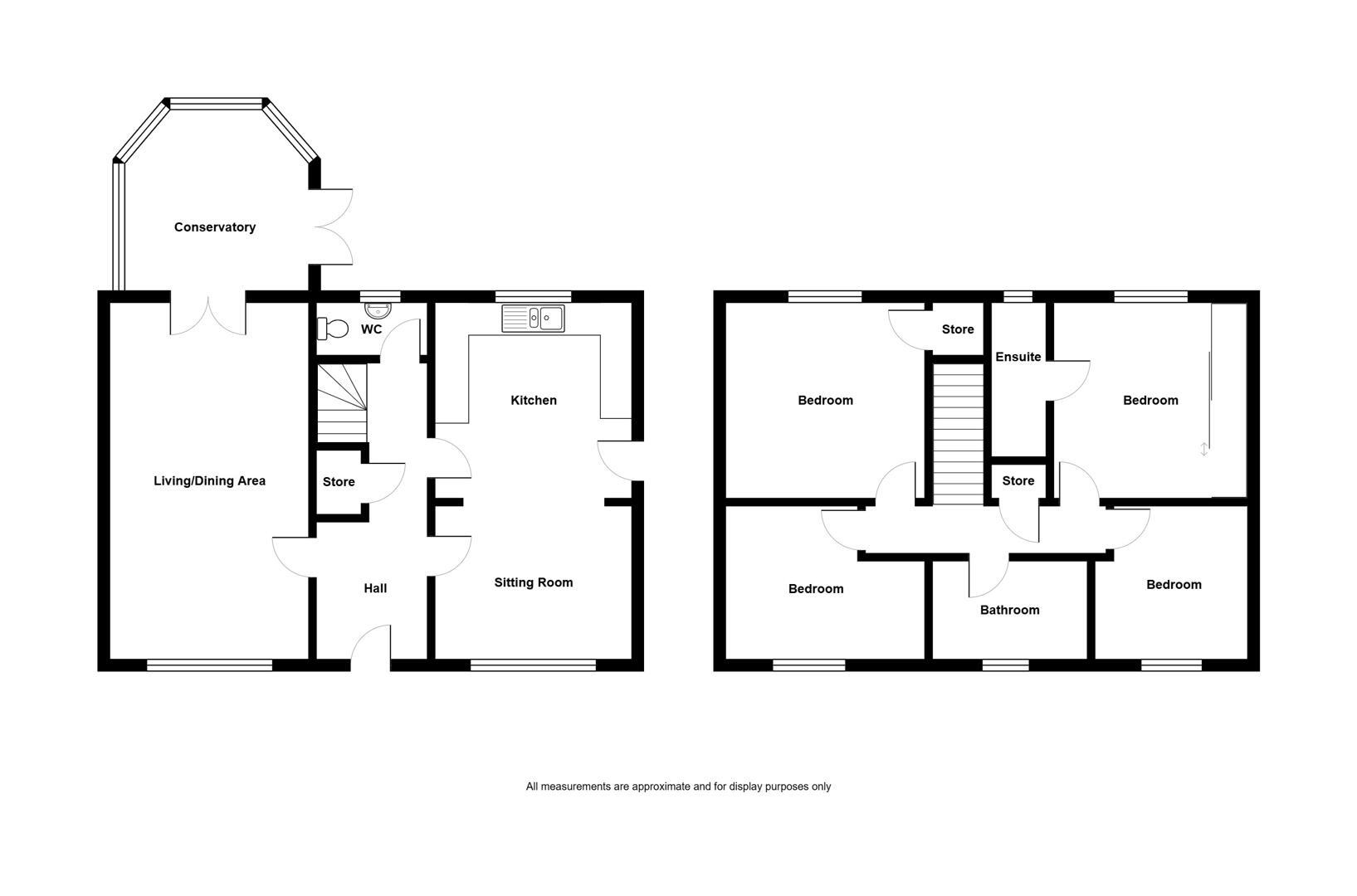
Ground Floor -

Entrance - Front door with double glazed side panels to reception hall.

Reception Hall - Fully tiled floor, storage under stairs.

Downstairs Wc - Two piece white suite comprising low flush WC, pedestal wash hand basin, tiled splashback, fully tiled floor.

Living / Dining Room - 22'1" x 12'3" - Attractive carved wooden fireplace surround, cast iron tiled inset, slate hearth, open fire, laminate wood effect floor, cornice ceiling, ceiling roses, uPVC double glazed French doors to conservatory.

Conservatory - Fully tiled floor, uPVC double glazed French doors onto the rear garden, aspect overlooking the rear garden.

Kitchen Open Plan To Casual Dining And Family Area - 22'1" x 12'2" - Range of high and low level solid wood hand painted units, granite effect work surfaces, one and a half bowl single drainer sink unit with mixer tap, integrated four ring hob, tiled splashback, extractor fan above, integrated oven, recess for microwave, space for fridge freezer, integrated dishwasher, glass display cabinet, fully tiled floor, part tiled walls, cornice ceiling, uPVC double glazed door to outside.

Stairs To First Floor -

First Floor -

Landing - Access to roofspace, shelved hotpress with lagged copper cylinder.

Bedroom One - 12'1" x 11'12" - Extensive range of built-in wardrobes.

En Suite Shower Room - Three piece suite comprising built-in fully tiled shower cubicle, pedestal wash hand basin, tiled splashback, low flush WC, laminate wood effect floor.

Bedroom Two - 12'3" x 12'1" - Built-in wardrobe.

Bedroom Three - 12'3" x 9'5" -

Bedroom Four - 9'5" x 9'5" -

Bathroom - Four piece suite comprising panelled bath, separate built-in fully tiled shower cubicle, wash hand basin with mixer tap, storage beneath, low flush WC, part tiled walls.

Outside - Well presented front garden in lawns, flowerbed in plants and shrubs, driveway in loose stones with excellent parking leading to detached garage.

Detached Garage - Roller door, power, light, oil fired boiler.

Gardens - Fantastic fully enclosed wrap-around garden with flowerbeds in array of colourful flowers, plants, trees and shrubs, artificial grass, timber decked terrace, vegetable garden, uPVC oil tank, south westerly aspect making it ideal for children at play, outdoor entertaining or enjoying the sun.

As part of our obligations under the Money Laundering, Terrorist Financing and Transfer of Funds (Information on the Payer) Regulations 2017, all Estate Agents are required to verify the identity of purchasers involved in a property transaction.
To comply with these obligations, all purchasers will be required to complete Customer Due Diligence (AML) identity checks. These checks are carried out on our behalf by our trusted third-party provider, Thirdfort.
A charge will apply of ?20 + VAT per purchaser.

Donaghadee is a picturesque coastal town on the North Down coastline, celebrated for its breathtaking sea views and nearby Copeland Islands

With charming streets filled with local shops, cafes, and outdoor activities like sailing, it offers a vibrant community spirit. Just a short drive from Belfast, Donaghadee has been voted as one of the best places to live, combining natural beauty with a welcoming atmosphere.

Property Ref: 34564215

Share:

Similar Properties

20 Milecross Manor

3 Bedroom Semi-Detached House | Guide Price £299,950

WELCOME TO MILECROSS MANOR The very best in modern, lakeside living Milecross Manor is superbly located to enjoy the ver...

The Anchorage, Donaghadee

3 Bedroom House | Offers in region of £299,950

Tucked away at the end of a cul-de-sac within this popular residential area here is an ideal opportunity to purchase a f...

19 Milecross Manor

3 Bedroom Semi-Detached House | Guide Price £295,000

WELCOME TO MILECROSS MANOR The very best in modern, lakeside living Milecross Manor is superbly located to enjoy the ver...

Site Regent Park

4 Bedroom Semi-Detached House | £305,000

Sitting proudly on the northernmost tip of the rolling Strangford Lough landscape, Regent Park is another prestigious me...

Site Regent Park

4 Bedroom Semi-Detached House | £307,500

Sitting proudly on the northernmost tip of the rolling Strangford Lough landscape, Regent Park is another prestigious me...

5 Seahill

5 Bedroom House | Offers in region of £319,950

Located in this extremely popular residential area here is an ideal opportunity to purchase an attractive detached famil...

John Minnis Estate Agents (Donaghadee)

Donaghadee, County Down, BT21 0AG

028 9188 8881

How much is your home worth?

Use our short form to request a valuation of your property.

Request a Valuation

Mortgage Calculator

Amount Borrowed: £
Total Amount Repayable: £
Total Monthly Payment: £
©2026 The Guild of Property Professionals. All rights reserved. Terms and Conditions | Privacy Policy | Cookie Policy | Complaints Policy | Members Login
The Guild of Property Professionals Trading Address: 121 Park Lane, London W1K 7AG. GPEA Limited. Registered in England & Wales.  Company No: 02819824.  Registered Office Address: 2 St. Stephen's Court, St. Stephen's Road, Bournemouth, Dorset, England, BH2 6LA.  VAT Registration No: 576 8795 61
Book a Property Valuation Update Cookies Preferences