Seahill, DONAGHADEE, BT21 0SH

Offers in region of
£319,950
SSTC
This property listing is now SSTC

4 Bedroom Detached House for sale in DONAGHADEE

3 4 1
  • Outstanding Extended Detached Family Home
  • Cul-de-Sac Position Within Popular Residential Area
  • Arguably One of the Finest Sites in the Development
  • Bright, Spacious and Flexible Accommodation
  • Living Room with Attractive Carved Wooden Fireplace and Open Fire
  • Dining Room with French Doors to Sun Room
  • Sun Room with Double Glazed Doors to Outside and Lovely Aspect Overlooking the Rear Garden
  • Fitted Kitchen and Separate Utility Room
  • Four Well Proportioned Bedrooms
  • One of the Bedrooms is on the Ground Floor and Has an En Suite Shower Room

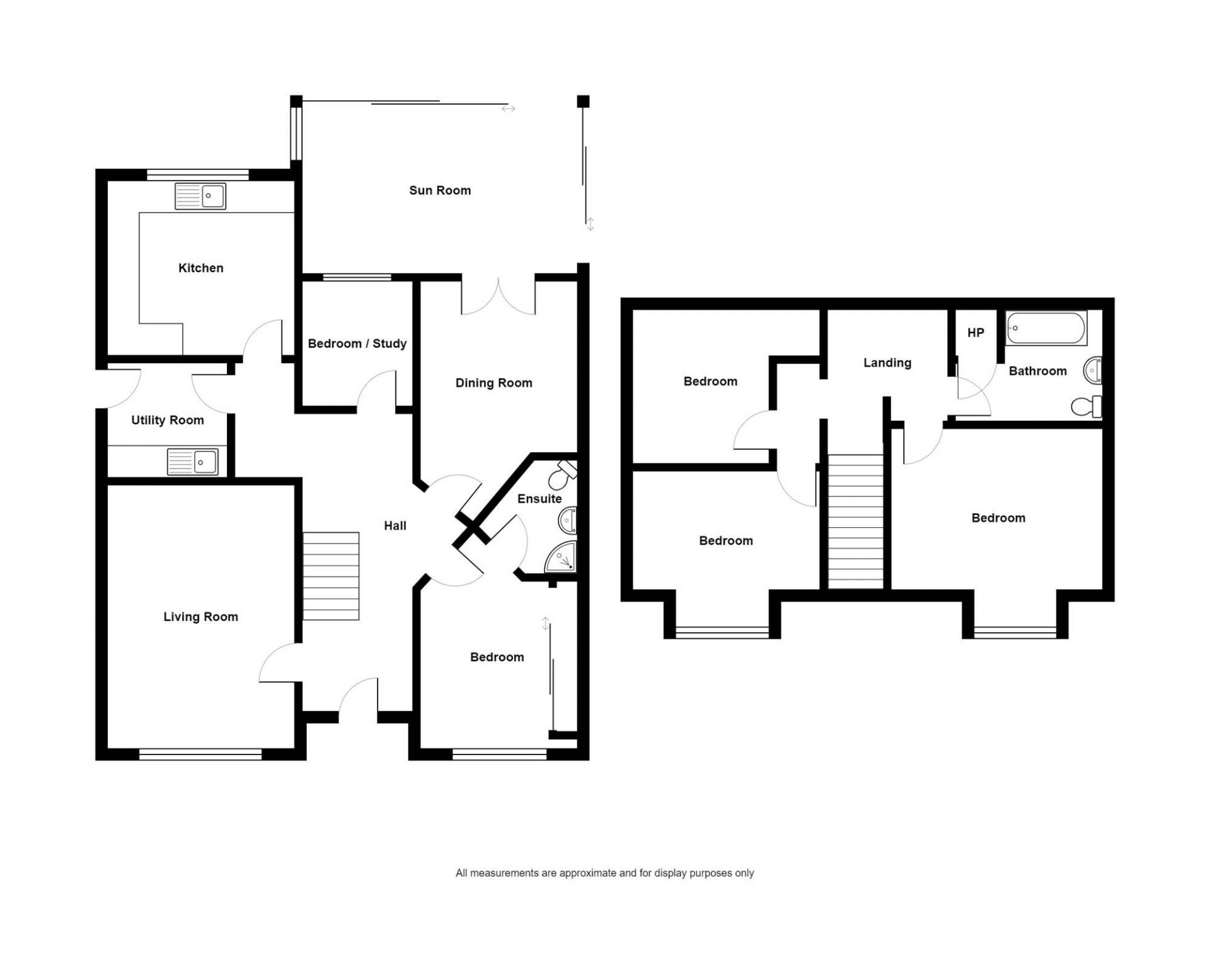
Tucked away at the end of a cul-de-sac within this popular residential area here is an ideal opportunity to purchase an outstanding detached extended family home occupying arguably one of the finest sites in the development. Well presented throughout there is little left to do but move in and enjoy.
The property’s bright, spacious and flexible accommodation offers a range of different layouts to suit the needs of the owners and comprises a living room with attractive carved wooden fireplace and open fire, dining room with French doors through to a fantastic sun room which has a lovely aspect overlooking the garden, kitchen, bedroom with en suite shower room and that all important home office, on the ground floor. The home office could be a potential fifth bedroom if required. Upstairs this fine home is further enhanced by having three additional bedrooms and a bathroom with three piece suite.
Outside does not disappoint either. The superb site has a front garden in lawns, spacious driveway with ample parking for cars, caravans, boats, etc, and outstanding fully enclosed rear garden in lawns with good sized terrace in attractive brick paviour, additional paved terrace, excellent degree of privacy and westerly aspect making an ideal space for children at play, outdoor entertaining or enjoying the sun. Additional benefits include oil fired central heating, double glazed windows, utility room, views to the Irish Sea and good sized detached garage.
This property is conveniently positioned with easy access into Donaghadee’s thriving town centre and all its amenities such as shops, cafes, restaurants and, of course, the iconic lighthouse and harbour. There is a variety of activities for the sporting enthusiast which includes sailing, tennis, football, cricket, hockey, rugby and golf. Demand is anticipated to be high and to a wide range of prospective purchasers. A viewing is thoroughly recommended at your earliest opportunity so as to appreciate it in its entirety and to avoid disappointment.

Property Ref: JMD_JMD24847

Share:

Similar Properties

Leslie Hill Crescent, DONAGHADEE, BT21 0HX

2 Bedroom Detached Bungalow | Offers in region of £319,950

Tucked away in a cul-de-sac, within this extremely popular residential area in the picturesque coastal town of Donaghade...

Portview, Ballyholme, Bangor, BT20 5QB

4 Bedroom Detached House | Offers in region of £319,950

Tucked away in a small and extremely popular and sought after cul-de-sac Portview is undoubtedly one of Ballyholme’s bes...

41 Seahill

4 Bedroom Detached House | Offers in region of £319,950

Tucked away at the end of a cul-de-sac within this popular residential area here is an ideal opportunity to purchase an...

Regent Park, North Road, Newtownards, BT23

4 Bedroom Detached House | Asking Price £320,000

Sitting proudly on the northernmost tip of the rolling Strangford Lough landscape, Regent Park is another prestigious me...

Rowanvale Crescent, Conlig, NEWTOWNARDS, BT23 7HP

4 Bedroom Detached House | Offers in region of £324,950

Tucked away at the end of a cul-de-sac within this small popular development here is an ideal opportunity to purchase a...

Abbey Road, Millisle, BT22 2DG

4 Bedroom Detached House | Offers in region of £324,950

Finished to an exceptionally high standard throughout here is a fantastic opportunity to purchase a stunning detached fa...

John Minnis Estate Agents (Donaghadee)

Donaghadee, County Down, BT21 0AG

028 9188 8881

How much is your home worth?

Use our short form to request a valuation of your property.

Request a Valuation

Mortgage Calculator

Amount Borrowed: £
Total Amount Repayable: £
Total Monthly Payment: £
©2025 The Guild of Property Professionals. All rights reserved. Terms and Conditions | Privacy Policy | Cookie Policy | Complaints Policy | Members Login
The Guild of Property Professionals Trading Address: 121 Park Lane, London W1K 7AG. GPEA Limited. Registered in England & Wales.  Company No: 02819824.  Registered Office Address: 2 St. Stephen's Court, St. Stephen's Road, Bournemouth, Dorset, England, BH2 6LA.  VAT Registration No: 576 8795 61
Book a Property Valuation Update Cookies Preferences