Newdigate, Dorking

Guide Price
£699,950
SSTC
This property listing is now SSTC

3 Bedroom Semi-Detached House for sale in Dorking

3 1
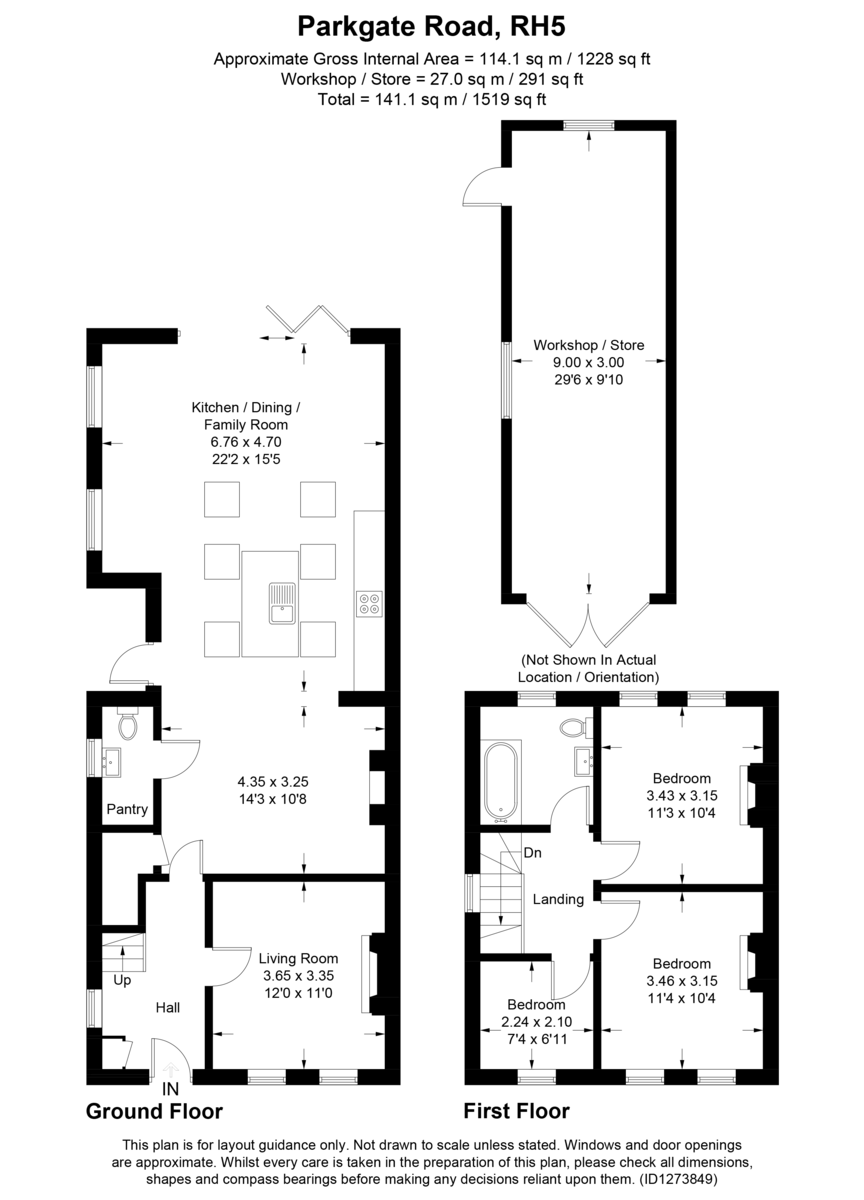
  • THREE BEDROOMS
  • CONTEMPORARY SEMI DETACHED HOUSE
  • IMPRESSIVE OPEN PLAN KITCHEN/DINING AND FAMILY ROOM
  • REAR GARDEN BACKING ONTO FIELDS
  • DRIVEWAY PARKING
  • 29FT WORKSHOP WITH POTENTIAL TO CONVERT INTO ADDITIONAL ACCOMMODATION
  • POTENTIAL TO EXTEND INTO THE LOFT
  • DOWNSTAIRS W/C & MODERN BATHROOM
  • SHORT WALK TO VILLAGE AMENITIES
  • ACCESS TO WONDERFUL COUNTRYSIDE WALKS

A beautifully presented and extended, semi-detached home blending timeless character with contemporary design, as well as generous and versatile living spaces which are perfectly suited to modern family life. With three bedrooms, driveway parking, a pretty rear garden and an impressive workshop with potential for additional accommodation, the property enjoys a particularly appealing setting backing directly onto open fields.

The accommodation begins with a spacious entrance hallway which provides access to all ground-floor rooms, including a convenient downstairs W/C. To the front of the house sits a separate living room, featuring stripped wooden flooring and a traditional carved wooden fireplace that creates a striking focal point and a wonderfully cosy atmosphere. The true centrepiece of the home is the impressive rear extension, which forms a stunning open-plan kitchen, dining and family room. Designed as a multifunctional space with clearly defined zones while retaining a strong sense of flow and openness, it is ideal for both everyday living and entertaining. The contemporary kitchen runs along one side and is complemented by a central island providing casual seating and additional storage, along with fully integrated appliances, including a double oven and microwave for a sleek, streamlined finish. The adjoining family area offers ample space for comfortable seating and is centred around a charming log burner, creating a warm and inviting place to relax while enjoying views across the garden.

Upstairs, the property continues to impress with two generous double bedrooms, almost equal in size and both featuring attractive fireplaces that enhance the home's period charm. The third bedroom is a well-proportioned single, ideal as a child's room, nursery or home office. The family bathroom is fitted with a stylish white suite, including a bath with overhead tiling, providing a smart and practical space for daily use. Another advantage is the potential to extend into the loft to create an additional bedroom, like some of the neighbouring properties have done.

Outside, the rear garden offers a lovely place to unwind, with a generous patio area which leads up to an area of lawn. The garden enjoys a tranquil setting, with open views across neighbouring fields. An impressive 29ft workshop sits within the garden and presents exciting potential for conversion into additional accommodation or a home office and offers both power and broadband connection.

Altogether, this is a superb family home combining character, contemporary living and a wonderful semi-rural outlook-perfect for those seeking space, style and versatility both inside and out.

Council Tax & Utilities This property falls under Council Tax Band E. The property is connected to mains water, drainage, gas and electricity. The broadband is a cable connection.

Location
Downton is situated in the heart of the picturesque village of Newdigate, considered to be an area of outstanding natural beauty. The village offers a local shop, AA rated public house, school and sports clubs. For more comprehensive shopping and recreational facilities, the major shopping centres of Dorking and Horsham are conveniently accessed via the A24 (bus route 93). They also have mainline train stations to London Waterloo and London Victoria respectively. The general surrounding area offers delightful countryside and is ideal for the riding/walking enthusiasts. The property is also within a short drive of Gatwick Airport, which provides a fast and regular service of trains to London Victoria and the City.

VIEWING - Strictly by appointment through Seymours Estate Agents, Cummins House, 62 South Street, Dorking, RH4 2HD

FIXTURES AND FITTINGS - We have not carried out a detailed survey, nor tested the appliances, mechanical or electrical fittings.

MISREPRESENTATION ACT - Whilst every care has been taken to prepare these sales particulars, they are for guidance purposes only and should not be relied upon. Potential buyers are advised to recheck the measurements. 

Property Ref: 102709004622

Share:

Similar Properties

The Close, Strood Green - Offering over 1500 sq ft of accommodation

4 Bedroom Semi-Detached House | Guide Price £699,950

*SOLD BY SEYMOURS* A beautifully updated and extended four-bedroom family home offering over 1,500 sq ft of modern, vers...

Rose Cottage, Forest Green

3 Bedroom Semi-Detached House | Offers in excess of £699,950

Positioned within the ever-popular village of Forest Green, this charming three-bedroom home is ideally suited to those...

Howard Road, Dorking

4 Bedroom Terraced House | Guide Price £695,000

A beautifully presented four-bedroom Victorian townhouse, arranged over four floors and offering 1425sq ft of stylish an...

Orchard Road, Dorking

3 Bedroom Semi-Detached House | Offers Over £700,000

An exciting opportunity to purchase a beautifully presented, modern, three bedrooms, two bathrooms semi-detached house w...

Harrow Road West, Dorking

3 Bedroom Semi-Detached House | Offers in excess of £700,000

A well-presented and extended, semi-detached three-bedroom home offering a superb blend of character, space and modern f...

The Borough, Brockham

3 Bedroom Semi-Detached House | Offers in excess of £700,000

An excellent opportunity to acquire a delightful semi-detached home occupying a quiet position in the centre of the much...

Seymours (Dorking)

62 South Street,, Dorking, Surrey, RH4 2HD

01306 776674

How much is your home worth?

Use our short form to request a valuation of your property.

Request a Valuation

Mortgage Calculator

Amount Borrowed: £
Total Amount Repayable: £
Total Monthly Payment: £
©2026 The Guild of Property Professionals. All rights reserved. Terms and Conditions | Privacy Policy | Cookie Policy | Complaints Policy | Members Login
The Guild of Property Professionals Trading Address: 121 Park Lane, London W1K 7AG. GPEA Limited. Registered in England & Wales.  Company No: 02819824.  Registered Office Address: 2 St. Stephen's Court, St. Stephen's Road, Bournemouth, Dorset, England, BH2 6LA.  VAT Registration No: 576 8795 61
Book a Property Valuation Update Cookies Preferences