Leslie Road, Pixham, Dorking

Guide Price
£450,000
SSTC
This property listing is now SSTC

2 Bedroom Terraced House for sale in Dorking

2 1
  • NO ONWARD CHAIN
  • TWO DOUBLE BEDROOMS
  • FRONT & REAR GARDENS
  • LIVING ROOM WITH OPEN FIRE
  • SOUGHT AFTER LOCATION
  • DOWNSTAIRS BATHROOM
  • LARGE KITCHEN/DINER
  • POTENTIAL TO EXTEND INTO THE LOFT STPP
  • CLOSE TO DORKING HIGH STREET & TRAIN STATIONS
  • SCENIC COUNTRYSIDE WALKS ON YOUR DOORSTEP

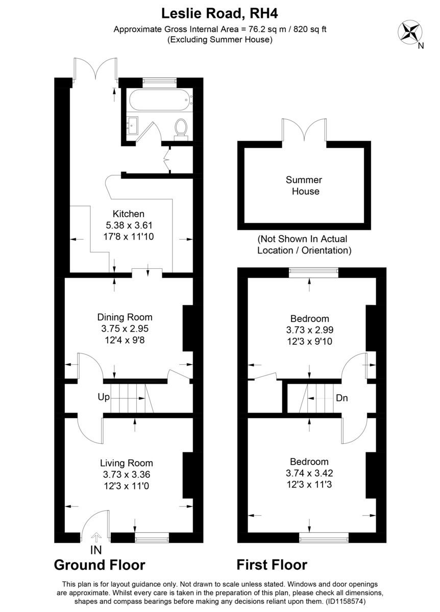
*NO ONWARD CHAIN* A charming two-bedroom mid-terraced house seamlessly blends period features with modern style. The property boasts a beautifully presented interior and a delightful rear garden, with potential to extend into the loft (subject to planning permission). Positioned in a prime location at the foot of Box Hill, just moments from Dorking's High Street, train stations and scenic countryside walks.

Upon entering, the welcoming sitting room captures attention with its open fireplace and ample seating space complemented by built-in storage. The central dining room features a large under-stairs storage cupboard and an exposed brick fireplace, while a step-down leads to the contemporary kitchen/breakfast room. Designed as the heart of the home, this space features sleek high-gloss cabinets and solid wood countertops that extend into a stylish breakfast bar. A large self-closing Velux window (rain sensitive) floods the area with natural light, creating a bright and inviting atmosphere. It includes a selection of integrated appliances, such as a dishwasher, washing machine and microwave, with additional space for a fridge freezer and range cooker. French doors open onto the rear garden and a utility cupboard provides convenient space for a tumble drier. Adjacent to this is the modern bathroom, complete with bath, overhead shower, vanity sink, heated towel rail, and stylish slate tiling.
Upstairs, the first-floor landing provides access to two generous double bedrooms, the first benefits from two large storage cupboards and garden views and the second is also well proportioned with plenty of space for freestanding furniture. Throughout the property, double glazed sash windows enhance energy efficiency and comfort, with the added potential to extend up into the loft (STPP).

Outside
The property features a charming front courtyard garden and a rear garden offering a generous lawn area leading to a central patio, perfect for outdoor entertaining. The fenced enclosure ensures privacy, surrounded by mature trees, shrubs, and flower beds. At the garden's end, a summer house with decking, power and lighting includes a partitioned storage area, ideal for a home gym or office space for remote work. The property also has a right of access via the neighbouring garden.

Council Tax & Utilities
The council tax band is D. The property is connected to mains gas, electricity and drainage. The property features a FTTC internet connection.
Important note: This property is sold subject to grant of probate.

VIEWING - Strictly by appointment through Seymours Estate Agents, Cummins House, 62 South Street, Dorking, RH4 2HD.

Agents Note: These property details are for guidance purposes only. While every care has been taken to ensure their accuracy, they should not be relied upon as a statement of fact. We strongly advise buyers to independently verify measurements and information with their legal professional. Items known as fixtures and fittings, whether mentioned or not in these sales particulars, are excluded from the sale but may be available by separate negotiation. 

Property Ref: 58865_102709003972

Share:

Similar Properties

Norfolk Road, Holmwood

3 Bedroom Detached House | Guide Price £450,000

An attractively presented detached three-bedroom property, providing bright and spacious living spaces, along with front...

Chart Lane South, Dorking

2 Bedroom Semi-Detached House | Guide Price £450,000

*NO ONWARD CHAIN* A fantastic opportunity awaits to acquire this charming two-bedroom residence boasting generous front...

Bentsbrook Close, North Holmwood

3 Bedroom Semi-Detached House | Offers in excess of £450,000

*NO ONWARD CHAIN* A well-presented three-bedroom, semi-detached house offering driveway parking and a large garden with...

Meadowbrook Road, Dorking

2 Bedroom Terraced House | Guide Price £460,000

A beautifully presented two-bedroom house offering bright, spacious accommodation including a wonderful blend of period...

Chalkpit Lane, Dorking

3 Bedroom Semi-Detached House | Offers in excess of £460,000

*NO ONWARD CHAIN* A fantastic three-bedroom, semi-detached home offering well-proportioned living spaces, front and rear...

Holmesdale Road, North Holmwood, Dorking

3 Bedroom Terraced House | Guide Price £465,000

*NO ONWARD CHAIN* A beautifully presented three-bedroom period home featuring modern living spaces, a landscaped South-f...

Seymours (Dorking)

62 South Street,, Dorking, Surrey, RH4 2HD

01306 776674

How much is your home worth?

Use our short form to request a valuation of your property.

Request a Valuation

Mortgage Calculator

Amount Borrowed: £
Total Amount Repayable: £
Total Monthly Payment: £
©2026 The Guild of Property Professionals. All rights reserved. Terms and Conditions | Privacy Policy | Cookie Policy | Complaints Policy | Members Login
The Guild of Property Professionals Trading Address: 121 Park Lane, London W1K 7AG. GPEA Limited. Registered in England & Wales.  Company No: 02819824.  Registered Office Address: 2 St. Stephen's Court, St. Stephen's Road, Bournemouth, Dorset, England, BH2 6LA.  VAT Registration No: 576 8795 61
Book a Property Valuation Update Cookies Preferences