Lytchett Matravers, Dorset

Guide Price
£375,000

3 Bedroom Link Detached House for sale in Dorset

1 3 2

It would be hard to discover a prettier spot! Sitting at the end of a lane within an exclusive, and attractive, small community of restored farmhouses and buildings, this enchanting barn conversion is just superb. The present owner has thoroughly loved staying in this idyllic spot and enjoying the stunning countryside views and easy walks from the door.

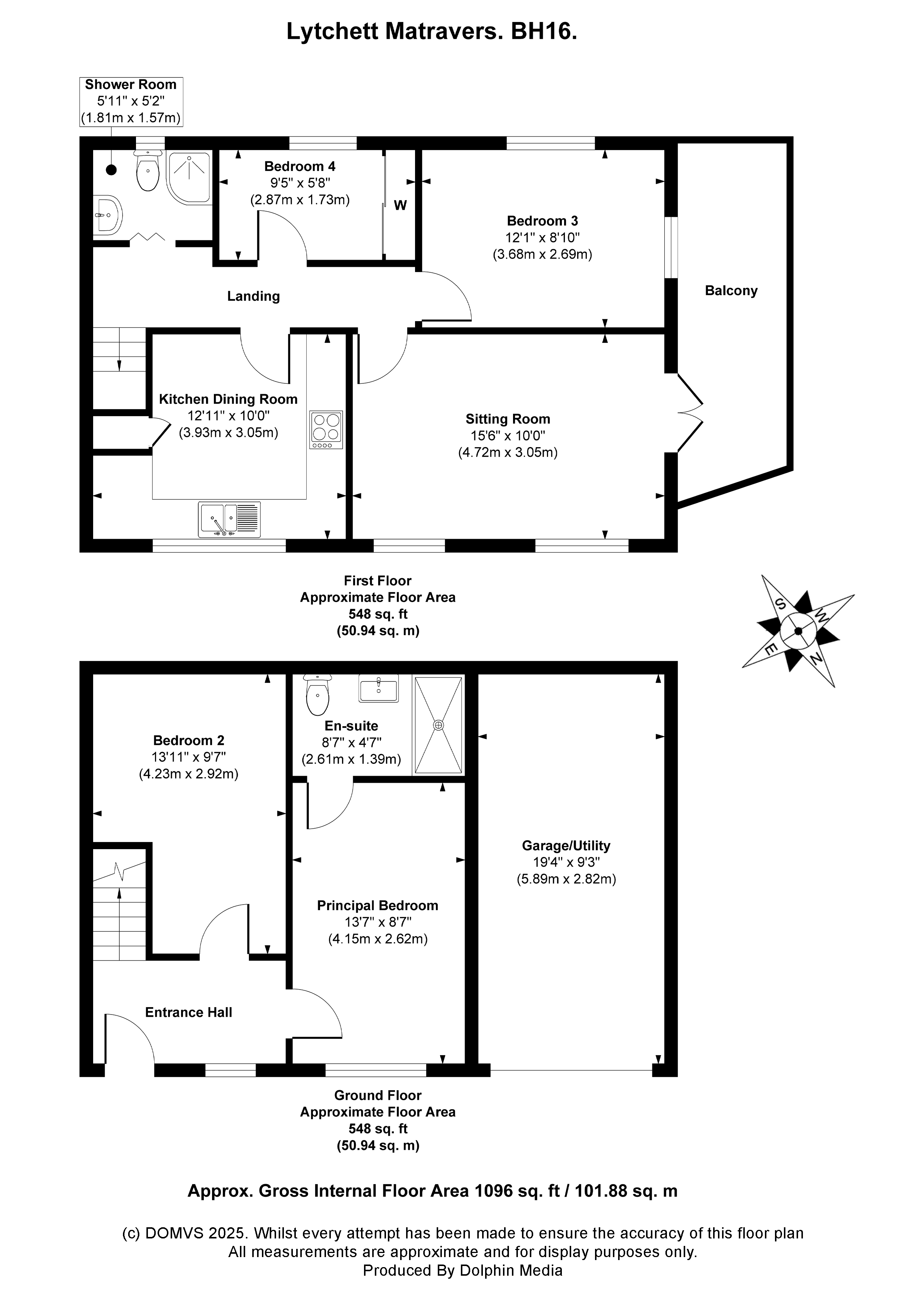
Entering the house from the main courtyard there is a small hallway with doors that lead to a generous DOUBLE BEDROOM and Ensuite SHOWER ROOM. And through to a further DOUBLE BEDROOM on the ground floor.

The stairs rise to the FIRST FLOOR and living accommodation, here you will find another attractive and good-sized DOUBLE BEDROOM, with far reaching rural views.

The SHOWER ROOM also has lots of natural light streaming in.

The HOME OFFICE is a good size, with views out to the rear. It could be used as a further single bedroom if required.

The KITCHEN/DINING ROOM is a fully fitted with attractive wall and base units and work surfaces, it is easy to imagine yourself preparing your meals and looking at the fabulous view doing so!

Into the SITTING ROOM, which is lovely and light with windows overlooking the courtyard and the stunning views beyond and French doors onto the BALCONY, where there is space to sit and enjoy an al fresco lunch or a glass or two as you watch the sun going down; the views from here are exceptional.

Outside
As you come off the lane there is a communal parking area, which is used mainly as visitors parking.

The COURTYARD itself is delightful and is shared by the surrounding attractive properties. There are views across fields and to the pretty pond which is owned by a neighbour and bordered with a picket fence.

There is a small, pretty, sheltered area of lawn below the balcony, a great space for getting out of the summer heat, great for BBQ's and chilling out.

The house has a SINGLE GARAGE, great for storage or for parking the car!

Location
Sitting on the edges of the village of Lytchett Matravers, yet close to the amenities the property has the benefit of being in the countryside but with shops, public houses and a vineyard close by! Lytchett Matravers is a highly sought-after large village which is well located for good access to Wimborne, Poole, Bournemouth, Wareham and Dorchester. The A348 and A31 nearby connects to the M27. It is a lively village with a primary school, shops, a Tesco Express, 2 public houses, a library, doctors’ surgery, a sports club, Dorset Polo Club, vineyard and an active village hall which often hosts dramatic productions.

Directions
Use what3words.com to navigate to the exact spot. Search using: practical.empty.fixated

Stunning rural location
Perfect bolthole
Balcony with wonderful countryside views
Country walks from the door
Walking distance to the pub
Principal bedroom with ensuite
Two further double bedrooms
Home office
Garage


ROOM MEASUREMENTS Please refer to floor plan.

SERVICES Mains electricity & gas. Gas central heating. Septic tank.

LOCAL AUTHORITY Dorset Council. Tax band D.

BROADBAND Standard download 9 Mbps, upload 0.9 Mbps. Ultrafast download 1000 Mbps, upload 1000 Mbps. Please note all available speeds quoted are 'up to'.

MOBILE PHONE COVERAGE For further information please go to Ofcom website.

TENURE Freehold.

LETTINGS Should you be interested in acquiring a Buy-to-Let investment, and would appreciate advice regarding the current rental market, possible yields, legislation for landlords and how to make a property safe and compliant for tenants, then find out about our Investor Club from our expert, Alexandra Holland. Alexandra will be pleased to provide you with additional, personalised support; just call her on the branch telephone number to take the next step.

IMPORTANT NOTICE DOMVS and its Clients give notice that: they have no authority to make or give any representations or warranties in relation to the property. These particulars do not form part of any offer or contract and must not be relied upon as statements or representations of fact. Any areas, measurements or distances are approximate. The text, photographs (including any AI photography) and plans are for guidance only and are not necessarily comprehensive. It should not be assumed that the property has all necessary Planning, Building Regulation or other consents, and DOMVS has not tested any services, equipment or facilities. Purchasers must satisfy themselves by inspection or otherwise. DOMVS is a member of The Property Ombudsman scheme and subscribes to The Property Ombudsman Code of Practice.

NOTE To help prospective buyers visualise the use of space, some images have been virtually staged. Actual furnishings and finishes may differ, and we recommend consulting the floor plans and scheduling a viewing to fully appreciate the property's features and layout.

Important Information

  • This is a Freehold property.

Property Ref: 654488_WAM210050

Share:

Similar Properties

Shaftesbury, Dorset

2 Bedroom Detached House | Guide Price £375,000

Owner says, ''This is a happy and peaceful place to live, surrounded by beautiful countryside and lovely neighbours, yet...

East Burton, Dorset

2 Bedroom Semi-Detached Bungalow | Offers Over £375,000

Owners say, 'This has been a very successful holiday let for us; it would be so simple for someone to follow the templat...

High Street, Sixpenny Handley, Salisbury

3 Bedroom Semi-Detached House | Offers Over £370,000

Owner says, "We will be sad to leave. It's a lovely place to live and Sixpenny Handley has to be the friendliest village...

Kingston, Corfe Castle, Dorset

2 Bedroom Terraced House | £400,000

Owners say, "We fell in love with the cottage the moment we saw it. It’s so pretty and inviting. Whether in the win...

Sixpenny Handley, Salisbury, Dorset

3 Bedroom Detached House | Guide Price £420,000

Welcome to Paddock Close, a spacious, freshly-decorated three-bedroom home with a new kitchen, double garage, and peacef...

Winfrith Newburgh, Dorset

2 Bedroom Terraced House | Guide Price £425,000

Owners say, "We've loved being part of the village community and having the beautiful surrounding countryside on our doo...

DOMVS Purbeck & East Dorset (Wareham)

Wareham, Dorset, BH20 4LT

01929 555300

How much is your home worth?

Use our short form to request a valuation of your property.

Request a Valuation

Mortgage Calculator

Amount Borrowed: £
Total Amount Repayable: £
Total Monthly Payment: £
©2025 The Guild of Property Professionals. All rights reserved. Terms and Conditions | Privacy Policy | Cookie Policy | Complaints Policy | Members Login
The Guild of Property Professionals Trading Address: 121 Park Lane, London W1K 7AG. GPEA Limited. Registered in England & Wales.  Company No: 02819824.  Registered Office Address: 2 St. Stephen's Court, St. Stephen's Road, Bournemouth, Dorset, England, BH2 6LA.  VAT Registration No: 576 8795 61
Book a Property Valuation Update Cookies Preferences