Milborne St Andrew, Dorset

Guide Price
£650,000

5 Bedroom Detached House for sale in Dorset

2 5 3

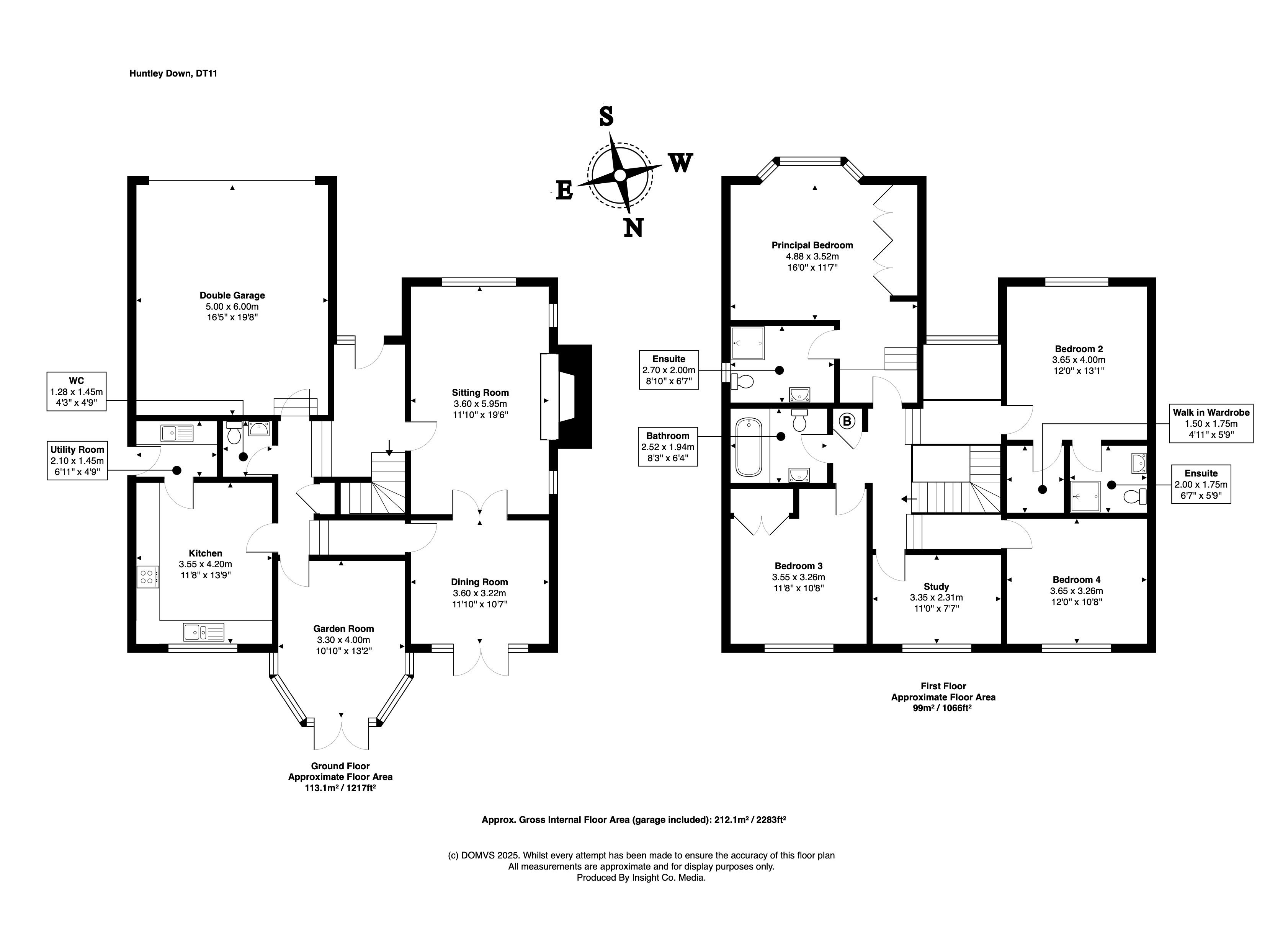
Occupying an elevated position within the well-regarded village of Milborne St. Andrew, this attractive detached house offers generous and well-balanced accommodation extending to over 2,200 sq ft including the double garage. Thoughtfully arranged over two floors, the property provides five bedrooms and three reception rooms, creating a flexible layout well suited to modern family life, entertaining and those requiring space to work from home.

The property is entered via a welcoming ENTRANCE HALL with staircase rising to the first floor and doors leading to the principal reception rooms. Steps lead down to an INNER HALLWAY, which provides access to the CLOAKROOM, the integral DOUBLE GARAGE, and useful under-stairs storage.

The SITTING ROOM is a particularly comfortable and well-proportioned space, centred around a brick fireplace with wood burning stove forming a natural focal point. Double doors connect through to the DINING ROOM, creating an excellent arrangement for both everyday living and more formal entertaining, while French doors from the dining room open directly onto the garden.

To the rear of the property, the GARDEN ROOM provides an additional reception space with double doors opening onto the garden and a pleasant outlook across the rear grounds. This versatile room works equally well as a family room, relaxed sitting area or informal entertaining space.

The KITCHEN is well arranged with a range of fitted wall and base units together with a double oven and gas hob, providing a practical and functional space at the heart of the home. A separate UTILITY ROOM offers further storage together with space and plumbing for appliances and a useful side door leading directly to the garden.

Upstairs, the FIRST FLOOR LANDING is arranged across two light and open areas which create a sense of space between the bedrooms and add to the overall feeling of scale within the house. The PRINCIPAL BEDROOM enjoys a bay window and benefits from built-in wardrobes together with its own EN-SUITE SHOWER ROOM.

Four further bedrooms are arranged across the floor, several of which also benefit from fitted wardrobes, making the layout particularly well suited to family living or visiting guests. BEDROOM TWO also benefits from its own EN-SUITE SHOWER ROOM, while the remaining bedrooms are served by a well-appointed FAMILY BATHROOM.

Overall, the property offers spacious and adaptable accommodation capable of meeting a wide range of modern living requirements.

Outside
The property is approached via a driveway providing off-road parking and leading to the DOUBLE GARAGE, which benefits from power, lighting and an electric up-and-over door.

To the front, the garden is attractively arranged with established planting and well-stocked borders which soften the approach and complement the property's brick and flint elevations.

The rear garden enjoys a good degree of privacy and has been thoughtfully arranged for ease of maintenance. Immediately behind the house is a decked seating area providing an ideal space for outdoor dining and entertaining, while a raised paved terrace creates a further seating area with a pleasant outlook back towards the house.

The garden is enclosed by mature planting and fencing, creating a sheltered and private environment.

Location
Milborne St Andrew boasts one local store, a local pub renowned for its Sunday roasts, a village hall, a sports pavilion, a first school, a playgroup, bus routes and access to nearby rural walks. The village is ideally located within close proximity of the main route between the county town of Dorchester, with its mainline railway station to London Waterloo and Bristol, famous weekly market and reputable schools, and Blandford Forum with its boutique style shops, tea rooms and riverside walks.

Directions
Use what3words.com to navigate to the exact spot. Search using: inserting.crossings.island

Contemporaty and well presented
Versatile accommodation
Five generous bedrooms
Two en-suites
Secluded rear garden
Spacious double garage

ROOM MEASUREMENTS Please refer to floor plan.

SERVICES Mains drainage, electricity and gas. Gas central heating.

LOCAL AUTHORITY Dorset Council. Tax band F.

TENURE Freehold.

LETTINGS Should you be interested in acquiring a Buy-to-Let investment, and would appreciate advice regarding the current rental market, possible yields, legislation for landlords and how to make a property safe and compliant for tenants, then find out about our Investor Club Our expert lettings team will be pleased to provide you with additional, personalised support; just call on the branch telephone number to take the next step.

IMPORTANT NOTICE DOMVS and its Clients give notice that: they have no authority to make or give any representations or warranties in relation to the property. These particulars do not form part of any offer or contract and must not be relied upon as statements or representations of fact. Any areas, measurements or distances are approximate. The text, photographs (including any AI photography) and plans are for guidance only and are not necessarily comprehensive. It should not be assumed that the property has all necessary Planning, Building Regulation or other consents, and DOMVS has not tested any services, equipment or facilities. Purchasers must satisfy themselves by inspection or otherwise. DOMVS is a member of The Property Ombudsman scheme and subscribes to The Property Ombudsman Code of Practice.

Property Ref: NDO260005

Share:

Similar Properties

Frampton Park, Nr Dorchester, Dorset

3 Bedroom Detached House | Offers Over £650,000

Owner says, 'I was drawn to the rural setting without it being remote, and to the history of the home and area. The vers...

Dorchester, Dorset

5 Bedroom Detached House | Offers Over £650,000

Owner says, 'This has been a much-loved home and a perfect setting for family gatherings. We've loved the strong sense o...

Charmouth, Bridport, Dorset

3 Bedroom Detached Bungalow | £650,000

Three-bed detached bungalow in the heart of the sought-after coastal village of Charmouth. With generous living spaces p...

Kingston Maurward, Nr Dorchester, Dorset

4 Bedroom Detached House | £665,000

Originally part of the magnificent grounds of 18th century Kingston Maurward manor house. Choosing one of these three 4-...

Martinstown, Dorchester, Dorset

3 Bedroom Detached Bungalow | Offers Over £675,000

Owners say, 'The property is the perfect setting to reconnect with nature, with expansive panoramic views and an abundan...

Winterborne Stickland, Blandford Forum, Dorset

5 Bedroom Link Detached House | Guide Price £675,000

A stunning, fully renovated and expanded home with far-reaching rural views and 2 rooms downstairs, along with a shower...

DOMVS Mid Dorset (Dorchester)

Dorchester, Dorset, DT1 1UW

01305 757300

How much is your home worth?

Use our short form to request a valuation of your property.

Request a Valuation

Mortgage Calculator

Amount Borrowed: £
Total Amount Repayable: £
Total Monthly Payment: £
©2026 The Guild of Property Professionals. All rights reserved. Terms and Conditions | Privacy Policy | Cookie Policy | Complaints Policy | Members Login
The Guild of Property Professionals Trading Address: 121 Park Lane, London W1K 7AG. GPEA Limited. Registered in England & Wales.  Company No: 02819824.  Registered Office Address: 2 St. Stephen's Court, St. Stephen's Road, Bournemouth, Dorset, England, BH2 6LA.  VAT Registration No: 576 8795 61
Book a Property Valuation Update Cookies Preferences