Owermoigne, Dorset

Guide Price
£375,000
Under Offer
This property listing is now Under Offer

3 Bedroom Detached House for sale in Dorset

1 3 2

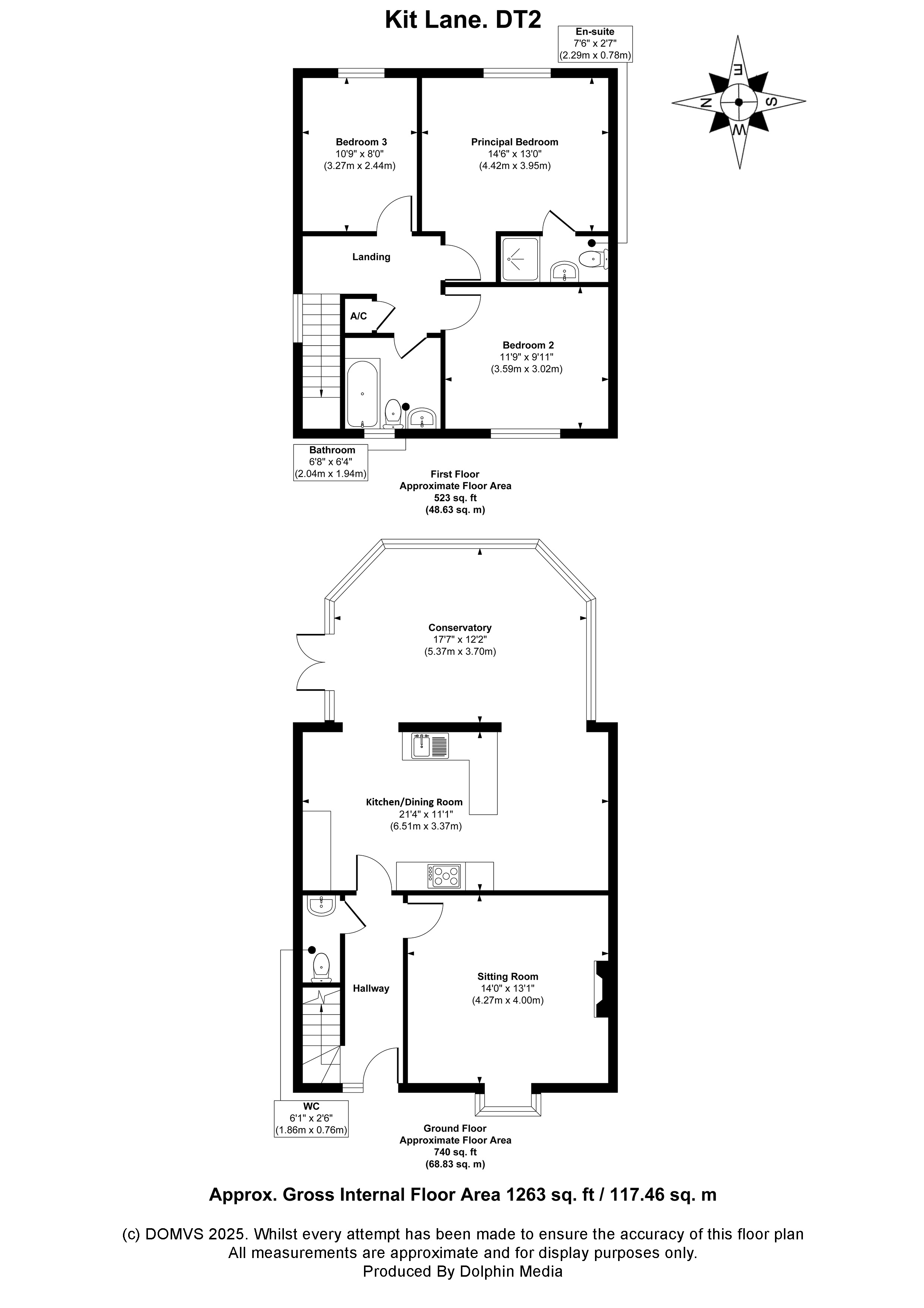
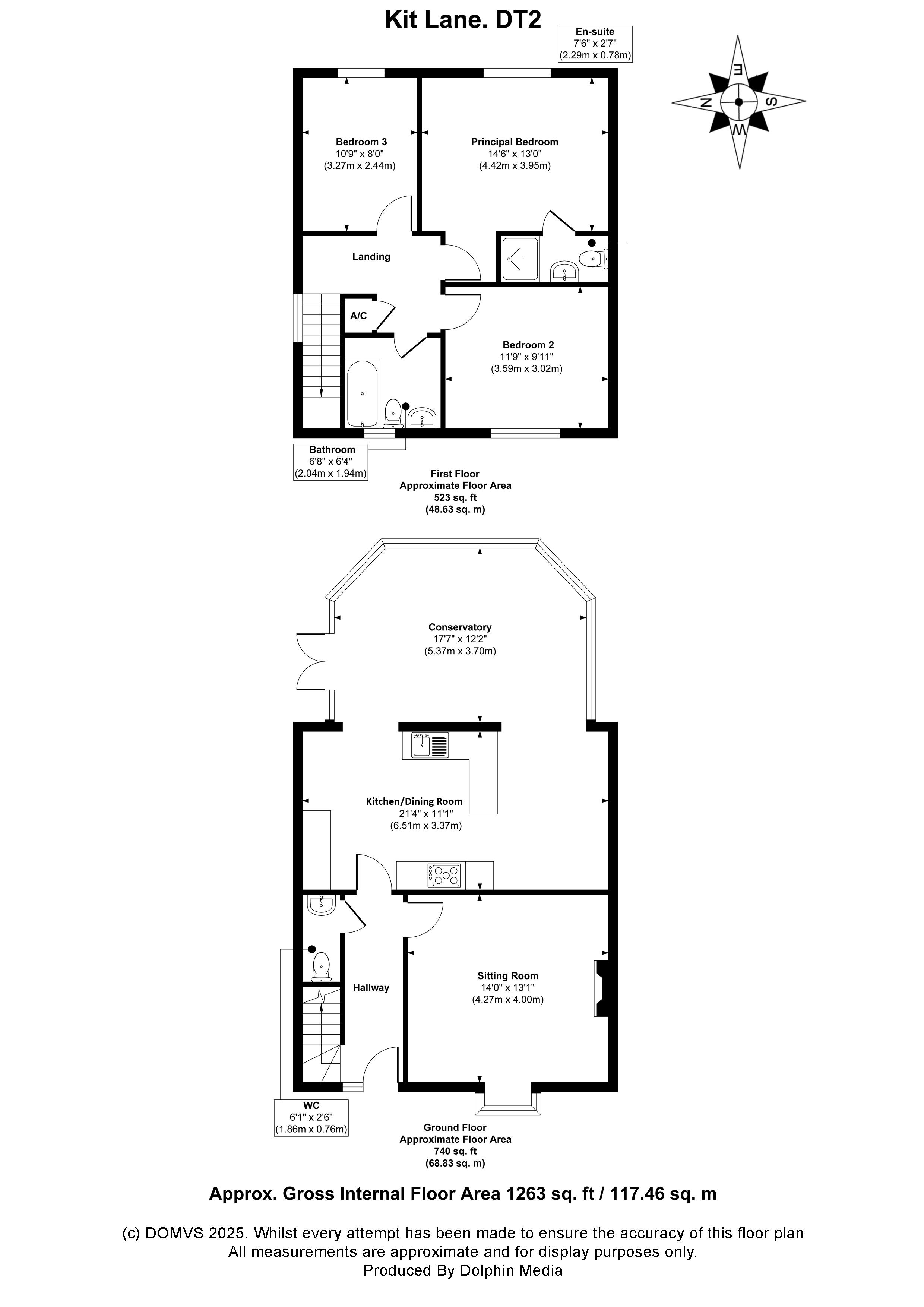
Perched in an elevated position, external steps rise to the front entrance, leading into a welcoming HALLWAY that sets the tone for the rest of the home.

The SITTING ROOM lies to the front of the property and is centred around a large open stone fireplace featuring carved detailing on the arch, mantel and hearth. This striking feature forms the focal point of the room, creating a warm and inviting atmosphere that is perfect for relaxing during the cooler months. The room allows for flexible seating arrangements, making it a versatile and comfortable space for everyday living.

To the rear of the property lies the KITCHEN/DINING ROOM, which truly feels like the heart of the home. To the side the dining area provides ample space for a sizeable dining table and chairs, with additional furniture, creating a lovely space for family meals or informal gatherings. The kitchen is fitted with a range of wall and floor mounted units with work surfaces over and has an inset stainless-steel sink with drainer. Integrated appliances include an eye level double oven and a gas hob with extractor over, with space for a fridge freezer and further space and plumbing for either a dishwasher or washing machine.

The CONSERVATORY, linked to the kitchen, floods the area with natural light and provides a seamless connection to the garden. This bright and versatile room offers plenty of scope for an additional seating area, making it a sociable space or simply a peaceful spot to enjoy views over the rear garden.

Discreetly positioned off the hallway and providing convenience for guests and family alike, is the CLOAKROOM fitted with a wash-hand basin and W.C.

Stairs rise from the hallway to the landing where there is an airing cupboard providing useful storage. The PRINCIPAL BEDROOM is positioned to the rear of the property and enjoys a pleasant outlook over the garden. It is a generous double with space for wardrobes and benefits from an ENSUITE SHOWER ROOM fitted with a shower cubicle, wash-hand basin and W.C.

BEDROOM TWO is another good-sized double, while BEDROOM THREE offers flexibility as a single bedroom, study or guest room.

Completing the accommodation is the family BATHROOM, which includes a panelled bath with shower over, pedestal wash-hand basin and W.C.

Overall, this family home offers a practical and well-balanced layout with bright rooms, generous proportions and plenty of potential to enhance and personalise to individual taste.

PLEASE NOTE: The property boundaries are currently in the process of being regularised with the Land Registry.

Outside
To the front of the property, a driveway provides off-road parking and leads to a double garage, offering excellent storage and workshop potential. A set of steps rises to the front door, giving the property an elevated approach and has the small front garden laid to lawn. To the rear, the garden is fully enclosed, with an area of shingle extending directly from the conservatory, providing a practical spot for outdoor seating or potted plants. Beyond this, the garden has a raised level that is predominantly laid to lawn, creating a versatile space suitable for both children and pets. Bordered by timber fencing, and with mature trees providing a natural backdrop, the garden enjoys a pleasant outlook and offers ample scope for landscaping or outdoor entertaining, making it an ideal extension of the home's living space.

Location
Owermoigne is a small and well-established village situated just off the A352, to the east of Dorchester. At its heart stands the ancient church of St Michael, surrounded by a cluster of whitewashed and thatched cottages that hint at the village's long history. The community benefits from a local farm shop, petrol filling station, village hall, and social club, all of which contribute to a friendly and active village atmosphere. The property lies within easy reach of these amenities and enjoys convenient access to the surrounding towns of Dorchester, Weymouth, and Wareham. For those who enjoy the outdoors, there are scenic countryside walks nearby leading towards the beautiful coastal destinations of Ringstead Bay and Lulworth Cove, while neighbouring villages such as Broadmayne, Moreton, and Winfrith Newburgh add to the appeal of this well-connected rural location.

Directions
Use what3words.com to navigate to the exact spot. Search using: tenure.hook.crystal

Detached three-bedroom family home
Spacious kitchen/dining room with conservatory
Elevated positon
Enclosed rear garden
parking and double garage
Village location with countryside walks nearby

ROOM MEASUREMENTS Please refer to floor plan.

SERVICES Mains drainage, electricity & gas. Gas central heating.

LOCAL AUTHORITY Dorset Council. Tax band D.

BROADBAND Standard download 20 Mbps, upload 1 Mbps. Superfast download 80 Mbps, upload 20 Mbps. Please note all available speeds quoted are 'up to'.

MOBILE PHONE COVERAGE For further information please go to Ofcom website.

TENURE Freehold.

LETTINGS Should you be interested in acquiring a Buy-to-Let investment, and would appreciate advice regarding the current rental market, possible yields, legislation for landlords and how to make a property safe and compliant for tenants, then find out about our Investor Club Our expert lettings team will be pleased to provide you with additional, personalised support; just call on the branch telephone number to take the next step.

IMPORTANT NOTICE DOMVS and its Clients give notice that: they have no authority to make or give any representations or warranties in relation to the property. These particulars do not form part of any offer or contract and must not be relied upon as statements or representations of fact. Any areas, measurements or distances are approximate. The text, photographs (including any AI photography) and plans are for guidance only and are not necessarily comprehensive. It should not be assumed that the property has all necessary Planning, Building Regulation or other consents, and DOMVS has not tested any services, equipment or facilities. Purchasers must satisfy themselves by inspection or otherwise. DOMVS is a member of The Property Ombudsman scheme and subscribes to The Property Ombudsman Code of Practice.

Important Information

  • This is a Freehold property.

Property Ref: LDR240005

Share:

Similar Properties

Dorchester, Dorset

4 Bedroom Terraced House | Offers Over £375,000

A mixed development of just four town houses, from £375,000 all with PRIVATE PARKING & VIEWS (& three apartments,all sol...

Princes Street, Dorchester, Dorset

2 Bedroom Detached House | Offers Over £350,000

Owner says, 'We've loved the balance of town centre living with the bonus of an enclosed garden; a great space to step o...

Cerne Abbas, Dorchester, Dorset

3 Bedroom Penthouse | Guide Price £350,000

Owners say, 'We have truly appreciated all that Cerne Abbas offers, particularly the ease of having wonderful countrysid...

Beaminster, Dorset

3 Bedroom Detached Bungalow | Guide Price £385,000

With no onward chain, this spacious and immaculate three-bedroom detached bungalow offers wonderful far-reaching views,...

Lyme Regis, Dorset

3 Bedroom Detached Bungalow | £400,000

With beautiful sea views, this chain-free, detached bungalow is in need of some modernisation. With three double bedroom...

Broadmayne, Dorset

4 Bedroom Detached Bungalow | Guide Price £400,000

Owners say, 'We've really enjoyed living here, particularly the sense of space and ease of single-level living. The vill...

DOMVS Mid Dorset (Dorchester)

Dorchester, Dorset, DT1 1UW

01305 757300

How much is your home worth?

Use our short form to request a valuation of your property.

Request a Valuation

Mortgage Calculator

Amount Borrowed: £
Total Amount Repayable: £
Total Monthly Payment: £
©2026 The Guild of Property Professionals. All rights reserved. Terms and Conditions | Privacy Policy | Cookie Policy | Complaints Policy | Members Login
The Guild of Property Professionals Trading Address: 121 Park Lane, London W1K 7AG. GPEA Limited. Registered in England & Wales.  Company No: 02819824.  Registered Office Address: 2 St. Stephen's Court, St. Stephen's Road, Bournemouth, Dorset, England, BH2 6LA.  VAT Registration No: 576 8795 61
Book a Property Valuation Update Cookies Preferences