High Street & Shop, Exmoor National Park

Guide Price
£395,000

4 Bedroom Terraced House for sale in Dulverton

2 4 2
  • Prime High Street Location in Dulverton Double Fronted Shop with Rear Storage Area 4 Double Bedrooms Large Sitting Room and Separate Dining Area Courtyard Area Character Features Throughout Exmoo...

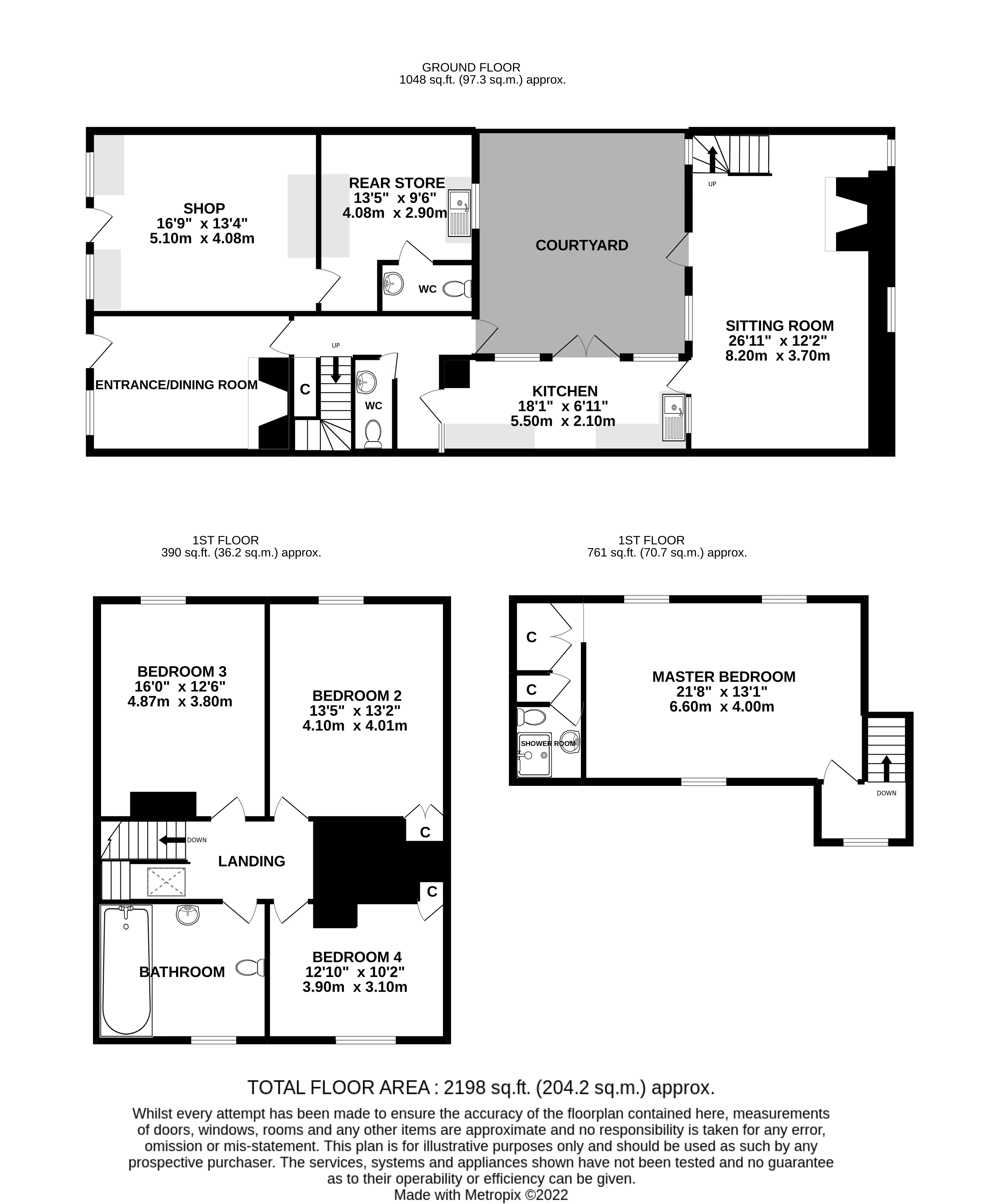
As illustrated by the floor plan the property is accessed through the front door in to the large entrance hall/dining room with large stone pointed inglenook fireplace with inset wood burning stove (we understand this fireplace is not currently operational and would need to be looked at by a qualified tradesperson before use)

The inner hallway gives access to part of the first floor as well as access to the downstairs W.C. There is also a door giving access to the courtyard.

Kitchen- Steps lead into the kitchen with windows along one side giving views to the courtyard. There are a range of wall and base units with space for an electric range cooker and has double doors leading to the courtyard.

Sitting Room –large fireplace with inset wood burning stove, door to the courtyard as well as windows to the rear. Stairs also lead to the other first floor giving access to the master bedroom with fitted cupboards and an en-suite shower room.

First Floor - There are 3 double bedrooms on the first floor with character features and views which can be enjoyed to the front and rear elevation.

Bathroom – Tiled floor, W.C, bath with shower above and wash hand basin.

Outside - There is an enclosed and private courtyard which provides an ideal space for al fresco dining.

Shop/Retail Area - The shop has previously been rented out and offers a double fronted shop area with a rear storage area and W.C in a prime high street location. See agents for more details regarding potential lettings figures.

Services

Mains Electric, Water and Drainage.

Tenure

Freehold

Council Tax

Somerset West & Taunton - C

Viewings

Strictly by appointment with

the selling agent

Tender

Our clients reserve the right to offer the property for sale by informal tender should there be considerable interest.

Agents note

In November 2020 there was a small house fire at the property. Works are nearly completed to restore the property and the last thing our client is waiting for is for the carpets to be fitted in some of the rooms. Please see agents for more details.

Important Information

  • This is a Freehold property.
  • This Council Tax band for this property is: C
  • EPC Rating is E

Property Ref: DUL170048

Share:

Similar Properties

Luxborough, Watchet

3 Bedroom House | Guide Price £395,000

A quintessential semi detached period cottage of great character and charm situated close to the heart of this highly re...

West Park, Minehead

3 Bedroom Detached Bungalow | Guide Price £390,000

A beautifully kept bungalow offering an easy sense of comfort, space and flexibility in a sought after position close to...

Selworthy, Minehead

3 Bedroom Semi-Detached House | Asking Price £375,000

A rare opportunity to acquire a Grade II* listed 14th century stone built barn conversion situated in this picturesque N...

Hollam Lane, Dulverton

3 Bedroom Detached House | Guide Price £400,000

A beautiful stone cottage located within easy walking distance of Dulverton town centre. The property offers three bedro...

Periton Combe, Minehead

3 Bedroom Detached House | Guide Price £420,000

A superb converted detached coach house of great charm delightfully situated on the outskirts of the town with beautiful...

Marsh Street, Dunster

3 Bedroom Semi-Detached House | Guide Price £425,000

A most appealing and deceptive stone built 3 bedroom semi-detached cottage with great potential to extend set in beautif...

Webbers Minehead (Minehead)

Minehead, Somerset, TA24 5UW

01643 706917

How much is your home worth?

Use our short form to request a valuation of your property.

Request a Valuation

Mortgage Calculator

Amount Borrowed: £
Total Amount Repayable: £
Total Monthly Payment: £
©2026 The Guild of Property Professionals. All rights reserved. Terms and Conditions | Privacy Policy | Cookie Policy | Complaints Policy | Members Login
The Guild of Property Professionals Trading Address: 121 Park Lane, London W1K 7AG. GPEA Limited. Registered in England & Wales.  Company No: 02819824.  Registered Office Address: 2 St. Stephen's Court, St. Stephen's Road, Bournemouth, Dorset, England, BH2 6LA.  VAT Registration No: 576 8795 61
Book a Property Valuation Update Cookies Preferences