High Street & Shop, Exmoor National Park, Dulverton

Guide Price
£395,000

4 Bedroom Terraced House for sale in Dulverton

2 4 2
  • Prime High Street Location in Dulverton
  • Double Fronted Shop with Rear Storage Area
  • 4 Double Bedrooms
  • Large Sitting Room and Separate Dining Area
  • Courtyard Area
  • Character Features Throughout
  • Exmoor National Park
  • EPC Rating - E & C

Prime High Street Location in Dulverton
Double Fronted Shop with Rear Storage Area
4 Double Bedrooms
Large Sitting Room and Separate Dining Area
Courtyard Area
Character Features Throughout
Exmoor National Park
EPC Rating - E & C

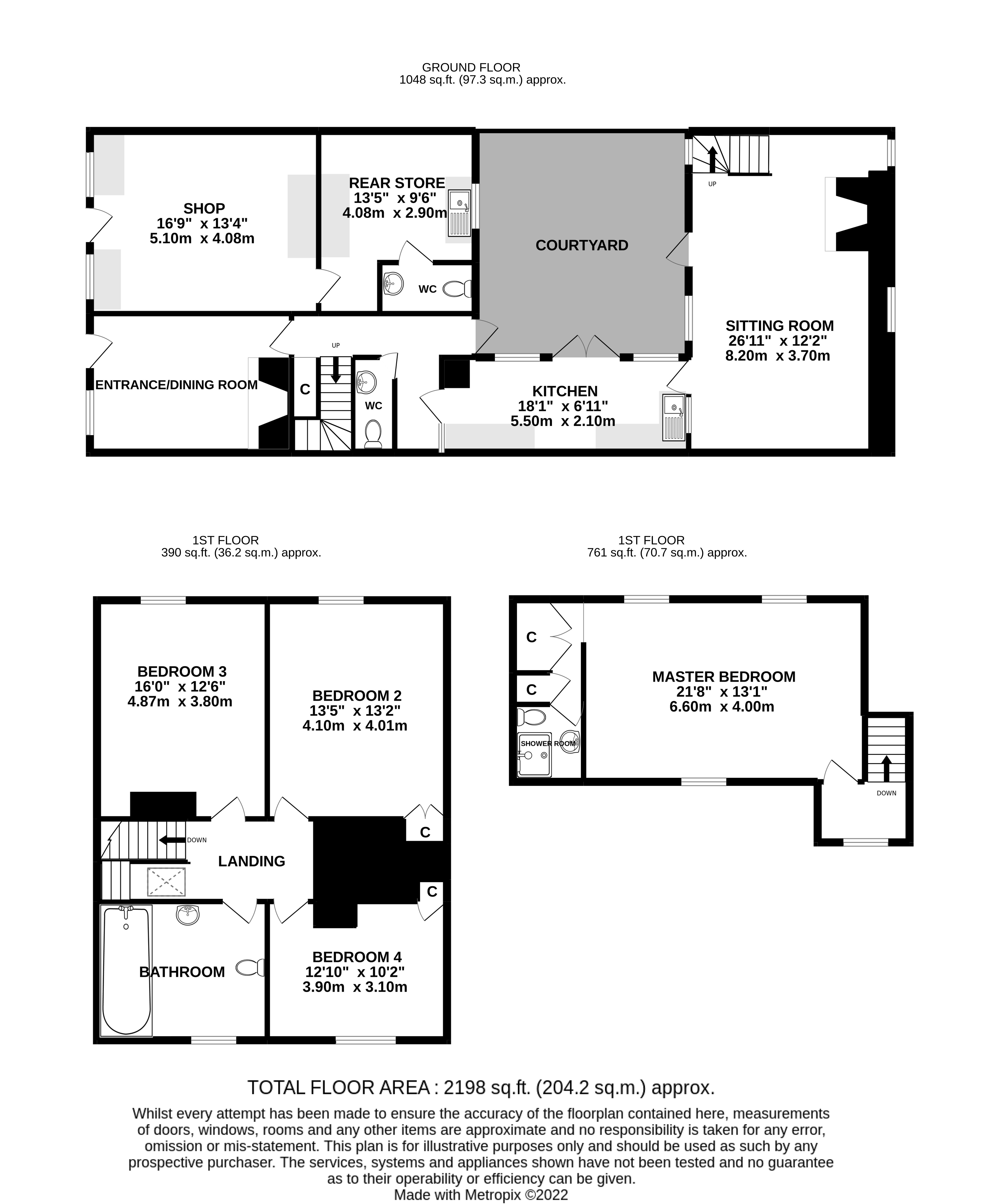
As illustrated by the floor plan the property is accessed through the front door in to the large entrance hall/dining room with large stone pointed inglenook fireplace with inset wood burning stove (we understand this fireplace is not currently operational and would need to be looked at by a qualified tradesperson before use)

The inner hallway gives access to part of the first floor as well as access to the downstairs W.C. There is also a door giving access to the courtyard.

Kitchen- Steps lead into the kitchen with windows along one side giving views to the courtyard. There are a range of wall and base units with space for an electric range cooker and has double doors leading to the courtyard.

Sitting Room –large fireplace with inset wood burning stove, door to the courtyard as well as windows to the rear. Stairs also lead to the other first floor giving access to the master bedroom with fitted cupboards and an en-suite shower room.

First Floor - There are 3 double bedrooms on the first floor with character features and views which can be enjoyed to the front and rear elevation.

Bathroom – Tiled floor, W.C, bath with shower above and wash hand basin.

Outside - There is an enclosed and private courtyard which provides an ideal space for al fresco dining.

Shop/Retail Area - The shop has previously been rented out and offers a double fronted shop area with a rear storage area and W.C in a prime high street location. See agents for more details regarding potential lettings figures.

Services
Mains Electric, Water and Drainage.

Tenure
Freehold

Council Tax
Somerset West & Taunton - C

Viewings
Strictly by appointment with
the selling agent

Tender
Our clients reserve the right to offer the property for sale by informal tender should there be considerable interest.

Agents note
In November 2020 there was a small house fire at the property. Works are nearly completed to restore the property and the last thing our client is waiting for is for the carpets to be fitted in some of the rooms. Please see agents for more details.

Sitting Room 26'11" x 12'2" (8.2m x 3.7m).

Kitchen 18'1" x 6'11" (5.5m x 2.1m).

Dining Room

Master Bedroom 21'8" x 13'1" (6.6m x 4m).

Bedroom 2 13'5" x 13'2" (4.1m x 4.01m).

Bedroom 3 16' x 12'6" (4.88m x 3.8m).

Bedroom 4 12'10" x 10'2" (3.9m x 3.1m).

Shop 16'9" x 13'4" (5.1m x 4.06m).

Rear Store 13'5" x 9'6" (4.1m x 2.9m).

Services    Mains water, Drainage and Electric.

Tenure    Freehold

Viewings    Strictly via the selling agent

From our office in Union Street, Dulverton turn left and then right into High Street/B3222 heading towards the river and Battleton. Proceed for approximately 300 yards and the property will be found on your left hand side of the road identified by our "For Sale" board.

Important Information

  • This is a Freehold property.

Property Ref: 55935_DUL170048

Share:

Similar Properties

High Street, Porlock, Minehead

4 Bedroom Semi-Detached House | Guide Price £395,000

A charming 17th Century Grade II listed semi detached Cottage of immense character with 4 bedroom en-suite accommodation...

Quantock Grove, Williton, Taunton

3 Bedroom Detached Bungalow | £395,000

Tucked away in the corner of a popular cul-de-sac and set in large gardens with garage and parking this gas centrally he...

Quay West, Minehead, Somerset

3 Bedroom Semi-Detached House | Offers in excess of £395,000

Within a stone’s throw of the sea and with wonderful coastal views this charming and interesting 3/4 semi-detached...

Summerland Avenue, Minehead, Somerset

5 Bedroom Semi-Detached House | £420,000

Elegant Victorian charm meets modern day comforts in this beautifully presented and versatile 5 Bedroom, 3 reception roo...

Paganel Rise, Minehead

3 Bedroom Detached Bungalow | Guide Price £425,000

An extended and improved 3 bedroom detached bungalow set in large level gardens with delightful views towards the surrou...

Park Lane, Carhampton, Minehead

3 Bedroom Detached House | Guide Price £425,000

A beautifully appointed detached home offering the perfect blend of modern comfort, versatile family living, and timeles...

Webbers Minehead (Minehead)

Minehead, Somerset, TA24 5UW

01643 706917

How much is your home worth?

Use our short form to request a valuation of your property.

Request a Valuation

Mortgage Calculator

Amount Borrowed: £
Total Amount Repayable: £
Total Monthly Payment: £
©2025 The Guild of Property Professionals. All rights reserved. Terms and Conditions | Privacy Policy | Cookie Policy | Complaints Policy | Members Login
The Guild of Property Professionals Trading Address: 121 Park Lane, London W1K 7AG. GPEA Limited. Registered in England & Wales.  Company No: 02819824.  Registered Office Address: 2 St. Stephen's Court, St. Stephen's Road, Bournemouth, Dorset, England, BH2 6LA.  VAT Registration No: 576 8795 61
Book a Property Valuation Update Cookies Preferences