High Street, Stebbing, Dunmow

Offers Over
£650,000

3 Bedroom Detached House for sale in Dunmow

3 3 3
  • Three Bedrooms
  • Detached Cottage
  • Shingle Driveway Parking
  • Enclosed Rear Garden
  • Grade II Listed
  • Three Reception Rooms
  • Kitchen/Breakfast/Dining Room
  • Wet Room & Bathroom
  • Cloakroom
  • Centre Village Location

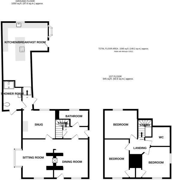
Commanding an elevated position in the centre of the desirable village of Stebbing is this spacious three bedroom detached Grade II Listed cottage. The ground floor accommodation comprises:- sitting room, formal dining room, family room, kitchen/breakfast/dining room, wet room, rear lobby, inner hallway and family bathroom. On the first floor are three bedrooms and a cloakroom. Externally the property benefits from an enclosed rear garden and a shingle driveway.

Entrance Area - Accessed via solid Oak door, coir matting, open to.

Dining Room - 4.45m x 3.43m (14'7" x 11'3") - Leaded window to front aspect, exposed timbers, feature Inglenook fireplace with inset wood burning stove, radiator, power points, door to inner hallway, door to family room, opening to.

Sitting Room - 4.78m x 4.34m (15'8" x 14'3") - Leaded window to front aspect, leaded bay window to side aspect, exposed timbers, feature Inglenook fireplace with inset wood burning stove, radiator, power points, T.V point.

Family Room - 3.86mx 3.00m (12'8"x 9'10") - Window to rear aspect, Limestone tiled flooring, exposed timbers, radiator, power points, door to.

Rear Lobby - Single door to the rear garden, Limestone flooring, radiator, power points, opening to the kitchen/breakfast/dining room, door to.

Wet Room - Fully tiled, walk-in shower with waterfall head, wash hand basin with vanity unit below & concealed mixer taps, W.C, underfloor heating, full height radiator, inset spotlights, extractor fan, door to front aspect.

Kitchen/Breakfast/Dining Room - 7.24m x 5.11m max measurements (23'9" x 16'9" max - Windows to multiple aspects, exposed timbers, exposed brickwork, base and eye level units with complimentary Granite working surfaces over, island with complimentary Granite working surface & breakfast bar area, inset Butler sink with mixer taps, two inset ovens, induction hob with downdraft extractor, inset wine cooler, integrated dishwasher, integrated fridge/freezer, integrated washing machine, Limestone tiled flooring with underfloor heating, exposed timbers, inset spotlights, power points, T.V point, stable door to the rear garden.

Inner Hallway - Single door to side aspect, radiator, power points, stairs rising to the first floor landing, under stairs storage cupboard, door to.

Family Bathroom - Opaque window to rear aspect.

First Floor Landing - Exposed timbers, power points, doors to.

Principal Bedroom - 4.34m" x 2.90m (14'3"" x 9'6") - Leaded window to front aspect, a range of fitted wardrobes, built-in single wardrobe, exposed timbers, feature fireplace, radiator, power points.

Bedroom Two - 3.84m x 3.15m (12'7" x 10'4") - Window to rear aspect, exposed timbers, a range of fitted wardrobes, exposed timbers, radiator, power points.

Bedroom Three - 3.40m x 3.05m (11'2" x 10') - Leaded windows to multiple aspects, built-in single wardrobe, exposed timbers, radiator, power points.

Cloakroom - Exposed timbers, exposed floorboards.

Gardens - To the rear of the property is a Sandstone patio area enclosed by a retaining brick wall with steps leading to the remainder lawn and paved Sandstone pathway. The garden is fully enclosed by timber fencing and brick wall. A timber gate leads to the rear driveway. The rear garden further benefits from mature shrubs and an outside water tap.

Driveway - To the rear of the garden is a shingle driveway and timber shed for storage.

Property Ref: 879665_34137310

Share:

Similar Properties

Sampford Road, Thaxted, Dunmow, Essex

6 Bedroom Detached House | Offers Over £650,000

Daniel Brewer are pleased to market this substantial five double bedroom detached family home with a separate one bedroo...

Main Road, Ford End, Chelmsford

4 Bedroom Detached House | £650,000

Situated overlooking open countryside in the village of Ford End is this immaculate four bedroom detached period propert...

Kings Court, The Maltings, Great Dunmow, Essex

5 Bedroom Detached House | Offers Over £650,000

Daniel Brewer are pleased to market this exquisite 17th Century Grade II listed detached cottage located within Dunmow a...

Thaxted Road, Wimbish, Saffron Walden, Essex

3 Bedroom Barn Conversion | Offers Over £675,000

Daniel Brewer are excited to present this modern barn conversion located just outside the charming market town of Thaxte...

Wethersfield Road, Finchingfield, Braintree

4 Bedroom Detached Bungalow | Offers Over £675,000

Set within approximately a quarter of an acre is this substantial four bedroom detached bungalow offering fantastic pote...

High Street, Dunmow

Commercial Property | Offers Over £700,000

Post Office Yard is a fantastic opportunity to purchase a detached former post office dating back to 1938 commanding a c...

Daniel Brewer Estate Agents (Great Dunmow)

51 High Street, Great Dunmow, Essex, CM6 1AE

01371 856 585

How much is your home worth?

Use our short form to request a valuation of your property.

Request a Valuation

Mortgage Calculator

Amount Borrowed: £
Total Amount Repayable: £
Total Monthly Payment: £
©2025 The Guild of Property Professionals. All rights reserved. Terms and Conditions | Privacy Policy | Cookie Policy | Complaints Policy | Members Login
The Guild of Property Professionals Trading Address: 121 Park Lane, London W1K 7AG. GPEA Limited. Registered in England & Wales.  Company No: 02819824.  Registered Office Address: 2 St. Stephen's Court, St. Stephen's Road, Bournemouth, Dorset, England, BH2 6LA.  VAT Registration No: 576 8795 61
Book a Property Valuation Update Cookies Preferences