Goosepool Drive, Eaglescliffe

Guide Price
£257,500
Under Offer
This property listing is now Under Offer

3 Bedroom Semi-Detached House for sale in Eaglescliffe

1 3 2
  • Three Bedroom Semi-Detached House Taylor Wimpey Built West Facing Rear Garden Partially Converted Garage - Multi-Functional Space Modern Interior Family Bathroom & Principal En-Suite Cul-De-Sac...

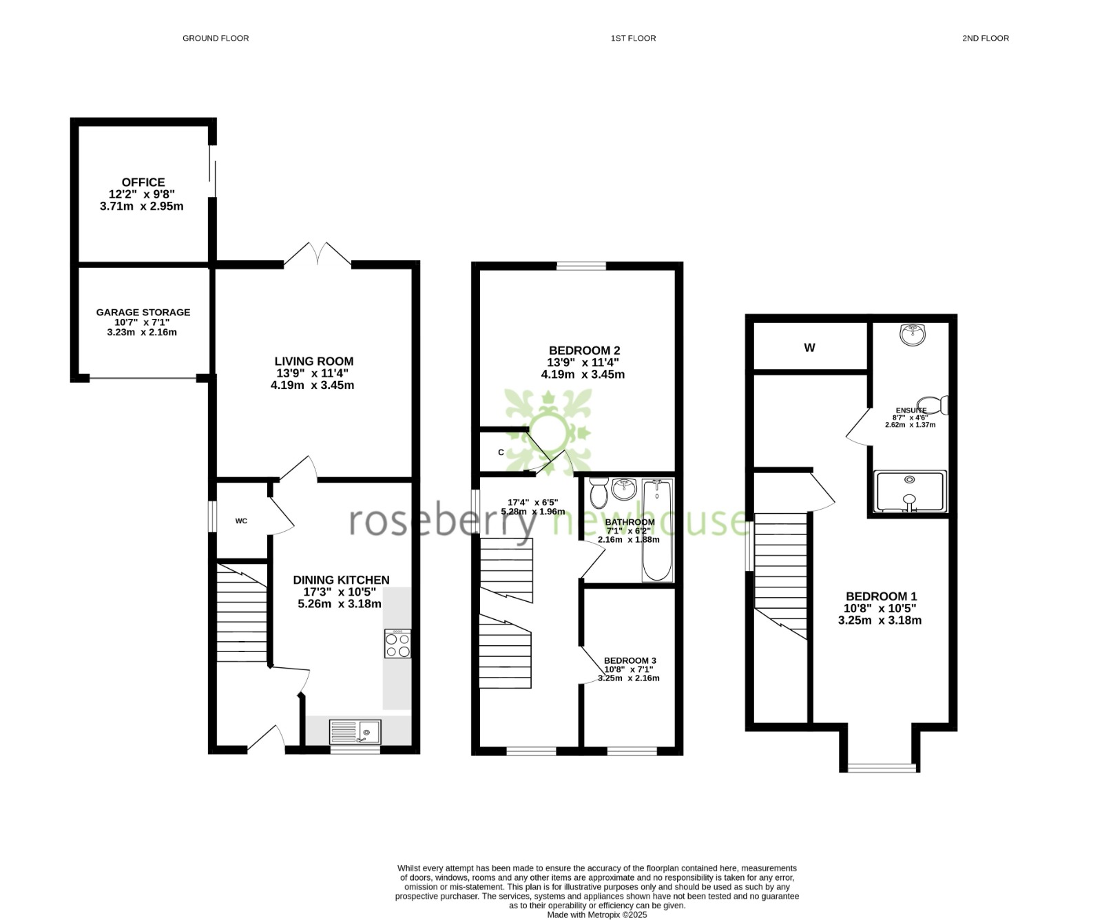
Situated at the head of a quiet cul de sac, this spacious three bedroom semi detached home was built by Taylor Wimpey and offers an excellent opportunity for a variety of buyers.

Set over three floors and boasting generous proportions throughout, the property enjoys a prime position close to local amenities, transport links and schools. The accommodation briefly comprises an entrance vestibule and a bright, well presented breakfast kitchen fitted with cream shaker style units, wood effect worktops, integrated cookware, a freestanding fridge/freezer, integrated dishwasher & washing machine. To the rear, the attractive lounge features French patio doors that open directly onto the garden, creating a lovely space for relaxing or entertaining. A useful WC completes the ground floor.

The first floor hosts a spacious double bedroom, a modern three piece family bathroom and a charming third bedroom with decorative wall panelling. The entire top floor is dedicated to an impressive principal suite, complete with a generous double bedroom, dressing area with fitted storage and a contemporary shower room.

Outside, the property offers a tandem driveway, a neat lawned front garden and a single garage. The garage has been thoughtfully partitioned, providing storage at the front and a highly functional space at the rear, currently used as a home office but perfect for a playroom, gaming room, workspace or even a home bar. The rear garden is laid to lawn and enjoys a sunny west facing aspect, making it ideal for outdoor dining and relaxation.

A fantastic home in a sought after location, ready to impress from the moment you step inside.

Important Information

  • This is a Freehold property.
  • This Council Tax band for this property is: D
  • EPC Rating is B

Property Ref: TES250321

Share:

Similar Properties

Castor Way, Stockton-on-Tees

4 Bedroom Detached House | Offers Over £250,000

Located within the Queensgate development this attractive 4 bedroom family home enjoys a favourable position overlooking...

Spacious extended family home in prime Crooks Barn location with south-facing garden & no chain

4 Bedroom Semi-Detached House | Guide Price £250,000

With no onward chain, this extended four-bedroom semi-detached home in sought-after Crooks Barn offers spacious, versati...

Croft Avenue, Acklam

3 Bedroom Semi-Detached House | Guide Price £245,000

A charming 3 bed period semi-detached home in a highly sought-after area of Acklam. Ideally located close to local schoo...

Bancroft Drive, Ingleby Barwick

4 Bedroom Detached House | Guide Price £259,500

An immaculate four-bedroom family home built by Persimmon Homes to the sought-after ‘Roseberry’ design, positioned withi...

Ribblesdale Way, Stockton-on-Tees

4 Bedroom Detached House | Offers Over £260,000

Located within Harebell Meadows, this recently built four-bedroom family home was completed by Persimmon Homes in 2026 t...

Contemporary living meets countryside calm in this exceptional Carlton home.

3 Bedroom Detached House | Guide Price £260,000

Immaculately presented three-bedroom detached home on the edge of Orwell Grange, Carlton, overlooking a rear green space...

Roseberry Newhouse Teesside Hub (Stockton-on-Tees)

Cygnet Drive, Stockton-on-Tees, Durham, TS18 3DB

01642 792488

How much is your home worth?

Use our short form to request a valuation of your property.

Request a Valuation

Mortgage Calculator

Amount Borrowed: £
Total Amount Repayable: £
Total Monthly Payment: £
©2026 The Guild of Property Professionals. All rights reserved. Terms and Conditions | Privacy Policy | Cookie Policy | Complaints Policy | Members Login
The Guild of Property Professionals Trading Address: 121 Park Lane, London W1K 7AG. GPEA Limited. Registered in England & Wales.  Company No: 02819824.  Registered Office Address: 2 St. Stephen's Court, St. Stephen's Road, Bournemouth, Dorset, England, BH2 6LA.  VAT Registration No: 576 8795 61
Book a Property Valuation Update Cookies Preferences