Henchman Street, East Acton

Guide Price
£565,000
SSTC
This property listing is now SSTC

3 Bedroom Terraced House for sale in East Acton

1 3 3
  • EXTENDED 2 BEDROOM HOUSE
  • USEABLE LOFT ROOM
  • CLOSE TO EAST ACTON TUBE
  • BESPOKE FITTED KITCHEN
  • 3 SHOWER ROOMS (2 EN SUITES)
  • 3 WALK IN DRESSING CUPBOARDS
  • EXTENDED DINING AREA
  • AMPLE STORAGE SPACE

Pleasantly situated in a popular sought after tree lined road in the heart of the Old Oak conservation area, is this EXTENDED Charming cottage located 2 minutes walk from central line zone 2 Central line tube station in a quiet residential area. Benefits from an off street front garden entrance onto a small enclosed green and is also a short walk from old oak common. This property has 1 reception room / 2 bedrooms / 3 bathrooms of which 1 bedroom en-suite as well as an office space used as a third bedroom also en-suite . Each bedroom is designed with its own walk-in cupboard and extensive integrated storage space. The kitchen has been recently extended to offer a bespoke kitchen/dining room all furnished to high specification with quartz work surfaces including splash backs and luxury hard wearing karndean flooring throughout the house. This bright room opens onto a well maintained secluded garden. This property is within the catchment area of 2 OFSTED rated outstanding schools (Burlington Danes academy and Ark Conway). Viewing is highly recommended !

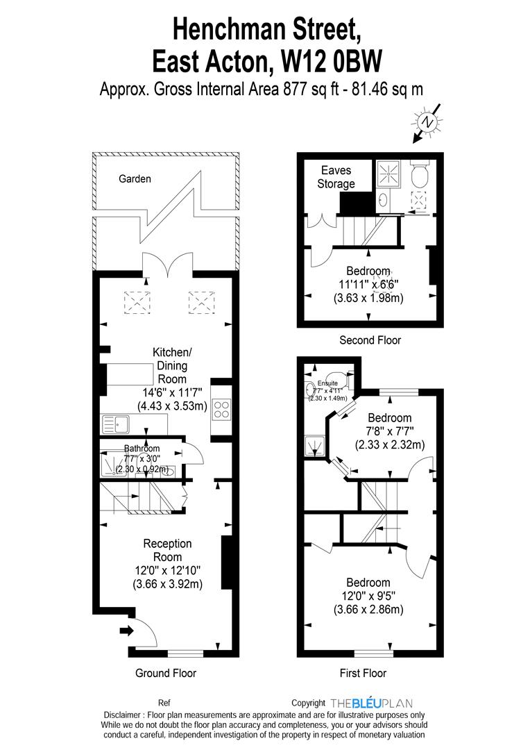
GROUND FLOOR:- RECEPTION to EXTENDED Kitchen / DINING AREA with 2 velux windows, shower room / wc.
FIRST FLOOR :- 2 BEDROOMS, 2 SHOWER ROOMS (ONE EN SUITE), walk in dressing cupboards and stairs to:... SECOND FLOOR / ATTIC:- an adapted loft area / bedroom / office with en suite shower room / wc and storage space.

Entrance Hall -

Reception Room - 3.66mx3.91m (12x12'10) -

Kitchen / Dining Room - 4.42m x 3.53m (14'6 x 11'7) -

Downstairs Bathroom - 2.31m x 0.91m (7'7 x 3') -

First Floor Landing -

Bedroom 1 - 3.66m x 2.87m (12 x 9'5) -

Bedroom 2 - 2.34m x 2.31m (7'8 x 7'7) -

Ensuite - 2.31m x 1.50m (7'7 x 4'11) -

Second Floor Landing -

Bedroom 3 - 3.63m x 1.98m (11'11 x 6'6) -

Eaves Storage -

Bathroom -

Property Ref: 29132281

Share:

Similar Properties

Goodhall Street, London

3 Bedroom Not Specified | £565,000

A spacious well maintained Victorian character cottage comprising Three/four bedrooms,two receptions, two bathrooms-one...

Wendover Road, Harlesden, London

3 Bedroom Apartment | Offers in region of £555,000

If you are looking for a totally gorgeous three bedroom period garden apartment in one the areas hottest roads then you...

Sellons Avenue, London

2 Bedroom Flat | Guide Price £550,000

*** A CASHBACK OF ?250 IS AVAILABLE ON COMPLETION IF PURCHASED THROUGH US AT CHURCHILL & MATHESONS, call to view***CHURC...

Erconwald Street, Shepherds Bush

3 Bedroom Terraced House | £575,000

A spacious three bedroom end of terrace house which has been in the same family for generations and is now sadly availab...

Chadwick Road, London, NW10 4

3 Bedroom Semi-Detached House | Guide Price £575,000

Discover this 981 sqft freehold semi-detached home on Chadwick Road, NW10 featuring, 3 bedrooms, 2 reception rooms, 1 ba...

Twybridge Way, London

3 Bedroom House | Guide Price £575,000

THE ONE YOU HAVE BEEN LOOKING FOR!This low maintenance end-terrace home on Twybridge Way, NW10, offers a homely, warm an...

Churchill Mathesons (Harlesden)

Harlesden, London, NW10 4JT

0208 965 2250

How much is your home worth?

Use our short form to request a valuation of your property.

Request a Valuation

Mortgage Calculator

Amount Borrowed: £
Total Amount Repayable: £
Total Monthly Payment: £
©2026 The Guild of Property Professionals. All rights reserved. Terms and Conditions | Privacy Policy | Cookie Policy | Complaints Policy | Members Login
The Guild of Property Professionals Trading Address: 121 Park Lane, London W1K 7AG. GPEA Limited. Registered in England & Wales.  Company No: 02819824.  Registered Office Address: 2 St. Stephen's Court, St. Stephen's Road, Bournemouth, Dorset, England, BH2 6LA.  VAT Registration No: 576 8795 61
Book a Property Valuation Update Cookies Preferences