Crawley Down Road, Felbridge, East Grinstead, RH19 2PS

Guide Price
£850,000

5 Bedroom Detached House for sale in East Grinstead

2 5 3

This beautifully presented and thoughtfully updated home offers generous and versatile accommodation arranged over three floors, finished to a very high standard with a stylish contemporary feel throughout.

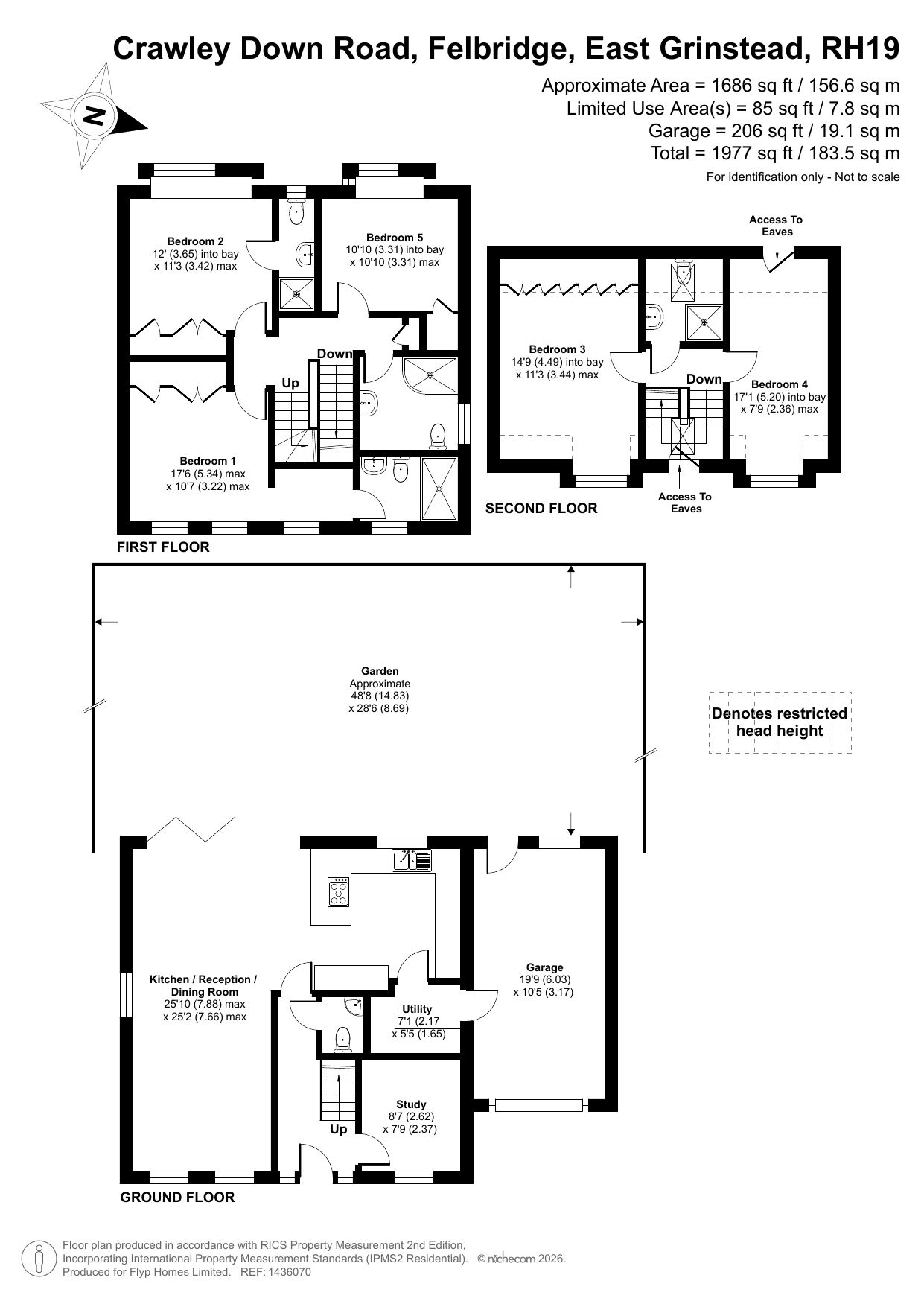
The ground floor is centred around an impressive open-plan kitchen/reception/dining room, creating a superb space for both everyday living and entertaining. The kitchen is well-appointed with modern fittings and flows seamlessly into the dining and living areas, with direct access to the garden allowing for an abundance of natural light. A separate study provides an ideal work-from-home space, complemented by a useful utility room and cloakroom. The integral garage offers excellent storage or further potential, alongside off-street parking to the front.

On the first floor, there are three well-proportioned bedrooms, including a spacious principal bedroom, all served by modern bathroom facilities. The second floor adds further flexibility with two additional bedrooms, ideal for guests, older children or further workspace, along with access to useful eaves storage.

Externally, the property enjoys a private southerly facing garden, providing a wonderful setting for outdoor dining and relaxation, with ample space for families and keen gardeners alike.

The location is particularly appealing, positioned within easy reach of East Grinstead town centre, which offers a wide range of shops, cafés, restaurants and leisure facilities. The area is well regarded for its excellent schooling options, including a selection of highly rated primary and secondary schools in both the state and independent sectors. For commuters, East Grinstead mainline station provides direct services to London, while the surrounding road network offers convenient access to Gatwick Airport, the M23 and beyond. The nearby countryside, including Ashdown Forest, offers beautiful walks and outdoor pursuits, making this an ideal setting for both families and professionals alike.

Important Information

  • This Council Tax band for this property is: G

Property Ref: 1447750

Share:

Similar Properties

Felcourt Road, Felcourt, East Grinstead, RH19 2JZ

3 Bedroom Detached House | Offers Over £825,000

This beautifully presented detached home, set in approximately 3 acres on the outskirts of East Grinstead, offers contem...

Kinnibrugh Drive, Dormansland, Lingfield, RH7 6QF

4 Bedroom Detached House | Guide Price £800,000

Beautifully presented and set on an appealing corner plot, this detached family home offers generous living space, four...

Greshams Way, Edenbridge, TN8 5NY

4 Bedroom Detached House | Guide Price £800,000

Guide - £800,000 - £825,000 - Set in a peaceful cul-de-sac, this beautifully presented four-bedroom detached home featur...

Tandridge Lane, Lingfield, RH7 6LL

3 Bedroom Bungalow | Guide Price £875,000

Tippy Wychett is a beautifully presented detached property combining countryside charm with modern living, featuring spa...

Plot 1 - Hilders Farm, Edenbridge

4 Bedroom Semi-Detached House | £900,000

An Exceptional Brand New 3 Bedroom Semi Detached Home in a Beautiful Semi Rural Location within a gated community.

Hare Lane, Lingfield, RH7 6JB

5 Bedroom Detached House | Guide Price £945,000

Woodlands is a substantial and highly versatile detached home set within a private one acre plot, offering over 2,900 sq...

Robert Leech (Lingfield)

27 High Street, Lingfield, Surrey, RH7 6AA

01342 837783

How much is your home worth?

Use our short form to request a valuation of your property.

Request a Valuation

Mortgage Calculator

Amount Borrowed: £
Total Amount Repayable: £
Total Monthly Payment: £
©2026 The Guild of Property Professionals. All rights reserved. Terms and Conditions | Privacy Policy | Cookie Policy | Complaints Policy | Members Login
The Guild of Property Professionals Trading Address: 121 Park Lane, London W1K 7AG. GPEA Limited. Registered in England & Wales.  Company No: 02819824.  Registered Office Address: 2 St. Stephen's Court, St. Stephen's Road, Bournemouth, Dorset, England, BH2 6LA.  VAT Registration No: 576 8795 61
Book a Property Valuation Update Cookies Preferences