Marlow Road, East Ham E6, London, E6

Offers Over
£280,000
Under Offer
This property listing is now Under Offer

1 Bedroom Flat for sale in East Ham E6

1 1 1
  • 115 Years Lease remaining epc Rated C
  • Ground Floor Conversion with Own Rear Garden
  • One Double bedroom
  • 19Ft Reception room with separate kitchen
  • 3-piece bathroom suite
  • Conservatory / lean to
  • Off High Street South 1 minute walk to Tesco express
  • Must be seen to be fully appreciated
  • Potential to make a second bedroom (subject to the usual consent)
  • Service Charges 0 - Ground Rent £250.00 per annum Council Tax Band B

Central Park Location.115 years Lease, No Service Charges! Knights are pleased to offer for sale this One Bedroom Ground Floor conversion flat with sole use of rear garden Located off High Street South. In our opinion the property is Spacious, well presented and is an ideal first time buy. Early inspection recommended to avoid disappointment.

This property is located on a Tree lined residential Road Off High Street South and is close to a selection of shops and amenities with the more extensive amenities of East Ham and Beckton close by.
Beckton DLR is 0.7 miles and East Ham Underground Station is 0.9 miles away.

In our opinion this property is a good investment for either a first-time buyer or a buy to let investor. Estimated rental income £14,400 per annum.

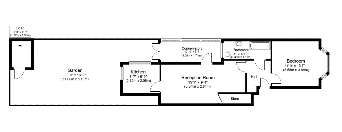
Main Front Entrance Door to Communal area.
Wooden door leading to Flat.
Entrance Hall area with doors to

Double Bedroom.  13' 1 x 11' 9 (3.98m x 3.58m)
Double glazed bay window to front aspect, Gas central heating and wood flooring.

Bathroom. 11' 00 x 4' 7 (3.36m x 1.40m)
Frosted double glazed window to rear, Part tiled walls, extractor fan, Panel enclosed bath tub, Mixer tap with up and over shower, pedestal hand wash basin, low level flush WC, Tiled flooring, heated towel rail.

Lounge. 19' 1 x 9' 4 (5.84m x 2.84m)
Double glazed window to side aspect, door to conservatory, Gas central heating, wood flooring, TV aerial point and phone point.

Kitchen. 8' 7 x 6' 9 (6.62m x 2.06m)
Double glazed window to rear and side aspect, Part tiled walls, Tiled flooring.
Range of base and wall units with roll top work surfaces, Gas cooker with extractor hood, stainless steel sink, mixer tap, splash back tiles, plumbing for washing machine. wall mounted Vaillant Combination boiler.
 
Conservatory.12' 10 x 5' 7 (3.68m x 1.74m)
Double glazed windows to side aspect, Tiled flooring, gas central heating, Upvc double doors leading to own garden.

Garden. 38ft
Mostly paved with both side areas available to grow plants and flowers, Storage shed to rear. outside tap.

Important Information

  • This is a Leasehold property.

Property Ref: THM00075C

Share:

Similar Properties

Spencer Road, London, N17

2 Bedroom Apartment | Guide Price £280,000

Knights are delighted to offer this Chain Free Maisonette set across two bright floors(1st & 2nd floor).This good size t...

Arundel Close, Lansdowne Road, Tottenham, London, N17

2 Bedroom Apartment | Guide Price £280,000

Sole Agents Knights Residential are pleased to offer for sale this Light and Airy first Floor flat benefiting from 2 dou...

linkway, london, Haringay, N4

1 Bedroom Flat | £280,000

Newly refurbished one bedroom conversion located in a desirable area. This well presented split level property is on the...

Horsham Court, Lansdowne Road, London, N17

1 Bedroom Flat | £285,000

One Bedroom Flat located within the heart of Tottenham Re-generation. This property is located on the top floor & has ac...

Kimberley Road , Meridian Water, London, N18

2 Bedroom Flat | Guide Price £285,000

EPC rated C. 999-year lease and Share of Freehold. Rest or Invest! Knights Residential are delighted to offer for sale t...

North Birkbeck Road , Leyton, London, E11

1 Bedroom Apartment | Guide Price £285,000

Recently Refurbished. Knights Residential are delighted to offer for sale this Light and Airy 572 sq. ft One Bedroom Low...

Knights Residential (Tottenham)

Tottenham, London, N17 9TA

0208 885 6800

How much is your home worth?

Use our short form to request a valuation of your property.

Request a Valuation

Mortgage Calculator

Amount Borrowed: £
Total Amount Repayable: £
Total Monthly Payment: £
©2026 The Guild of Property Professionals. All rights reserved. Terms and Conditions | Privacy Policy | Cookie Policy | Complaints Policy | Members Login
The Guild of Property Professionals Trading Address: 121 Park Lane, London W1K 7AG. GPEA Limited. Registered in England & Wales.  Company No: 02819824.  Registered Office Address: 2 St. Stephen's Court, St. Stephen's Road, Bournemouth, Dorset, England, BH2 6LA.  VAT Registration No: 576 8795 61
Book a Property Valuation Update Cookies Preferences