Rotary Court, Hampton Court Road, East Molesey

Guide Price
£375,000
Under Offer
This property listing is now Under Offer

1 Bedroom Ground Floor Flat for sale in East Molesey

1 1 1

A comparatively good size one bedroom ground floor apartment with own private entrance, just a 'stones throw' from historic Hampton Court Palace, station and the village area of Bridge Road, including stunning riverside gardens and the advantage of secure gated parking to the rear.



Rotary Court, once owned by the Crown Estate, is a fine example of an early Victorian building, sympathetically converted into private apartments in 2008. This apartment enjoys its own entrance to the rear of the building - a private and secure area perfect for enjoying a morning coffee. There is a lovely community among the residents, from vibrant friendly retirees to lovely younger couples and singles, so you will enjoy a warm welcome, just as the current owner has enjoyed for the last 12 years.  Additionally, being in the London Borough of Richmond Upon Thames, advantages currently include the Freedom Pass. 



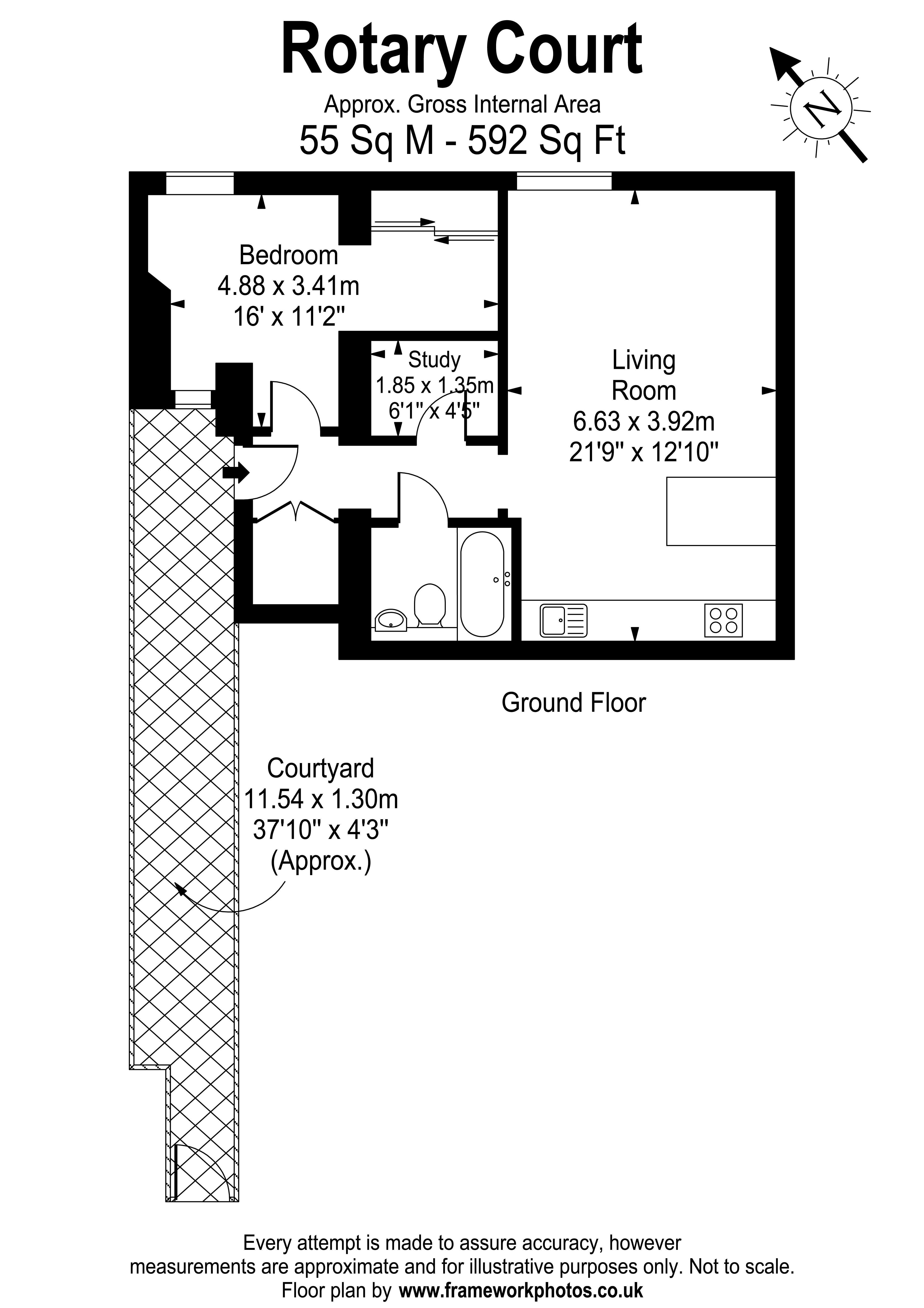
Upon entering the flat there is a good feeling of space to the entrance hall with double storage cupboard immediately on your right.  Further along on the left is a small internal study space and combined coats/shoe cupboard, or otherwise, a deep closet for those wanting surplus storage.  The open plan kitchen / living room with wood flooring is a generous space and the modern kitchen has all the necessary appliances as well as a peninsula unit as a breakfast / dining space with stools.  



The bedroom enjoys a side dressing area with full width built-in wardrobe, and to complete the accommodation you'll find a modern fitted bathroom with separate shower over the bath.  The property has been freshly decorated throughout, has newly installed heaters, and also new quality timber framed double glazed sash window to the living room.          



Externally the stunning grounds sweep down to the River Thames with seating to enjoy the water views and relax at the end of the day, if you love a garden and have no time for gardening then this is for you. If you are looking for somewhere where you can enjoy open spaces on your doorstep this is the perfect location with Bushy and Hurst Parks , wonderful riverside walking paths and Hampton Court Golf Course nearby. A few of the residents are also keen runners and one an ultra marathon runner, so perfect training partners at the ready. With a secure bike store, this is also the perfect place for you as you can access the cycle routes around Surrey including the infamous Box Hill. Within 5 minutes walk you also have the East Molesey Cricket Club and Molesey Row Club, perfect for enjoying the activities as a spectator or a participant, plus the Real Tennis Club at Hampton Court Palace and of course the Thames Motor Yacht Club next door, that you can join as a social member even if you don't own your own boat yet !!



Tenure: We are informed there is a long lease of 108 years

Ground Rent: £350 PA

Service Charge & Sink Fund: £3,070.48 PA



Location: Rotary Court is an elegant period building, opposite Hampton Court Green, forming an historic landscape of architecturally important buildings (The Courthouse, Paper House and Faraday House) adjacent to the River Thames; these buildings were once occupied by highly acclaimed figures such as Sir Christopher Wren and Michael Faraday. Major bus routes are located close by with direct bus services to Richmond, Kew, Kingston and Heathrow airport whilst the station - just across the bridge - connects Waterloo in approx. 35 minutes. Wonderful riverside towpath walks are found nearby, leading to Hampton Wick, Kingston and Richmond, and in the opposite direction towards Walton Upon Thames. A short walk away you will find Bridge Road, affectionately known as Hampton Court Village. Here the vibrant street scene provides numerous, pubs bars, cafes and restaurants (28 at the last count) as well as quality independent stores, art galleries, and antique shops, perfect for evening and weekends wondering.

Important Information

  • This is a Leasehold property.

Property Ref: EAXML14612_12500038

Share:

Similar Properties

High Street, Hampton Wick

1 Bedroom Ground Floor Flat | Guide Price £375,000

Miles & Bird Estate Agents, covering Hampton Wick, are proud to have sold this delightful one bedroom ground floor gard...

Marina Place, Hampton Wick

1 Bedroom Flat | Guide Price £375,000

An immaculate, recently refurbished, first floor 'lift-serviced' apartment with secure underground parking, forming part...

Bucklands Road, Teddington

2 Bedroom Flat | Asking Price £375,000

A recently modernised two double bedroom second (top) floor apartment in a quiet cul-de-sac location in a popular part o...

Thames Court, Victoria Avenue, West Molesey

3 Bedroom Flat | Offers in excess of £380,000

Miles & Bird Estate Agents based in East Molesey are pleased to present this competitively priced three bedroom, fourth...

Cottimore Terrace, Walton-On-Thames

2 Bedroom End of Terrace House | Guide Price £392,000

Miles & Bird are pleased to present this charming two double bedroom end of terrace cottage is tucked away in a quiet an...

Mallard Place, Strawberry Hill

1 Bedroom Flat | Guide Price £395,000

A bright and spacious one bedroom raised ground floor maisonette, forming part of an award-winning Riverside development...

Miles & Bird (East Molesey)

East Molesey, Surrey, KT8 9HA

020 3875 3875

How much is your home worth?

Use our short form to request a valuation of your property.

Request a Valuation

Mortgage Calculator

Amount Borrowed: £
Total Amount Repayable: £
Total Monthly Payment: £
©2025 The Guild of Property Professionals. All rights reserved. Terms and Conditions | Privacy Policy | Cookie Policy | Complaints Policy | Members Login
The Guild of Property Professionals Trading Address: 121 Park Lane, London W1K 7AG. GPEA Limited. Registered in England & Wales.  Company No: 02819824.  Registered Office Address: 2 St. Stephen's Court, St. Stephen's Road, Bournemouth, Dorset, England, BH2 6LA.  VAT Registration No: 576 8795 61
Book a Property Valuation Update Cookies Preferences