Bridge Road, East Molesey

Guide Price
£890,000

3 Bedroom End of Terrace House for sale in East Molesey

2 3 1

This charming double-fronted Victorian cottage is absolutely full of character, situated right in the heart of East Molesey - affectionately referenced as Hampton Court Village - with everything one would need at their fingertips; quality shops, cafés & restaurants, beautiful riverside settings, boundless Royal parkland, and mainline station (zone 6) less than a 2 minutes walk.  



Miles & Bird are thrilled to present this delightful period property, sympathetically restored by the owner in stages during a tenure approaching 20 years.  Alongside all the lovely internal upgrades and character features; wood floorboards and fireplaces, the 'big ticket' items have all been done.  These include; a new roof (2017), new boiler (2023) and front elevation windows (2024).  Other major works took place shortly after acquisition involving a well designed pitched glazed roof kitchen/breakfast room extension – the rear elevation windows were also replaced at this time. 



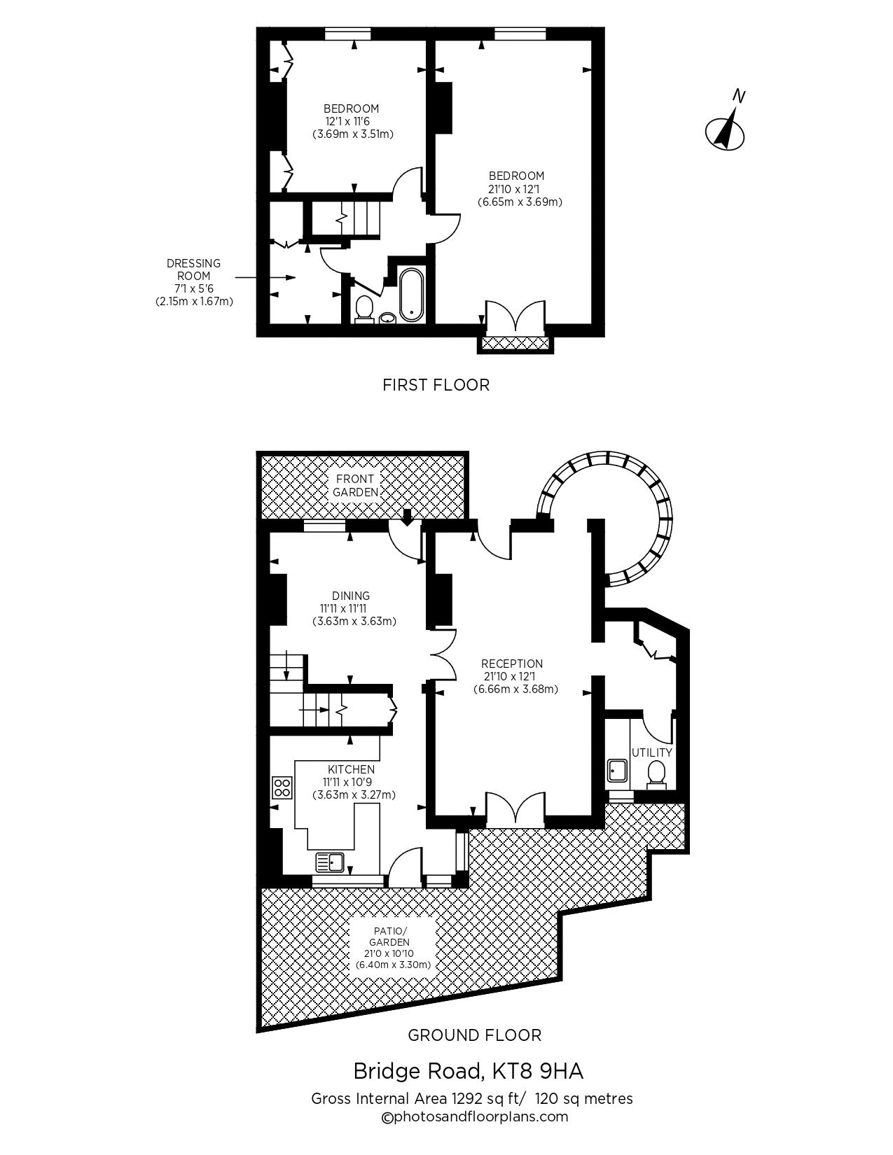
The accommodation is well balanced across two floors and provides a rather comfortable internal floor area of approx. 120 sqm, approaching 1,300 sqft.  The dining room with feature fire-place, has alcove bookshelves and corner staircase.  This room takes you through to the main reception room and also the bright and well equipped kitchen with integrated appliances and composite work top incorporating peninsula breakfast bar.  The main reception room is a good size abt. 22 x 12ft with twin-doors to the courtyard.  To complete the ground floor there is an inner lobby with built-in glass display unit which, in turn, leads through to a highly practical utility / laundry room with W.C & sink, and space for both tumble dryer and separate washing machine. 



Moving upstairs, the landing takes you into a rather impressive double aspect bedroom (formerly two rooms) replicating the size of the main reception below.  This room features a Juliette-balcony and a lovely fireplace.  Next door is another good double, again with ornamental fireplace complete with ornate cast-iron centre-piece, together with matching alcove cupboards; these are likely to be original joinery from the date of construction.   A small third bedroom would work perfectly as a dressing room, or study and modern fitted bathroom completes this floor. 



Outside, a small front garden is enclosed by a classic picket fence & gate with established and well tended plants to offset against traditional London-Stock facing elevation.  The rear garden is a low maintenance block-paved patio / terrace - a perfect retreat to relax in.  



Location:  You can't get more central than this! 

Important Information

  • This is a Freehold property.

Property Ref: EAXML14612_12754219

Share:

Similar Properties

Robin Hood Lane, Putney / Kingston Vale

5 Bedroom House | Guide Price £885,000

A substantial 1938 built, five bedroom, two bathroom, semi-detached family home with huge scope to improve, benefitting...

Bushy Park Road, Teddington

2 Bedroom House | Guide Price £875,000

A tastefully refurbished and skilfully extended Victorian home with useful outdoor garden room, situated in a desirable...

Summer Avenue, East Molesey

3 Bedroom House | Guide Price £875,000

A three bedroom semi-detached period home along a private cul-de-sac with approx. 100ft west facing rear garden enjoying...

Beaufort Street, London

2 Bedroom Terraced House | Guide Price £895,000

Miles & Bird Estate Agents are pleased to have sold this exceptionally bright, immaculately presented, first floor two b...

Nightingale Road, West Molesey

4 Bedroom House | Asking Price £897,500

A charming four bedroom, two bathroom, Edwardian family home benefitting from a beautifully established 70ft south facin...

Wick Road, Teddington

3 Bedroom House | Guide Price £900,000

Miles & Bird Estate Agents are proud to present this traditional bay fronted Victorian property in a popular side road...

Miles & Bird (East Molesey)

East Molesey, Surrey, KT8 9HA

020 3875 3875

How much is your home worth?

Use our short form to request a valuation of your property.

Request a Valuation

Mortgage Calculator

Amount Borrowed: £
Total Amount Repayable: £
Total Monthly Payment: £
©2025 The Guild of Property Professionals. All rights reserved. Terms and Conditions | Privacy Policy | Cookie Policy | Complaints Policy | Members Login
The Guild of Property Professionals Trading Address: 121 Park Lane, London W1K 7AG. GPEA Limited. Registered in England & Wales.  Company No: 02819824.  Registered Office Address: 2 St. Stephen's Court, St. Stephen's Road, Bournemouth, Dorset, England, BH2 6LA.  VAT Registration No: 576 8795 61
Book a Property Valuation Update Cookies Preferences