Sussex Cottage, Bridge Road, East Molesey

Guide Price
£1,200,000
Under Offer
This property listing is now Under Offer

3 Bedroom House for sale in East Molesey

2 3 1

A rare opportunity to acquire an 18th Century cottage in central East Molesey with land rear containing various outbuildings with scope to provide annexe accommodation or alternatively would make an ideal live/work space.

   

This intriguing property has been occupied by the same East Molesey family for over 130 years.  Although they actually only acquired the property in 1954, prior to that were tenants since the 1890s. 



A local legacy family with long standing connections to the River Thames.  We are informed that a relative (great grandfather) once served as a Royal Waterman, and during this period spanning three centuries, the family ran a boat hire business near Hampton Court Bridge, which was passed on through the generations.     



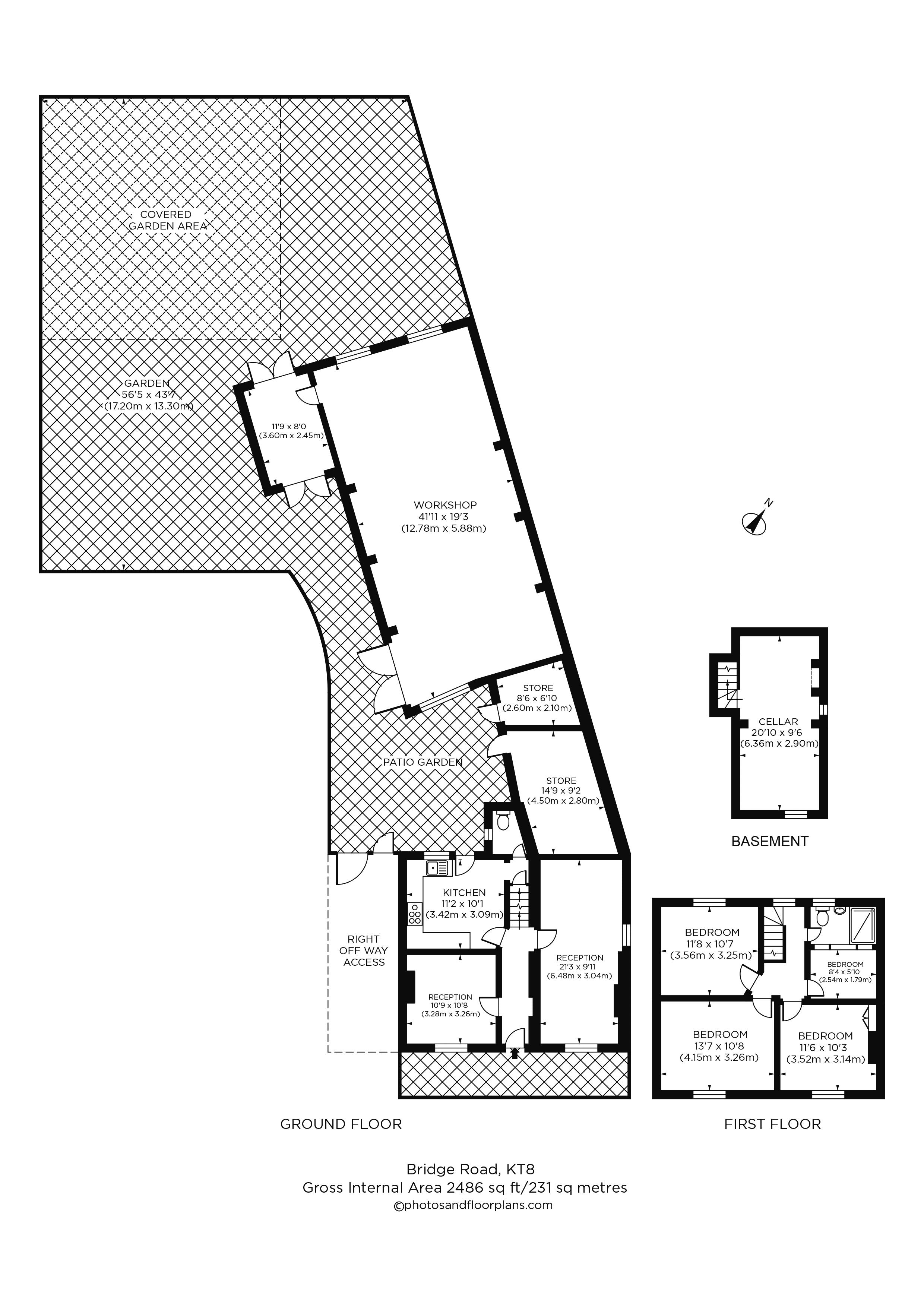
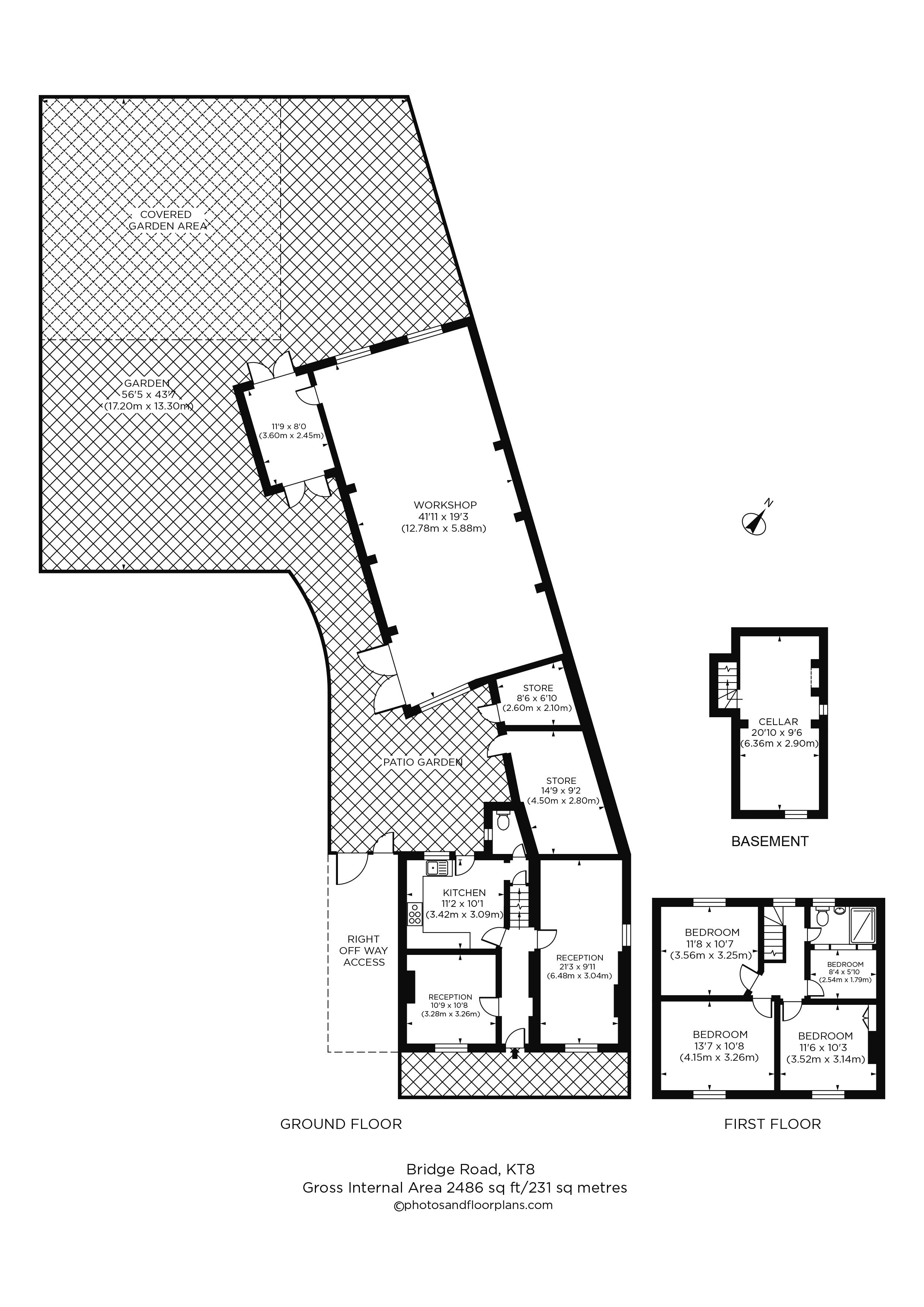
Main House



A double-fronted cottage with characterful accommodation arranged mainly over two floors with useful cellar.  The main house extends to abt. 131 sqm / 1,410 sqft.  Facing the house, the ground floor accommodation consists of a double aspect through reception room to the right, to the left a front reception room is set up as an artist studio / work space with party wall to a kitchen / breakfast room.  Off the kitchen is a back door to a courtyard garden and with an  inner lobby opening to a downstairs W.C.  Opposite is an under stair door with steps leading down to the cellar.  The cellar provides power and light, with flagstone floor and two lightwell windows to the front and side.  



Upstairs from the landing are three double bedrooms each with ornamental fireplaces.  These rooms are served by an updated independent shower room next to an inner store room / dressing room.  This space could easily accommodate a second bathroom (or ensuite to front bedroom) with plumbing and waste accessible from the adjoining shower room.    



Outbuildings and Land



To the left flank wall of the cottage there is pedestrian and vehicular right of way access to the rear courtyard.  There are two timber stores / lean-to's attached to the cottage which, in turn, connect to a brick boathouse / work shop with pitched roof and large windows at the far end.  This building is in a poor state of repair and practically dilapidated.  However, this vast space is crying out for restoration and the overall area measures approx. 42 x 19 ft / 12.78 x 5.88m (GIA - approx. 75m2 / 807 sqft.). An inner door in the far corner leads to what is now an attached garage.



There are two garden sections that need cultivating and landscaping either side of a covered carport.  The carport is also in a poor condition.  A small section of roof has caved-in and is beyond repair.  Ideally, this structure needs to be dismantled and removed.           

 
   

Important Information

  • This is a Freehold property.

Property Ref: EAXML14612_12739367

Share:

Similar Properties

Walton Road, East Molesey

4 Bedroom House | Guide Price £1,200,000

A charming four-bedroom, two-storey, Victorian property in central East Molesey forming part of the old village conserva...

Palace Road, East Molesey

3 Bedroom Flat | Guide Price £1,200,000

A beautifully appointed period property arranged over the upper two floors of an elegant mid Victorian detached residenc...

Thistledene, Thames Ditton

4 Bedroom House | Guide Price £1,200,000

An extended four / five bedroom, three bathroom, family home situated in a popular residential area boasting a large, es...

Station Road, Teddington

4 Bedroom House | Guide Price £1,250,000

A traditional four-bedroom, two bathroom, halls-adjoining semi, right in the heart of central Teddington virtually oppos...

Gordon Road, Kingston-Upon-Thames

4 Bedroom House | Guide Price £1,250,000

A handsome bay-fronted Victorian detached Villa, skilfully extended into the loft (2015) and ground floor rear (2017) wi...

Upper Teddington Road, Hampton Wick

3 Bedroom House | Guide Price £1,250,000

A rare opportunity to acquire a former coach house with huge potential. Offered for sale with NO ONWARD CHAIN and ready...

Miles & Bird (East Molesey)

East Molesey, Surrey, KT8 9HA

020 3875 3875

How much is your home worth?

Use our short form to request a valuation of your property.

Request a Valuation

Mortgage Calculator

Amount Borrowed: £
Total Amount Repayable: £
Total Monthly Payment: £
©2026 The Guild of Property Professionals. All rights reserved. Terms and Conditions | Privacy Policy | Cookie Policy | Complaints Policy | Members Login
The Guild of Property Professionals Trading Address: 121 Park Lane, London W1K 7AG. GPEA Limited. Registered in England & Wales.  Company No: 02819824.  Registered Office Address: 2 St. Stephen's Court, St. Stephen's Road, Bournemouth, Dorset, England, BH2 6LA.  VAT Registration No: 576 8795 61
Book a Property Valuation Update Cookies Preferences