Molember Road, East Molesey

Guide Price
£1,250,000

4 Bedroom House for sale in East Molesey

2 4 1

An excellent opportunity to acquire a four bedroom, two-storey, detached house in a quiet cul-de-sac position within a private road.



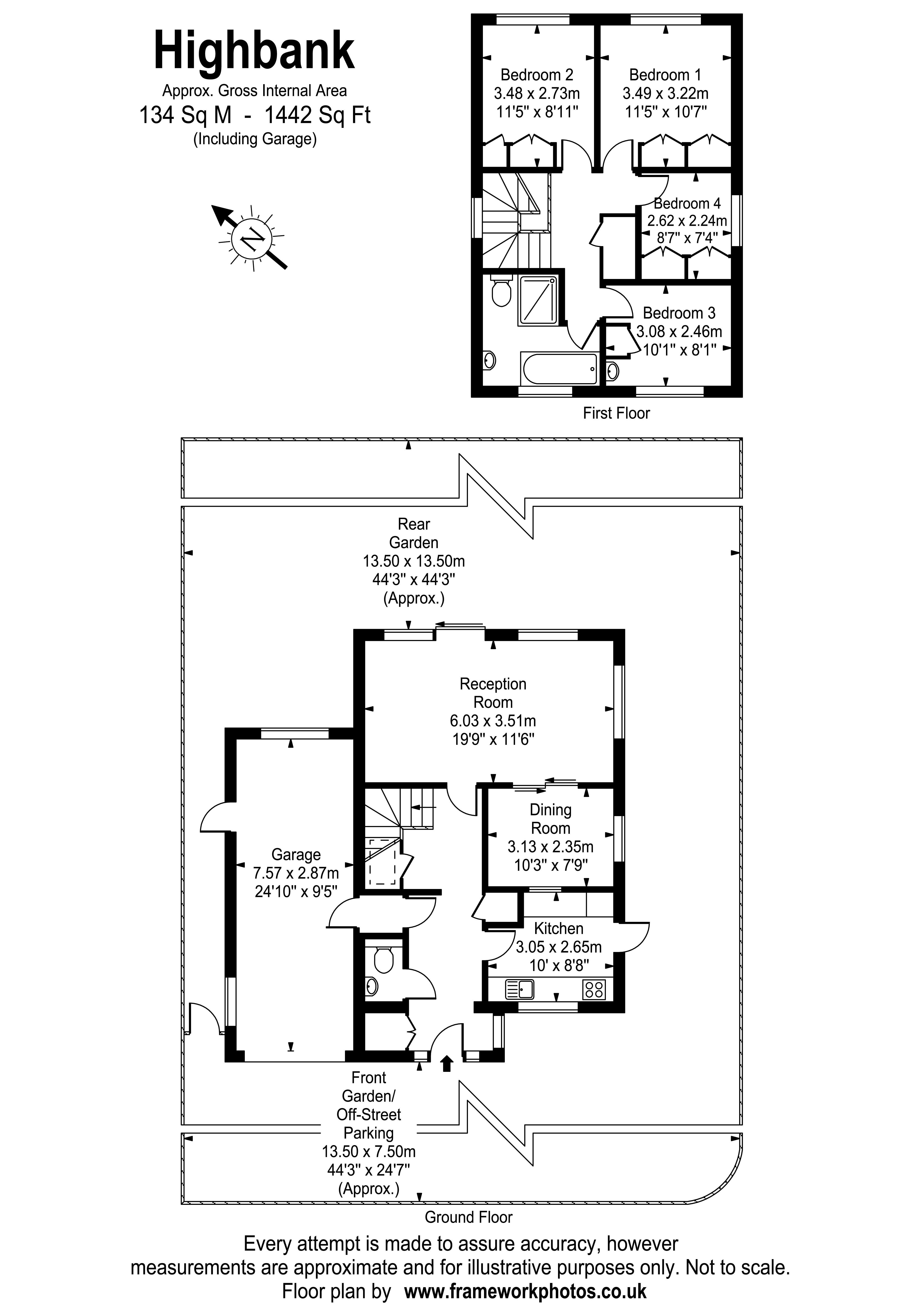
Available for the first time in 42 years, this attractive and well maintained detached home stands in a comfortable plot with access both sides of the property.  A well stocked front garden is enclosed by a low-level retainer wall, and provides driveway parking leading to an attached double-length garage.  The rear garden enjoys superb privacy and seclusion and is further complimented by vast array of perennial flowers, established plants, trees and shrubs.  A prominent attribute of the garden is a covered terrace and seating area overlooking a raised rockery with working pond which takes centre stage.    



Internally, the ground floor accommodation comprises; entrance porch with coats & shoe cupboard, taking you through to a central hallway with understairs cupboard, a highly useful guest W.C, and internal access through to the garage.  Off to the right is the kitchen with window overlooking the front garden, external door to side access and a serving hatch through to the dining room.  To complete the ground floor accommodation a bright and spacious sitting room is positioned at the back of the house to absorb the benefits of the garden. This room takes you through to the dining area which can be enclosed with sliding doors.    



A returning staircase gives way to the first floor landing with side window and deep airing cupboard. A loft hatch to the landing has a pull down-down ladder opening up to the attic.  There are four comfortable bedrooms on this floor – each providing either built-in wardrobes or storage.  Further features include original parquet flooring to much of the ground floor, double glazed windows, gas central heating with combi boiler, and solar panels to off-set energy consumption.  



Early viewing recommended with sole agents: Miles & Bird of Bridge Road, East Molesey.   



Additional note:  We are informed of a £240 annual resident membership scheme of the private road.        

  

Location:  Molember Road is a private road between the River Mole and River Ember in a highly sought-after East Molesey location.  At the end of the road a footbridge leads through to a public footpath onto Hampton Court Way, and in turn to the station (zone 6) in under 10 minutes.  Picturesque stretches of the Thames along with approx. 1,850 acres (745 hectares) of protected Royal parkland are on the doorstep. In addition, the local community is well supported with superb amenities of East Molesey's main high street, and the highly popular village area of Bridge Road also enjoys an excellent choice of restaurants, cafés, and quality independent shops and retailers.


Important Information

  • This is a Freehold property.

Property Ref: EAXML14612_12612032

Share:

Similar Properties

Gordon Road, Kingston-Upon-Thames

4 Bedroom House | Guide Price £1,250,000

A handsome bay-fronted Victorian detached Villa, skilfully extended into the loft (2015) and ground floor rear (2017) wi...

Station Road, Teddington

4 Bedroom House | Guide Price £1,250,000

A traditional four-bedroom, two bathroom, halls-adjoining semi, right in the heart of central Teddington virtually oppos...

Upper Teddington Road, Hampton Wick

3 Bedroom House | Guide Price £1,250,000

A rare opportunity to acquire a former coach house with huge potential. Offered for sale with NO ONWARD CHAIN and ready...

Parsons Mead, East Molesey

4 Bedroom House | Guide Price £1,275,000

A stylish four bedroom, two bathroom, link-detached property with south facing rear garden and driveway parking, tucked...

Manor Road, Teddington

5 Bedroom End of Terrace House | Guide Price £1,285,000

An architect owned four / five bedroom, three bathroom, double fronted end of terrace property with driveway parking, oc...

Hardy's Mews, East Molesey

3 Bedroom End of Terrace House | Guide Price £1,285,000

A unique opportunity to acquire an impressive, architect designed mews house with parking to the fore, tucked away in a...

Miles & Bird (East Molesey)

East Molesey, Surrey, KT8 9HA

020 3875 3875

How much is your home worth?

Use our short form to request a valuation of your property.

Request a Valuation

Mortgage Calculator

Amount Borrowed: £
Total Amount Repayable: £
Total Monthly Payment: £
©2026 The Guild of Property Professionals. All rights reserved. Terms and Conditions | Privacy Policy | Cookie Policy | Complaints Policy | Members Login
The Guild of Property Professionals Trading Address: 121 Park Lane, London W1K 7AG. GPEA Limited. Registered in England & Wales.  Company No: 02819824.  Registered Office Address: 2 St. Stephen's Court, St. Stephen's Road, Bournemouth, Dorset, England, BH2 6LA.  VAT Registration No: 576 8795 61
Book a Property Valuation Update Cookies Preferences