Friday Street, Eastbourne

Guide Price
£450,000
SSTC
This property listing is now SSTC

Land for sale in East Sussex

GUIDE PRICE £450,000

• Prime building land for sale with planning granted in the seaside town of Eastbourne East Sussex

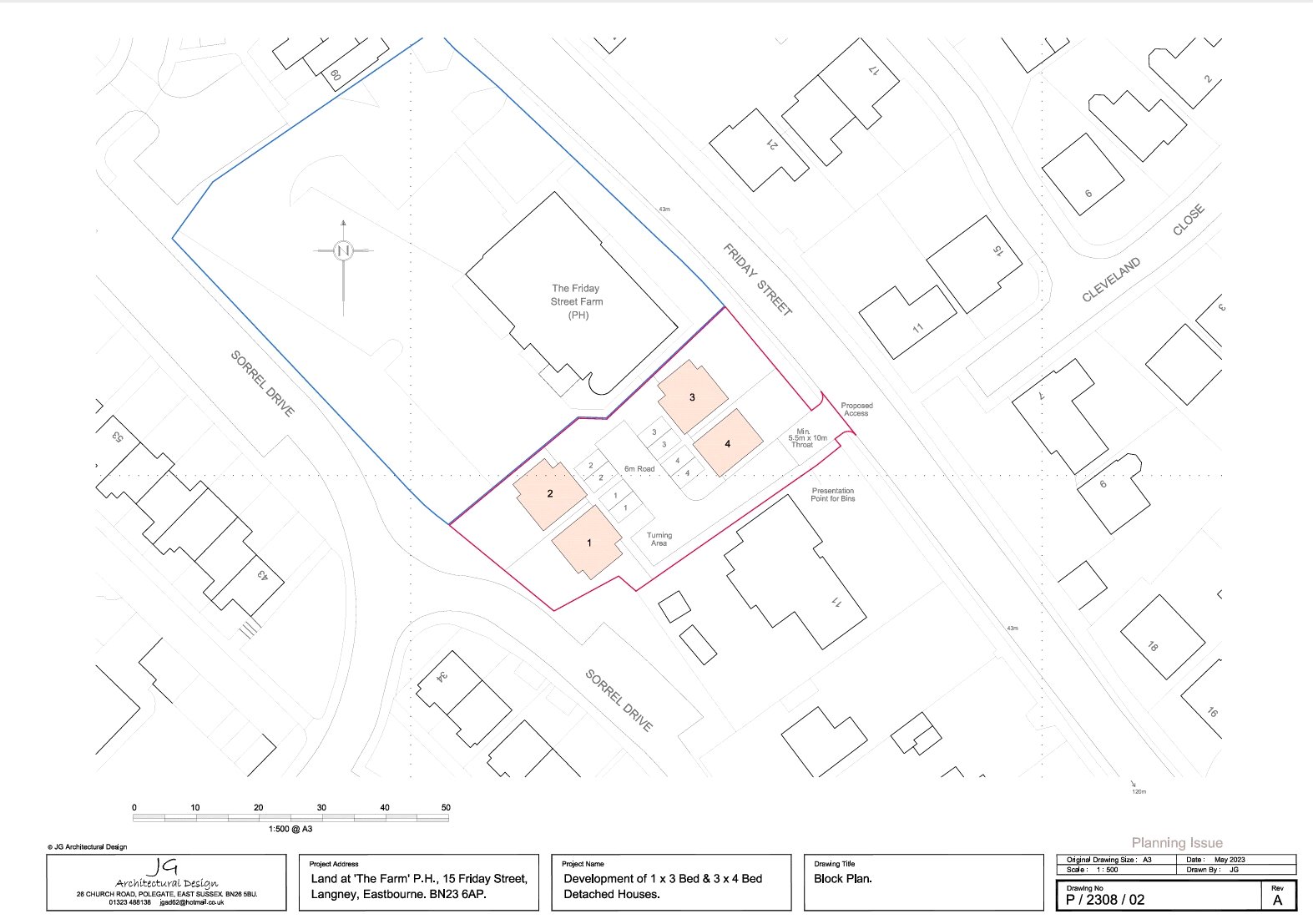
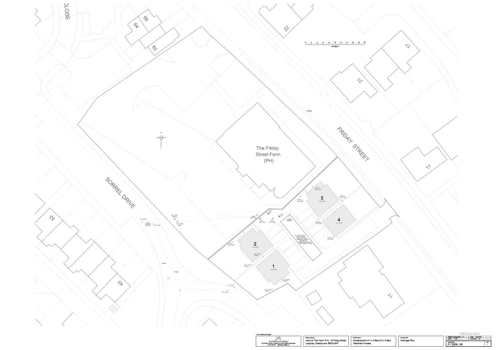
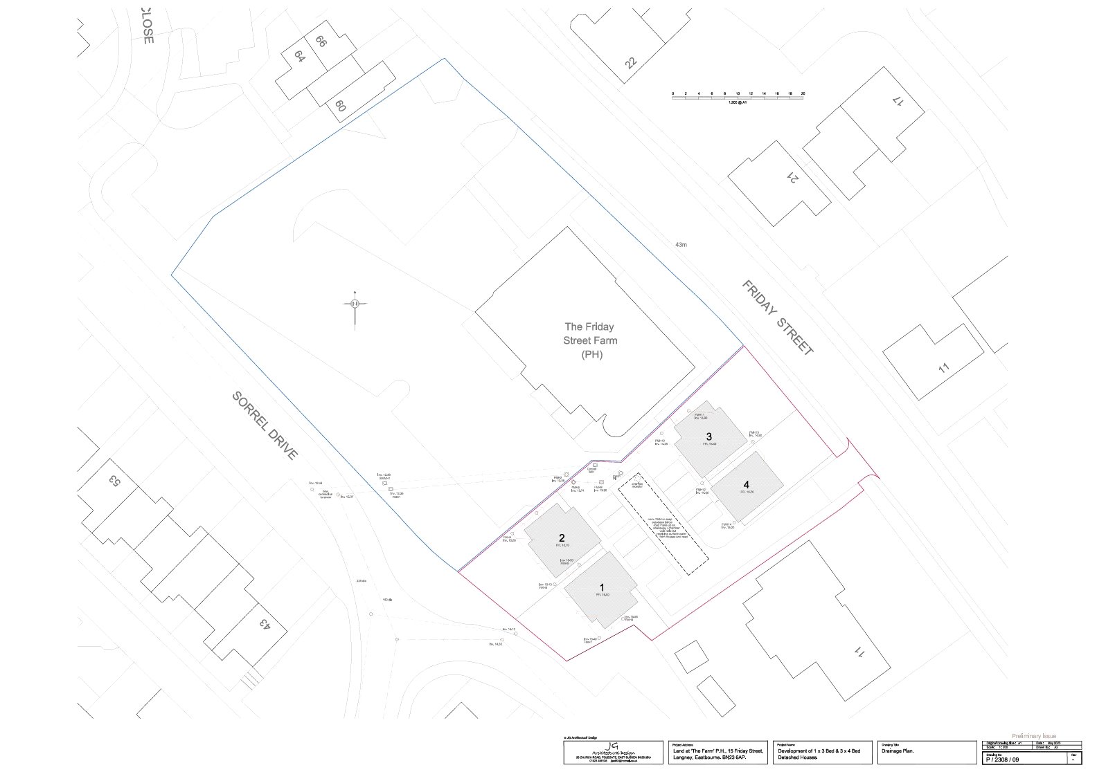
• This existing development site already comes with planning already granted for 4 detached new build houses

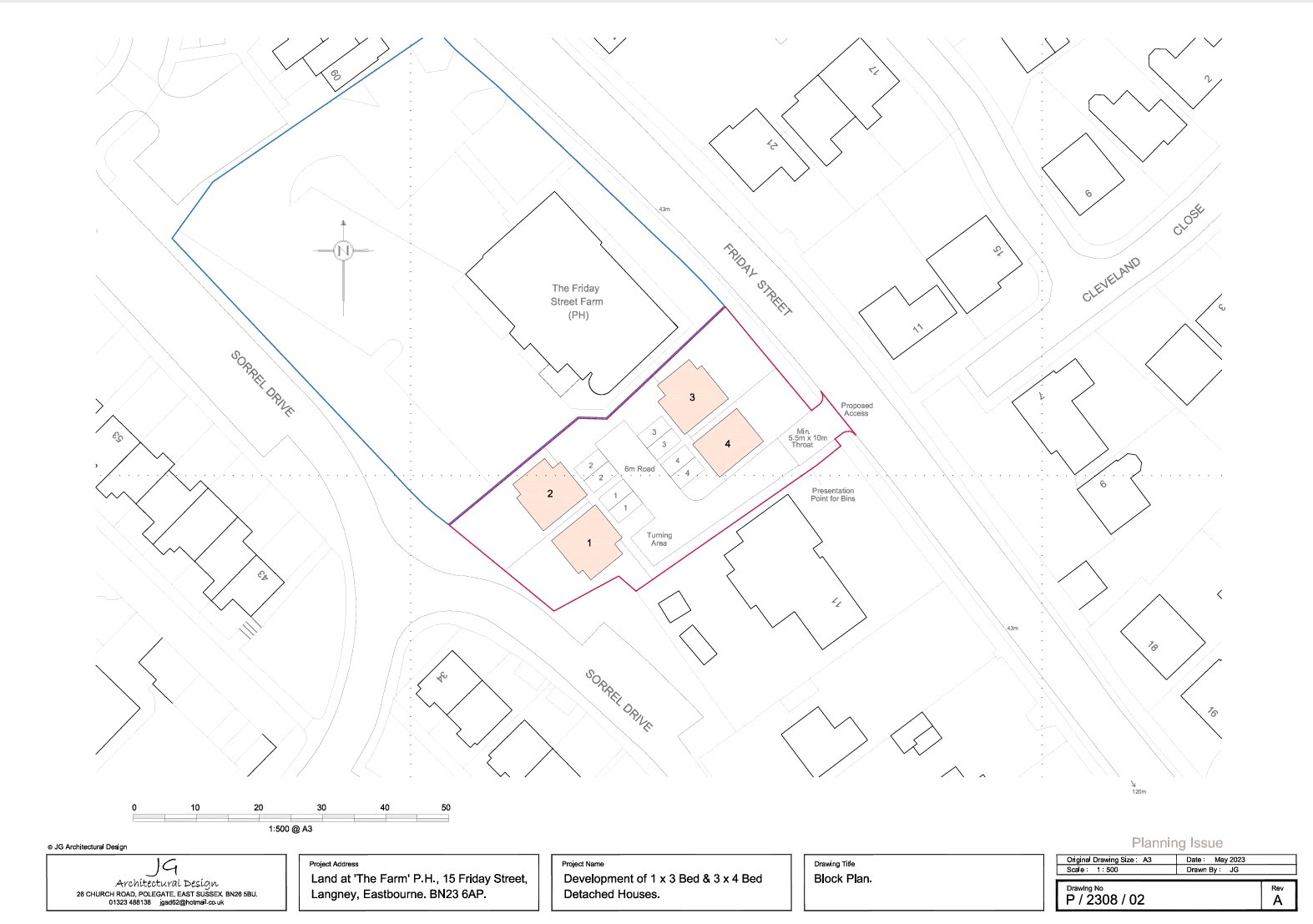
• Planning is presently granted for three 4 bedroom detached houses and for one 3 bedroom detached house

• Further potential to also apply for additional housing or alternative planning scheme, as this particular project apparently went through with no objections, thus this site could have an increased future GDV subject to planning

• Site location is near the excellent town facilities and main bus route

• The beautiful coast and the coastal walks are also within a healthy walk of this site

• Current planning for each plot has designs for a good-sized rear garden and parking for at least 2 vehicles out front

• Site is located off Friday Street Eastbourne near country walks and the shopping centre

• Mainline train station for London

DESCRIPTION: Builders looking for their next building project should urgently consider this prime small boutique development site, already benefitting with planning presently granted for 4 building plots, each plot being for a detached house.

Three of the detached plots for houses are to be 4 bedroom detached houses and the final planning permission is for a detached 3 bedroom house. All of which have good sized rear gardens and with private parking to be located directly in front of each plot design.

Further potential may well be possible to increase the sites units and design with adjusted planning, as this current planning in place had no objects or difficulty in being approved.

PLEASE CALL THE NEVILLE AND NEVILLE LAND AND PLANNING DEPARTMENT FOR GDV AND FURTHER DATA:

LOW CURRENT CIL CHARGE IS PRESENTLY TO BE: £34,436.54

LOCATION: This development site is perfect for a small to medium developer / boutique builder, being situated off Friday Street in Eastbourne and within easy walking distance of the local amenities, as well as being positioned near a main bus route, which in turn allows easy access to reach the main Eastbourne town facilities, including the mainline train station for London.

There are also numerous reputable teaching institutions located within the general locality, including Eastbourne College, Bede’s and of course a number of excellent state schools for all age groups.

Leisure facilities in the area include golf and sailing and many beautiful country walks all the way to the South Downs.

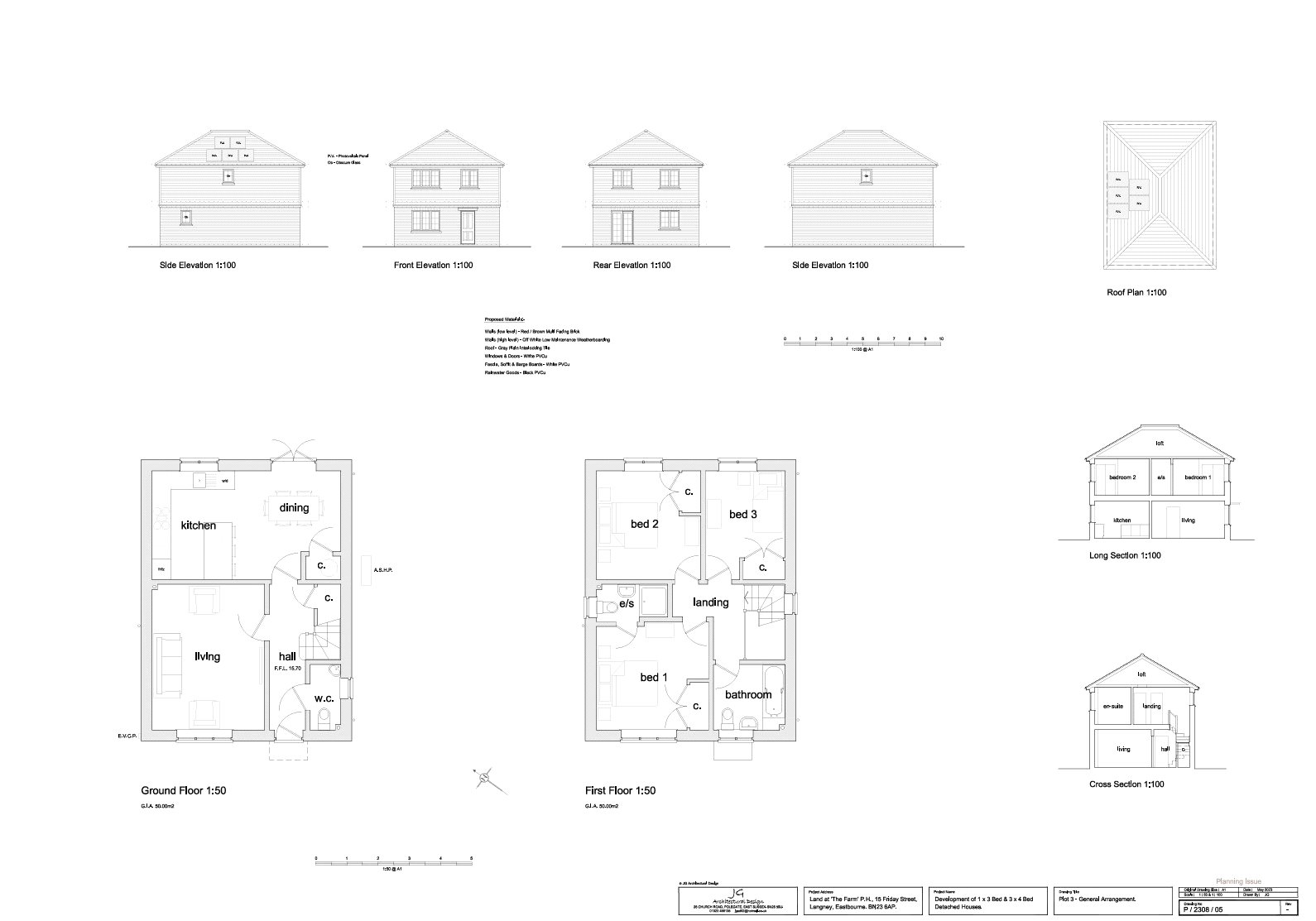
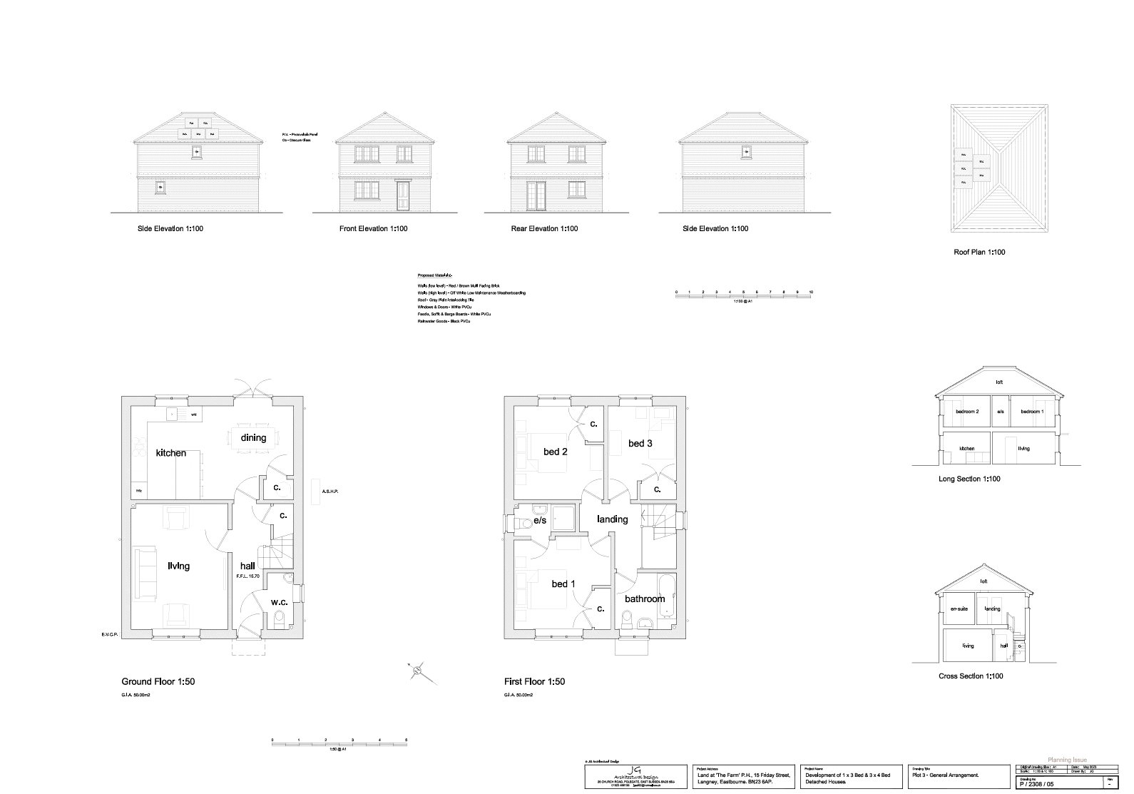
PLOT DESIGNS FOR THE THREE DETACHED 4 BEDROOM HOUSES

TOTAL SQUARE FOOTAGE FOR EACH OF THE ABOVE DETACHED 4 BEDROOM HOUSES IS UNDERSTOOD TO BE APPROXIMATELY= 1,329 square feet (123.54 square meters)

EXTERIORS: The upper half is to be weatherboard styled with the lower half elevation to be exposed brick.

Around the rear and one side of each property there are to be patio areas with a driveway also to the front of each plot to provide parking for at least two vehicles.

INTERIOR DESIGN FOR THE GROUND FLOOR: Each of the detached 4 bedroom designs will have an entrance hall, a downstairs cloakroom, a coats cupboard, a living room, a kitchen / breakfast room with an open plan dining room and a separate utility room.

INTERIOR DESIGN FOR THE FIRST FLOOR: Staircase leading off from the main reception rooms, a first-floor landing with airing cupboard off, a family bathroom, four bedrooms, with the main bedroom having an ensuite shower room.

TOTAL SQUARE FOOTAGE FOR THE DETACHED 3 BEDROOM HOUSE IS UNDERSTOOD TO BE APPROXIMATELY= 1,076 square feet (100 square meters)

PLOT DESIGN FOR THE 3 BEDROOM DETACHED HOUSE

EXTERIOR: To match the same styling as the other three 4 bedroom detached houses, with part weatherboard design and lower half exposed brick, as well as the same patio and driveway design.

INTERIOR GROUND FLOOR DESIGN FOR THE 3 BEDROOM DETACHED HOUSE: There will be a reception hall, a coats cupboard, a cloakroom, a living room, a kitchen / breakfast room with an adjoining open plan dining room.

INTERIOR DESIGN FOR FIRST FLOOR: Staircase leading to a first-floor landing which will have doors leading off to 3 bedrooms, a family bathroom, as well as bedroom one having an ensuite shower room.

POSSIBLE ESTIMATED CURRENT GDV = £ 2,025,200 at circa 400 per square foot resale, although this could vary depending on build quality, or change in planning design.

AGENTS NOTE: Please note that these details have been prepared as a general guide and do not form part of a contract. We have not carried out a detailed survey, nor tested the services, appliances and specific fittings. Room sizes are approximate and should not be relied upon. Any verbal statements or information given about this property, again, should not be relied on and should not form part of a contract or agreement to purchase.

Important Information

  • This is a Freehold property.

Property Ref: FAN240070

Share:

Similar Properties

Rotherview, Newick Lane

3 Bedroom Semi-Detached House | Asking Price £450,000

MAIN SPECIFICATIONS: PLOT 3 BEING PART OF A BESPOKE COTTAGE STYLE DEVELOPMENT IN A SEMI RURAL SETTING OF JUST 10 THREE B...

Rotherview, Newick Lane

3 Bedroom Terraced House | Asking Price £450,000

MAIN SPECIFICATIONS: PLOT 4 BEING PART OF A BESPOKE COTTAGE STYLE DEVELOPMENT IN A SEMI RURAL SETTING OF JUST 10 THREE B...

High Street, Fletching

3 Bedroom End of Terrace House | Guide Price £450,000

GUIDE PRICE: £425,000 - 450,000• Charming three-bedroom Grade II listed end-of-terrace home with 1,010 sq ft of accommod...

Fletching Street, Mayfield

3 Bedroom Semi-Detached House | Guide Price £460,000

GUIDE PRICE £460,000 PLEASE VIEW OUR VIRTUAL TOUR HERE OR ON OUR WEBSITE www.nevilleandneville.co.uk• A BEAUTIFULLY REFU...

The Woodman Arms, Angmering

4 Bedroom Detached House | Guide Price £460,000

GUIDE PRICE £460,000 PLUS VAT PLEASE VIEW OUR VIRTUAL HERE OR ON OUR WEBSITE www.nevilleandneville.co.uk• QUICK SALE AVA...

Rotherview, Newick Lane

3 Bedroom End of Terrace House | Asking Price £465,000

GUIDE PRICE £465,000MAIN SPECIFICATIONS: PLOT 10 BEING PART OF A BESPOKE COTTAGE STYLE DEVELOPMENT IN A SEMI RURAL SETTI...

Neville & Neville Estate Agents (Hailsham)

Cowbeech, Hailsham, East Sussex, BN27 4JL

01323 833 630

How much is your home worth?

Use our short form to request a valuation of your property.

Request a Valuation

Mortgage Calculator

Amount Borrowed: £
Total Amount Repayable: £
Total Monthly Payment: £
©2026 The Guild of Property Professionals. All rights reserved. Terms and Conditions | Privacy Policy | Cookie Policy | Complaints Policy | Members Login
The Guild of Property Professionals Trading Address: 121 Park Lane, London W1K 7AG. GPEA Limited. Registered in England & Wales.  Company No: 02819824.  Registered Office Address: 2 St. Stephen's Court, St. Stephen's Road, Bournemouth, Dorset, England, BH2 6LA.  VAT Registration No: 576 8795 61
Book a Property Valuation Update Cookies Preferences