Mutton Hall Hill, Heathfield

Guide Price
£425,000
SSTC
This property listing is now SSTC

3 Bedroom Semi-Detached House for sale in East Sussex

2 3 2

GUIDE PRICE: £425,000 - £450,000

• Three-bedroom semi- detached house approximately 2-year-old new build

• Located down a private brick paved driveway away from the main road

• Brick built garage

• Easy walking distance of the Heathfield town centre

• Private landscaped rear garden

• Reception hall

• Cloakroom

• Sitting room

• Open plan kitchen / dining room

• Landing

• Three double bedrooms

• Main bedroom one with ensuite shower room

• Family bathroom

• Side access

• Air source heat pump for today’s energy efficiency

• Double glazed windows

• NHBC builders guarantee remaining

• A select development of just two properties

• NO CHAIN – QUICK SALE AVAILABLE

DESCRIPTION: A very attractive new build 3 bedroomed semi-detached house with approximately 8 years remaining on its build guarantee, benefitting from a landscaped rear garden and a brick-built garage, as well as being set down a wonderful elegant grey brick paved lane away from the main high street, yet within easy walking distance of Heathfield Town Centre.

This modern build property built approximately 2 years ago in a charming cottage style by a very well-respected East Sussex developer, also benefits from an air source heat pump, double glazed windows and the latest energy efficiency insulation standards, all of which are designed to keep the running costs and energy consumption to a minimum.

The accommodation is light and spacious throughout and has been given a delightful cottage style design with its fittings, yet also encapsulating modern tastes.

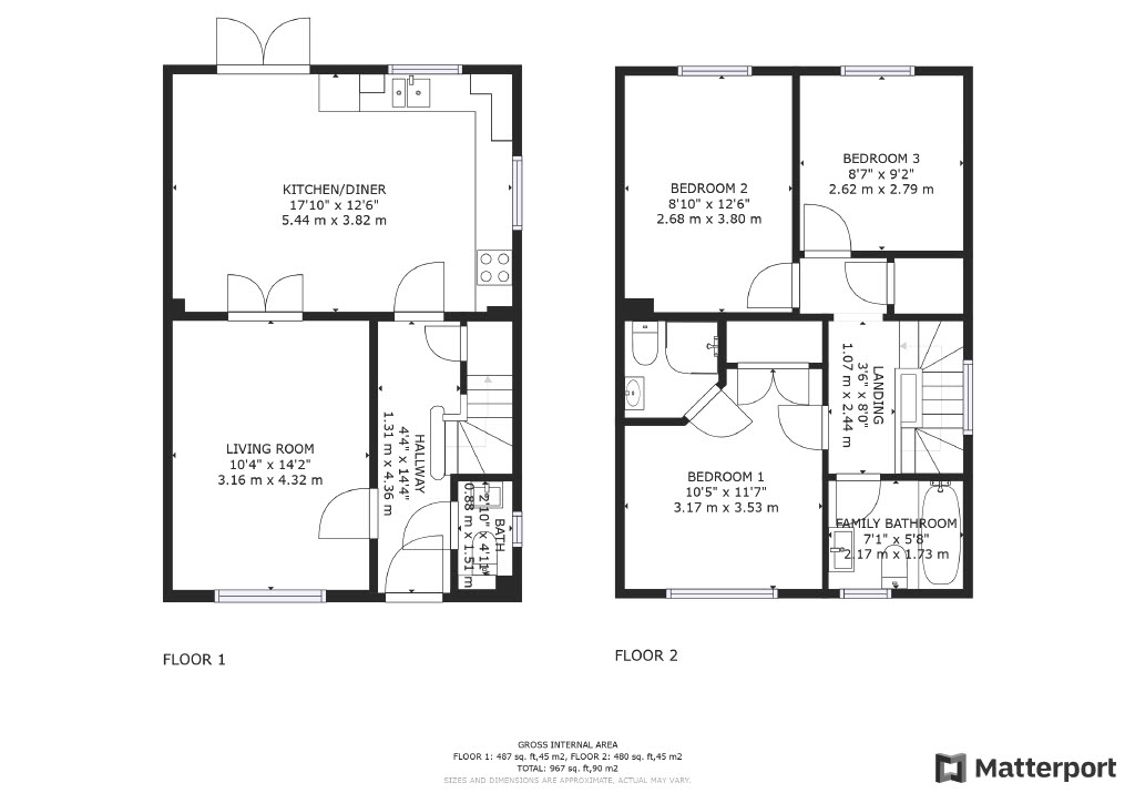
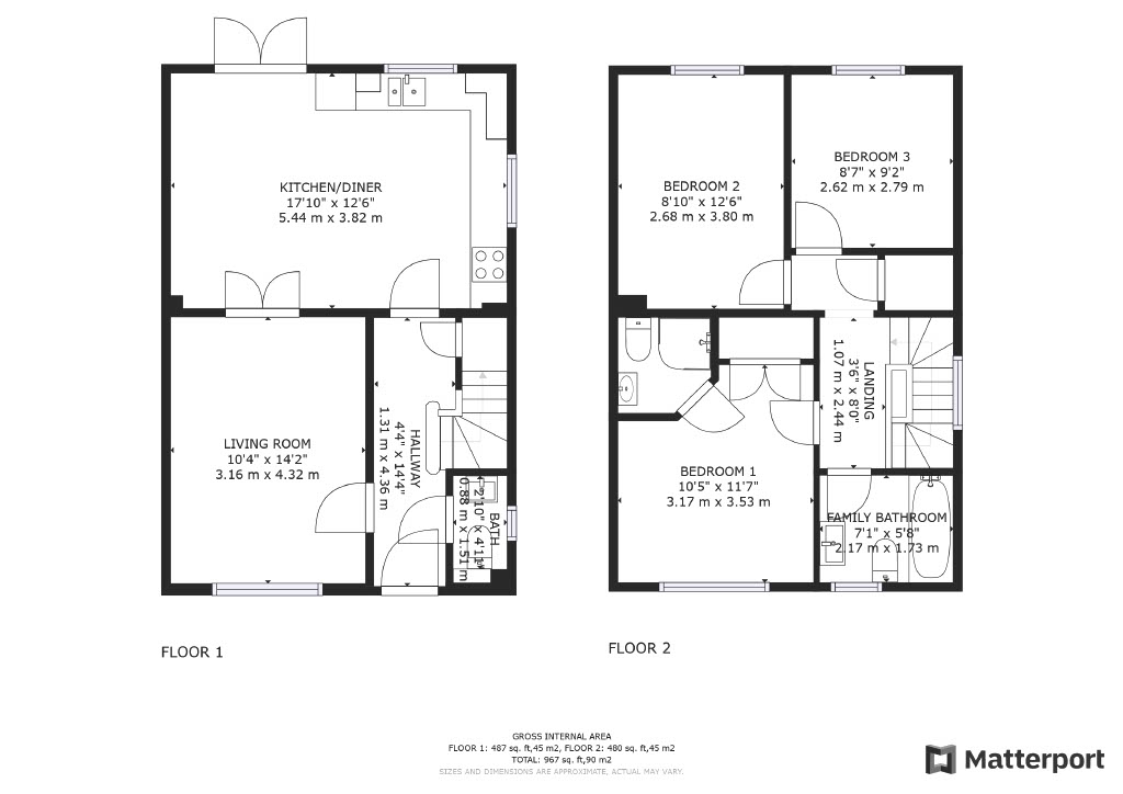
The accommodation comprises of a reception hall, a cloakroom, a sitting room, an open plan kitchen / dining room, a landing with impressive oak and glazed staircase, three double bedrooms, with bedroom one having an ensuite shower room. There is also a family bathroom, and a large loft for storage. Outside the property has a brick garage and a lovely rear landscaped garden.

The property also comes with a new NHBC guarantee and is one of only two properties on this select development.

LOCATION: Situated near the Heathfield Town Centre and within easy walking distance of all of its amenities yet positioned away from the main road at the end of a private elegant brick paved driveway used by only three properties.

The mainline stations of Buxted, Stonegate and Etchinghm are within convenient driving distance, making this property ideal for a London commuter.

Excellent leisure and shopping facilities are also nearby, as well as a wonderful choice of schools.

ACCOMMODATION: From the elegant grey brick paved driveway area, you are to approach the main front entrance which has an impressive character style substantial wood panelled effect door with a double-glazed upper section. Above is an attractive Victorian style over porch. The front door opens into the main reception hall.

MAIN RECEPTION HALL: (Measuring 15 feet x 4 feet 5 inches) and comprises of wood effect floors with underfloor heating, down lights, oak cottage style door leading to under stairs storage area, further doors leading off from the reception hall to the sitting room kitchen / dining room and the downstairs cloakroom. In addition, there is the feature oak and heavy glazed staircase leading off and up to the first-floor landing.

CLOAKROOM: Approached through an oak cottage style door and comprising of wood styled flooring with underfloor heating, W.C. with concealed cistern and chrome flush with display shelf over, wash basin with chrome tap and tiled splashback with drawers under, double glazed window.

SITTING ROOM: (Measuring 14 feet and 3 inches x 10 feet). Approached from the main reception hall through an oak cottage style door. This room can also be approached from the kitchen / dining room through a pair of double oak cottage style doors as well. Continuation of the oak effect floors with underfloor heating, down lights, double glazed leaded light windows with pleasant aspect to the front landscaped areas.

KITCHEN / DINING ROOM: (Measuring 18 feet x 13 feet max). An impressive double aspect room with the continuation of the wooden style flooring with underfloor heating. The quality kitchen area comprises of numerous shaker style cupboard and base units with marble effect worksurfaces over, integrated dishwasher, integrated fridge / freezer, fitted oven and grill, hob with brushed steel air purifier hood over, sink unit with tap, marble effect splashback, double glazed window with aspect to side, further double-glazed window with aspect over private rear garden.

OPEN PLAN DINING AREA: With the attractive continuation of the wood effect flooring with underfloor heating, downlights, double oak cottage style doors leading to the adjoining sitting room, further double-glazed doors opening to the rear landscaped garden.

FIRST FLOOR ACCOMMODATION: Feature oak and heavy glazed staircase with double glazed mezzanine window leading to the first-floor landing.

FIRST FLOOR LANDING: (Measuring 11 feet and 5 inches x 3 feet and 6 inches). Comprising of carpeted floors, downlights, oak and heavy glazed galleried area, hatch to loft space, door to airing cupboard, further doors leading off the landing to bedrooms 1 with ensuite, 2 and 3, as well as the family bathroom.

BEDROOM ONE WITH ENSUITE SHOWER ROOM: A double sized room (Measuring 11 feet and 8 inches x 10 feet and 4 inches). Comprising of carpeted floors, radiator, fitted double sized wardrobe cupboard with twin oak cottage style doors, double glazed windows with pleasant aspect over the front landscaped areas. Oak cottage style door leading to ensuite shower room.

ENSUITE SHOWER ROOM FOR BEDROOM ONE: Approached through an oak cottage style door, wood styled flooring, feature wall radiator and towel rail, W.C., corner shower with curved glazed front shoer doors and sides, chrome shower control system, tiled walls, wash basin with chrome tap, tiled splash back and storage under, extractor fan.

BEDROOM TWO: A double sized room (Measuring 12 feet and 5 inches x 8 feet and 8 inches), carpeted floors, fitted mirror wardrobes, radiator, down lights and double-glazed windows with aspect over the rear gardens.

BEDROOM THREE: A double sized room (Measuring 9 feet and 2 inches x 8 feet and 9 inches). With carpeted floor, fitted mirror wardrobes, radiator, down lights and double-glazed window with aspect over the rear landscaped garden.

FAMILY BATHROOM: Comprising of wood effect floors, feature radiator / heated towel rail, fitted bath with tiled surrounds. W.C., wash basin with chrome taps and storage under, double glazed window.

OUTSIDE: This new build property has the benefit of a brick-built garage and a private rear landscaped garden.

GARAGE: Of brick construction for a single vehicle.

REAR GARDEN: This enjoys a roughly southerly aspect and can be approached by a side entrance running to the far side of the property via an Indian paced stone pathway. The rear garden can also be approached from the dining room via the twin double glazed doors.

The rear garden comprises of a raised Indian stone paved sun terrace with metal decorative railings and with steps leading onto a lawned area.

AGENTS NOTE: Please note that these details have been prepared as a general guide and do not form part of a contract. We have not carried out a detailed survey, nor tested the services, appliances and specific fittings. Room sizes are approximate and should not be relied upon. Any verbal statements or information given about this property, again, should not be relied on and should not form part of a contract or agreement to purchase.

EPC: B

Council Tax Band: D

Property Ref: FAN240090

Share:

Similar Properties

Church Lane, Ninfield

Land | Guide Price £425,000

GUIDE PRICE £425,000LAND AND FARMS DEPARTMENTLOCAL OFFICE 01323 833630LONDON OFFICE 0203 0965353Circa 5.5 acres land wit...

North Street, Waldron

4 Bedroom Semi-Detached House | Asking Price £400,000

GUIDE PRICE: £400,000-£450,000MAIN SPECIFICATIONS: ALTHOUGH REQUIRING MODERNISATION AND REDECORATING THROUGHOUT, THIS SE...

Brewer Street, Lamberhurst

Land | Asking Price £400,000

GUIDE PRICE: £400,000MAIN SPECIFICATIONS: APPROXIMATELY 1.9 ACRES OF WHAT IS BELIEVED TO BE A BROWNFIELD SITE AT LAMBERH...

Ersham Road

4 Bedroom Detached House | Asking Price £427,950

MAIN SPECIFICATIONS: DETACHED MODERN 5 BEDROOMED FAMILY HOUSE. CAREFULLY UPGRADED TO INCLUDE AN IMPRESSIVE SHAKER STYLE...

Rotherview, Newick Lane

3 Bedroom Terraced House | Guide Price £429,995

** UP TO £2,000 PER MONTH TOWARDS YOUR MORTGAGE FOR AN ENTIRE YEAR! **MAIN SPECIFICATIONS: PLOT 8 BEING PART OF A BESPOK...

Rotherview, Newick Lane

3 Bedroom Semi-Detached House | Asking Price £450,000

MAIN SPECIFICATIONS: PLOT 3 BEING PART OF A BESPOKE COTTAGE STYLE DEVELOPMENT IN A SEMI RURAL SETTING OF JUST 10 THREE B...

Neville & Neville Estate Agents (Hailsham)

Cowbeech, Hailsham, East Sussex, BN27 4JL

01323 833 630

How much is your home worth?

Use our short form to request a valuation of your property.

Request a Valuation

Mortgage Calculator

Amount Borrowed: £
Total Amount Repayable: £
Total Monthly Payment: £
©2026 The Guild of Property Professionals. All rights reserved. Terms and Conditions | Privacy Policy | Cookie Policy | Complaints Policy | Members Login
The Guild of Property Professionals Trading Address: 121 Park Lane, London W1K 7AG. GPEA Limited. Registered in England & Wales.  Company No: 02819824.  Registered Office Address: 2 St. Stephen's Court, St. Stephen's Road, Bournemouth, Dorset, England, BH2 6LA.  VAT Registration No: 576 8795 61
Book a Property Valuation Update Cookies Preferences