Sayerland Lane, Polegate

Guide Price
£675,000

3 Bedroom Detached House for sale in East Sussex

2 3 1

GUIDE PRICE: £675,000 to £695,950

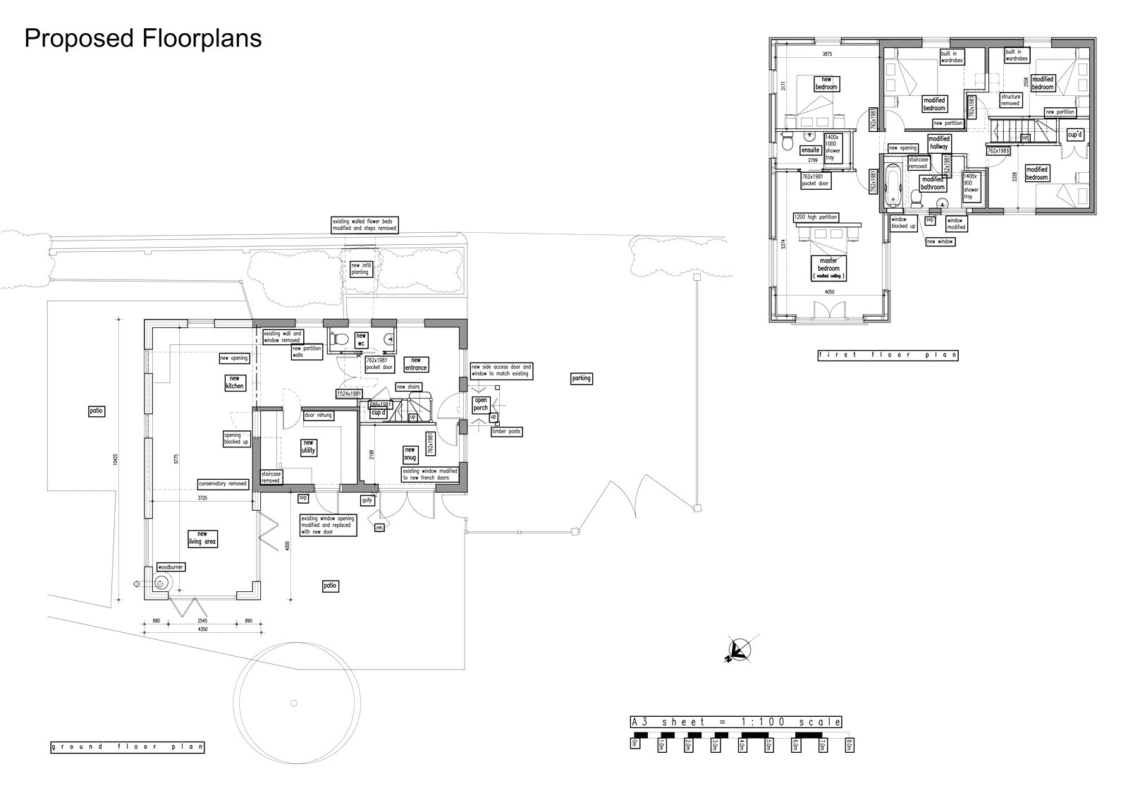
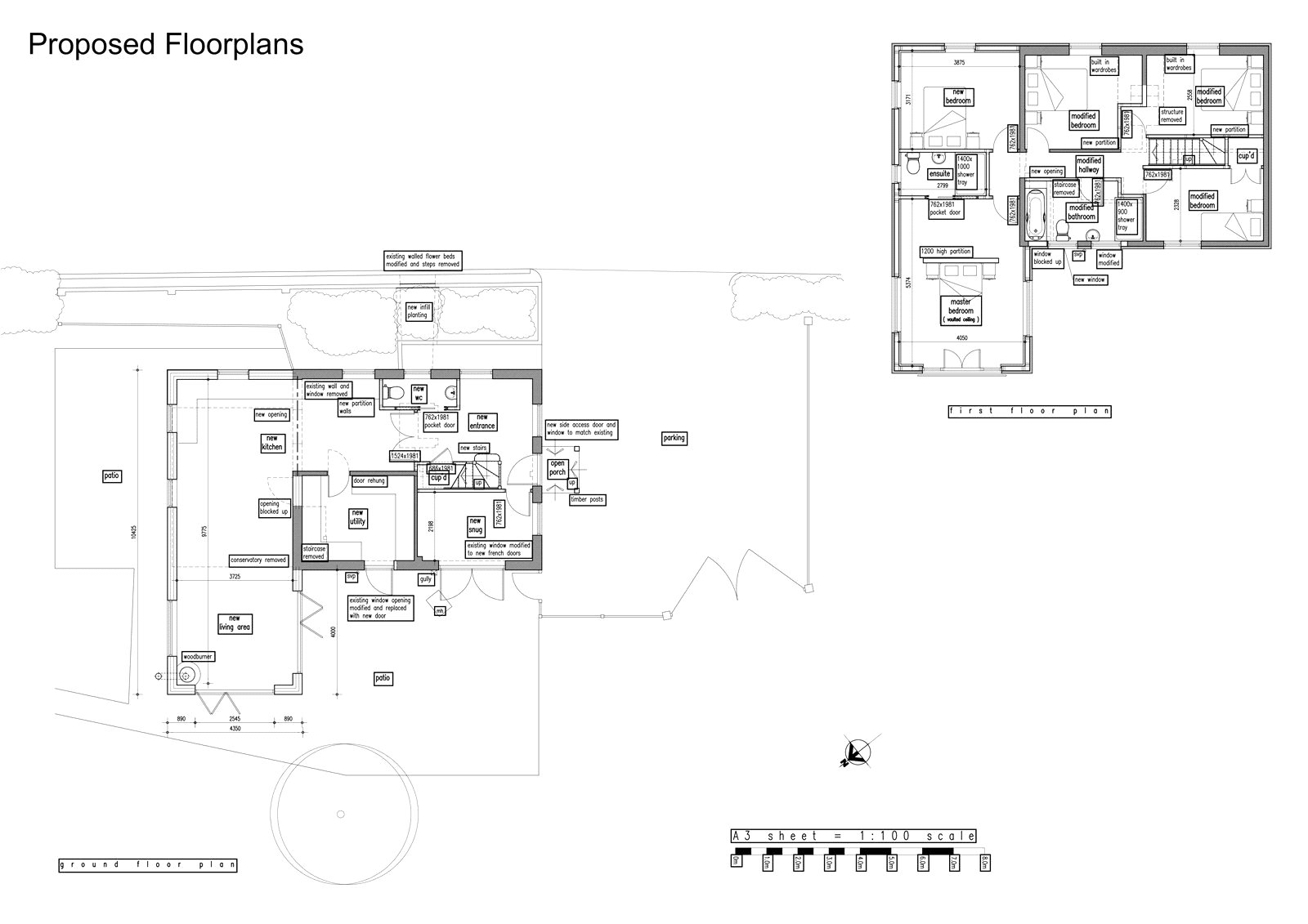
PLANNING PERMISSION GRANTED TO EXTEND THE EXISTING PROPERTY

• A desirably located smallholding property, currently with new planning permission recently agreed to allow for it to be enlarged from an existing detached three double bedroomed house, to now have permission to be enlarged into a 5 double bedroomed detached country residence.

• Set in circa 2.55 acres (TBV)

• Existing ideal equine use with a good stable complex and 2.55 acres (TBV) of grazing meadows, also within easy access of bridleways

• Views of the surrounding countryside

• Set off a little used country lane

• Currently occupying a quiet setting

• Previous use as a commercial cattery business, so there may be other future commercial uses possible subject to planning

• There may be possible potential for another building plot/s to be granted planning permission in the future on this site (subject to planning)

• Potential for an annex to also be granted permission subject to planning

• Easy access of mainline trainlines located at Polegate, as well as good road networks for Brighton, London and Eastbourne, making this property ideal for commuters

• Quick sale available and no onward chain

DESCRIPTION: An extremely rare chance to purchase a this semi rurally located cottage smallholding / equine property with 2.55 acres (tbv) which has also recently been granted exciting planning permission for the main house to be enlarged from a 3 bedroomed detached cottage into a 5 double bedroomed detached country residence.

The property is currently located off a quiet country lane and surrounded by farmland. There may also be possibilities for other building plots to be granted planning permission on this site in the future, due to its location and changing planning policies.

These types of properties with a variety of options and different types of uses rarely come available, especially where new planning has just been granted for the main house to be almost doubled in size.

There is also an existing mobile home that has been located and used for many years by the previous owners, which could be replaced subject to planning with an annex possibly.

Furthermore, the property with its circa 2.55 acres (TBV) of grazing paddocks also has an existing detached stable complex with a number of loose boxes and associated parts that could also be either embraced by equine enthusiasts or planning sought to convert into a home office, holiday let or annex (subject to planning).

Additionally, and also an exciting option, this property’s location and peaceful semi-rural setting, would be an ideal bespoke building plot for a new bungalow or house subject to planning.

One could even also explore reinstating a commercial cattery if required.

LOCATION: Situated off a little used and quiet country lane located between Polegate and Hailsham in site of the South Downs and within easy access of the road and rail networks if required, makes this property perfect for London buyers wishing to still commute, but also be in a very desirable semi-rural setting.

Polegate mainline train station is only approximately a five minute to 10 minute drive away. In addition, the road network to the Lewes to Eastbourne bypass, is also 5 minutes away, so even Brighton city commuters would find this property’s idyllic setting of interest, especially with the viable redevelopment of replacing the existing property with a new build bespoke property.

Hailsham, Eastbourne and Lewes towns are all within convenient driving distance and all provide excellent shopping and leisure facilities.

There are numerous golf courses in the area, with sailing on the coast also easily accessible and Eastbourne harbour for yachts to be stored.

Riding is perfect for this property’s setting with bridleways easily accessible.

Walking on the South Downs is also accessible nearby, as well as an abundance of cycling routes.

Depending upon educational needs, there are also many reputable teaching institutions to choose from, including Bede’s, Eastbourne College, Battle Abbey, Mayfield School for Girls and Brighton College to name but a few.

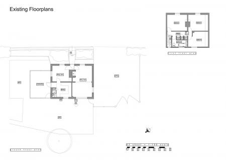
EXISTING ACCOMMODATION:

From the driveway there is a path leading to the property’s front door which is a panelled and double-glazed character styled door that opens into the front entrance hall.

FRONT ENTRANCE HALL: With two doorways leading off, one to a family room and the other to a sitting room with an open plan adjoining dining room.

SITTING ROOM: With a feature brick fireplace with a fitted wood burner and bressummer beam over, double glazed window with aspect to front, ceiling light, archway leading to the adjoining open plan dining room.

DINING ROOM: A double aspect room with a radiator ceiling light and a double-glazed window with aspect to the side garden and a further double-glazed window with a fabulous view over the property’s circa 2.55 acres (TBV) and beyond of the adjoining farmland.

FAMILY ROOM: Approached either from the main entrance hall or from the kitchen. This room is also double aspect with attractive original wooden floors radiator, double glazed window with aspect to front and further double-glazed window with aspect to side gardens and circa 2.55 acres (TBV) of grazing paddocks.

KITCHEN: Approached either from the family room, or from the conservatory, as well as the staircase from the first-floor accommodation. Comprising of a range of modern cupboard and base units with worksurfaces over fitted oven, fitted hob, hood over, fitted stainless steel sink unit with mixer tap, space for washing machine, space for fridge freezer, quarry tiled floors, double glazed window with aspect over the rear gardens and beyond of the property’s circa 2.55 acres (TBV) of grazing paddocks.

CONSERVATORY: Sun lounge with a wonderful triple aspect of the gardens and surrounding farmland including the property’s own circa 2.55 acres (TBV). All sides of the conservatory are double glazed with part half panelled lower sections, double glazed door to the rear gardens.

FIRST FLOOR ACCOMMODATION: Approached from the staircase leading off from the kitchen, to a first-floor landing.

FIRST FLOOR LANDING: With fitted storage / airing cupboards, radiator and doors leading off to bedrooms 1,2 and three, as well as to a family bathroom / shower room.

BEDROOM ONE: A double sized room with radiator and double-glazed window with aspect to front grounds and views of surrounding farmland.

BEDROOM TWO: A double sized room with fitted wardrobe cupboards, ceiling light and double-glazed window with aspect over the front grounds and beyond of the surrounding countryside.

BEDROOM THREE: A double sized room with fitted wardrobe cupboards, ceiling light and double-glazed window with the most stunning views over the property’s own circa 2.55 acres (TBV) of grazing land as well as the surrounding farmland.

FAMILY BATHROOM / SHOWER ROOM: Comprising of a fitted bath with panelled sides, WC, wash basin, tiled walls, shower section to bath, heated towel rail and double-glazed window with beautiful rural views over the property’s own circa 2.55 acres (TBV) and the surrounding farmland.

PLEASE SEE DRAWINGS FOR NEW THE PLANNING PERMISSON FOR THE PROPERTY TO BE EXTENDED INTO A 5 DOUBLE BEDROOMED DETACHED HOUSE:

The new accommodation possible with the recently granted planning permission would allow for the following:

NEW LARGE RECEPTION HALL: This will be a wonderful feature hall of a generous size

NEW CLOAKROOM: This will be set off the new reception hall

NEW LIVING ROOM: This will be located beyond the open plan kitchen / dining room

NEW FAMILY / SNUG ROOM: This will be accessed off the new intended large reception hall

NEW SEPARATE UTILITY ROOM: This will be accessed also off the new large reception hall

NEW LARGE OPEN PLAN KITCHEN / BREAKFAST ROOM / DINING ROOM: This will also be accessed off the new intended reception hall

NEW FIRST FLOOR ACCOMMODATION PLANING PERMISSION:

NEW LARGE LANDING: With doors to lead off to 5 double bedrooms and a family bathroom / shower room.

NEW MAIN BEDROOM ONE: Will have a dressing room area and an ensuite.

OUTSIDE: This rural located smallholding / equine property set off a quiet country lane has an excellent amount of existing and previous uses to benefit from, with stable complex, as well as an old commercial cattery base and area still viable subject to planning for reinstatement and enhancement.

DRIVEWAY: This provides parking for a number of vehicles, as well as gated access for tractors and horse boxes etc.

FRONT GARDEN: Arranged as lawn with access to front.

SIDE AND REAR GARDENS: These are extensive in size and are lawns with shrubs and specimen trees with an area remaining of the cattery business bases, as well as an outdoor summerhouse / storage building.

FURTHER SIDE GARDEN WITH CURRENT STATIC MOBILE HOME: The static mobile home has been situated and used by the current family for many years and was also apparently at sometimes rented. This being the case, it is viable subject to planning according to our in-house planners for planning permission to be possible granted to have an annex built in its place if certain criteria can be met and confirmed.

DETACHED STABLE COMPLEX: There is an existing and also currently used good sized stable complex with a number of loose boxes, tack room / hay / feed barn incorporated, making this property ideal for an equine enthusiast, especially with all of the excellent accessible bridleways nearby.

The stable could also be converted subject to planning into other uses, such as a home office and or even a holiday let / annex. (subject to planning).

GRAZING PADDOCKS: These are fairly level and are sectioned into grazing meadows and currently are considered secure for equine use.

AGENTS NOTE: Please note that these details have been prepared as a general guide and do not form part of a contract. We have not carried out a detailed survey, nor tested the services, appliances and specific fittings. Room sizes are approximate and should not be relied upon. Any verbal statements or information given about this property, again, should not be relied on and should not form part of a contract or agreement to purchase.

EPC: E

Council Tax Band: D

Important Information

  • This is a Freehold property.
  • This Council Tax band for this property is: D

Property Ref: FAN250099

Share:

Similar Properties

Coldharbour Road, Upper Dicker

4 Bedroom Detached House | Guide Price £675,000

GUIDE PRICE £675,000 TO £700,000LAST HOUSE REMAINING ON THIS PRESTIGIOUS SMALL DEVELOPMENT• AN ULTRA ENERGY EFFICIENT DE...

Stunts Green, Herstmonceux

4 Bedroom Detached House | Guide Price £675,000

GUIDE PRICE £675,000PLEASE VIEW OUR VIRTUAL TOUR HERE OR ON OUR WEBSITE NEVILLE AND NEVILLE• AN EXTENSIVELY ENHANCED & T...

Mark Cross, Crowborough

3 Bedroom Detached House | Guide Price £675,000

GUIDE PRICE £675,000• HOUSE WITH POTENTIAL SET IN A LUXURY CIRCA 0.75 OF AN ACRE WITH SCOPE FOR RENOVATION & EXTENDING O...

Millwards Cottages, Lewes Road

4 Bedroom Semi-Detached House | Guide Price £695,950

GUIDE PRICE £695,950• A 3 to 4 bedroom semi-detached equestrian property set in just under 3.5 acres in all• Main house...

Amberstone, Hailsham

5 Bedroom Detached House | Offers in excess of £699,500

PLOT 2 OFFERS IN EXCESS OF: £699,500• Zoned underfloor heating on all three floors• PLEASE NOTE: Both properties now hav...

Station Road, Berwick

5 Bedroom Detached House | Guide Price £699,950

GUIDE PRICE: £699,950• Detached 4 to 5 bedroomed 2,442 square foot modern village residence • Price is reduced for a LIM...

Neville & Neville Estate Agents (Hailsham)

Cowbeech, Hailsham, East Sussex, BN27 4JL

01323 833 630

How much is your home worth?

Use our short form to request a valuation of your property.

Request a Valuation

Mortgage Calculator

Amount Borrowed: £
Total Amount Repayable: £
Total Monthly Payment: £
©2026 The Guild of Property Professionals. All rights reserved. Terms and Conditions | Privacy Policy | Cookie Policy | Complaints Policy | Members Login
The Guild of Property Professionals Trading Address: 121 Park Lane, London W1K 7AG. GPEA Limited. Registered in England & Wales.  Company No: 02819824.  Registered Office Address: 2 St. Stephen's Court, St. Stephen's Road, Bournemouth, Dorset, England, BH2 6LA.  VAT Registration No: 576 8795 61
Book a Property Valuation Update Cookies Preferences