Kilnwood Lane, South Chailey

Guide Price
£539,950
SSTC
This property listing is now SSTC

4 Bedroom Detached House for sale in East Sussex

1 4 2

PLOT 2: GUIDE PRICE: £539,950 - £549,950

• New build detached 4 bedroom house just being completed

• Generous internal accommodation extends to 1, 454 square feet (135.26 square meters)

• South facing gardens

• Located in a quiet location away from main roads

• Being just 1 of 2 bespoke detached luxury new builds with 10 year build guarantees

• Excellent modern eco credentials incorporated to include air source heat pumps, underfloor heating to the lower floors and traditional heating to the first floors

• Electric car charging point

• Private allocated parking

• Entrance hall

• Cloakroom

• Utility room

• Living room

• Open plan kitchen / breakfast room / dining room complimented by rear bi folding doors with views over the rear south facing garden

• First floor landing

• Four double bedrooms

• Main bedroom with ensuite shower room

• Family bathroom

• Double glazed windows throughout

• Located in South Chailey between Lewes and Haywards Heath, both with mainline train stations for London

• Ready for occupation very soon

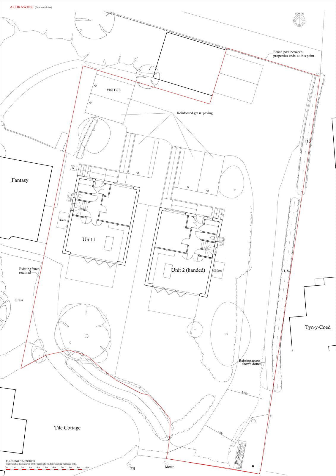
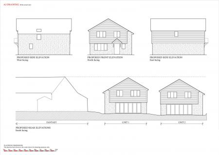
DESCRIPTION: Plot 1 on Kilnwood Lane, South Chailey, is a bespoke new build detached house with 4 double bedrooms and a south facing rear garden, private parking for two cars, as well as coming with a brand new 10 year build guarantee and being just one of two new builds located off this quiet lane away from main roads.

This very attractive and traditionally built property has luxury internal accommodation that extends to 1, 454 square feet (135.26 square meters) with the accommodation including an entrance hall, a cloakroom, a utility room, a fabulous open plan kitchen / breakfast room / dining room, as well as a separate living room reception room.

To the first floor there is a landing, four double bedrooms, one of the bedrooms has an ensuite and a further additional family bathroom that serves bedrooms three and four.

Outside there are generous sized rear south facing gardens with sun terraces.

LOCATION: Situated down Kilnwood Lane, South Chailey away from busy main roads and benefitting from south facing garden. Chailey village has a primary school, pub restraunts, garage with shop and a main bus route leading to either Lewes or Haywards Heath towns, both with mainline train stations.

There south downs are only a short drive away, as are the comprehensive shopping and leisured facilities also located in both Lewes and Haywards Heath.

Schooling in the area is well catered for, with a number of state schools and excellent private education facilities.

ACCOMMODATION:

ENTRANCE HALL: With under floor heating.

CLOAKROOM: Comprising of a W/C, a wash basin, underfloor heating, double glazed window with aspect outside.

UTILITY ROOM: Comprising of underfloor heating, modern cupboard and base units with work surfaces over, spaces for appliances double glazed window with aspect to front.

LIVING ROOM: A generous sized reception room with underfloor heating and double glazed window with aspect to front garden.

OPEN PLAN LUXURY KITCHEN / BREAKFAST ROOM / DINING ROOM: Comprising of underfloor heating, an extensive range of luxury kitchen cupboard and base units with work surfaces over, sink unit, large central breakfast bar / central island with seating area. Open plan dining area with underfloor heating, as well as feature double glazed bi folding doors with aspect over the rear garden.

FIRST FLOOR ACCOMMODATION: Approached by stairs from the main entrance hall that lead to the first-floor landing with a door to the airing cupboard. Further doors leading off to the double bedrooms, 1,2,3 and 4, as well as the luxury family bathroom.

BEDROOM ONE WITH ENSUITE SHOWER ROOM: Comprising of a double bedroom, with radiators, double glazed windows, door to ensuite shower room.

ENSUITE LUXURY SHOWER ROOM: Comprising of a shower, W/C, wash basin, and double glazed window.

BEDROOM TWO: Comprising of a radiator, and double glazed window.

BEDROOM THREE: A double sized bedroom with a radiator, and double glazed window with a view.

BEDROOM FOUR: A double sized room with a radiator, and double glazed window with a view.

FAMILY BATHROOM / SHOWER ROOM: Comprising of a bath, shower, W/C, wash basin, and towel rail.

OUTSIDE: The property benefits from rear south facing gardens, with rear sun terraces.

PARKING: There are two car parking spaces for this new build property.

AGENTS NOTE: Please note that these details have been prepared as a general guide and do not form part of a contract. We have not carried out a detailed survey, nor tested the services, appliances and specific fittings. Room sizes are approximate and should not be relied upon. Any verbal statements or information given about this property, again, should not be relied on and should not form part of a contract or agreement to purchase.

Important Information

  • This is a Freehold property.

Property Ref: FAN250087

Share:

Similar Properties

Kilnwood Lane, South Chailey

4 Bedroom Detached House | Guide Price £539,950

PLOT 1: GUIDE PRICE: £539,950 - £549,950• New build detached 4 bedroom house just being completed • Generous internal ac...

Punnetts Town, Heathfield

3 Bedroom Semi-Detached House | Guide Price £529,950

GUIDE PRICE: £529,950 - 545,000• Charming semi-detached period home in the heart of Punnetts Town, moments from Heathfie...

Russet Grove, Horam

5 Bedroom Detached House | Guide Price £500,000

GUIDE PRICE £500,000 - £550,000• Detached 5 bedroom modern house• Stunning open-plan kitchen/dining room with breakfast...

Three Cups Corner, Three Cups

3 Bedroom Semi-Detached House | Guide Price £539,999

GUIDE PRICE: £539,999 to £550,000• Idyllic village setting within the High Weald Area of Outstanding Natural Beauty• Sty...

Hawthorn Way, Hellingly

5 Bedroom Detached House | Guide Price £540,000

GUIDE PRICE: £540,000 - 560,000• Beautifully presented five-bedroom detached family home in a peaceful semi-rural settin...

Deanland Road, Golden Cross

4 Bedroom Semi-Detached House | Guide Price £540,000

PLOT 2 GUIDE PRICE: £540,000• One of six bespoke new builds on a small semi-rural development site• Available now for vi...

Neville & Neville Estate Agents (Hailsham)

Cowbeech, Hailsham, East Sussex, BN27 4JL

01323 833 630

How much is your home worth?

Use our short form to request a valuation of your property.

Request a Valuation

Mortgage Calculator

Amount Borrowed: £
Total Amount Repayable: £
Total Monthly Payment: £
©2026 The Guild of Property Professionals. All rights reserved. Terms and Conditions | Privacy Policy | Cookie Policy | Complaints Policy | Members Login
The Guild of Property Professionals Trading Address: 121 Park Lane, London W1K 7AG. GPEA Limited. Registered in England & Wales.  Company No: 02819824.  Registered Office Address: 2 St. Stephen's Court, St. Stephen's Road, Bournemouth, Dorset, England, BH2 6LA.  VAT Registration No: 576 8795 61
Book a Property Valuation Update Cookies Preferences