Coldharbour Road, Upper Dicker

Guide Price
£650,000
SSTC
This property listing is now SSTC

4 Bedroom Detached House for sale in East Sussex

2 4 2

GUIDE PRICE £650,000 TO £675,000

• AN ULTRA-ENERGY EFFICIENT DETACHED 4 DOUBLE BEDROOM NEW BUILD (NEARING COMPLETION) COTTAGE STYLE FAMILY HOME FORMING PART OF A SELECT VILLAGE DEVELOPMENT OF JUST 3 PROPERTIES

• DESIGNED WITH SUSTAINABILITY AS A KEY FEATURE, WITH THE INCORPORATION OF AIR SOURCE HEAT PUMP, EXTERIOR ELECTRONIC CAR CHARGING POINT, UNDERFLOOR HEATING TO BOTH THE GROUND AND FIRST FLOORS AND SCANDINAVIAN TRIED AND TESTED EXCELLENT HIGH SPECIFICATION INSULATION THROUGHOUT THE INTERIOR AND EXTERIOR OF THE PROPERTY, ALSO KNOWN AS THE ICF METHODOLOGY

• SOUTH FACING LANDSCAPED REAR GARDENS

• VIEWS OF THE SOUTH DOWNS NATIONAL PARK

• EXPECTED “A” RATED ENERGY EFFICIENCY PERFORMANCE CERTIFICATION ON COMPLETION

• EXISTING ACCOMMODATION CURRENTLY EXTENDING OVER THE TWO EXISTING FLOORS OF APPROXIMATELY 143 SQUARE METERS (1,539 SQUARE FEET). HOWEVER, WITH A POSSIBILITY (SUBJECT TO PLANNING) OF EVEN CONVERTING THE MAJORITY OF THE LARGE LOFT AREA INTO A WHOLE SECOND FLOOR LEVEL OF FURTHER ACCOMMODATION IN THE FUTURE IF REQUIRED.

• LARGE RECEPTION HALL

• DOWNSTAIRS CLOAKROOM

• A SNUG ROOM / SITTING ROOM

• A SEPARATE UTILITY ROOM / LAUNDRY ROOM

• A LUXURIOUS OPEN PLAN KITCHEN / BREAKFAST ROOM WITH OPEN PLAN ADJOINING DINING ROOM AND FURTHER OPEN PLAN ADJOINING LOUNGE

• LARGE FIRST FLOOR LANDING

• PRIVATE PARKING DIRECTLY OPPOSITE TO HOUSE WHICH COULD (SUBJECT TO PLANNING) HAVE A TWO BAY CAR PORT BUILT.

• EASY WALKING DISTANCE OF LOCAL VILLAGE SHOP & LOCAL VILLAGE PUB & RESTAURANT

• SHORT DRIVE TO BERWICK TRAIN STATION AND WITHIN ONLY 1 HR & 20 MINUTES APPROXIMATELY OF LONDON

• PERFECTLY LOCATED FOR LONDON COMMUTERS

LOCATION: These three (nearing completion) newly built 4 double bedroomed detached character styled ultra-energy efficient homes that form part of this small and select cottage styled village development are situated in Upper Dicker, which is a beautiful picturesque village located in the county of East Sussex and within site of the South Downs National Park. Furthermore, these wonderful generous sized character styled properties are within only a short walk of the charming village shop and café, in addition to a welcoming 17th-century public house. There is even a trusted village dentist.

The village of Upper Dicker is home to the renowned Michelham Priory school and also the highly regarded co-educational independent senior school, Bede's.

In neighbouring Hailsham (under four miles away), you’ll enjoy excellent day-to-day facilities, including three supermarkets, a leisure centre and a cinema.

Close also to the village is Arlington Reservoir, a local nature reserve – bursting with wildlife, it’s the perfect place for a family to walk or even enjoy a spot of trout fishing.

Berwick Station is only 2.5 miles away with a direct service to Eastbourne and Brighton. The Oaks development is within 500m of a bus stop with routes to Berwick station and Eastbourne. The journey time to London Bridge or London Victoria is approximately one hour and 20 minutes, making this property and the other two, perfect for London commuters.

DESCRIPTION: Each of these three-individual looking detached 4 double bedroom character style homes, all of which form part of this select and highly desirable small village development, A unique selling point of these impressive and generous sized village homes are their excellent incorporated design benefits, which includes the tried and tested and desirable built in sustainability designs that are already used within the Scandinavian construction industry, using the methodology known as (ICF), which cleverly utilizes modern and impressive insulation techniques.

In addition, each house has their own air source heat pump, as well as underfloor heating to both the ground and first floors, as well as highly effective and attractive double-glazed windows being fitted throughout. Also, each of these three properties has an exterior electric car charging point, which when all of the above energy efficiency attributes are combined, will apparently result in all of these attractive and spacious cottages styled village homes being given an incredible “A” rated energy efficiency certification when completed.

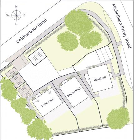
This particular property known as the Snowdrop (Plot 2) also has two private car parking spaces directly opposite the house, which could if required later have a two bay carport built in its place (subject to planning).

The accommodation for all three of these very attractive cottage style village homes is extremely generous. The Snowdrop (Plot 2) accommodation includes 4 double bedrooms, an ensuite shower room also to bedroom one, a large reception hall, a downstairs cloakroom, a laundry room / separate utility room, a large and desirable open plan luxury kitchen breakfast room with an adjoining open plan dining room and further adjoining lounge, all of which overlook the south facing landscaped gardens. There is also a separate snug room / sitting room, a generous sized first floor landing, a luxurious family bathroom / shower room, as well as the future potential to create a whole second floor accommodation level in the extensive sized loft area (subject to planning)

In our opinion these properties at their current values offer amazing value for the amount of existing accommodation they offer, which for this particular home is approximately 144 square meters (1,539square feet).

PLEASE NOTE: The huge loft area subject to planning could create a whole new floor of accommodation quite easily if required in the future.

ACCOMMODATION FOR PLOT 2 THE SNOWDROP: From the private twin parking area next to the house (also with an option to build a car port if required later), you are able to easily walk within a very short distance to this property’s attractive cottage style front entrance storm porch, which comprises of wooden beamed pillars and a pitched tiled roof. From here you are met by a modern and substantial character styled panelled door that opens into this property’s generous sized main reception hall.

MAIN RECEPTION HALL: Comprising of attractive engineered light-coloured wooden floors with underfloor heating, with doors leading off to a downstairs cloakroom, a snug / sitting room, a utility / laundry room, the kitchen and open plan dining room and living rooms, in addition to the main staircase leading to the first-floor accommodation.

CLOAKROOM: Approached from the main reception hall and comprising of a low-level W.C., with concealed cistern, a feature wash basin with mixer tap and vanity cupboard, underfloor heating, double glazed window with aspect to front.

SNUG / SITTING ROOM: A naturally bright and well-proportioned room comprising of engineered wooden floors with underfloor heating, as well as a large double-glazed window with a delightful aspect over the front grounds.

LAUNDRY ROOM / UTILITY ROOM: With range of work units, spaces for appliances, including washing machine and dryer, worktops over, engineered wooden floors with underfloor heating.

KITCHEN / BREAKFAST ROOM WITH LARGE OPEN PLAN LIVING AREA TO INCLUDE AN OPEN PLAN DINING ROOM & A FURTHER ADJOINING LIVING ROOM: A naturally bright room with large twin double glazed windows and also double-glazed French doors opening out onto the rear southerly facing gardens. The luxuriously fitted kitchen comprises of an extensive range of new modern Shaker style units with stone worktops, in addition to a matching central island also with stone top for the breakfast bar area and preparation area. The sink with mixer tap is also set into the feature central kitchen island. The further main range of kitchen units have integrated oven and microwave, a ceramic induction hob, integrated fridge and freezer, as well as an integrated dishwasher. There is a continuation of the attractive engineered wooden floors with underfloor heating that also extend to the adjoining open plan dining room and living room.

FIRST FLOOR ACCOMMODATION: From the main reception hall there is a staircase which leads to the first-floor landing, which is also a well-proportioned area that has a double-glazed window with a pleasant aspect over the front grounds. The landing is to be carpeted, but also has the benefit of underfloor heating. Doors lead off from the first-floor landing to four double bedrooms, as well as to a luxury family bathroom / shower room.

PLEASE ALSO NOTE: This property has a vast loft area that could easily lend itself for conversion into a second-floor accommodation area if required at a future stage (subject to planning).

BEDROOM ONE MAIN SUITE WITH ENSUITE SHOWER ROOM: Comprising of a double sized room with carpeted floors and underfloor heating, with the added benefit of a double-glazed window that currently enjoys fabulous southerly views all the way to the South Downs. Door to ensuite shower room.

ENSUITE SHOWER ROOM TO MAIN BEDROOM ONE: Comprising of a W.C, a feature wash basin with chrome mixer tap, vanity cupboard, underfloor heating, large double sized heavy glazed fronted shower with chrome feature shower head and tiled walls, double glazed window.

BEDROOM TWO: A double sized room with a carpeted floor, underfloor heating, downlighting, double glazed window with a pleasant aspect over the front grounds.

BEDROOM THREE: A double sized room with carpeted floors and underfloor heating, downlighting, double glazed window with aspect over the rear gardens and currently beyond all the way to the South Downs National Park.

BEDROOM FOUR: A double sized room with carpeted floors and underfloor heating, downlighting, double glazed window with aspect over the front grounds.

OUTSIDE: Plot 2 known as the Snowdrop, has the benefit of a double sized twin private parking area located beyond and in front of the property, where you could also possibly at a later stage create a modern heritage style carport (subject to planning).

REAR SOUTHERLY GARDEN: Which can be approached from the French doors leading out from the rear living room, as well as from outside by going around the exterior side of the house. This will be landscaped near the end of the construction stage. The rear garden enjoys a roughly southerly aspect and currently has beautiful views of the South Downs National Park.

FRONT GARDEN: There is also some intended landscaped garden for the front. There is also currently intended to be a large area of communal grounds near the front boundary of the development.

Important Information

  • This is a Freehold property.

Property Ref: FAN240004

Share:

Similar Properties

Dittons Road, Polegate

4 Bedroom Detached House | Guide Price £650,000

GUIDE PRICE: £650,000• Beautifully enhanced and extended substantial sized detached 5 double bedroomed chalet property •...

Tilley Lane, Boreham Street

Land | Asking Price £650,000

MAIN SPECIFICATIONS: LARGE OLD REDUNDANT FARM BUILDINGS OF APPROXIMATELY 6500 SQUARE FEET WITH 14.77 ACRES OF PADDOCKS A...

Wartling Road, Wartling

4 Bedroom Semi-Detached House | Guide Price £650,000

GUIDE PRICE: £650,000 - £675,000PLEASE VIEW OUR 360 VIRTUAL TOUR ON OUR NEVILLE&NEVILLE WEBSITE• An attractive extensive...

Dittons Road, Polegate

5 Bedroom Detached Bungalow | Asking Price £659,950

SEE THE PROPERTIES 360 DEGREE VIRTUAL TOURS HERE OR AT NEVILLE AND NEVILLE WEBSITE.MAIN SPECIFICATIONS: A LARGE DETACHED...

Stunts Green, Herstmonceux

4 Bedroom Detached House | Guide Price £675,000

GUIDE PRICE £675,000PLEASE VIEW OUR VIRTUAL TOUR HERE OR ON OUR WEBSITE NEVILLE AND NEVILLE• AN EXTENSIVELY ENHANCED & T...

Mark Cross, Crowborough

3 Bedroom Detached House | Guide Price £675,000

GUIDE PRICE £675,000• HOUSE WITH POTENTIAL SET IN A LUXURY CIRCA 0.75 OF AN ACRE WITH SCOPE FOR RENOVATION & EXTENDING O...

Neville & Neville Estate Agents (Hailsham)

Cowbeech, Hailsham, East Sussex, BN27 4JL

01323 833 630

How much is your home worth?

Use our short form to request a valuation of your property.

Request a Valuation

Mortgage Calculator

Amount Borrowed: £
Total Amount Repayable: £
Total Monthly Payment: £
©2026 The Guild of Property Professionals. All rights reserved. Terms and Conditions | Privacy Policy | Cookie Policy | Complaints Policy | Members Login
The Guild of Property Professionals Trading Address: 121 Park Lane, London W1K 7AG. GPEA Limited. Registered in England & Wales.  Company No: 02819824.  Registered Office Address: 2 St. Stephen's Court, St. Stephen's Road, Bournemouth, Dorset, England, BH2 6LA.  VAT Registration No: 576 8795 61
Book a Property Valuation Update Cookies Preferences