Windsor Gate, Eastleigh

£375,000
SSTC
This property listing is now SSTC

3 Bedroom Link Detached House for sale in Eastleigh

1 3 1

A delightful 3 bedroom detached family home presented in excellent condition throughout affording a number of wonderful attributes to include an open plan re-fitted kitchen, dining room to the rear leading onto the garden. In addition to this on the ground floor is the sitting room and utility/ cloakroom. On the first floor are three bedrooms and family bathroom. There is also the benefit of a garage to the side and at the end of the garden a useful timber cabin ideal for home working. Windsor Gate is situated just off Bosville within the highly sought after Boyatt Wood area and is within convenient distance of local shops and schooling. The town centre of Eastleigh is a short distance away and easy access can also be gained to the M3 and M27 motorway junctions.

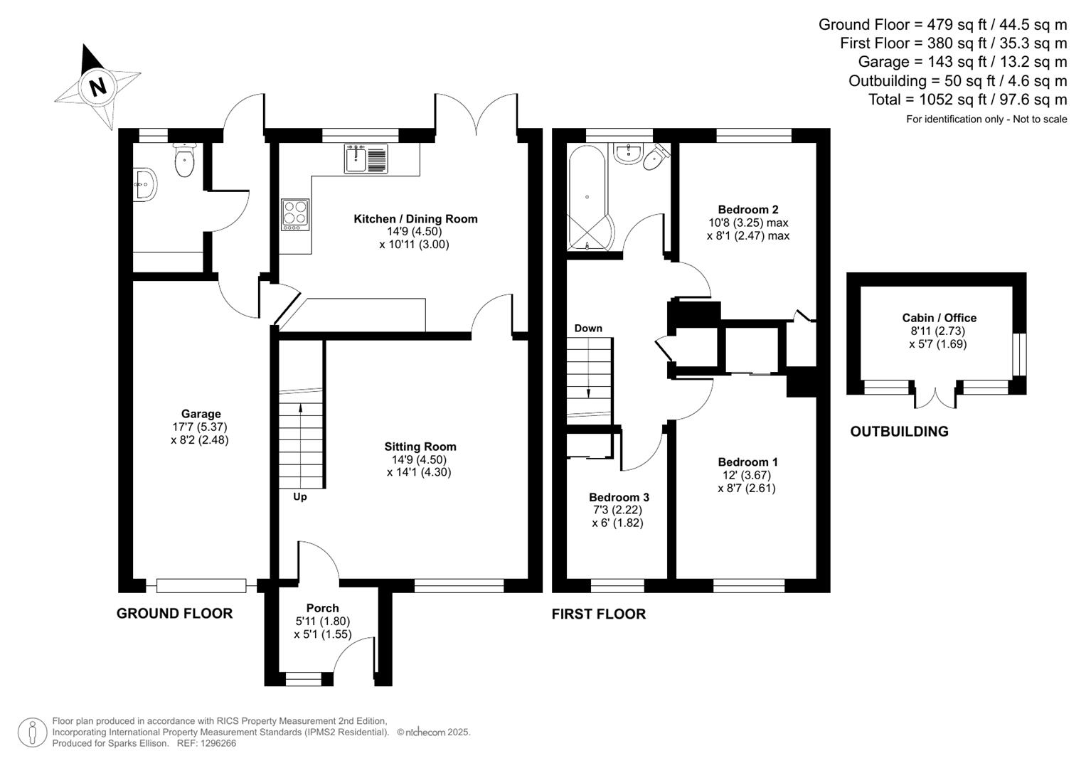
Accommodation -

Ground Floor -

Porch: - 5'11" x 5'1" (1.80m x 1.55m)

Sitting Room: - 14'9" x 14'1" (4.50m x 4.30m) Stairs to first floor, Oak floor.

Sitting/Dining Room: - 14'9" x 10'11" (4.50m x 3.33m) Re-fitted range of grey gloss units with wooden worktops, electric oven and gas hob with extractor hood over, integrated dishwasher and fridge, space for table and chairs, double doors to rear garden.

Lobby: - Tiled floor, doors to garden and garage.

Cloakroom/Utility Room: - Wash basin, WC, space and plumbing for washing machine, tiled floor, boiler.

First Floor -

Landing: - Hatch to loft space, airing cupboard.

Bedroom 1: - 12' x 8'7" (3.67m x 2.61m) Built in wardrobe.

Bedroom 2: - 10'8" x 8'1" (3.25m x 2.47m) Built in wardrobe.

Bedroom 3: - 7'3" x 6' (2.22m x 1.82m) Built in wardrobe.

Bathroom: - Suite comprising P shaped bath with mixer tap and separate shower unit over, wash basin, WC, tiled walls.

Outside -

Front: - To the front of the property is the driveway affording off street parking.

Rear Garden: - Approximately 43' x 27' Adjoining the house is a patio leading onto a lawned area surrounded by well stocked borders and enclosed by walling and fencing.

Cabin: - 9' x 5'7" Timber construction with bi-fold doors to the front, light and power, separate shed to the side.

Garage: - Light and power, roof storage space.

Other Information -

Tenure: - Freehold

Approximate Age: - 1970's

Approximate Area: - 1052sqft/97.6sqm

Sellers Position: - Looking for forward purchase

Heating: - Gas central heating

Windows: - UPVC double glazing

Infant/Junior School: - Crestwood Infant/Junior School

Secondary School: - Crestwood Community School

Local Council: - Eastleigh Borough Council - 02380 699000

Council Tax: - Band D

Agents Note: - If you have an offer accepted on a property we will need to, by law, conduct Anti Money Laundering Checks. There is a charge of £60 including vat for these checks regardless of the number of buyers involved.

Property Ref: 33912101

Share:

Similar Properties

Bodycoats Road, Chandler's Ford

2 Bedroom Detached Bungalow | £375,000

Located in the heart of Chandler's Ford on Bodycoats Road, this charming detached bungalow offers a delightful blend of...

Basing Way, Valley Park, Chandler's Ford

3 Bedroom Semi-Detached House | £375,000

This delightful three bedroom semi-detached home offers beautifully proportioned accommodation throughout. Upstairs, the...

Thirlstane Firs, Valley Park, Chandler's Ford

3 Bedroom Semi-Detached House | £375,000

Located in the quiet cul-de-sac of Thirlstane Firs, this exceptional semi-detached home in Valley Park, Chandler's Ford,...

Flexford Close, Parish Of Ampfield, Chandler's Ford

3 Bedroom Semi-Detached House | £389,995

Located in the tranquil cul-de-sac of Flexford Close, backing onto woodland, within the highly desirable Parish of Ampfi...

Common Close, Hiltingbury, Chandler's Ford

2 Bedroom Detached Bungalow | £390,000

A two bedroom detached bungalow situated in a popular cul-de-sac location in a central location providing convenient acc...

Fircroft Drive, Chandler's Ford, Eastleigh

3 Bedroom Link Detached House | £395,000

A three-bedroom link-detached family home in Chandler's Ford presents an excellent opportunity for those looking to crea...

Sparks Ellison (Chandler's Ford)

Chandler's Ford, Hampshire, SO53 2GJ

02380 255333

How much is your home worth?

Use our short form to request a valuation of your property.

Request a Valuation

Mortgage Calculator

Amount Borrowed: £
Total Amount Repayable: £
Total Monthly Payment: £
©2026 The Guild of Property Professionals. All rights reserved. Terms and Conditions | Privacy Policy | Cookie Policy | Complaints Policy | Members Login
The Guild of Property Professionals Trading Address: 121 Park Lane, London W1K 7AG. GPEA Limited. Registered in England & Wales.  Company No: 02819824.  Registered Office Address: 2 St. Stephen's Court, St. Stephen's Road, Bournemouth, Dorset, England, BH2 6LA.  VAT Registration No: 576 8795 61
Book a Property Valuation Update Cookies Preferences