George Raymond Road, Eastleigh

£465,000
SSTC
This property listing is now SSTC

4 Bedroom Detached House for sale in Eastleigh

1 4 2

Situated in George Raymond Road, Eastleigh, this splendid four-bedroom detached house offers the perfect blend of comfort and style. This home is immaculately presented throughout and features well proportioned rooms, making it perfect for families or anyone seeking a spacious and elegant living environment. Upon entering, you are welcomed by a large hallway, leading through to the sitting room and large open plan kitchen/dining area at the rear. The master bedroom features a contemporary en-suite bathroom, while the additional three bedrooms are sizable. Externally this home benefits from a single garage with parking for two/three cars in front. Located close to a variety of local amenities including shops, reputable schools, and green parks, the property is also conveniently placed for commuting, with excellent transport links to nearby towns and cities such as Winchester and Southampton.

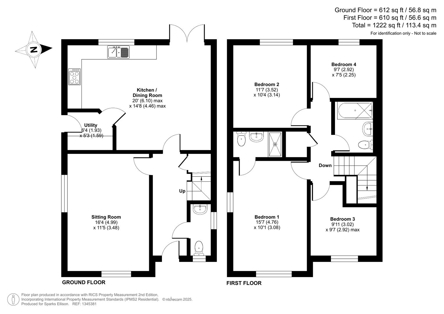
Accommodation -

Ground Floor -

Hallway: -

Cloakroom: - White suite comprising wash basin and WC.

Sitting Room: - 16'4" x 11'5" (4.99m x 3.48m)

Kitchen/Dining Room: - 20' x 14'8" (6.10m x 4.46m) Range of modern units including Integrated double oven, integrated gas hob with extracted over, integrated fridge freezer and sink. Double doors onto rear garden.

Utility - 6'4" x 5'3" (1.93m x 1.59m) Space for Washing machine and tumble dryer.

First Floor -

Bedroom 1: - 15'7" x 10'1" (4.76m x 3.08m)

En-Suite - White suite with shower cubicle, wash basin and WC.

Bedroom 2: - 11'7" x 10'4" (3.52m x 3.14m)

Bedroom 3: - 9'11" x 9'7" (3.02m x 2.92m)

Bedroom 4: - 9'7" x 7'5" (2.92m x 2.25m)

Family Bathroom: - Bath with shower over, wash basin, WC.

Garage: -

Front: - Driveway, parking leading to garage and pathway to front door.

Rear Garden: - Patio area with area laid to lawn and pathway to side access and garage.

Other Information -

Tenure: - Freehold

Approximate Age: - 2015

Approximate Area: - 113.4sqm/1222sqft

Sellers Position: - No forward chain

Heating: - Gas central heating

Windows: - UPVC double glazed windows

Infant/Junior School: - Norwood Primary School

Secondary School: - Crestwood Community School

Council Tax: - Band E

Local Council: - Eastleigh Borough Council - 02380 688000

Agents Note: - If you have an offer accepted on a property we will need to, by law, conduct Anti Money Laundering Checks. There is a charge of £60 including vat for these checks regardless of the number of buyers involved.

Property Ref: 6224678_34139493

Share:

Similar Properties

Flexford Close, Parish Of Ampfield, Chandler's Ford

4 Bedroom Detached House | £465,000

A well proportioned four bedroom detached family home situated in a popular cul de sac location and located within catch...

Highcliffe Drive, Boyatt Wood, Eastleigh

4 Bedroom House | £465,000

Constructed in 1980, this wonderful four bedroom detached family home is situated in a pleasant cul de sac location and...

Brownhill Road, Chandler's Ford

3 Bedroom Semi-Detached House | Offers in excess of £450,000

A stunning three bedroom semi-detached house presented in excellent condition throughout and pleasantly situated in an e...

Tyne Close, Chandler's Ford, Eastleigh

4 Bedroom Detached House | £475,000

A four bedroom detached home pleasantly situated in a cul-de-sac on the edge of Valley Park, backing onto woodland affor...

Leigh Road, Chandler's Ford

3 Bedroom Detached Bungalow | £475,000

A beautifully presented, and deceptively spacious, three bedroom chalet bungalow situated towards the southern end of Ch...

Park Road, Chandler's Ford

4 Bedroom Detached House | £475,000

A four-bedroom detached home conveniently situated in the heart of Chandlers Ford and within walking distance to the loc...

Sparks Ellison (Chandler's Ford)

Chandler's Ford, Hampshire, SO53 2GJ

02380 255333

How much is your home worth?

Use our short form to request a valuation of your property.

Request a Valuation

Mortgage Calculator

Amount Borrowed: £
Total Amount Repayable: £
Total Monthly Payment: £
©2025 The Guild of Property Professionals. All rights reserved. Terms and Conditions | Privacy Policy | Cookie Policy | Complaints Policy | Members Login
The Guild of Property Professionals Trading Address: 121 Park Lane, London W1K 7AG. GPEA Limited. Registered in England & Wales.  Company No: 02819824.  Registered Office Address: 2 St. Stephen's Court, St. Stephen's Road, Bournemouth, Dorset, England, BH2 6LA.  VAT Registration No: 576 8795 61
Book a Property Valuation Update Cookies Preferences